Historic Landmark Commission Homepage

RSS feed for this page

April 8, 2026

Agenda original pdf

Thumbnail of the first page of the PDF
Page 1 of 4 pages

REGULAR MEETING OF THE HISTORIC LANDMARK COMMISSION ARCHITECTURAL REVIEW COMMITTEE WEDNESDAY, APRIL 8, 2026, AT 4:00 P.M. PERMITTING AND DEVELOPMENT CENTER, CONFERENCE ROOM 1401 6310 WILHELMINA DELCO DR AUSTIN, TEXAS Some members of the Historic Landmark Commission may be participating by videoconference. The meeting may be viewed online at: http://www.austintexas.gov/page/watch-atxn-live Public comment will be allowed in-person or remotely via telephone. Speakers may only register to speak once either in-person or remotely and will be allowed up to three minutes to provide their comments. Registration no later than noon the day before the meeting is required for remote participation by telephone. To register to speak remotely, please use the QR code or link at the end of this document. For questions, please email preservation@austintexas.gov. KEVIN KOCH JAIME ALVAREZ HARMONY GROGAN CURRENT COMMISSIONERS AGENDA CALL TO ORDER PUBLIC COMMUNICATION: GENERAL The first 10 speakers signed up prior to the meeting being called to order are allowed three minutes to speak on items not posted to the agenda. APPROVAL OF MINUTES 1. Approve the minutes of the Architectural Review Committee regular meeting on March 11, 2026. DISCUSSION ITEMS 2. 3. 4. 5. 6. 7. C14H-1978-0038 – 713 Congress Ave. Paramount Theatre Council District 9 Proposal: Repair the roof and replace the parapet coping tile. Applicant: Johnathan Humphrey C14H-2023-0105 – 719 Congress Ave. State Theatre Council District 9 Proposal: Replace the auditorium HVAC unit. Applicant: Johnathan Humphrey 208 W. 32nd St. Aldridge Place Local Historic District Council District 9 Proposal: Remodel and construct an addition to a contributing building. Applicant: Caitlin Hough, Andrew Logan C14H-1982-0001-f – 916 Congress Ave. Larmour Block (F) Council District 9 Proposal: Construct an event space behind the existing façade. Applicant: Patrick Georgiou HR-2026-021800 – 1107 W. 9th St. Castle Hill Local Historic District Council District 9 Proposal: Remodel a contributing house. Applicant: Nathan Griffith 1010 E. Cesar Chavez St. Council District 3 Proposal: Restore and rehabilitate the structure. Applicant: Ingrid Gonzalez Featherston ADJOURNMENT The City of Austin is committed to compliance with the Americans with Disabilities Act. Reasonable modifications and equal access to communications will be provided upon request. For assistance, please contact the Liaison or TTY users’ route through 711. A person may request language access accommodation no later than 48 hours before the scheduled meeting. Please contact Hunter Sturgill, Austin Planning, at 512-974-3393 or preservation@austintexas.gov to request service or for additional information. For more information on the …

Scraped at: April 9, 2026, 8:42 a.m.
April 8, 2026

0.0 - ARC 03_11_26 Draft Minutes original pdf

Thumbnail of the first page of the PDF
Page 1 of 2 pages

REGULAR MEETING OF THE HISTORIC LANDMARK COMMISSION ARCHITECTURAL REVIEW COMMITTEE WEDNESDAY, MARCH 11, 2026, AT 4:00 P.M. PERMITTING AND DEVELOPMENT CENTER, CONFERENCE ROOM 1401 6310 WILHELMINA DELCO DR AUSTIN, TEXAS Some members of the Historic Landmark Commission may be participating by videoconference. X KEVIN KOCH X JAIME ALVAREZ X HARMONY GROGAN CURRENT COMMISSIONERS DRAFT MINUTES CALL TO ORDER: 4:03PM PUBLIC COMMUNICATION: GENERAL The first 10 speakers signed up prior to the meeting being called to order are allowed three minutes to speak on items not posted to the agenda. APPROVAL OF MINUTES 1. Approve the minutes of the Architectural Review Committee regular meeting on February 11, 2026. MOTION: Approve the February 11, 2026 meeting minutes. Motion by Commissioner Grogan. Commissioner Koch seconded the motion. Commissioner Alvarez off the dais. Vote 2-0. The motion passed. DISCUSSION ITEMS 2. 3. 4. 208 W. 32nd St. Aldridge Place Local Historic District Council District 9 Proposal: Remodel and construct an addition to a contributing building. Applicant: Caitlin Hough, Andrew Logan The applicant presented their proposal. The committee provided feedback. 1308 West Lynn St. Old West Austin National Register Historic District Council District 9 Proposal: Rehabilitate a church. Applicant: Graham Brown The applicant presented their proposal. The committee provided feedback. 1621 Nash Hernandez Sr. Rd. Council District 3 Proposal: Rehabilitate Austin Parks and Recreation administrative and community spaces. Applicant: Ingrid Kong The applicant presented their proposal. The committee provided feedback. ADJOURNMENT: 5:11PM The City of Austin is committed to compliance with the Americans with Disabilities Act. Reasonable modifications and equal access to communications will be provided upon request. For assistance, please contact the Liaison or TTY users’ route through 711. A person may request language access accommodation no later than 48 hours before the scheduled meeting. Please contact Hunter Sturgill, Austin Planning, at 512-974-3393 or preservation@austintexas.gov to request service or for additional information. For more information on the Historic Landmark Commission, please contact Hunter Sturgill at 512- 974-3393 or preservation@austintexas.gov.

Scraped at: April 9, 2026, 8:42 a.m.
April 8, 2026

04.0 - 208 W 32nd St - presentation original pdf

Thumbnail of the first page of the PDF
Page 1 of 19 pages

26.05.W 32ND ST JAMES KHEDARI & GABRIELLE FRASER 26.05.W 32ND ST ARC WORKSHOP M P 4 0 : 3 0 : 1 6 2 0 2 / 1 / 4 FULL SCALE IS 24X36 SHEET | HALF SCALE IS 12X18 SHEET 208 WEST 32ND STREET AUSTIN, TX 78705 SD-000 03.30.2026 SURVEY NOT TO SCALE 26.05.W 32ND ST ARC WORKSHOP M P 5 0 : 3 0 : 1 6 2 0 2 / 1 / 4 FULL SCALE IS 24X36 SHEET | HALF SCALE IS 12X18 SHEET 208 WEST 32ND STREET AUSTIN, TX 78705 SD-100 03.30.2026 SITE CONDITIONS EXISTING HOUSE SOUTH ELEVATION WEST ELEVATION NORTH ELEVATION EAST ELEVATION 26.05.W 32ND ST ARC WORKSHOP M P 8 0 : 3 0 : 1 6 2 0 2 / 1 / 4 FULL SCALE IS 24X36 SHEET | HALF SCALE IS 12X18 SHEET 208 WEST 32ND STREET AUSTIN, TX 78705 SD-101 03.30.2026 SITE CONDITIONS EXISTING GARAGE SOUTH ELEVATION WEST ELEVATION NORTH ELEVATION EAST ELEVATION 26.05.W 32ND ST ARC WORKSHOP M P 0 1 : 3 0 : 1 6 2 0 2 / 1 / 4 FULL SCALE IS 24X36 SHEET | HALF SCALE IS 12X18 SHEET 208 WEST 32ND STREET AUSTIN, TX 78705 SD-102 03.30.2026 SITE CONDITIONS EXISTING INTERIORS 26.05.W 32ND ST ARC WORKSHOP M P 3 1 : 3 0 : 1 6 2 0 2 / 1 / 4 FULL SCALE IS 24X36 SHEET | HALF SCALE IS 12X18 SHEET 208 WEST 32ND STREET AUSTIN, TX 78705 SD-103 03.30.2026 SITE CONDITIONS EXISTING DETAILS EXPOSED RAFTER TAILS CORNER EXPOSED RAFTER TAILS EAVE COLUMN AT CORNERS ATTIC WINDOW ATTIC VENT AND TRIM EXTERIOR WINDOW SCREEN EXTERIOR WINDOW TRIM EXTERIOR COLUMN BASE EXTERIOR FIREPLACE TEARDROP SIDING INTERIOR CORNER WINDOW 26.05.W 32ND ST ARC WORKSHOP M P 0 2 : 3 0 : 1 6 2 0 2 / 1 / 4 FULL SCALE IS 24X36 SHEET | HALF SCALE IS 12X18 SHEET 208 WEST 32ND STREET AUSTIN, TX 78705 SD-104 03.30.2026 EXST. SITE PLAN EXISTING HOUSE ORIENTATION HEMPHILL PARK 43' R.O.W. N 36° 05' 41" 16.30' E N 39° 42' 32" 16.35' E N 44° 16' 10" 16.35' E N 45° 47' 02" 16.45' E N 45° 54' 04" 32.02' E N 41° 52' 44" 29.23' E S 6 6 ° 3 5 6.4 4' 0 8' 3 " E 40.8" PECAN 42" PECAN DRIVEWAY 458 SF 25 YEAR FLOODPLAIN (576.78') 100 …

Scraped at: April 9, 2026, 8:42 a.m.
April 8, 2026

06.0 - 1107 W 9th St original pdf

Thumbnail of the first page of the PDF
Page 1 of 11 pages

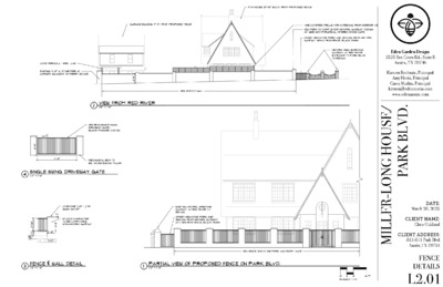
HISTORIC LANDMARK COMMISSION Applications for Certificates of Appropriateness April 1, 2026 HR-2026-021800 Castle Hill Historic District 1107 West 9th Street 10 – 1 Proposal Renovate existing house. The non-contributing rear house will also be modified. Project Specifications 1) Replace existing siding with painted wood ship lap. 2) Construct new 8’0” steel fence. 3) Replace existing undivided windows with wood 1:1 windows at first floor, fixed-pane undivided square windows at dormers, and fixed-pane picture window at existing picture window. 4) Construct rear addition with dormer. 5) Remove chimney from east dormer. 6) Replace existing roof with flat terra cotta tiles and metal shingles at rear addition. Architecture A 2010 historic zoning application describes the building as follows: The house is one-and-a-half stories with a hipped roof, hipped dormers, and a wraparound porch…Above the front door there is a transom, an integral part of architecture of the period as well…The house still has 7 working transoms throughout the inside, which helped to circulate the air between rooms…The house has had a number of changes over the years. The house first appears on the 1922 Sanborn Fire Insurance Company map and shows a smaller footprint…[it] had a porch stretching all the way across the front of the house and another one along the east side. …Between 1922 and 1935, design of the house was modified to include a bay window, extend the sides and include a small porch in the middle of the back of the house. In 1962 the house was modified again — the bay window was brought forward a few feet onto the porch to create a larger living room inside — which eliminated the front porch in front of this window, and the back part of the side porch was enclosed to enlarge the bedroom. In 2008 the kitchen…was extended slightly to the rear…In 2010 the front porch was restored to again extend all the way across the front of the house (and free one of the original porch pillars from the wall built in 1962) by moving a modified version of the bay window back (Tim Cuppett was also the architect for this project). All of the finishes and details on the outside of the house are original with the exception of the new bay window.1 However, former Historic Preservation Officer Steve Sadowsky noted that the 2010 addition likely destroyed original fabric at the front of the house: …

Scraped at: April 9, 2026, 8:42 a.m.
April 8, 2026

07.0 - 1010 E Cesar Chavez St - presentation original pdf

Thumbnail of the first page of the PDF
Page 1 of 19 pages

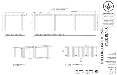
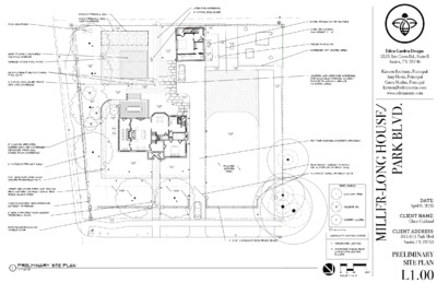
URTH CAFFÈ ARC MTG April 8th, 2026 PROJECT CONSIDERATIONS FOR REVIEW: 1. How is the project affected by the limit of adherence to current IBC code rather than Existing Building Code? What areas will this affect our detailing/energy effi ciency requirements? It’s our understanding that we will be required to meet current IBC and IECC which affect the following building systems: • Building/wall enclosure • Roof insulation • Window selection/ratings • Building loads DEPARTMENT OF INTERIOR STANDARDS FOR PRESERVATION, REHABILITATING, RESTORING & RECONSTRUCTING HISTORIC BUILDINGS: 1. PRESERVATION • Defi ned as the act or process of applying measures necessary to sustain the existing form, integrity, and materials of an historic property. Work, including preliminary measures to protect and stabilize the property, generally focuses upon the ongoing maintenance and repair of historic materials and features rather than extensive replacement and new construciton. New exterior additions are not within the scope of this treatment; however, the limited and sensitive upgrading of mechanical, electrical, and plumbig systems and other code-required work to make properties functional is appropriate within a preservation project. • Fire Separation/proximity to property line 2. REHABILITATION 2. Review following details in accordance with intent to preserve character of the building facade • Siding: WD teardrop and board and batten conditions to be reviewed • Eave: Coordinated detail with structural engineer to match existing profi le • Paint colors: Chosen to be similar to light colors seen in historic photographs CITY OF AUSTIN COMMUNICAITON SEPTEMBER 11, 2024 — ARC REVIEW COMMITTEE MEETING NOVEMBER 11, 2024 — ARC REVIEW COMMITTEE MEETING DECEMBER 4, 2024 — HISTORIC LANDMARK COMMISSION MEETING AND APPROVAL APRIL 28, 2025 — INITIAL PERMIT SUBMISSION JUNE 2, 2025 — RESUBMISSION 1 JULY 24, 2025 — RESUBMISSION 2 NOVEMBER 20, 2025 — RESUBMISSION 3 DECEMBER 13, 2025 — PERMIT APPROVAL MARCH 2, 2026 — SELECTIVE DEMOLITION START DATE MARCH 10, 2026 — STOP WORK ORDER ISSUED • Defi ned as the act or process of making possible a compatible use for a property through repair, alterations, and additions while preserving those portions or features which convey its historical, cultural, or architectural values 3. RESTORATION • Defi ned as the act or process of accurately depicting the form, features, and character of a property as it appeared at a particular period of time by means of the removal of features from other periods in its history and reconstruction of missing features …

Scraped at: April 9, 2026, 8:43 a.m.
April 1, 2026

Preview List original pdf

Thumbnail of the first page of the PDF
Page 1 of 3 pages

HISTORIC LANDMARK COMMISSION APPLICATIONS UNDER REVIEW FOR APRIL 1, 2026 MEETING This list does not constitute a formal agenda and is subject to change. A final agenda will be posted at least 3 business days prior to the meeting. Public comment will be allowed in-person or remotely via telephone. Speakers may only register to speak on an item once either in-person or remotely and will be allowed up to three minutes to provide their comments. Registration no later than noon the day before the meeting is required for remote participation by telephone. Speaker Registration will open once the formal agenda is posted. For questions, please email preservation@austintexas.gov. APPROVAL OF MINUTES 1. Approve the minutes of the Historic Landmark Commission regular meeting on March 4, 2026. BRIEFINGS 2. 3. 4. 5. Staff briefing regarding the Downtown Density Bonus Program Update by Alan Pani, Planner Principal, Austin Planning. Staff briefing on FY26 Heritage Preservation Grants by Kristina Koufos, Project Coordinator, Heritage Tourism Division, Austin Arts, Culture, Music, and Entertainment (AACME). Staff briefing regarding the Barton Springs Bridge Project by Eric Bailey, Department Director, Capital Delivery Services. Briefing regarding 1010 E. Cesar Chavez St. by Ingrid Featherston, Senior Architect, MF Architecture. PUBLIC HEARINGS/DISCUSSION ITEMS Historic Zoning 6. C14H-2026-0018 – 1906 Maple Ave. Thompson House Council District 1 Proposal: Commission-initiated historic zoning. Applicant: Historic Landmark Commission City Staff: Austin Lukes, Historic Preservation Office, 512-978-0766 Historic Landmark and Local Historic District Applications 7. 8. 9. 10. 11. HR-2026-027581; C14H-2004-0005 – 709 Rio Grande St. Sayers House Council District 9 Proposal: Convert use of property from residential to educational with life safety improvements and rehabilitation to the exterior. Applicant: Chad Johnson City Staff: Austin Lukes, Historic Preservation Office, 512-978-0766 HR-2026-028338; C14H-1978-0038 – 713 Congress Ave. Paramount Theatre Council District 9 Proposal: Replace a non-historic storefront and install life safety and accessibility updates. Applicant: Ashley Knight-Rositas City Staff: Austin Lukes, Historic Preservation Office, 512-978-0766 PR-2026-008188 – 1005 E. 8th St. Robertson/Stuart & Mair Local Historic District Council District 1 Proposal: Demolish a contributing building. Applicant: Robbie MacGregor City Staff: Austin Lukes, Historic Preservation Office, 512-978-0766 HR-2026-021800 – 1107 W. 9th St. Castle Hill Local Historic District Council District 9 Proposal: Remodel a contributing house. Applicant: Nathan Griffith City Staff: Kalan Contreras, Historic Preservation Office, 512-974-2727 HR-2026-027548 – 4010 Avenue B Hyde Park Local Historic District Council District 9 Proposal: Rehabilitate a contributing property and construct a single-family …

Scraped at: March 24, 2026, 3:33 p.m.
April 1, 2026

Agenda original pdf

Thumbnail of the first page of the PDF
Page 1 of 6 pages

REGULAR MEETING OF THE HISTORIC LANDMARK COMMISSION WEDNESDAY, APRIL 1, 2026, AT 6:00 P.M. CITY HALL, COUNCIL CHAMBERS 301 W. 2ND STREET AUSTIN, TEXAS Some members of the Historic Landmark Commission may be participating by videoconference. The meeting may be viewed online at: http://www.austintexas.gov/page/watch-atxn-live Public comment will be allowed in-person or remotely via telephone. Speakers may only register to speak on an item once either in-person or remotely and will be allowed up to three minutes to provide their comments. Registration no later than noon the day before the meeting is required for remote participation by telephone. To register to speak remotely, please use the QR code or link at the end of this document. For questions, please email preservation@austintexas.gov. CURRENT COMMISSIONERS BEN HEIMSATH, CHAIR (D-8) CARL LAROSCHE (D-6) ROXANNE EVANS, VICE CHAIR (D-2) TREY MCWHORTER (D-10) JEFFREY ACTON (MAYOR) TONYA PLEASANT-WRIGHT (D-1) JAIME ALVAREZ (D-7) JUDAH RICE (D-4) HARMONY GROGAN (D-5) BAT TANIGUCHI (D-9) KEVIN KOCH (D-3) AGENDA CALL TO ORDER PUBLIC COMMUNICATION: GENERAL The first 10 speakers signed up prior to the meeting being called to order will each be allowed a three- minute allotment to address their concerns regarding items not posted on the agenda. APPROVAL OF MINUTES 1. Approve the minutes of the Historic Landmark Commission regular meeting on March 4, 2026. BRIEFINGS 2. 3. 4. 5. Staff briefing regarding the Downtown Density Bonus Program Update by Alan Pani, Planner Principal, Austin Planning. Staff briefing on FY26 Heritage Preservation Grants by Kristina Koufos, Project Coordinator, Heritage Tourism Division, Austin Arts, Culture, Music, and Entertainment (AACME). Staff briefing regarding the Barton Springs Bridge Project by Eric Bailey, Department Director, Capital Delivery Services. Briefing regarding 1010 E. Cesar Chavez St. by Ingrid Gonzalez Featherston, AIA, Senior Architect, MF Architecture; Sarah Johnson, AIA, Principal Architect, MF Architecture; Sam Covey; Adam Lucas. PUBLIC HEARINGS/DISCUSSION ITEMS Historic Zoning 6. C14H-2026-0018 – 1906 Maple Ave. Thompson House Council District 1 Proposal: Commission-initiated historic zoning. Applicant: Historic Landmark Commission City Staff: Austin Lukes, Historic Preservation Office, 512-978-0766 Staff Recommendation: Staff recommends the proposed zoning change from family residence-historic district-neighborhood plan (SF-3-HD-NP) to family residence-historic landmark-historic district neighborhood plan (SF-3-H-HD-NP) combining district zoning. Historic Landmark and Local Historic District Applications 7. 8. HR-2026-027581; C14H-2004-0005 – 709 Rio Grande St. Sayers House Council District 9 Proposal: Rehabilitate a City of Austin landmark for use as a school. Applicant: Chad Johnson City Staff: Austin Lukes, Historic …

Scraped at: March 30, 2026, 9:36 a.m.
April 1, 2026

0.0 - HLC_03_04_26_Draft Minutes original pdf

Thumbnail of the first page of the PDF
Page 1 of 6 pages

REGULAR MEETING OF THE HISTORIC LANDMARK COMMISSION WEDNESDAY, MARCH 4, 2026, AT 6:00 P.M. CITY HALL, COUNCIL CHAMBERS 301 W. 2ND STREET AUSTIN, TEXAS Some members of the Historic Landmark Commission may be participating by videoconference. The meeting may be viewed online at: http://www.austintexas.gov/page/watch-atxn-live CURRENT COMMISSIONERS X BEN HEIMSATH, CHAIR (D-8) AB CARL LAROSCHE (D-6) X ROXANNE EVANS, VICE CHAIR (D-2) X TREY MCWHORTER (D-10) X JEFFREY ACTON (MAYOR) X TONYA PLEASANT-WRIGHT (D-1) X JAIME ALVAREZ (D-7) X JUDAH RICE (D-4) AB HARMONY GROGAN (D-5) X BAT TANIGUCHI (D-9) X KEVIN KOCH (D-3) DRAFT MINUTES CALL TO ORDER: 6:01PM PUBLIC COMMUNICATION: GENERAL The first 10 speakers signed up prior to the meeting being called to order will each be allowed a three- minute allotment to address their concerns regarding items not posted on the agenda. Karen Kocher spoke on the Barton Springs Bridge project. Jason Haskins spoke on the Barton Springs Bridge project. Ricca Keepers spoke on a project at 522 Sunny Ln. David Heymann spoke on the Barton Springs Bridge project. Bill Bunch spoke on the Barton Springs Bridge project. Ben Livingston spoke on the Barton Springs Bridge project. Charles E. Walker spoke on the Barton Springs Bridge project. Patricia Bobeck spoke on the Barton Springs Bridge project. Meghan King Namour gave updates on Preservation Austin. Asai Meyer spoke about transportation planning. APPROVAL OF MINUTES 1. Approve the minutes of the Historic Landmark Commission regular meeting on February 4, 2026. MOTION: Approve the minutes per passage of the consent agenda, on a motion by Commissioner Koch. Commissioner Acton seconded the motion. Vote 9-0. The motion passed. PUBLIC HEARINGS/DISCUSSION ITEMS Historic Zoning 2. C14H-1987-0016 – 810 W. 10th St. Mayer-Howse House Council District 9 Proposal: Recommend ordinance cleanup via Commission-initiated historic zoning to Planning Commission and City Council. Applicant: Historic Landmark Commission City Staff: Kalan Contreras, Historic Preservation Office, 512-974-2727 Staff Recommendation: Staff recommends the proposed zoning change from general office- equitable transit-oriented development-equitable transit-oriented density bonus (GO- ETODDBETOD) district zoning to general office-historic landmark-equitable transit-oriented development-equitable transit-oriented density bonus (GO-H-ETOD-DBETOD) district zoning as a means of correcting the existing administrative record. MOTION: Recommend historic zoning per staff recommendation with the passage of the consent agenda, on a motion by Commissioner Koch. Commissioner Acton seconded the motion. Vote 9-0. The motion passed. National Register Historic District Permit Applications 3. 4. HR-2025-145729 – 2100 Barton Springs Rd. WITHDRAWN BY APPLICANT. No …

Scraped at: March 30, 2026, 9:36 a.m.
April 1, 2026

02.0 - DDB Program Update Briefing - presentation original pdf

Thumbnail of the first page of the PDF
Page 1 of 28 pages

Downtown Density Bonus Phase 1 – Proposal Austin Planning | Historic Landmark Commission | 4/1/2026 Agenda • • • Background Existing Program & Process Proposed Changes • Urban Design Standards • Community Benefits | • Downtown Density Bonus Process • Stakeholder Engagement, Feedback, and Timeline 2 Background City Council Resolution  Downtown Density Bonus Update  Resolution No. 20240718-185 in July 2024 directed staff to update the Downtown Density Bonus (DDB) program  Requested:  Updates to gatekeeper requirements  Integration of Rainey subdistrict  Creation of new subdistricts  Prioritization of accessibility and shade opportunities  Simplification of the affordability program  Alignment of the program with the Equitable Transit-Oriented Development (ETOD) overlay.  Downtown Density Bonus – Phase 1  In response to Senate Bill 840, Council adopted Ordinance No. 20251023-063, which amended the Central Business District Zone and directed staff to update the DDB program by June 2026 for three DDB subdistricts 4 Existing Program & Process Phase 1 - Existing Height & FAR Map  After the recent adoption of the Central Business District Zone amendments and updates to the DDB, the three subdistricts in Phase 1 have the following entitlements available via the DDB program:  Core Subdistrict – 350ft of height and 25:1 FAR*  Rainey Subdistrict – 350ft of height and 15:1 FAR*  Convention Center Subdistrict – 350ft of height and 15:1 FAR*  Applicants can request Council approval to exceed these entitlements *FAR limits are only applicable to commercial developments 6 Proposed Changes Phase I – Proposed Applicability  Revised to remove the Red River Cultural District from Phase I  To be updated and included in Phase II of the DDB Update  DDB is a voluntary program  Supersedes the following overlays:  Capitol Dominance Overlay  Equitable Transit-Oriented Development Density Bonus  Waterfront Overlay 8 Phase I – Combining Districts  Each combining district will have different entitlements/requirements. Phase I will create 2 combining districts:  DDB400 has +400 ft  DDB850 has +850 ft  Additional height is additive to the property’s base zoning height limit  E.g., a CBD-DDB400 site could build up to 750 ft (350 ft base height + 400 bonus ft)  Sites will be rezoned into DDB400 in Phase I.  Sites will be eligible to request rezoning into DDB850 through the standard rezoning process.  Max height cannot be exceeded by …

Scraped at: March 30, 2026, 9:36 a.m.
April 1, 2026

04.0 - Barton Springs Bridge Briefing - presentation original pdf

Thumbnail of the first page of the PDF
Page 1 of 38 pages

Barton Springs Road Bridge Capital Delivery Services | 04 Feb 2026 Project Project Background Background Project History About the Bridge Nearly 100years old built in 1926 20,000 Vehicles per day 1946 Bridge Expansion Key Entrance to Zilker Park and for Major City Events 3 Project Site Protect Park Monuments Bridge Site Challenge and Constraint Categories: Park and Historic Environmental Roadway Intersection Bridge 4 Project Purpose and Need Project Needs Project Goals / Outcomes Age of Structure  100 yrs old, Associated structural degradation Safety  Barton Springs roadway not aligned  Hillside instability at Umlauf Gardens  Provide 75 Year Bridge Service Life  Improve Safety  Stabilize Umlauf Gardens Insufficient Paths  Not enough bike or pedestrian paths on bridge  Add Multi-modal and Connect with Park Trails Intersection Congestion  At Barton Springs / Azie Morton intersection  Reduce Congestion with addition of right turn 5 Project Purpose and Need Roadway Alignment Issues 6 Project Purpose and Need Goal During Construction  Maintain two-way traffic during construction  Maintain the Azie Morton / Barton Springs intersection during construction 20,000 Vehicles per day on Barton Springs Road (cid:127) Important commuter route (cid:127) Key access to Zilker Park (cid:127) Access to many special events (Trail of Lights, Austin City Limits, Blues on the Green, Zilker Park) 7 Project Options Project Options Rehabilitation or Replacement Options 9 Project Elements Elements Required for Rehabilitation or Replacement Bike Lanes Sidewalk / Path Shared Use Path Proposed Bridge  Widened Bike Lane  Accommodates  Accommodate hiking Trails  Wider Ped. Paths off-road biker trail users  Accommodates Pedestrians for Special Events  Multimodal areas to accommodate off-road hike and bike trail users  Longer service life length  Wider bridge  Better alignment for safety  Dedicated bike lanes 10 Bridge Inspection Bridge Inspection Findings  Deck (with integral longitudinal joint), floor beams, and spandrel columns exhibited the most degradation.  All structural components exhibited some degradation. Degraded Concrete Spandrel Column Spalling Exposed and Corroded Rebar Exposed and Corroded Rebar 11 Rehabilitation Options Spandrel Columns Arch Ribs Bridge Inspection Findings Rehabilitation for increased service life requires removal of deck, floor beams, and spandrel columns  Demolish the structure to the arch ribs.  Significant work is needed: major rehabilitation or bridge replacement. Do Nothing is not an option 1 Preserve Rehabilitation Option 1 is not feasible 12 Rehabilitation Options Improve Paths Arch ribs …

Scraped at: March 30, 2026, 9:36 a.m.
April 1, 2026

04.1 - BSRB BCER URS Resp to WJE comments Table 2023-10-20 original pdf

Thumbnail of the first page of the PDF
Page 1 of 6 pages

Job No.: CLMP167 Title: Bridge Concept Engineering Report (BCER) Peer Review PEER REVIEW COMMENTS Date: October 10, 2023 Preparer: URS/AECOM Reviewer: WJE – Brian D. Merrill, PE Responder: URS / AECOM Discipline: Bridge/Structures Status: ☐Criteria ☐100% ☐90% ☐60% ☐30% ☒Draft Report Review Purpose: ☒Independent Peer Review ☐Discipline ☐Project Approach Review ☐Interdiscipline ☐Other: Action Code: A ‐ Agree, will comply D ‐ Delete comment1 E ‐ Exception taken Commen t No. 1 2 3 4 5 6 7 Drawing, Spec, or Page No. Pdf 7 Pdf 7 Pdf 8 Comment Action/Response2 The statement highlighted is possibly overstated. Neither TxDOT nor the City have performed additional inspections/assessments over time that aren’t related to the current efforts. The condition ratings for the deck, superstructure, and substructure are all 6 (Satisfactory condition) and have been that way for the many years. TxDOT has not increased the frequency of safety inspections. We do agree that at almost 100 years old, the original portions of the bridge may be approaching the end of their useful life. Given the desire for the “next” bridge to last 75+ years, keeping the original poses some challenges. We propose to revise the highlighted statement as follows, "The condition of the structure has progressively deteriorated over its lifespan and this points towards more detailed inspection and condition assessments looking forward ." Comment acknowledged. Rehab Options 2 & 3 appear to address a similar approach taken for the Congress Ave bridge over Lady Bird Lake and SH 29 at S. San Gabriel River in Georgetown. These designs both left the arches and spandrel columns in place but not acting as part of the structural system. This bridge’s skew and the location of the spandrel columns makes adding a new substructure on the existing foundations more challenging, if not impossible. Agree this concept was considered. Comment acknowledged. The retrofitted spandrels are intended to be engaged for vertical loads. Pdf 9 Phase 2 of the Preliminary Selection and Concept Eng. Process was not provided to WJE for review. Deliverables for Phase 2 were transmitted by URS/AECOM to the City of Austin. Pdf 12 The CoA streel “levels” (per CoA Street Design Guide) for Bartron Springs were not mentioned. We suggest it likely falls under level 3 – but the lane widths shown in Section 2.2 Geometric development, are too narrow for this street level. Comment acknowledged. These lane widths were a product of coordination …

Scraped at: March 30, 2026, 9:37 a.m.
April 1, 2026

04.2 - BSRB BCER Public Release Redacted 2023.12.08_Part1 original pdf

Thumbnail of the first page of the PDF
Page 1 of 162 pages

This page intentionally left blank 2 BARTON SPRINGS ROAD BRIDGE OVER BARTON CREEK PROJECT Bridge Concept Engineering Report CIP ID #5873.031 AUSTIN, TEXAS OCTOBER 2023 PREPARED FOR The City of Austin PREPARED BY URS – an AECOM Company Texas P.E. Firm Registration No. F‐3162 13640 Briarwick Drive Suite 200 Austin, TX 78729 Telephone: 512‐454‐4797 Website: aecom.com 3 Date: October 26, 2023 This page intentionally left blank 4 Contents Executive Summary .....................................................................................................................9 1 Project Summary .................................................................................................................11 1.1 1.2 Background ............................................................................................................................... 11 Project Objectives ..................................................................................................................... 11 1.3 Description of the Bridge Project Process ............................................................................. 12 1.4 Project and Report Scope ........................................................................................................ 13 2 Project Area ..........................................................................................................................15 3 Existing Conditions ............................................................................................................16 3.1 3.2 Bridge Cultural/Historical Conditions .................................................................................. 16 Bridge Structural Condition ................................................................................................... 16 3.2.1 3.2.2 Traffic Conditions ............................................................................................................ 17 Preliminary Environmental Conditions ........................................................................ 18 4 Alternative Development and Selection Process .........................................................23 4.1 Initial Assessments (2018‐2019) .............................................................................................. 23 4.1.1 4.1.2 4.1.3 4.1.4 Early Geometric Concepts .............................................................................................. 23 Bridge Rehabilitation Feasibility .................................................................................... 24 Bridge Replacement Concepts ........................................................................................ 24 Design Reviews and Funding Pause ............................................................................. 24 4.2 Bridge Alternative Development (2021‐2022) ...................................................................... 24 4.2.1 4.2.2 4.2.3 4.2.4 4.2.5 Design Charrette .............................................................................................................. 25 City Department Vetting and Alternative Refinement ............................................... 25 Initial Agency Vetting ..................................................................................................... 25 Bridge Alternatives (Comparison of Options) ............................................................. 25 Additional Agency Vetting ............................................................................................. 32 4.3 Public Involvement .................................................................................................................. 32 4.3.1 4.3.2 4.3.3 Open House ...................................................................................................................... 32 Public Comment Summary ............................................................................................. 32 Post Open House Discussions ........................................................................................ 33 5 Proposed Improvements ...................................................................................................34 5.1 5.2 Bridge Cross‐Section ................................................................................................................ 37 Bridge Aesthetic Design .......................................................................................................... 37 5 5.3 5.4 Roadway Design ...................................................................................................................... 38 Park Area Design ..................................................................................................................... 39 5.4.1 5.4.2 5.4.3 5.4.4 Structure/Tree Protection and Mitigation ..................................................................... 39 Zilker Park – Zilker Eagle ............................................................................................... 40 Zilker Park Hike/Bike Trail ............................................................................................. 40 Umlauf Garden Retaining Wall ..................................................................................... 40 5.5 Structural Design ...................................................................................................................... 41 5.6 Utility Design ............................................................................................................................ 42 6 Construction Phases and Methods ..................................................................................44 6.1 6.2 6.3 6.4 Construction Phases ................................................................................................................ 44 Foundation and Substructure Construction ......................................................................... 45 Superstructure Construction .................................................................................................. 46 Construction Sequence/Maintenance of Traffic ................................................................... 46 6.4.1 6.4.2 6.4.3 6.4.4 Phase 1 ............................................................................................................................... 47 Phase 2 ............................................................................................................................... 48 Phase 3 ............................................................................................................................... 49 Final Construction ............................................................................................................ 50 7 Project Cost ..........................................................................................................................51 Appendices Appendix A ‐ Early Studies A‐1 ‐ Section 106 Report – Sept 2016 A‐2 ‐ Bridge Inspection Report – Jan 2017 A‐3 ‐ Traffic Memo – Jan 2018 Appendix B ‐ Bridge Initial Assessments B‐1 ‐ Initial Geometry ‐ Feb 2018 B‐2 ‐ Rehabilitation Feasibility …

Scraped at: March 30, 2026, 9:37 a.m.
April 1, 2026

04.2 - BSRB BCER Public Release Redacted 2023.12.08_Part2 original pdf

Thumbnail of the first page of the PDF
Page 1 of 91 pages

C-2 - Draft Interim Bridge Status Memorandum – Feb 2022 Barton Springs Rd. Bridge over Barton Creek Interim Bridge Status REVISIONS Project: City of Austin – Barton Springs Road Bridge over Barton Creek Document: Interim Bridge Status Memorandum Revision Date of Issue Description D0 D1 D2 01/17/19 01/25/19 02/24/22 Draft Issue for Internal Comment Draft Issue for City Management Team Review/Comment Draft Issue for City Management Team Review/Comment Statement of Limitations This report is intended for the City of Austin and is not to be distributed to third parties outside the City’s organization. This interim memo provides an update regarding the status of the conceptual design work performed by URS for the proposed facility. This work is ongoing and not complete. Information included in this memo is subject to change prior to release of the Final Bridge Conceptual Engineering Report. Page ii Barton Springs Rd. Bridge over Barton Creek Interim Bridge Status CONTENTS PAGE 1. 2. INTRODUCTION............................................................................................ 1 Background ........................................................................................... 1 1.1 Project Objectives .................................................................................. 1 1.2 Bridge Engineering Process ...................................................................... 2 1.3 1.3.1 Preliminary Selection and Concept Engineering – Process Phase 1 ...... 2 1.3.2 Preliminary Selection and Concept Engineering – Process Phase 2 ...... 3 1.3.3 Preliminary Selection and Concept Engineering – Process Phase 3 ...... 3 2.4 2.5 SUMMARY OF RESULTS ................................................................................. 4 Bridge Cultural/Historical Background ....................................................... 4 2.1 Barton Springs/Azie Morton Road Intersection Assessment .......................... 4 2.2 Roadway Alignment Concepts (Rehabilitation vs Replacement) .................... 4 2.3 2.3.1 Rehabilitation Option .................................................................... 4 2.3.2 Replacement Option ..................................................................... 5 Maintenance of Traffic / Construction Phasing ............................................ 5 2.4.1 Phase 1 (Figure 2-3) ..................................................................... 5 2.4.2 Phase 2 (Figure 2-4) ..................................................................... 6 2.4.3 Phase 3 (Figure 2-5) ..................................................................... 6 2.4.4 Final Tasks – Complete Construction............................................... 7 Bridge Rehabilitation Summary ................................................................ 7 2.5.1 Introduction ................................................................................ 7 2.5.2 Bridge Rehabilitation Feasibility ...................................................... 7 2.5.3 Description of Existing Condition .................................................... 7 2.5.4 Service Life Estimates ................................................................... 8 2.5.5 Existing Structure - Load Capacity Estimates ................................... 9 2.5.6 Rehabilitation Concept and Components ........................................ 10 2.5.7 Rehabilitation Renderings ............................................................ 11 2.5.8 Estimated Costs ......................................................................... 11 Bridge Replacement Summary ............................................................... 12 2.6.1 Introduction .............................................................................. 12 2.6.2 Bridge Replacement Feasibility ..................................................... 12 2.6.3 Replacement Concept and Components ......................................... 12 2.6.4 Estimated Costs ......................................................................... 13 Conceptual Zilker Park/Pedestrian Opportunities ...................................... 13 2.7.1 Structure/Tree Protection and Mitigation ....................................... 14 2.7.2 Zilker Park – Zilker Zephyr .......................................................... 14 2.7.3 Zilker Park Hike/Bike Trail ........................................................... 14 2.7.4 Barton Springs Road ................................................................... …

Scraped at: March 30, 2026, 9:37 a.m.
April 1, 2026

04.2 - BSRB BCER Public Release Redacted 2023.12.08_Part3 original pdf

Thumbnail of the first page of the PDF
Page 1 of 112 pages

C-4 - Rehabilitation vs Replacement Memo – September 2022 City of Austin Barton Springs Road Bridge over Barton Creek Rehabilitation vs. Replacement Memorandum CIP ID 5873.031 URS Corporation 9400 Amberglen Blvd. Austin, TX 78729 (512) 419-5897 TX Firm F-3162 7650 W. Courtney Campbell Cswy. Tampa, FL 33607-1462 (813) 286-1711 September 28, 2022 Final (F1) This document is released under the authority of Robert B. Anderson Texas PE No. 111066 Barton Springs Road Bridge over Barton Creek Rehab vs. Replacement Memo REVISIONS Project: City of Austin – Barton Springs Road Bridge over Barton Creek Document: Rehab vs. Replacement Memo Revision Date of Issue Description D0 D1 D2 F1 08/22/2022 Draft Issue for Internal Comment 09/12/2022 Revised Draft Issue post PWD comments 09/19/2022 Revised Draft Issue cost table and replacement comparison 09/28/2022 Final Issue Contents 1. 2. 3. INTRODUCTION............................................................................................ 3 Purpose and Need .................................................................................. 3 1.1 Bridge Cultural / Historical Background / Existing Condition ......................... 3 1.2 DESIGN CONCEPTS ....................................................................................... 5 Design Elements Common to Both Rehabilitation and Replacement .............. 5 2.1 Rehabilitation Option .............................................................................. 5 2.2 Replacement Option ............................................................................... 7 2.3 COMPARISON OF PRELIMINARY REPLACEMENT / REHABILITATION CONCEPTS .................................................................................................. 10 4. SUMMARY AND RECOMMENDATIONS ......................................................... 12 Statement of Limitations This report is intended for the City of Austin and is distributed to third parties outside the City’s organization, with their consent. This interim memo provides a direct comparison between the rehabilitation and replacement options for the Barton Springs Road Bridge over Barton Creek and provides a recommendation from the design team. This report is intended to outline the current design approach and highlight the pros and cons associated with the rehabilitation and replacement concepts. To limit the size and focus of this memo, the detailed work associated with existing bridge inspection and preliminary concept development and analysis are incorporated by reference. Page 2 of 13 Barton Springs Road Bridge over Barton Creek Rehab vs. Replacement Memo 1. INTRODUCTION This section of the report summarizes the purpose and need for the project and provides some Cultural and Historical Background. 1.1 Purpose and Need The purpose and need for this project is centered on safety-related bridge improvements that address the following items: Insufficient bike / pedestrian paths (functionally obsolete);  Age of structure / structural degradation;   Bridge roadway lanes not aligned with lanes east of Azie Morton;  Hillside instability (rock fall) and obsolete retaining wall on Azie Morton east side …

Scraped at: March 30, 2026, 9:38 a.m.
April 1, 2026

04.2 - BSRB BCER Public Release Redacted 2023.12.08_Part4 original pdf

Thumbnail of the first page of the PDF
Page 1 of 110 pages

Project No. 0121-014 15 ft 2 ft 8 ft 18.5 ft 33.5 ft 40 ft SAMPLE PHOTOGRAPHS – W-1 Barton Springs Road Bridge Improvements Austin, Texas Sheet 1 of 2 40 ft – Del Rio Clayshale Project No. 0121-014 44 ft – Georgetown Limestone 45 ft 50 ft 55 ft 50 ft 60 ft SAMPLE PHOTOGRAPHS – W-1 Barton Springs Road Bridge Improvements Austin, Texas Sheet 2 of 2 Project No. 0121-014 15 ft 2 ft 7 ft 18.5 ft 33.5 ft 39 ft SAMPLE PHOTOGRAPHS – W-2 Barton Springs Road Bridge Improvements Austin, Texas Sheet 1 of 2 40 ft – Del Rio Clayshale 41.5 ft – Georgetown LS Project No. 0121-014 45 ft 55 ft 50 ft SAMPLE PHOTOGRAPHS – W-2 Barton Springs Road Bridge Improvements Austin, Texas 50 ft 60 ft Sheet 2 of 2 1 ft 7 ft 18.5 ft 28.5 ft Project No. 0121-014 15 ft 34.3 ft SAMPLE PHOTOGRAPHS – W-3 Barton Springs Road Bridge Improvements Austin, Texas Sheet 1 of 2 35 ft – Del Rio Clayshale Project No. 0121-014 39 ft – Georgetown Limestone 40 ft 45 ft 45 ft 50 ft SAMPLE PHOTOGRAPHS – W-3 Barton Springs Road Bridge Improvements Austin, Texas Sheet 2 of 2 0 ft 6 ft – Buda Limestone Project No. 0121-014 5.5 ft 10 ft SAMPLE PHOTOGRAPHS – W-4 Barton Springs Road Bridge Improvements Austin, Texas Sheet 1 of 6 10 ft 20 ft Project No. 0121-014 15 ft 20 ft 23 ft – Del Rio Clayshale 25 ft SAMPLE PHOTOGRAPHS – W-4 Barton Springs Road Bridge Improvements Austin, Texas 30 ft Sheet 2 of 6 30 ft 40 ft 35 ft 45 ft Project No. 0121-014 40 ft 50 ft SAMPLE PHOTOGRAPHS – W-4 Barton Springs Road Bridge Improvements Austin, Texas Sheet 3 of 6 Project No. 0121-014 55 ft 60 ft 50 ft 60 ft Core loss due to core barrel jam - 65 to 70 ft 65 ft 70 ft SAMPLE PHOTOGRAPHS – W-4 Barton Springs Road Bridge Improvements Austin, Texas Sheet 4 of 6 Core loss due to core barrel jam - 70 to 72 ft 70 ft Project No. 0121-014 75 ft 80 ft 80 ft – Georgetown Limestone 85 ft SAMPLE PHOTOGRAPHS – W-4 Barton Springs Road Bridge Improvements Austin, Texas 90 ft Sheet 5 of 6 Project No. 0121-014 95 ft 100 ft 90 ft 100 ft 105 ft …

Scraped at: March 30, 2026, 9:38 a.m.
April 1, 2026

04.2 - BSRB BCER Public Release Redacted 2023.12.08_Part5 original pdf

Thumbnail of the first page of the PDF
Page 1 of 84 pages

D-2 - Initial US Army Corps of Engineers Meeting – Nov. 2022 D-3 - Section 106 Evaluation – January 2023 SECTION 106 EFFECTS ASSESSMENT OF THE BARTON SPRINGS ROAD BRIDGE CITY OF AUSTIN TRAVIS COUNTY, TEXAS January 2023 Section 106 Effects Assessment of the Barton Springs Road Bridge, Austin, Travis County, Texas Prepared by: Kurt Korfmacher Architectural Historian and Principal Investigator And Erica Koteras Historian Consulting Firm: AmaTerra Environmental, Inc. Contact Information: 11842 Rim Rock Trail Austin, TX 78737 Telephone: (512) 329-0031 January 2023 Barton Springs Road Bridge Section 106 Evaluation ABSTRACT At the request of URS Corporation and on behalf of the City of Austin (City), AmaTerra Environmental, Inc. (AmaTerra) conducted an assessment of effect to the Barton Springs Road Bridge in Austin, Travis County, Texas. Barton Springs Road Bridge is a contributing resource to the Zilker Park Historic District, a property listed in the National Register of Historic Places (NRHP). The City proposes improvements to Barton Springs Road that would necessitate changes to the bridge, potentially including replacement of the existing bridge with a new structure. As the proposed undertaking would require permitting from the United States Army Corps of Engineers (USACE), it is subject to the requirements of Section 106 (36 CFR Part 800) of the National Historic Preservation Act (NHPA). As the City is a political entity of the State of Texas, the Antiquities Code of Texas (Texas Natural Resources Code, Title 9, Chapter 191) and its associated regulations (13 TAC 26) also apply. In October 2022, professional historians meeting the Secretary of Interior Standards conducted an evaluation of the proposed project and its potential for effect on the NRHP-listed bridge and related contributing resources to the Zilker Park Historic District per Section 106 guidelines. Zilker Park Historic District is listed in the NRHP under Criteria A and C at the local level in the areas of Architecture, Conservation, Entertainment/Recreation, and Landscape Architecture, with a period of significance of 1917-1947. Both Barton Springs Road Bridge and the Main Entrance Piers (contributing) are within the project area. The proposed bridge improvements are associated with a larger overall plan for Zilker Park known as the Zilker Park Vision Plan. This ambitious multi-year proposal would make major changes to large sections of Zilker Park to improve pedestrian flow and access, improve safety, restore and protect the natural environment, and make general improvements to how the park is accessed and …

Scraped at: March 30, 2026, 9:38 a.m.
April 1, 2026

04.2 - BSRB BCER Public Release Redacted 2023.12.08_Part6 original pdf

Thumbnail of the first page of the PDF
Page 1 of 72 pages

E-1 - Open House Boards E-2 - Public Comments – April 2023 Barton Springs Road Bridge Over Barton Creek Project Public Meeting Summary (April 2023) Contents Public Engagement Process ................................................................................................................................................ 2 Public Comment Results ..................................................................................................................................................... 2 Overall Sentiment Analysis ............................................................................................................................................ 2 Public Comments ............................................................................................................................................................. 3 No Changes to Bridge ‐ roughly 20% ........................................................................................................................ 3 Against Replacement ‐ roughly 5% ........................................................................................................................... 3 In Favor of Rehabilitation ‐ roughly 30% .................................................................................................................. 3 In Favor of Replacement – 30% .................................................................................................................................. 3 Undetermined/Miscellaneous – 10% ......................................................................................................................... 3 Results for Optional Demographic Questions ................................................................................................................. 3 Appendix: All Comments ................................................................................................................................................... 8 1 Public Engagement Process On April 4, 2023, the Austin Transportation & Public Works Department (TPW) conducted its first in‐person public meeting on the Barton Springs Road Bridge Project. Although this meeting was postponed from March 2, 2023, due to local weather conditions, the virtual public meeting went online on March 2 as planned and remained live through April 18 when all public comments were due. The purpose of this in‐person and virtual meeting was to present the project and to gather community feedback on various alternatives for improving safety and mobility for the Barton Springs Road Bridge. Many of the existing bridge’s features are functionally obsolete and require rehabilitation or replacement to ensure safety and longevity. Promotion of the public meeting (both in‐person and virtual) included a flyer mailout to the project stakeholder list of individuals and organizations; placement of meeting signs in the neighborhoods in and around the project area; postings on social media sites (NextDoor, Facebook, and Twitter); and a media advisory. Public Comment Results Public comments were gathered in two ways: on paper during the in‐person public meeting on April 4, 2023 and online as part of the virtual public meeting that started on March 2. All comments were due on April 18. Both in‐person and online, meeting participants were asked to share their feedback in one open‐ended question: Do you have any comments or questions for the project team? The online version also included optional demographic questions. The online survey was open from March 2 – April 18 whereas the in‐person public meeting took place on one evening (April 4). A total of 187 comments were received during the comment period; 11 of those comments were gathered during the in‐person meeting while the remainder were submitted online. Overall there were 1,677 views of the virtual public meeting, 189 participated in …

Scraped at: March 30, 2026, 9:38 a.m.
April 1, 2026

04.2 - BSRB BCER Public Release Redacted 2023.12.08_Part7 original pdf

Thumbnail of the first page of the PDF
Page 1 of 20 pages

E-3 - Mobility Committee Presentation - May 2023

Scraped at: March 30, 2026, 9:39 a.m.
April 1, 2026

04.3 - Barton Springs Bridge - drawings original pdf

Thumbnail of the first page of the PDF
Page 1 of 25 pages

Barton Springs Road Bridge Preliminary Design - Bridge Architecture Design Report 12 August 2025 Contents This PDF is an interactive document. Click on each number to navigate to the corresponding section. The menu icon on the bottom left returns you to this Table of Contents Introduction Design Concept Cut Sheets About the Bridge Site Context About Austin Project Needs & Goals Overall Bridge Concept Details Lighting Concept Lighting Equipment Surface Material Wall Finish INTRODUCTION 01 Prepared for Ramsey CountyBarton Springs RoadBarton SpringsRoad BridgeZilker ParkColorado RiverBarton CreekBartonSpringsPoolDowntownAustin 01 / Introduction Barton Springs Bridge Background Built in 1925, the Barton Springs Road Bridge provides access over Barton Creek along Barton Creek Road at the entrance to Zilker Park. The bridge was widened to its current form in 1946, which includes two traffic lanes in each direction. The bridge also features narrow sidewalks along each side, guard rails and a sidewalk underneath. While the existing bridge is structurally in fair condition, many of its features are functionally obsolete and it requires replacement to ensure safety and longevity. Given that the existing bridge present mobility challenges for vehicles, bikes and pedestrians, this project will provide needed mobility enhancements for all users. Intersection improvements to nearby Barton Springs Road and Azie Morton Drive are necessary as part of this project. In November 2020, Austin voters approved $102 million for major infrastructure projects, with the possibility of allocating a portion of that funding to address the Barton Springs Road Bridge. In December 2023, Austin City Council officially recommended replacing the bridge and advanced the project to the design phase. The City of Austin received a $32 million grant from the U.S. Department of Transportation in November 2024 to help fund construction of the new bridge. 4 AECOMPrepared for The City of Austin Longitudinal Beam - Exposed Rebar Spandrel Column - Spalling 01 / Introduction Condition Assessment • Deck (with integral longitudinal joint), floor beams, and spandrel columns exhibited the most degradation. • All structural components exhibited some degradation. • Rehabilitation for increased service life would need to remove deck, floor beams, and spandrel columns, stripping structure to arch ribs as a starting point. • These results remove Rehabilitation Option 1 as feasible alternative since that option was the “low-impact”, “preserve-structure” option. • Based on the above, we are now focused on Rehabilitation Option 2 and on potential bridge replacement options. 5 Longitudinal Beam - Exposed Rebar …

Scraped at: March 30, 2026, 9:39 a.m.
April 1, 2026

04.4 - Barton Springs Bridge - 2023 RCA original pdf

Thumbnail of the first page of the PDF
Page 1 of 4 pages

City of Austin 301 W. Second Street Austin, TX Recommendation for Action File #: 23-3600, Agenda Item #: 79. 12/14/2023(cid:4) Posting Language Conduct a public hearing and approve the recommended alternative in the Preliminary Engineering Report to replace the Barton Springs Road Bridge over Barton Creek. Lead Department Capital Delivery Services. Fiscal Note This item has no fiscal impact. For More Information: James Snow, Director, Capital Delivery Services, 512-974-9795; Eric Bailey, Interim Deputy Director, Capital Delivery Services, 512-974-7713; Paulinda Lanham, Capital Delivery Project Manager, Capital Delivery Services, 512-974-7974. Council Committee, Boards and Commission Action: November 10, 2022 - Update on the Barton Springs Road Bridge over Barton Creek project to the Mobility Committee. Update only, no action taken. May 11, 2023 - Briefing on the Barton Springs Road Bridge project and mobility elements of the Zilker Park Vision Plan to the Mobility Committee. Briefing only, no action taken. October 27, 2023 - Briefing on the Barton Springs Road Bridge project to the Mobility Committee. Additional Backup Information: The Barton Springs Road Bridge over Barton Creek is located near the intersection of Azie Morton Road and Barton Springs Road. The location of the bridge, at the entrance to Zilker Park, is a focal point of key community events such as Austin City Limits Musical Festival, South-By-Southwest (SXSW) Conference and Music Festival, Barton Springs, Trail of Lights, and Blues on the Green. Barton Springs Road and the associated bridge is also a key connection for vehicular, bicycle, and pedestrian access linking Mopac to downtown and the South Lamar/Congress Avenue corridors, as well as providing the primary northern entrance to the Zilker and Barton Hills neighborhoods via Azie Morton Road, located immediately east of the bridge. The full bridge replacement option provides the most cost-effective and the longest useful life The Barton Springs Road Bridge over Barton Creek requires rehabilitation or replacement. It was originally built in 1925 and was expanded on one side in 1946. Structurally it is in fair condition, however, the existing bridge dimensions, sidewalks, and bike lanes do not meet with current design standards. The roadway west of Azie Morton Road is not aligned with the roadway east of Azie Morton Road. The project will reduce congestion and provide benefits to the local neighborhoods, commuters (all travel modes), and local businesses, as well as Zilker Park users and event attendees. City of Austin Page 1 of 2 Printed on …

Scraped at: March 30, 2026, 9:40 a.m.
April 1, 2026

05.0 - 1010 E Cesar Chavez St Briefing - presentation_Part1 original pdf

Thumbnail of the first page of the PDF
Page 1 of 20 pages

URTH CAFFÈ HLC -COMMISSION MTG April 8th, 2026 It is important to note that the intended use of the building and property has not changed; the property and building will function as a restaurant. The high- intensity operational needs of such a program placed cumulative stresses on the historic structure that it was never designed to handle. Over the years, these commercial requirements resulted in a level of internal deterioration that made total preservation a physical impossibility. Our primary objective is to reconstruct the building in a way that accommodates modern restaurant standards while maintaining the original historic detailing exactly as it was—without the threat of further damage. The evidence in this report supports the conclusion that the cumulative impact of previous "add-ons" and makeshift utility solutions compromised the structure to the point of being unsalvageable. We respectfully ask the Commission to evaluate this evidence in its entirety. It is our hope that, with a clear understanding of these unforeseen conditions, we can continue construction aligned in our shared goal of a resilient, historically faithful restoration. Thank you, Sarah Jonhson, AIA, (Architect) Ingrid Gonzalez Featherston, AIA, NOMA (Architect) Dear Members of the Historic Landmark Commission: This letter is intended to clarify the site conditions and field decisions that led to a greater degree of demolition than originally proposed during our 2024 presentation. First, we wish to acknowledge that the extent of the demolition exceeded initial expectations. However, the report below outlines the harsh structural realities discovered on-site that necessitated the difficult decision to retain a smaller percentage of the original envelope than planned. This report details the specific damage found on every demolished wall and the technical rationale behind those actions. We want to clarify that the sections currently remaining on-site should not be viewed as exempt from the systemic damage documented in this report. Rather, these sections were retained as part of a strategic, surgical effort to preserve specific components, with the ultimate goal of restoring the building to its full architectural glory. While a total preservation of the entire structure was our preferred approach, the extent of the systemic decay made such a path both structurally unsound and economically unfeasible. The team elected to focus preservation efforts on the primary, most significant facade. The other walls required reconstruction to properly integrate modern systems and ensure long-term viability. Our approach focuses on three key pillars: • Modern System Integration: …

Scraped at: March 30, 2026, 9:40 a.m.
April 1, 2026

05.0 - 1010 E Cesar Chavez St Briefing - presentation_Part2 original pdf

Thumbnail of the first page of the PDF
Page 1 of 20 pages

GENERAL NOTES: 1. DO NOT SCALE DRAWINGS. EXPLICIT DIMENSION SHALL HAVE PRECEDENCE OVER SCALE. THESE DOCUMENTS HAVE BEEN FORMATTED TO BE PRINTED ON 24” X 36” SHEET SIZES, DRAWINGS PRINTED AT OTHER SIZES ARE NOT NECESSARILY TO SCALE. 2. GENERAL CONTRACTOR SHALL FIELD VERIFY ALL DIMENSIONS AND ALL OTHER EXISTING CONDITIONS PRIOR TO THE COMMENCEMENT OF THE WORK AND NOTIFY THE ARCHITECT OF ANY DISCREPANCIES. 3. CONTRACTOR TO NOTIFY THE ARCHITECT IN WRITING IN THE EVENT OF A DISCREPANCY BETWEEN THE DRAWINGS AND THE FIELD CONDITIONS. IF IN THE COURSE OF CONSTRUCTION, A STRUCTURAL ISSUE EXISTS WHICH DISAGREES WITH THAT AS INDICATED ON THE DRAWINGS, THE CONTRACTOR SHALL STOP WORK AND NOTIFY THE ARCHITECT. SHOULD THE CONTRACTOR FAIL TO FOLLOW THIS PROCEDURE, THE CONTRACTOR SHALL ASSUME ALL RESPONSIBILITY AND LIABILITY ARISING THERE FROM. 4. ANY DAMAGE TO EXISTING AND OR NEW WORK IN PLACE BY THE CONTRACTOR’S OR SUBCONTRACTOR’S NEGLIGENCE SHALL BE REPAIRED AT NO ADDITIONAL COST TO THE OWNER. 5. ALL NOTES ARE APPLICABLE TO ALL TRADES AND RESPECTIVE CONTRACTORS. ALL NOTES TO BE REVIEWED AND APPLIED TO RELATED BUILDING COMPONENTS. ALL SHEETS ARE TO BE REVIEWED AND ALL APPLICABLE NOTES TO BE APPLIED. BUILDING ELEVATION AND SECTION NOTES: 1. HATCH PATTERNS ARE REPRESENTATIONAL ONLY LOCATING MATERIALS AND MATERIAL SYSTEMS. THEY DO NOT INDICATE EXACT PANEL SIZES OR CONFIGURATIONS. 2. COORDINATE LOCATION OF WINDOW ANCHORS, SEALANT POSITION AND CONTINUITY AND COMPATIBILITY OF SEALANTS WITH ADJACENT WORK INCLUDING MATERIALS AND OTHER CONTIGUOUS SEALANTS. C L L I , E R U T C E T H C R A S U K J A F T T A M mf 900 EAST 6TH STREET SUITE 100 AUSTIN, TX 78702 TEL: 512.432.5137 www.mfarchitecture.com BUILDING INFORMATION CHAPTER 7 FIRE AND SMOKE PROTECTION FEATURES FIRE RESISTANCE RATING REQ'S FOR EXTEROR WALLS BASED ON FIRE SEPARATION DISTANCE (TABLE 705.5) WALL LOCATION EAST SOUTH WEST NORTH DIST TO PROP LINE 5<X<10 10<X<30' X<5' X>30' OCCUPANCY GROUP A-2 1 0 1 0 FIRE WINDOW ASSEMBLY FIRE PROTECTION RATINGS REF TABLE 716.1(3) TYPE OF WALL ASSEMBLY EXTERIOR WALLS REQ'D WALL ASSEMBLY RATING (HRS) 1 MIN FIRE WINDOW ASSEMBLY RATING (HRS) 3/4 FIRE RATED GLAZING MARKING OH-45 OR W-60 WALL PROPOSED TO BE REBUILT TO MATCH ORIGINAL SIDING NEW SIGNAGE BY OTHER WALL SCONCE PROPOSED AREA FOR SIGNAGE CP-3 7" / 1'-0" 7" / 1'-0" CP-3 " 2 / 1 0 1 - ' 1 / " 2 …

Scraped at: March 30, 2026, 9:44 a.m.
April 1, 2026

05.1 - 1010 E Cesar Chavez St Briefing - letter and report original pdf

Thumbnail of the first page of the PDF
Page 1 of 6 pages

24023 March 23, 2026 URTH CAFFE: DETERIORATION REPORT Dear Members of the Historic Landmark Commission: This letter is intended to clarify the site conditions and field decisions that led to a greater degree of demolition than originally proposed during our 2024 presentation. First, we wish to acknowledge that the extent of the demolition exceeded initial expectations. However, the report below outlines the harsh structural realities discovered on-site that necessitated the difficult decision to retain a smaller percentage of the original envelope than planned. This report details the specific damage found on every demolished wall and the technical rationale behind those actions. We want to clarify that the sections currently remaining on-site should not be viewed as exempt from the systemic damage documented in this report. Rather, these sections were retained as part of a strategic, surgical effort to preserve specific components, with the ultimate goal of restoring the building to its full architectural glory. While a total preservation of the entire structure was our preferred approach, the extent of the systemic decay made such a path both structurally unsound and economically unfeasible. The team elected to focus preservation efforts on the primary, most significant facade. The other walls required reconstruction to properly integrate modern systems and ensure long-term viability. Our approach focuses on three key pillars: • Modern System Integration: Incorporating necessary waterproofing, structural reinforcement, and code-compliant utilities that the original compromised structure could no longer support. • Structural Longevity: Preventing the imminent failure that would have occurred had we attempted to patch the existing, deteriorated sections. • Historic Fidelity: Replicating all original detailing, profiles, and facade treatments with exacting precision to ensure the building’s visual contribution to the district remains unchanged. 24023 March 23, 2026 It is important to note that the intended use of the building and property has not changed; the property and building will function as a restaurant. The high- intensity operational needs of such a program placed cumulative stresses on the historic structure that it was never designed to handle. Over the years, these commercial requirements resulted in a level of internal deterioration that made total preservation a physical impossibility. Our primary objective is to reconstruct the building in a way that accommodates modern restaurant standards while maintaining the original historic detailing exactly as it was—without the threat of further damage. The evidence in this report supports the conclusion that the cumulative impact of previous …

Scraped at: March 30, 2026, 9:45 a.m.
April 1, 2026

06.0 - C14H-2026-0018 - 1906 Maple Ave - Hill-Thompson House original pdf

Thumbnail of the first page of the PDF
Page 1 of 3 pages

ZONING CHANGE REVIEW SHEET CASE NUMBER: C14H-2026-0018 HLC DATE: April 1, 2026 PC DATE: TBD CC Date: TBD APPLICANT: Historic Landmark Commission (commission-initiated) HISTORIC NAME: The Hill-Thompson House WATERSHED: Boggy Creek ADDRESS OF PROPOSED ZONING CHANGE: 1906 Maple Avenue, Austin, Texas 78722 ZONING CHANGE: SF-3-HD-NP to SF-3-H-HD-NP COUNCIL DISTRICT: 1 STAFF RECOMMENDATION: Staff recommends the proposed zoning change from family residence- historic district-neighborhood plan (SF-3-HD-NP) to family residence-historic landmark-historic districtneighborhood plan (SF-3-H-HD-NP) combining district zoning. QUALIFICATIONS FOR LANDMARK DESIGNATION: Historical associations and community value. HISTORIC LANDMARK COMMISSION ACTION: PLANNING COMMISSION ACTION: CITY COUNCIL ACTION: CASE MANAGER: Austin Lukes, 512-978-0766 NEIGHBORHOOD ORGANIZATIONS: Austin Independent School District, Austin Neighborhoods Council, Del Valle Community Coalition, East Austin Conservancy, Friends of Austin Neighborhoods, Homeless Neighborhood Association, Overton Family Committee, Preservation Austin, Rogers Washington Holy Cross, Upper Boggy Creek Neighborhood Planning Team DEPARTMENT COMMENTS: The 2016 East Austin Historic Resource Survey recommended the property as contributing to a potential local historic district. The property was subsequently listed as a contributing resource in the 2020 ordinance designating the Rogers Washington Holy Cross local historic district. BASIS FOR RECOMMENDATION: § 25-2-352(3)(c)(ii) Historical Associations. The property has long-standing significant associations with persons, groups, institutions, businesses, or events of historical importance that contributed significantly to the history of the city, state, or nation or represents a significant portrayal of the cultural practices or the way of life of a definable group of people in a historic time. The Hill-Thompson house has numerous significant historical associations, including with architect John Saunders Chase, zoologist and geneticist Oscar Leonard Thompson, and several generations of the prominent Hill family. John S. Chase was an Austin-based architect responsible for the designs of numerous houses and other buildings in the city, as well as around Texas, including several buildings and the campus master plan at Texas Southern University. In the early 1950s, Chase became the first African- American graduate of the University of Texas School of Architecture. Though he was unable to find work at any white firms after graduation, he would go on to have success with his own practice beginning in 1952. The types of projects that his firm was involved with were numerous and located throughout Texas. As historian Lori Martin writes, Chase’s documented Austin works—including the 1952 Colored Teachers State Association of Texas (CTSAT) David Chapel Missionary Baptist Church (1959), and the Phillips/Phillips- Banks (Della Phillips) House at 2310 E. Martin …

Scraped at: March 30, 2026, 9:45 a.m.
April 1, 2026

06.1 - C14H-2026-0018 - Application original pdf

Thumbnail of the first page of the PDF
Page 1 of 21 pages

City of Austin - Historic Preservation Office Historic Zoning Application Packet A. APPLICATION FOR HISTORIC ZONING PROJECT INFORMATION: DEPARTMENTAL USE ONLY APPLICATION DATE:__________________ FILE NUMBER(S) _____________________________________________ TENTATIVE HLC DATE: TENTATIVE PC or ZAP DATE:_________________ TENTATIVE CC DATE:_________________ CASE MANAGER _______________________________ APPLICATION ACCEPTED BY:________________________________________ CITY INITIATED: YES / NO ROLLBACK: YES/NO BASIC PROJECT DATA: 1. OWNER’S NAME:________________________________________________________________________________ 2. PROJECT NAME:________________________________________________________________________________ 3. PROJECT STREET ADDRESS (or Range): __________________________________________________________ ZIP__________________________ COUNTY:______________________________________ IF PROJECT ADDRESS CANNOT BE DEFINED ABOVE: LOCATED ____________ FRONTAGE FEET ALONG THE N. S. E. W. (CIRCLE ONE) SIDE OF ______________________________________ (ROAD NAME PROPERTY FRONTS ONTO), WHICH IS APPROXIMATELY _______________________________________ DISTANCE FROM ITS INTERSECTION WITH _________________________________________ CROSS STREET. AREA TO BE REZONED: 4. ACRES _________________ (OR) SQ.FT._______________ 5. ZONING AND LAND USE INFORMATION: EXISTING ZONING EXISTING USE __________ __________ __________ __________ __________ __________ TRACT# (IF MORE THAN 1) ________ ________ ________ ACRES / SQ. FT. PROPOSED USE PROPOSED ZONING _______________ _______________ _______________ _____________ _____________ _____________ ____________ ____________ ____________ RELATED CURRENT CASES: (YES / NO) 6. ACTIVE ZONING CASE? 7. RESTRICTIVE COVENANT? (YES / NO) (YES / NO) 8. SUBDIVISION? (YES / NO) 9. SITE PLAN? FILE NUMBER: ______________________________________ FILE NUMBER: ______________________________________ FILE NUMBER: ______________________________________ FILE NUMBER: ______________________________________ Adopted December 2012 6 Marilynn Poole BaileyThe Hill-Thompson House1906 Maple, Austin, Texas78722Travis7844.230.1801ResidentialSF-3-HD-NPResidentialSF-3-H-HD-NP7844.23 City of Austin - Historic Preservation Office Historic Zoning Application Packet F. 1: Historical Documentation - Deed Chronology Deed Research for (fill in address) ________________________________ List Deeds chronologically, beginning with earliest transaction first and proceeding through present ownership. The first transaction listed should date at least back to when the original builder of any historic structures on the site first acquired the property (i.e., should pre-date the construction of any buildings/ structures on the site). Please use the format delineated below. For each transaction please include: name of Grantor/Grantee, date of transaction, legal description involved, price, and volume/page number of deed records. If there is a mechanic's lien please copy the entire document. Adopted December 2012 10 1906 Maple, Austin, Texas 78702 City of Austin - Historic Preservation Office Historic Zoning Application Packet F. 2: Historical Documentation - Occupancy History Occupancy Research for (fill in address) ___________________________ Using City Directories available at the Austin History Center or other information available, please provide a chronology of all occupants of the property from its construction to the present. For commercial property, please provide residential information on business owner as well. Adopted December 2012 11 …

Scraped at: March 30, 2026, 9:45 a.m.
April 1, 2026

06.2 - C14H-2026-0018 - Presentation original pdf

Thumbnail of the first page of the PDF
Page 1 of 20 pages

Irene Hill Thompson House 1906 Maple Avenue Austin, TX 78722 Irene Hill Thompson House 1906 Maple Avenue Austin, TX 78722 Irene Hill Thompson House 1906 Maple Avenue Austin, TX 78722 Carport is a defining feature of the house Front porch covered in snow Irene Hill Thompson House 1906 Maple Avenue Austin, TX 78722 The Jerome Hill Family 50th Anniversary Standing: (L-R) Waldron Wray Hill Plicque, Don Plicque, Geraldine Holmes Hill, Dr. James L. Hill, Irene Hill Thompson, Doxey Hill (son), Norma Jean Hill Lewis, Ira Jerome Poole (young boy) Seated: (L to R) Marilynn Poole Webb, Laverne Hill Holland (daughter), Jerome and Ida Belle Hill, Lillie Hill, Ida Dawne Thompson (Irene’s daughter) Photo ca. 1965 at home of Irene Hill Thompson Irene Hill Thompson House 1906 Maple Avenue Austin, TX 78722 Irene Hill Thompson House 1906 Maple Avenue Austin, TX 78722 Building permits Irene Hill Thompson House 1906 Maple Avenue Austin, TX 78722 Architectural Drawings John S. Chase, AIA Irene Hill Thompson House 1906 Maple Avenue Austin, TX 78722 Architectural Drawings John S. Chase, AIA Irene Hill Thompson House 1906 Maple Avenue Austin, TX 78722 Architectural Drawings John S. Chase, AIA Irene Hill Thompson House 1906 Maple Avenue Austin, TX 78722 Architectural Drawings John S. Chase, AIA Irene Hill Thompson House 1906 Maple Avenue Austin, TX 78722 Architectural Drawings John S. Chase, AIA Irene Hill Thompson House 1906 Maple Avenue Austin, TX 78722 Architectural Drawings John S. Chase, AIA Irene Hill Thompson House 1906 Maple Avenue Austin, TX 78722 Irene Hill Thompson House 1906 Maple Avenue Austin, TX 78722 Congratulatory letter from U.S. Representative J.J. Pickle Irene Hill Thompson House 1906 Maple Avenue Austin, TX 78722 Irene Hill Thompson House 1906 Maple Avenue Austin, TX 78722 John Chase registers for classes at UT Chase in later years, Houston, TX Irene Hill Thompson House 1906 Maple Avenue Austin, TX 78722 Houston Chronicle April 1, 2012 The Hill family legacy celebrated by Huston-Tillotson College Alumni News, December 1978 Irene Hill Thompson House 1906 Maple Avenue Austin, TX 78722

Scraped at: March 30, 2026, 9:47 a.m.
April 1, 2026

07.0 - 709 Rio Grande St original pdf

Thumbnail of the first page of the PDF
Page 1 of 7 pages

HISTORIC LANDMARK COMMISSION Applications for Certificate of Appropriateness April 1, 2026 HR-2026-027581 Sayers House 709 Rio Grande Street 7 – 1 Proposal Rehabilitate a City of Austin landmark for use as a school. Project Specifications 1) Repair or rehabilitate exterior character-defining features, including windows, doors, masonry, and balconies. 2) Construct life safety, accessibility, and systems updates as required. Work will take place at both the interior and the exterior of the building. Architecture This landmark is an excellent example of a high-style American Foursquare form, with several Classical Revival elements that make it stand out from other examples of the same building form. It features a prominent front porch and balcony, with several 12-over-1 windows on the front and narrow 1-over-1 fixtures at the sides and rear. There is a decorative cornice element that wraps around the house, and the balcony balustrade features embellishments as well. The structure remains in good condition. Design Standards The City of Austin’s Historic Design Standards (March 2021) are based on the Secretary of the Interior’s Standards for Rehabilitation and are used to evaluate projects at historic landmarks. The following standards apply to the proposed project: Repair and alterations 1. General standards The application describes the priority to retain and repair where possible, and replacement of historic material to occur only when necessary due to material loss or cumulative damage over time. Alterations made for safety or accessibility reasons will read as distinct but will not overwhelm the historic forms or material. 2. Foundations Foundations are to undergo significant reinforcement and shoring to support the continued weight of the building, but none of the work will be visible from the street due to the exterior foundation walls. No plans are included to raise or lower the overall height of the foundation, and no visual changes are anticipated as a result of the work. 3. Roofs No work is proposed at the roof, as it is determined to be in good condition. 4. Exterior walls and trim Existing stucco and brick is currently painted, and the proposed work includes a new color paint to be installed. Due to the existing situation, there are no additional concerns with adding another layer. 5. Windows, doors, and screens First floor windows, currently covered, will be uncovered and the existing material repaired. Otherwise, windows are to be retained and repaired. One window, to be converted to a door for egress, …

Scraped at: March 30, 2026, 9:47 a.m.
April 1, 2026

07.1 - 709 Rio Grande St - Photos & Drawings original pdf

Thumbnail of the first page of the PDF
Page 1 of 35 pages

6 2 0 2 N A J 3 2 6 5 1 4 2 C A 1 3 r e b m u N j t c e o r P e g a P I I N O T A Z N R E D O M . T S E D N A R G O R 9 0 7 I PROJECT 709 RIO GRANDE ST. MODERNIZATION 0 0 0 - G PROJECT NUMBER 31AC24156 709 RIO GRANDE ST. AUSTIN, TX. 78701 CLIENT HEADWATERS SCHOOL Page Southerland Page, Inc. 200 W. 6th, Suite 1800 Austin, TX 78701 pagethink.com TEL 512 472 6721 FAX 512 477 3211 ARCHITECTURE / ENGINEERING / INTERIORS / PLANNING / CONSULTING Albany / Albuquerque / Atlanta / Austin / Boston / Charleston / Dallas / Denver / Dubai / Houston / Los Angeles / Mexico City / New York City / Orlando / Phoenix / Raleigh / Richmond / San Antonio / San Francisco / Tampa / Washington DC ORIGINAL ISSUE ISSUED FOR CONSTRUCTION 23 JAN 2026 CONSULTANT TEAM PROFESSIONAL SEALS CIVIL ENGINEERING GARZA EMC 9442 N CAPITAL OF TEXAS HIGHWAY PLAZA 1, SUITE 340 AUSTIN, TX 78759 512-325-3945 MEP & STRUCTURAL ENGINEERING INFINITIY MEP+S 53162 US HWY 290 SERVICE RD SUITE 480 AUSITIN, TX 78735 512-692-9224 HISTORICAL CONSULTANT HORIZON ENVIRONMENTAL SERVICES 1507 S. INTERSTATE 35 Address Line 2 AUSTIN, TX 78741 512-328-2430 - t v r . L A R T N E C - 3 2 R A - 6 5 1 4 2 C A 1 3 / e d n a r G o R 9 0 7 - i s r e t a w d a e H - 6 5 1 4 2 C A 1 3 / / : s c o D k s e d o u A t : E M A N E L F I M A 0 0 : 6 0 : 0 1 6 2 0 2 / 7 2 1 / : P M A T S E T A D : E M A N R E S U T E E R T S E D N A R G O R I WEST 8TH STREET #8103 490 CONCRETE PAVING 491 4 9 3 CONCRETE PAVING #69 #70 PROPERTY LINE CONCRETE RETAINING WALL AND STEPS CONCRETE STEPS AND PAVING #8104 489 #8102 CONCRETE PAVING CONCRETE PAVING …

Scraped at: March 30, 2026, 9:47 a.m.
April 1, 2026

08.0 - 713 Congress Ave original pdf

Thumbnail of the first page of the PDF
Page 1 of 2 pages

HISTORIC LANDMARK COMMISSION Applications for Certificate of Appropriateness April 1, 2026 HR-2026-028338 Paramount Theater 713 Congress Avenue 8 – 1 Proposal Remove and replace a non-historic storefront system at the main entry of the theater lobby. Project Specifications 1) Remove the existing, glazed storefront, featuring three sets of double entry doors spread across the assembly. 2) Install a new, glazed storefront, with three sets of double doors located at the center of the assembly. The new storefront will include ADA-compatible features such as a push-paddle switch attached to a freestanding bollard. Design Standards The City of Austin’s Historic Design Standards (March 2021) are based on the Secretary of the Interior’s Standards for Rehabilitation and are used to evaluate projects at historic landmarks. The following standards apply to the proposed project: Repair and alterations 1. General standards All material proposed to be removed is non-historic. Material is deteriorated from general use over time, and lacks certain accessibility requirements. The new assembly will be simple in style and will not be mistaken for original to the building. 4. Exterior walls and trim An existing, though not historic, stone sill may be used as a base for the new storefront. 5. Windows, doors, and screens Window glazing will be tempered glass and framing will be painted wood, and will appear similar to the storefront that is currently installed. 11. Commercial storefronts Clear glass is recommended to meet the design standards. Overall design is simple and has a standard three-part storefront assembly design, which reads as appropriate to the building. Summary The project meets the applicable standards. Department Comments This application will time out on June 15, 2026. Architectural Review Committee Feedback Historic Landmark Commission review authority only extends to the building exterior. However, doorways and glazing may be part of their review authority. Provide architectural drawings showing the doors centered on the building. Staff Recommendation Approve the Certificate of Appropriateness. Location Map 8 – 2

Scraped at: March 30, 2026, 9:48 a.m.
April 1, 2026

08.1 - 713 Congress Ave - Drawings & Photos original pdf

Thumbnail of the first page of the PDF
Page 1 of 10 pages

A B C D E F T C A R T N O C N I T O N ROOF LEVEL 55' - 2 25/32" GRIDIRON 54' - 0 1/2" UPPER BALCONY LEVEL 44' - 2 1/2" DEMOLISH EXISTING NON- HISTORIC WOOD STOREFRONT FRAMING, TYP. REMOVE EXISTING WOOD DOORS AND PREP FOR REINSTALLATION 4 WOOD STOREFRONT DEMOLITION A4.1 SCALE: 1/4" = 1'-0" LOUNGE LEVEL 23' - 7" RE-INSTALLED EXISTING PAINTED WOOD DOORS NEW WOOD STOREFRONT FRAMING, TYP. PAINT FINISH TO MATCH EXISTING MEZZANINE LEVEL 15' - 3" 1" TEMPERED INSULATED GLAZING UNIT, TYP. 6 A4.1 7 A4.1 INNER LOBBY LEVEL 3' - 6" OUTER LOBBY LEVEL 1' - 8 3/4" 2 A4.1 3 A4.1 POWDER-COATED BOLLARD WITH ADA OPERATOR PUSH-BUTTON 8 A4.1 STONE SILL " 0 1 - ' 2 EQ2 EQ1 EQ1 EQ1 EQ1 EQ1 EQ2 30' - 9 1/2" V.I.F. NO CHANGE TO ROUGH OPENING DEMOLISH EXISTING TRANSOM - NO CHANGE TO EXISTING LINTEL DEMOLISH FRAME, TYP. PAINT FINISH REMOVE EXISTING WOOD DOORS TO BE REINSTALLED DEMOLISH STAIR LANDING INSIDE THE BUILDING AND POUR NEW SLAB-ON-GRADE LOWER TO ALIGN WITH SIDEWALK 5 SOUTH EGRESS DOOR DEMOLITION A4.1 SCALE: 1/4" = 1'-0" 1" TEMPERED INSULATED GLAZING UNIT, TYP. 6 A4.1 NEW WOOD STOREFRONT FRAMING, TYP. PAINT FINISH RE-INSTALLED EXISTING WOOD DOORS - SILL TO ALIGN WITH SIDEWALK INNER LOBBY LEVEL 3' - 6" OUTER LOBBY LEVEL 1' - 8 3/4" " 8 / 7 9 - ' 2 " 2 - ' 7 INNER LOBBY LEVEL 3' - 6" OUTER LOBBY LEVEL 1' - 8 3/4" INNER LOBBY LEVEL 3' - 6" OUTER LOBBY LEVEL 1' - 8 3/4" I G N N E P O H G U O R O T E G N A H C O N " 7 - ' 1 " 8 / 5 8 - ' 6 " 2 / 1 0 1 INNER LOBBY LEVEL 3' - 6" OUTER LOBBY LEVEL 1' - 8 3/4" 1 WEST EXTERIOR ELEVATION A4.1 SCALE: 1/8" = 1'-0" 2 NEW WOOD STOREFRONT ELEVATION A4.1 SCALE: 1/4" = 1'-0" 3 SOUTH EGRESS DOOR ELEVATION A4.1 SCALE: 1/4" = 1'-0" EXISTING CEILING AND CROWN MOULDING TO REMAIN ADA AUTOMATIC DOOR OPERATOR AS OCCURS - ANODIZED BRONZE CASING NEW CONCRETE SLAB ON GRADE WITH VAPOR BARRIER AND PREPARED SUBGRADE - REFER TO STRUCTURE EXISTING MARQUEE - NO CHANGE PATCH, SKIMCOAT, AND REPAINT EXISTING PLASTER SOFFIT FOLLOWING INSTALLATION OF …

Scraped at: March 30, 2026, 9:48 a.m.
April 1, 2026

09.0 - 1005 E 8th St original pdf

Thumbnail of the first page of the PDF
Page 1 of 7 pages

HISTORIC LANDMARK COMMISSION Applications for Certificate of Appropriateness April 1, 2026 PR-2026-008188; GF-2026-025308 Robertson/Stuart & Mair Historic District 1005 East 8th Street 9 – 1 Proposal Demolish a ca. 1906 house listed as contributing to a local historic district. Architecture The house at 1005 East 8th St. was likely originally constructed as a single story building, with the sloping elevation of the site creating a crawlspace or cellar to the east side of the building footprint. Since its construction, this has been enclosed, and a rear addition built, increasing the enclosed area of the building. However, the U-shaped form and Folk Victorian elements still read legibly, and decorative elements, especially at the front porch and gable ends, remain present. The integrity of the architecture is strong and the property remains contributing to the Robertson/Stuart & Mair historic district. Research For the first 30 years after construction, the property went through a series of renters, made up of families and individuals employed by various local industries and services, including carpenters, foundry workers, and porters. The first long term owners were Ernest & Marie Kemp, who operated a local grocery. Marie Kemp continued to live at the address after her husband’s death, but by the 1950s, the property was vacant before becoming subdivided for oil industry and other professional offices. A third housing unit was added in 1970, indicating that this property continued use as residential rentals. An overnight fire occurred at the property on November 12th, 20251. Department Comments This application will time out on June 15, 2026. Property Evaluation The property contributes to the Robertson/Stuart & Mair Historic District. Staff Recommendation Grant the applicant-requested postponement to the May 6, 2026 Historic Landmark Commission meeting. 1 “Firefighter injured in East Austin house fire, investigation underway”. https://cbsaustin.com/news/local/afd-responding-to- house-fire-in-east-austin-no-injuries-reported Location Map 9 – 2 Property Information Photos 9 – 3 Texas Historical Commission, photograph, May 29, 1975. The Portal to Texas History. Google Streetview, 2024 Occupancy History City Directory Research, March 2026 9 – 4 1959 1957 1955 1952 1949 1947 1944 1941 1939 1935 1932 1929 1927 1924 1922 1920 1918 1916 1914 1912 1909 1906 Offices: Norman Texas Company; Roche Oil Company; Pierre Aubuchon, engineer; Hamco Oil & Drilling Vacant Vacant Joseph & Maria Tamayo, owners; painter at South Lamar Automotive Service Same as above Alfredo, Joseph, and Maria Tamayo, renters; mechanic at Bergstrom Airfield Anna Kamp, widow of EG, owner …

Scraped at: March 30, 2026, 9:54 a.m.
April 1, 2026

09.1 - 1005 E 8th St - Photos original pdf

Thumbnail of the first page of the PDF
Page 1 of 7 pages

Backup

Scraped at: March 30, 2026, 9:54 a.m.
April 1, 2026

10.0 - 1107 W 9th St original pdf

Thumbnail of the first page of the PDF
Page 1 of 5 pages

HISTORIC LANDMARK COMMISSION Applications for Certificates of Appropriateness April 1, 2026 HR-2026-021800 Castle Hill Historic District 1107 West 9th Street 10 – 1 Proposal Renovate existing house. The non-contributing rear house will also be modified. Project Specifications 1) Replace existing siding with painted wood ship lap. 2) Construct new 8’0” steel fence. 3) Replace existing undivided windows with wood 1:1 windows at first floor, fixed-pane undivided square windows at dormers, and fixed-pane picture window at existing picture window. 4) Construct rear addition with dormer. 5) Remove chimney from east dormer. 6) Replace existing roof with flat terra cotta tiles and metal shingles at rear addition. Architecture A 2010 historic zoning application describes the building as follows: The house is one-and-a-half stories with a hipped roof, hipped dormers, and a wraparound porch…Above the front door there is a transom, an integral part of architecture of the period as well…The house still has 7 working transoms throughout the inside, which helped to circulate the air between rooms…The house has had a number of changes over the years. The house first appears on the 1922 Sanborn Fire Insurance Company map and shows a smaller footprint…[it] had a porch stretching all the way across the front of the house and another one along the east side. …Between 1922 and 1935, design of the house was modified to include a bay window, extend the sides and include a small porch in the middle of the back of the house. In 1962 the house was modified again — the bay window was brought forward a few feet onto the porch to create a larger living room inside — which eliminated the front porch in front of this window, and the back part of the side porch was enclosed to enlarge the bedroom. In 2008 the kitchen…was extended slightly to the rear…In 2010 the front porch was restored to again extend all the way across the front of the house (and free one of the original porch pillars from the wall built in 1962) by moving a modified version of the bay window back (Tim Cuppett was also the architect for this project). All of the finishes and details on the outside of the house are original with the exception of the new bay window.1 However, former Historic Preservation Officer Steve Sadowsky noted that the 2010 addition likely destroyed original fabric at the front of the house: …

Scraped at: March 30, 2026, 9:55 a.m.
April 1, 2026

10.1 - 1107 W 9th St - drawings and photos original pdf

Thumbnail of the first page of the PDF
Page 1 of 17 pages

MULLIKIN RESIDENCE - RENOVATIONS & ADDITIONS 2505 1107 W 9TH STREET, AUSTIN, TX 78703 PROJECT NO. HISTORIC REVIEW SUBMITTAL XX FEBRUARY 2026 SHEET # SHEET NAME Δ REVISION DATE ARCHITECTURE A0.00 A0.01 A0.11 A0.12 A0.13 A0.14 A0.15 A1.00M A1.01M A1.02M A1.03M A2.01M A2.02M A1.01G A1.02G A2.01G SURVEY SITE PLAN MAIN HOUSE EXIST. FIRST FLOOR PLAN MAIN HOUSE EXIST. SECOND FLOOR PLAN MAIN HOUSE EXIST. ROOF PLAN GUEST HOUSE EXIST. FLOOR PLANS GUEST HOUSE EXIST. ROOF PLAN MAIN HOUSE CRAWL SPACE PLAN MAIN HOUSE FIRST FLOOR PLAN MAIN HOUSE SECOND FLOOR PLAN MAIN HOUSE ROOF PLAN MAIN HOUSE EXTERIOR ELEVATIONS MAIN HOUSE EXTERIOR ELEVATIONS GUEST HOUSE FLOOR PLANS GUEST HOUSE ROOF PLAN GUEST HOUSE EXTERIOR ELEVATIONS ARCHITECT Andersson Wise Architects 807 Brazos St., Suite 800 Austin, TX 78701 T 512.476.5780 F 512.476.0858 BUILDER Rauser Construction 5904 Grover Avenue Austin, TX 78757 T 512-481-8444 STRUCTURAL ENGINEER MJ Structures 3005 South Lamar Boulevard, Suite D-109 #467 Austin, TX 78704 T 512-693-9500 MECHANICAL ENGINEER CES 1370 Pantheon Way Suite #290 San Antonio, TX 78232 T 210-686-1614 23 NOT FOR REGULATORY APPROVAL, PERMITTING OR CONSTRUCTION © COPYRIGHT THESE DRAWINGS ARE PROPERTY OF THE ARCHITECT AND MAY NOT BE REPRODUCED WITHOUT THE PERMISSION OF A REPRESENTATIVE OF ANDERSSON WISE ARCHITECTS INC. ANDERSSON / WISE 807 BRAZOS STREET, SUITE 800 AUSTIN, TX 78701 T 512.476.5780 MULLIKIN RESIDENCE - RENOVATIONS & ADDITIONS PROJECT NO. 2505 1107 W 9TH STREET, AUSTIN, TX 78703 ISSUE DATE : ∆ REVISIONS XX FEB 2026 HISTORIC REVIEW SUBMITTAL SURVEY A0.00 23 KEYNOTES 02.23 02.24 02.25 02.27 03.19 03.20 03.21 05.27 05.28 05.29 22.10 23.09 23.10 32.16 EXISTING STEEL EDGING TO REMAIN. EXISTING PLANTING BED WITH PEA GRAVEL TO REMAIN. EXISTING TREE TO REMAIN. EXISTING CONCRETE WALK TO REMAIN. RETAINING WALL. CONCRETE DRIVE EXISTING RETAINING WALL CUSTOM STEEL FENCE, 8'-0" TALL; OR ALTERNATE LOW METAL FENCE. CUSTOM STEEL GATE. CUSTOM STEEL FENCE, 8'-0" TALL. WATER HEATER. GAS SERVICE ENTRANCE. CONDENSING UNIT. STONE PAVING AND LANDSCAPE DESIGN - TBD. 181'-5 3/4" 05.27 03.19 23.10 05.29 PROPERTY LINE 03.20 22.10 03.21 GUEST HOUSE MAIN HOUSE Y E L L A " 0 - ' 0 5 UP 05.27 32.16 PROPERTY LINE 03.19 23.09 05.28 183'-6" 02.27 02.25 " 0 - ' 0 5 02.24 02.23 T E E R T S H T 9 T S E W 1 SITE PLAN Scale: 1/8" = 1'-0" NOT FOR REGULATORY APPROVAL, PERMITTING OR CONSTRUCTION © COPYRIGHT THESE DRAWINGS …

Scraped at: March 30, 2026, 9:55 a.m.
April 1, 2026

10.2 - 1107 W 9th St - denied H zoning original pdf

Thumbnail of the first page of the PDF
Page 1 of 26 pages

ZONING CHANGE REVIEW SHEET CASE NUMBER: C14W2010-0022 HLC DATE: PC DATE: June 28. 2010 July26, 2010 December 13, 2010 February 22, 2011 APPLICANTS: Albert Percival, III and Kevin “Chuck” Hughes, owners HISTORIC NAME: Bones-Stokes House WATERSHED: Shoal Creek ADDRESS OF PROPOSED ZONING CHANGE: 1107 w qth Street ZONING FROM: SF3NP to SF3H-NP SUMMARY STAFF RECOMMENI)ATION: Staff cannot recommend the proposed zoning change from family residence — neighborhood plan (SF-3-NP) combining district to family residence — historic landmark — neighborhood plan (SF3-H-NP) combining district zoning because of recent significant modifications to the front of the house. The house is in the proposed Castle Hill Local Historic District. QUALIFICATIONS FOR LANDMARK DESIGNATION: Staff cannot recommend this house for designation as a historic landmark because the architectural character of the house changed substantially in the last year. The house had a projecting canted bay on the right side of the façade, which staff believes was original to the house in form, despite depictions on historical Sanhorn Fire Insurance Company maps. The canted bay was pushed forward several feet in a 1962 remodeling of the house, but still retained its essential form, if not location. In 2010, the owners replaced the canted bay with a boxed picture window, which, while sensitively designed, has compromised the historic appearance of the house to the extent that staff cannot recommend the house for individual designation as it no longer retains sufficient integrity of materials and design to convey’ its historic appearance. HISTORIC LANDMARK COMMISSION ACTION: June 28, 2010: Postponed the case to July 26, 2010 at staffs request so that the applicants could meet with the Certificate of Appropriateness Committee for discussion of the new window on the July 26, 2010: Recommended denial of the proposed zoning façade of the house. change from SF3NP to SF3HNP due to the recent installation of the front window which has compromised the historic appearance of the house. Vote: 6-0 (Kleon absent). NOTE: The applicants were not present at the July 26, 2010 hearing and request a re-hearing of their application. December 13, 2010: The Commission’s action on July 26, 2010 to recommend denial of the proposed zoning change was not rescinded. The motion to rescind failed on a vote of 2-4 (Limbacher, Hansen. Kleon and Meyers opposed; Rosato absent). PLANNING COMMISSION ACTION: Recommended denial of the proposed zoning change from SF-3-NP to SF-3-H-NP due to the modifications to the front …

Scraped at: March 30, 2026, 10 a.m.
April 1, 2026

10.3 - 1107 W 9th St - letter original pdf

Thumbnail of the first page of the PDF
Page 1 of 2 pages

March 24, 2026 Kalan Contreras Principal Planner, Historic Preservation Office Austin Planning Dear Ms. Contreras, Here are responses to your questions: Q1: Will the existing window screens remain on the windows? It’s a little hard to tell in the photos, but it looks like there are currently exterior storm screens installed. Response: No. The windows will be replaced, including the screens. Q2: Will window openings at the main elevation change in size at all? Response: Yes. Two windows will be added to the living room, beside the existing two windows, matching the same size and proportion. Additionally, two windows at the dormer will be replaced with three. Q3: Will the height of the existing dormers change to accommodate the new windows? Response: No. Q4: Are there historic photos of the building showing a precedent for the tile roof? Response: Unknown. We could not find historic photos of the building. Q5: Could you please provide a close-up of the existing door and sidelight/transom? It’s a little hard to see in the photos provided on the plans. Response: Yes. See attached photo. Q6: Do you know when the existing trim was installed? (I’m assuming it was back in 2010ish when the front bay window was modified, but it will help to know if the trim appears older that that.) Response: No. Q7: Is the chimney to be removed entirely? Response: Yes. Q8: Can you include images of the proposed fence and gate to be installed? Response: No. The fence and gate have not yet been designed. Sincerely, Nathan Griffith, AIA Senior Project Manager 807 Brazos Street, Suite 800 Austin, Texas 78701 1001 Bannock Street, Suite 40, Denver, CO 80204 www.anderssonwise.com 512 476 5780 807 Brazos Street, Suite 800 Austin, Texas 78701 1001 Bannock Street, Suite 40, Denver, CO 80204 www.anderssonwise.com 512 476 5780

Scraped at: March 30, 2026, 10 a.m.
April 1, 2026

11.0 - 4010 Avenue B original pdf

Thumbnail of the first page of the PDF
Page 1 of 9 pages

HISTORIC LANDMARK COMMISSION Applications for Certificate of Appropriateness April 1, 2026 HR-2026-027548 Hyde Park Historic District 4010 Avenue B 11 – 1 Proposal Rehabilitate a contributing property and construct a single-family house in an adjacent vacant lot. Construct two garage structures at rear alley. Project Specifications 1) Repair and rehabilitate the existing house at 4010 Avenue B. 2) Construct a single-story rear addition behind the existing house, approximately 420 square feet in size. 3) Construct a two-story residence to one side of the existing house, currently an empty lot. Proposed design is similar in form to the existing and approximately 1700 square feet in size. 4) Construct two garage structures at the rear of the property behind the two houses, each approximately 528 square feet in footprint. These structures will be oriented to the rear alley, and no curb cuts are proposed at the Avenue B streetfront. Architecture The existing house, which is listed in city directories since at least 1900, is a two-story structure with an asymmetric appearance when viewed from the street. There is a front porch that occupies the left half of the front elevation, supported by wood posts. A front room projects toward the street at the right with a gabled roof above. The house is clad in horizontal wood siding and retains good integrity from the period. Alterations have been minor and appropriate to the original construction. Design Standards The Hyde Park Design Standards are used to evaluate projects within the historic district. The following standards apply to the proposed project: 1. General Standards 1.2. Retention of Historic Style Repair, rather than replacement, is proposed for materials at the property. No apparent alterations are to be made at the original house, with the exception of a rear addition minimally visible from the street and compatible to the overall design and style. 1.3. Avoidance of False Historicism As stated above, repair of the existing material will not attempt to alter the original appearance of the property. At the new construction to the side, the design is largely deferential to the historic and will not create the appearance of having been constructed at the same time. 3. Residential Standards: Single Family and Contributing Multifamily – Preservation and Restoration 3.1. Front of Houses Wood panel siding on the second floor is proposed to be replaced, though this was installed in the 1980s and not original to the building. …

Scraped at: March 30, 2026, 10 a.m.
April 1, 2026

11.1 - 4010 Avenue B - Photos & Drawings original pdf

Thumbnail of the first page of the PDF
Page 1 of 9 pages

Backup

Scraped at: March 30, 2026, 10:01 a.m.
April 1, 2026

11.2 - 4010 Avenue B - Updated Drawings original pdf

Thumbnail of the first page of the PDF
Page 1 of 12 pages

GENERAL NOTES Codes 2021 International Residential Code 2020 National Electric Code 2021 Uniform Plumbing Code 2021 Uniform Mechanical Code Visit link below for more information https://publicinput.com/2021TechnicalCodeChanges 1. It is the intent of these Contract Documents to establish a high quality level of material and workmanship, but not necessarily to note and call for every last item of work to be done. Any item not specifically covered but deemed necessary for satisfactory completion of the work shall be accomplished by the Contractor in a manner consistent with the quality of work without additional cost to the owner. All material and methods of installation shall be in accordance with industry standards and manufacturer's recommendations. 2. The Contractor shall be responsible for a thorough review of all drawings specifications and existing conditions prior to commencement of work. This includes but is not limited to site utilities and the structural scope of work. The failure of the Contractor to report discrepancies and seek modification or change prior to commencement of work shall be construed as full acceptance of the condition in question by the Contractor. The Contractor shall assume responsibility for all work depicted by the Contract Documents regardless of whether the Subcontractors agree as to whose jurisdiction certain areas of the scope of work are under. 3. It shall be assumed that the Contractor and the Subcontractors are sufficiently experienced to be considered qualified in their respective work responsibilities. The Contractor shall insure that the Owner receives acceptable workmanship common to the industry from all Subcontractors and material suppliers and is responsible for hiring qualified staff personnel and/ or Subcontractors as necessary. 4. The Contractor shall verify the location of all existing utilities so that the work may proceed safely and be coordinated among all Subcontractors and personnel involved. The Contractor shall notify the Owner and Designer in advance of any work required by public utility entities that will affect the cost of schedule of the work. 5. The contractor shall meet all safety requirements applicable in the city of Austin and maintain a safe working environment for all personnel and occupants during the entire project. The jobsite is to be kept orderly and as clean as possible during all construction activities. 6. This drawing set is provided to communicate only the basic design of the building. Structural design by others, all plumbing and Electrical shall also be design build and shall be …

Scraped at: March 30, 2026, 10:01 a.m.
April 1, 2026

12.0 - 2502 Wooldridge Dr original pdf

Thumbnail of the first page of the PDF
Page 1 of 7 pages

HISTORIC LANDMARK COMMISSION Applications for Permits in National Register Historic Districts April 1, 2026 HR-2026-017990 Old West Austin Historic District 2502 Wooldridge Drive 12 – 1 Proposal Construct a new carport and storage space, construct a new front porch structure, revise the roofline, and install new windows. Project Specifications 1) Construct a carport at the existing curb cut, and pour a new driveway in the location of an existing driveway. 2) Construct a storage room behind the proposed carport, along with a gym and pantry to be connected to the side of the main house. 3) Construct a new front porch and roof structure extending across the full front of the original house. Architecture House is a two-story, L-shaped plan that features some early ranch-style elements. These are noticeable at the original ground floor, where the horizontality is emphasized when viewed from the street. The walls at this floor are clad in white cast stone, and the second floor with vinyl siding. The roof is set at a shallow-to-moderate pitch, which is gabled on the ground floor and hipped above. Though it has been heavily added on to, the original contributing structure remains legible. Research After construction in the early 1940s, the house was first owned by Walter & Leona Moore, who were both retired. By 1947, Walter Moore passed away, and Leona lived at the property until her passing in 1958. The property was then purchased by France & Eugene Tips. Design Standards The City of Austin’s Historic Design Standards (March 2021) are based on the Secretary of the Interior’s Standards for Rehabilitation and are used to evaluate projects in National Register districts. The following standards apply to the proposed project: Residential additions 1. Location Additions are mostly to the side of the house, with the porch alterations occurring directly at the front of the property. However, this work does not add interior square footage, but rather alters the roof at this location into a flat assembly. This is not in keeping with the intention of the design standards, but does not run counter to them either. 2. Scale, massing, and height Additions are a single story, and to the side of the property, creating a massing behind the front line of the house and largely out of the way. 3. Design and style Proposed additions largely match the existing in style and design, but the scale and form …

Scraped at: March 30, 2026, 10:01 a.m.