Historic Landmark CommissionApril 1, 2026

08.1 - 713 Congress Ave - Drawings & Photos — original pdf

Backup
Thumbnail of the first page of the PDF
Page 1 of 10 pages

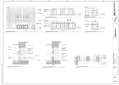
A B C D E F T C A R T N O C N I T O N ROOF LEVEL 55' - 2 25/32" GRIDIRON 54' - 0 1/2" UPPER BALCONY LEVEL 44' - 2 1/2" DEMOLISH EXISTING NON- HISTORIC WOOD STOREFRONT FRAMING, TYP. REMOVE EXISTING WOOD DOORS AND PREP FOR REINSTALLATION 4 WOOD STOREFRONT DEMOLITION A4.1 SCALE: 1/4" = 1'-0" LOUNGE LEVEL 23' - 7" RE-INSTALLED EXISTING PAINTED WOOD DOORS NEW WOOD STOREFRONT FRAMING, TYP. PAINT FINISH TO MATCH EXISTING MEZZANINE LEVEL 15' - 3" 1" TEMPERED INSULATED GLAZING UNIT, TYP. 6 A4.1 7 A4.1 INNER LOBBY LEVEL 3' - 6" OUTER LOBBY LEVEL 1' - 8 3/4" 2 A4.1 3 A4.1 POWDER-COATED BOLLARD WITH ADA OPERATOR PUSH-BUTTON 8 A4.1 STONE SILL " 0 1 - ' 2 EQ2 EQ1 EQ1 EQ1 EQ1 EQ1 EQ2 30' - 9 1/2" V.I.F. NO CHANGE TO ROUGH OPENING DEMOLISH EXISTING TRANSOM - NO CHANGE TO EXISTING LINTEL DEMOLISH FRAME, TYP. PAINT FINISH REMOVE EXISTING WOOD DOORS TO BE REINSTALLED DEMOLISH STAIR LANDING INSIDE THE BUILDING AND POUR NEW SLAB-ON-GRADE LOWER TO ALIGN WITH SIDEWALK 5 SOUTH EGRESS DOOR DEMOLITION A4.1 SCALE: 1/4" = 1'-0" 1" TEMPERED INSULATED GLAZING UNIT, TYP. 6 A4.1 NEW WOOD STOREFRONT FRAMING, TYP. PAINT FINISH RE-INSTALLED EXISTING WOOD DOORS - SILL TO ALIGN WITH SIDEWALK INNER LOBBY LEVEL 3' - 6" OUTER LOBBY LEVEL 1' - 8 3/4" " 8 / 7 9 - ' 2 " 2 - ' 7 INNER LOBBY LEVEL 3' - 6" OUTER LOBBY LEVEL 1' - 8 3/4" INNER LOBBY LEVEL 3' - 6" OUTER LOBBY LEVEL 1' - 8 3/4" I G N N E P O H G U O R O T E G N A H C O N " 7 - ' 1 " 8 / 5 8 - ' 6 " 2 / 1 0 1 INNER LOBBY LEVEL 3' - 6" OUTER LOBBY LEVEL 1' - 8 3/4" 1 WEST EXTERIOR ELEVATION A4.1 SCALE: 1/8" = 1'-0" 2 NEW WOOD STOREFRONT ELEVATION A4.1 SCALE: 1/4" = 1'-0" 3 SOUTH EGRESS DOOR ELEVATION A4.1 SCALE: 1/4" = 1'-0" EXISTING CEILING AND CROWN MOULDING TO REMAIN ADA AUTOMATIC DOOR OPERATOR AS OCCURS - ANODIZED BRONZE CASING NEW CONCRETE SLAB ON GRADE WITH VAPOR BARRIER AND PREPARED SUBGRADE - REFER TO STRUCTURE EXISTING MARQUEE - NO CHANGE PATCH, SKIMCOAT, AND REPAINT EXISTING PLASTER SOFFIT FOLLOWING INSTALLATION OF NEW STOREFRONT NEW WOOD TRANSOM - PAINTED EXTERIOR, STAINED INTERIOR NEW WOOD FRAME FOR EXISTING WOOD DOOR - PAINTED EXTERIOR, STAINED INTERIOR EXISTING STONE RETURNS - NO CHANGE NEW ANODIZED BRONZE THRESHOLD INNER LOBBY LEVEL 3' - 6" OUTER LOBBY LEVEL 1' - 8 3/4" EXISTING MARQUEE - NO CHANGE PATCH, SKIMCOAT, AND REPAINT EXISTING PLASTER SOFFIT FOLLOWING INSTALLATION OF NEW STOREFRONT NEW WOOD TRANSOM - PAINTED EXTERIOR, STAINED INTERIOR NEW WOOD STOREFRONT - PAINTED EXTERIOR, STAINED INTERIOR INNER LOBBY LEVEL 3' - 6" EXISTING STONE RETURNS - NO CHANGE STONE SILL - RE-USE EXISTING OUTER LOBBY LEVEL 1' - 8 3/4" 6 WALL SECTION @ STOREFRONT DOORS A4.1 SCALE: 1" = 1'-0" 4 7/8" 2" 1 1/2" 7 WALL SECTION @ STOREFRONT A4.1 SCALE: 1" = 1'-0" 4 1/4" 3/8" 2 6 2 6 " 4 / 3 " 4 " 2 " 4 / 3 " 2 8 PLAN DETAIL - STOREFRONT FRAME A4.1 SCALE: 3" = 1'-0" 3/8" 4 1/4" 3/8" " 4 / 3 " 4 " 2 " 4 / 3 2 6 3" INTERIOR HARDWOOD CASING FOR STAIN FINISH NEW HARDWOOD JAMB FOR STAIN FINISH DRAINABLE BUILDING WRAP, SHOWN DASHED EXISTING DOOR NEW EXTERIOR WOOD TRIM, FOR PAINT FINISH 2X6 WOOD FRAMING 1 2 3 4 5 M P 0 4 : 0 2 : 2 1 6 2 0 2 / 5 / 3 p u o r G R L D © N - R CTIO OT FO U STR N - N O C e r t a e h T t n u o m a r a P e c n a i l l A e r t a e h T n i t s u A 1 0 7 8 7 s a x e T n i t s u A , e v A s s e r g n o C 3 1 7 , e r t a e h T t n u o m a r a P DESIGN DEVELOPMENT 1/30/2026 REVISIONS 39-25287-00 EXTERIOR ELEVATIONS A4.1 t v r . 4 2 0 2 _ R A _ o n e R e r t a e h T e t a t S & t n u o m a r a P 0 0 - 7 8 1 5 2 - 9 3 / e c n a i l l A e r t a e h T n i t s u A - t n u o m a r a P 0 0 - 7 8 1 5 2 - 9 3 / / : s c o D k s e d o t u A A B C 1A A3.1 D E # KEYNOTES # 1 2 DEMOLITION KEYNOTES DEMOLISH EXISTING FINISH FLOORING DEMOLISH EXISTING MECHANICAL UNIT. A B C D E A B C D E CHORUS ROOM 1 001 RR 002 2 0 0 E006 001 -10' - 8" -9' - 8" E004 MECH 004 CREW ROOM 017 E017A E017 6 0 0 I R O D R R O C E016A 1 A5.1 E016B E005 E016C MECH. 016 OFFICE 005 I T P . H C R O 5 1 0 CHORUS ROOM 2 013 4 1 0 E RR 014 A 3 1 0 E GREEN HALL 012 8 1 0 E E013 -10' - 8" REF. E016D E007 OFFICE 007 008 9 0 0 STAR DRESS. 008 STAR DRESS. 009 1C A3.1 1D A3.1 STAIR 018 6 7 8 9 10 1 OVERALL FLOOR PLAN - BASEMENT LEVEL A1.0 SCALE: 1/8" = 1'-0" 2 A5.1 1 UP 2 UP UP UP UP 6 7 8 9 10 2 OVERALL DEMOLITION PLAN - BASEMENT LEVEL A1.0 SCALE: 1/8" = 1'-0" F GENERAL ARCHITECTURAL NOTES 1. PARTITION TYPES SHALL BE DESIGNATED ON FLOOR PLANS XX. X. XX PARTITIONS ARE TYPE XX.X.XX UNLESS NOTED OTHERWISE. THUS: SEE SHEET XX.X FOR TYPES. ALL INTERIOR 2. ALL MASONRY WALLS AND INTERIOR STUD WALLS SHALL EXTEND TO UNDERSIDE OF FLOOR OR ROOF DECK ABOVE UNLESS NOTED OTHERWISE, PER PARTITION TYPE. 3. PROVISIONS SHALL BE MADE AT ALL FULL HEIGHT NON- BEARING WALLS FOR 1-INCH VERTICAL MOVEMENT OF THE BUILDING STRUCTURE WITHOUT TRANSFER OF COMPRESSIVE LOADS TO WALL. FILL IRREGULARITIES BETWEEN TOP OF WALL AND DECK ABOVE WITH MINERAL WOOL INSULATION OR FIRE STOPPING MATERIALS AS REQUIRED TO MEET FIRE RATING OF RESPECTIVE WALLS. SEE DETAILS ON SHEET XX.X. 4. SEE STRUCTURAL DRAWINGS FOR BRACING OF NON-LOAD BEARING MASONRY WALLS. 5. FURNISH AND INSTALL FIRE-TREATED WOOD BLOCKING OR METAL BACKING PLATE IN METAL STUD PARTITIONS FOR THE PROPER ANCHORAGE OF ALL WALL ATTACHED ITEMS; I.E. TOILET ACCESSORIES, CASEWORK, MILLWORK, WALL- MOUNTED FIXTURES, DOOR STOPS, AUDIO VISUAL BRACKETS, AND OTHER WALL ATTACHED ITEMS. 6. GYPSUM BOARD SURFACES SHALL BE ISOLATED WITH CONTROL JOINTS WHERE SHOWN ON DRAWINGS AND AS DESCRIBED IN THE SPECIFICATIONS. 7. MASONRY CONTROL JOINTS (CJ) AND CONTROL JOINTS ABOVE (CJA) SHALL BE LOCATED AS SHOWN ON THE FLOOR PLAN AND BUILDING ELEVATIONS, AND WHERE LARGE PLUMBING VENTS OR RISERS OCCUR IN SINGLE WYTHE MASONRY WALLS, AND WHERE MASONRY WALLS BEARING ON THE CONCRETE FLOOR SLAB ABUT MASONRY WALLS BEARING ON CONCRETE FOOTINGS OR AS INDICATED ON DRAWINGS. 8. EXTEND FURRING CHANNELS AND GYPSUM BOARD UP 4 INCHES ABOVE FINISHED CEILING ON CMU WALLS. 9. SCRIBE GYPSUM WALL BOARD OF WALLS AND PARTITIONS TO IRREGULARITIES OF DECK ABOVE. SEAL TIGHTLY AROUND ALL PENETRATIONS. 10. PROVIDE SEISMIC BRACING FOR SUSPENDED CEILINGS OR AS SHOWN ON THE DRAWINGS. DEMOLITION GENERAL NOTES DEMOLITION NOTES APPLY TO ALL DEMOLITION SHEETS. THE CONTRACTOR SHALL: A. COORDINATE ALL DEMOLITION AND PHASING EFFORTS WITH THE ARCHITECT AND OWNER’S REPRESENTATIVE. EVERY EFFORT SHALL BE MADE TO MINIMIZE DISRUPTION OF OWNER’S OPERATIONS. EXCESSIVE NOISE OR VIBRATION SHALL BE PRE- APPROVED AND COORDINATED WITH THE OWNER’S REPRESENTATIVE. IN ALL CASES, PROVISIONS SHALL BE MADE FOR USER’S SAFETY. B. COORDINATE ANY DISRUPTION OF UTILITY SERVICES WITH THE OWNER AND AS SPECIFIED. C. CONSTRUCT TEMPORARY CONSTRUCTION PARTITIONS WITHIN THE EXISTING BUILDING WHICH OFFER A ONE-HOUR ENCLOSURE TO ISOLATE ANY DEMOLITION/CONSTRUCTION WORK FROM THE GENERAL PUBLIC AND AS DEEMED NECESSARY BY THE OWNER AND CODE OFFICIAL HAVING JURISDICTION. COORDINATE LOCATIONS WITH THE OWNER AND MAINTAIN MEANS OF EGRESS THROUGHOUT THE WORK. D. MAINTAIN A SECURE, WEATHER-TIGHT ENCLOSURE AT ALL TIMES. E. VERIFY ALL EXISTING CONDITIONS, DIMENSIONS AND ELEVATIONS AND NOTIFY THE ARCHITECT OF ANY DISCREPANCIES. F. REMOVE IN THEIR ENTIRETY ALL EXISTING WALLS, DOORS, MILLWORK, PLUMBING FIXTURES, CEILINGS, SOFFITS, MARKERBOARDS, AND OTHER ITEMS, AS REQUIRED TO EXECUTE THE DEMOLITION/CONSTRUCTION WORK DESCRIBED BY THE DRAWINGS. G. THE OWNER SHALL RESERVE THE RIGHT TO SALVAGE ANY MATERIALS. H. PROVIDE PROTECTION FOR ALL EXISTING BUILDING MATERIALS AND EQUIPMENT FROM DAMAGE DUE TO ANY DEMOLITION OR CONSTRUCTION-RELATED INCIDENT PERFORMED UNDER THIS CONTRACT. I. REPAIR OR REPLACE ITEMS THAT ARE DAMAGED AS A RESULT OF DEMOLITION OR CONSTRUCTION TO MATCH EXISTING FINISH AND/OR CONDITION. J. EXISTING MATERIALS SHALL NOT BE REUSED UNLESS NOTED OTHERWISE OR AS AUTHORIZED BY ARCHITECT. K. VERIFY AND MAINTAIN THE LOCATION OF EXISTING POWER, COMMUNICATION AND DATA CABLES TO PREVENT INTERRUPTION OF THEIR SERVICE. L. PATCH FLOOR, WALL AND CEILING PENETRATIONS RESULTING FROM REMOVAL OR RE-ROUTING OF NEW OR EXISTING PIPING, DUCTWORK, CONDUIT, AND OTHER ITEMS, AS REQUIRED TO MAINTAIN FIRE-RESISTANCE-RATED SEPARATIONS. FINISH AS REQUIRED FOR NEW OR EXISTING ADJACENT SURFACES. M. CAP ALL DISCONNECTED MECHANICAL PIPING LINES WITHIN THE WALL OR FLOOR. PATCH AND FINISH AS REQUIRED TO MATCH NEW OR EXISTING ADJACENT SURFACES. N. SEE MECHANICAL AND ELECTRICAL DRAWINGS AND NOTES FOR FURTHER SEQUENCING AND SCOPE OF WORK. O. AVOID ANY DISTURBANCE OF SOILS WITHIN THE ZONE OF INFLUENCE AROUND EXISTING FOOTINGS AND FLOOR SLABS AS DIRECTED BY GEOTECHNICAL ENGINEER. P. WHERE CMU WALLS ARE INDICATED TO BE REMOVED, PREPARE ADJACENT WALLS TO RECEIVE NEW PATCH/FINISH BY REMOVING CMU IN TOOTH-IN PATTERN BOTH SIDES OF DEMOLITION FOR CONTRACTOR TO TOOTH-IN NEW CMU PATCHES. Q. WHERE PLASTER/STUD WALLS ARE INDICATED TO BE REMOVED, PREPARE ADJACENT WALLS TO RECEIVE NEW PATCH/FINISH BY SAWCUTTING ADJACENT PLASTER FINISH A MINIMUM OF 1'-0" BEYOND DEMOLITION. R. DEMOLISH ALL CARPET IN THE INNER LOBBY AND ON ALL LEVELS OF THE AUDITORIUM. p u o r G R L D © N - R CTIO OT FO U STR N - N O C e r t a e h T t n u o m a r a P e c n a i l l A e r t a e h T n i t s u A 1 0 7 8 7 s a x e T n i t s u A , e v A s s e r g n o C 3 1 7 , e r t a e h T t n u o m a r a P DESIGN DEVELOPMENT 1/30/2026 REVISIONS 39-25287-00 BASEMENT LEVEL - FLOOR PLANS A1.0 1 2 3 4 t v r . 4 2 0 2 _ R A _ o n e R e r t a e h T e a S & t t t n u o m a r a P 0 0 - 7 8 1 5 2 - 9 3 e c n a / i l l A e r t a e h T n i t s u A - t n u o m a r a P 0 0 - 7 8 1 5 2 - 9 3 / / : s c o D k s e d o u A t 5 M P 8 0 : : 6 4 9 6 2 0 2 1 / / 2 A B C D E E103 STAIR 103 SA. 3. 10 MEN´S RR 105 E105 E105A V E B & D O O F 4 0 1 104 HOUSE MANAGER 106 DN OUTER LOBBY 101 3 A7.1 E108F E108E E109A Y B B O L R E N N I 8 0 1 3' - 4 1/2" E109B 3' - 5" 6 0 1 E108A E108B E108C I E C F F O X O B 2 0 1 2 0 1 1 A7.1 1' - 9" 2 2 1 A177 A164 101A 101B 101C A166 A174 D 1 0 1 WALK-IN COOLER 101D E123 STAIR 121 WOMEN´S RR 119 E108D E119B E119A 1 A5.1 TICKET OFFICE 2 122 7 A3.2 NOT IN CONTRACT AUDITORIUM 109 SOUND ROOM 110 DIMMERS 113 3 1 1 E C 1 1 1 E DN STAIR 112 E112A E112B -3' - 1 1/2" 1" STAGE 111 PASSAGEWAY 116 DN REF. HOUSE CARPS CUBBY 115 STAIR 114 E111B E111A D 9 0 1 E 16 E109C E 9 0 1 E 16 F 9 0 1 E 6 1 1 E 16 1 A3.9 1 A3.8 1 2 3 4 5 6 7 8 9 10 1 OVERALL FLOOR PLAN - ORCHESTRA LEVEL A1.1 SCALE: 1/8" = 1'-0" NOT IN CONTRACT 10 DN DN DN 13 13 13 13 13 13 16 15 10 10 4 2 A5.1 1 17 10 10 13 13 13 13 13 7 6 17 10 UP UP 1 2 3 4 5 6 7 8 9 10 2 OVERALL DEMOLITION PLAN - ORCHESTRA LEVEL A1.1 SCALE: 1/8" = 1'-0" 1 2 3 4 t v r . 4 2 0 2 _ R A _ o n e R e r t a e h T e a S & t t t n u o m a r a P 0 0 - 7 8 1 5 2 - 9 3 e c n a / i l l A e r t a e h T n i t s u A - t n u o m a r a P 0 0 - 7 8 1 5 2 - 9 3 / / : s c o D k s e d o u A t 5 M P 7 2 : : 6 4 9 6 2 0 2 1 / / 2 # KEYNOTES # 1 4 6 7 10 13 15 16 17 DEMOLITION KEYNOTES DEMOLISH EXISTING FINISH FLOORING REMOVE EXISTING CARPET AND SEATS. CAREFULLY REMOVE EXISTING DOOR AND FRAME. DEMO STAIR AND WALL TO ACCOMMODATE NEW CONVERTIBLE STAIR/WHEELCHAIR LIFT CHANNEL FLOOR FOR LOW VOLATGE WIRING FOR AISLE LIGHTS. DEMOLISH FAUX COLUMNS DEMO MIX POSITION WALLS DEMO CONCRETE STOOP AND REBUILD LEVEL TO MATCH SURROUNDING FLOOR SLOPE DEMO CONCRETE SOG FLOOR A B C D E F A B C D E F F GENERAL ARCHITECTURAL NOTES 1. PARTITION TYPES SHALL BE DESIGNATED ON FLOOR PLANS XX. X. XX PARTITIONS ARE TYPE XX.X.XX UNLESS NOTED OTHERWISE. THUS: SEE SHEET XX.X FOR TYPES. ALL INTERIOR 2. ALL MASONRY WALLS AND INTERIOR STUD WALLS SHALL EXTEND TO UNDERSIDE OF FLOOR OR ROOF DECK ABOVE UNLESS NOTED OTHERWISE, PER PARTITION TYPE. 3. PROVISIONS SHALL BE MADE AT ALL FULL HEIGHT NON- BEARING WALLS FOR 1-INCH VERTICAL MOVEMENT OF THE BUILDING STRUCTURE WITHOUT TRANSFER OF COMPRESSIVE LOADS TO WALL. FILL IRREGULARITIES BETWEEN TOP OF WALL AND DECK ABOVE WITH MINERAL WOOL INSULATION OR FIRE STOPPING MATERIALS AS REQUIRED TO MEET FIRE RATING OF RESPECTIVE WALLS. SEE DETAILS ON SHEET XX.X. 4. SEE STRUCTURAL DRAWINGS FOR BRACING OF NON-LOAD BEARING MASONRY WALLS. 5. FURNISH AND INSTALL FIRE-TREATED WOOD BLOCKING OR METAL BACKING PLATE IN METAL STUD PARTITIONS FOR THE PROPER ANCHORAGE OF ALL WALL ATTACHED ITEMS; I.E. TOILET ACCESSORIES, CASEWORK, MILLWORK, WALL- MOUNTED FIXTURES, DOOR STOPS, AUDIO VISUAL BRACKETS, AND OTHER WALL ATTACHED ITEMS. 6. GYPSUM BOARD SURFACES SHALL BE ISOLATED WITH CONTROL JOINTS WHERE SHOWN ON DRAWINGS AND AS DESCRIBED IN THE SPECIFICATIONS. 7. MASONRY CONTROL JOINTS (CJ) AND CONTROL JOINTS ABOVE (CJA) SHALL BE LOCATED AS SHOWN ON THE FLOOR PLAN AND BUILDING ELEVATIONS, AND WHERE LARGE PLUMBING VENTS OR RISERS OCCUR IN SINGLE WYTHE MASONRY WALLS, AND WHERE MASONRY WALLS BEARING ON THE CONCRETE FLOOR SLAB ABUT MASONRY WALLS BEARING ON CONCRETE FOOTINGS OR AS INDICATED ON DRAWINGS. 8. EXTEND FURRING CHANNELS AND GYPSUM BOARD UP 4 INCHES ABOVE FINISHED CEILING ON CMU WALLS. 9. SCRIBE GYPSUM WALL BOARD OF WALLS AND PARTITIONS TO IRREGULARITIES OF DECK ABOVE. SEAL TIGHTLY AROUND ALL PENETRATIONS. 10. PROVIDE SEISMIC BRACING FOR SUSPENDED CEILINGS OR AS SHOWN ON THE DRAWINGS. DEMOLITION GENERAL NOTES DEMOLITION NOTES APPLY TO ALL DEMOLITION SHEETS. THE CONTRACTOR SHALL: A. COORDINATE ALL DEMOLITION AND PHASING EFFORTS WITH THE ARCHITECT AND OWNER’S REPRESENTATIVE. EVERY EFFORT SHALL BE MADE TO MINIMIZE DISRUPTION OF OWNER’S OPERATIONS. EXCESSIVE NOISE OR VIBRATION SHALL BE PRE- APPROVED AND COORDINATED WITH THE OWNER’S REPRESENTATIVE. IN ALL CASES, PROVISIONS SHALL BE MADE FOR USER’S SAFETY. B. COORDINATE ANY DISRUPTION OF UTILITY SERVICES WITH THE OWNER AND AS SPECIFIED. C. CONSTRUCT TEMPORARY CONSTRUCTION PARTITIONS WITHIN THE EXISTING BUILDING WHICH OFFER A ONE-HOUR ENCLOSURE TO ISOLATE ANY DEMOLITION/CONSTRUCTION WORK FROM THE GENERAL PUBLIC AND AS DEEMED NECESSARY BY THE OWNER AND CODE OFFICIAL HAVING JURISDICTION. COORDINATE LOCATIONS WITH THE OWNER AND MAINTAIN MEANS OF EGRESS THROUGHOUT THE WORK. D. MAINTAIN A SECURE, WEATHER-TIGHT ENCLOSURE AT ALL TIMES. E. VERIFY ALL EXISTING CONDITIONS, DIMENSIONS AND ELEVATIONS AND NOTIFY THE ARCHITECT OF ANY DISCREPANCIES. F. REMOVE IN THEIR ENTIRETY ALL EXISTING WALLS, DOORS, MILLWORK, PLUMBING FIXTURES, CEILINGS, SOFFITS, MARKERBOARDS, AND OTHER ITEMS, AS REQUIRED TO EXECUTE THE DEMOLITION/CONSTRUCTION WORK DESCRIBED BY THE DRAWINGS. G. THE OWNER SHALL RESERVE THE RIGHT TO SALVAGE ANY MATERIALS. H. PROVIDE PROTECTION FOR ALL EXISTING BUILDING MATERIALS AND EQUIPMENT FROM DAMAGE DUE TO ANY DEMOLITION OR CONSTRUCTION-RELATED INCIDENT PERFORMED UNDER THIS CONTRACT. I. REPAIR OR REPLACE ITEMS THAT ARE DAMAGED AS A RESULT OF DEMOLITION OR CONSTRUCTION TO MATCH EXISTING FINISH AND/OR CONDITION. J. EXISTING MATERIALS SHALL NOT BE REUSED UNLESS NOTED OTHERWISE OR AS AUTHORIZED BY ARCHITECT. K. VERIFY AND MAINTAIN THE LOCATION OF EXISTING POWER, COMMUNICATION AND DATA CABLES TO PREVENT INTERRUPTION OF THEIR SERVICE. L. PATCH FLOOR, WALL AND CEILING PENETRATIONS RESULTING FROM REMOVAL OR RE-ROUTING OF NEW OR EXISTING PIPING, DUCTWORK, CONDUIT, AND OTHER ITEMS, AS REQUIRED TO MAINTAIN FIRE-RESISTANCE-RATED SEPARATIONS. FINISH AS REQUIRED FOR NEW OR EXISTING ADJACENT SURFACES. M. CAP ALL DISCONNECTED MECHANICAL PIPING LINES WITHIN THE WALL OR FLOOR. PATCH AND FINISH AS REQUIRED TO MATCH NEW OR EXISTING ADJACENT SURFACES. N. SEE MECHANICAL AND ELECTRICAL DRAWINGS AND NOTES FOR FURTHER SEQUENCING AND SCOPE OF WORK. O. AVOID ANY DISTURBANCE OF SOILS WITHIN THE ZONE OF INFLUENCE AROUND EXISTING FOOTINGS AND FLOOR SLABS AS DIRECTED BY GEOTECHNICAL ENGINEER. P. WHERE CMU WALLS ARE INDICATED TO BE REMOVED, PREPARE ADJACENT WALLS TO RECEIVE NEW PATCH/FINISH BY REMOVING CMU IN TOOTH-IN PATTERN BOTH SIDES OF DEMOLITION FOR CONTRACTOR TO TOOTH-IN NEW CMU PATCHES. Q. WHERE PLASTER/STUD WALLS ARE INDICATED TO BE REMOVED, PREPARE ADJACENT WALLS TO RECEIVE NEW PATCH/FINISH BY SAWCUTTING ADJACENT PLASTER FINISH A MINIMUM OF 1'-0" BEYOND DEMOLITION. R. DEMOLISH ALL CARPET IN THE INNER LOBBY AND ON ALL LEVELS OF THE AUDITORIUM. p u o r G R L D © N - R CTIO OT FO U STR N - N O C e r t a e h T t n u o m a r a P e c n a i l l A e r t a e h T n i t s u A 1 0 7 8 7 s a x e T n i t s u A , e v A s s e r g n o C 3 1 7 , e r t a e h T t n u o m a r a P DESIGN DEVELOPMENT 1/30/2026 REVISIONS 39-25287-00 ORCHESTRA LEVEL - FLOOR PLANS A1.1 A B C D E STAIR 206 E206 MEN'S RR 203 15' - 0" 14' - 6" DN 3 0 2 E R A B MEN'S TOILETS 203A 1 A3.4 1 A5.1 2 0 2 I I N D U O H NOT IN CONTRACT IDF 210 E210 VOM. 211A BOX ENTRANCE 214A OPERA BOX 214 VOM. 211B MEZZANINE 211 SEE SHEET A3.9/A3.10 FOR BALCONY WORK BAR 208 BAR 209 Y B B O L R E N N I I E N N A Z Z E M 1 0 2 OPEN TO BELOW DN 15' - 0" 14' - 6" 5 0 2 E WOMEN'S RR 205 WOMEN'S TOILETS 205A VOM. 211C E212 BAR STOCK & ICE 212 A 207 E DN STAIR 207 E207B STAIR 213 E213 DN 2 A3.4 OPERA BOX 215 BOX ENTRANCE DN 215A 1 2 3 4 5 6 7 8 9 10 43 1 OVERALL FLOOR PLAN - MEZZANINE LEVEL A1.2 SCALE: 1/8" = 1'-0" UP 2 A5.1 NOT IN CONTRACT SEE SHEET A1.4 FOR BALCONY DEMO WORK DN UP DN 1 2 3 4 5 6 7 8 9 10 2 OVERALL DEMOLITION PLAN - MEZZANINE LEVEL A1.2 SCALE: 1/8" = 1'-0" # KEYNOTES # DEMOLITION KEYNOTES A B C D E F A B C D E F F GENERAL ARCHITECTURAL NOTES 1. PARTITION TYPES SHALL BE DESIGNATED ON FLOOR PLANS XX. X. XX PARTITIONS ARE TYPE XX.X.XX UNLESS NOTED OTHERWISE. THUS: SEE SHEET XX.X FOR TYPES. ALL INTERIOR 2. ALL MASONRY WALLS AND INTERIOR STUD WALLS SHALL EXTEND TO UNDERSIDE OF FLOOR OR ROOF DECK ABOVE UNLESS NOTED OTHERWISE, PER PARTITION TYPE. 3. PROVISIONS SHALL BE MADE AT ALL FULL HEIGHT NON- BEARING WALLS FOR 1-INCH VERTICAL MOVEMENT OF THE BUILDING STRUCTURE WITHOUT TRANSFER OF COMPRESSIVE LOADS TO WALL. FILL IRREGULARITIES BETWEEN TOP OF WALL AND DECK ABOVE WITH MINERAL WOOL INSULATION OR FIRE STOPPING MATERIALS AS REQUIRED TO MEET FIRE RATING OF RESPECTIVE WALLS. SEE DETAILS ON SHEET XX.X. 4. SEE STRUCTURAL DRAWINGS FOR BRACING OF NON-LOAD BEARING MASONRY WALLS. 5. FURNISH AND INSTALL FIRE-TREATED WOOD BLOCKING OR METAL BACKING PLATE IN METAL STUD PARTITIONS FOR THE PROPER ANCHORAGE OF ALL WALL ATTACHED ITEMS; I.E. TOILET ACCESSORIES, CASEWORK, MILLWORK, WALL- MOUNTED FIXTURES, DOOR STOPS, AUDIO VISUAL BRACKETS, AND OTHER WALL ATTACHED ITEMS. 6. GYPSUM BOARD SURFACES SHALL BE ISOLATED WITH CONTROL JOINTS WHERE SHOWN ON DRAWINGS AND AS DESCRIBED IN THE SPECIFICATIONS. 7. MASONRY CONTROL JOINTS (CJ) AND CONTROL JOINTS ABOVE (CJA) SHALL BE LOCATED AS SHOWN ON THE FLOOR PLAN AND BUILDING ELEVATIONS, AND WHERE LARGE PLUMBING VENTS OR RISERS OCCUR IN SINGLE WYTHE MASONRY WALLS, AND WHERE MASONRY WALLS BEARING ON THE CONCRETE FLOOR SLAB ABUT MASONRY WALLS BEARING ON CONCRETE FOOTINGS OR AS INDICATED ON DRAWINGS. 8. EXTEND FURRING CHANNELS AND GYPSUM BOARD UP 4 INCHES ABOVE FINISHED CEILING ON CMU WALLS. 9. SCRIBE GYPSUM WALL BOARD OF WALLS AND PARTITIONS TO IRREGULARITIES OF DECK ABOVE. SEAL TIGHTLY AROUND ALL PENETRATIONS. 10. PROVIDE SEISMIC BRACING FOR SUSPENDED CEILINGS OR AS SHOWN ON THE DRAWINGS. DEMOLITION GENERAL NOTES DEMOLITION NOTES APPLY TO ALL DEMOLITION SHEETS. THE CONTRACTOR SHALL: A. COORDINATE ALL DEMOLITION AND PHASING EFFORTS WITH THE ARCHITECT AND OWNER’S REPRESENTATIVE. EVERY EFFORT SHALL BE MADE TO MINIMIZE DISRUPTION OF OWNER’S OPERATIONS. EXCESSIVE NOISE OR VIBRATION SHALL BE PRE- APPROVED AND COORDINATED WITH THE OWNER’S REPRESENTATIVE. IN ALL CASES, PROVISIONS SHALL BE MADE FOR USER’S SAFETY. B. COORDINATE ANY DISRUPTION OF UTILITY SERVICES WITH THE OWNER AND AS SPECIFIED. C. CONSTRUCT TEMPORARY CONSTRUCTION PARTITIONS WITHIN THE EXISTING BUILDING WHICH OFFER A ONE-HOUR ENCLOSURE TO ISOLATE ANY DEMOLITION/CONSTRUCTION WORK FROM THE GENERAL PUBLIC AND AS DEEMED NECESSARY BY THE OWNER AND CODE OFFICIAL HAVING JURISDICTION. COORDINATE LOCATIONS WITH THE OWNER AND MAINTAIN MEANS OF EGRESS THROUGHOUT THE WORK. D. MAINTAIN A SECURE, WEATHER-TIGHT ENCLOSURE AT ALL TIMES. E. VERIFY ALL EXISTING CONDITIONS, DIMENSIONS AND ELEVATIONS AND NOTIFY THE ARCHITECT OF ANY DISCREPANCIES. F. REMOVE IN THEIR ENTIRETY ALL EXISTING WALLS, DOORS, MILLWORK, PLUMBING FIXTURES, CEILINGS, SOFFITS, MARKERBOARDS, AND OTHER ITEMS, AS REQUIRED TO EXECUTE THE DEMOLITION/CONSTRUCTION WORK DESCRIBED BY THE DRAWINGS. G. THE OWNER SHALL RESERVE THE RIGHT TO SALVAGE ANY MATERIALS. H. PROVIDE PROTECTION FOR ALL EXISTING BUILDING MATERIALS AND EQUIPMENT FROM DAMAGE DUE TO ANY DEMOLITION OR CONSTRUCTION-RELATED INCIDENT PERFORMED UNDER THIS CONTRACT. I. REPAIR OR REPLACE ITEMS THAT ARE DAMAGED AS A RESULT OF DEMOLITION OR CONSTRUCTION TO MATCH EXISTING FINISH AND/OR CONDITION. J. EXISTING MATERIALS SHALL NOT BE REUSED UNLESS NOTED OTHERWISE OR AS AUTHORIZED BY ARCHITECT. K. VERIFY AND MAINTAIN THE LOCATION OF EXISTING POWER, COMMUNICATION AND DATA CABLES TO PREVENT INTERRUPTION OF THEIR SERVICE. L. PATCH FLOOR, WALL AND CEILING PENETRATIONS RESULTING FROM REMOVAL OR RE-ROUTING OF NEW OR EXISTING PIPING, DUCTWORK, CONDUIT, AND OTHER ITEMS, AS REQUIRED TO MAINTAIN FIRE-RESISTANCE-RATED SEPARATIONS. FINISH AS REQUIRED FOR NEW OR EXISTING ADJACENT SURFACES. M. CAP ALL DISCONNECTED MECHANICAL PIPING LINES WITHIN THE WALL OR FLOOR. PATCH AND FINISH AS REQUIRED TO MATCH NEW OR EXISTING ADJACENT SURFACES. N. SEE MECHANICAL AND ELECTRICAL DRAWINGS AND NOTES FOR FURTHER SEQUENCING AND SCOPE OF WORK. O. AVOID ANY DISTURBANCE OF SOILS WITHIN THE ZONE OF INFLUENCE AROUND EXISTING FOOTINGS AND FLOOR SLABS AS DIRECTED BY GEOTECHNICAL ENGINEER. P. WHERE CMU WALLS ARE INDICATED TO BE REMOVED, PREPARE ADJACENT WALLS TO RECEIVE NEW PATCH/FINISH BY REMOVING CMU IN TOOTH-IN PATTERN BOTH SIDES OF DEMOLITION FOR CONTRACTOR TO TOOTH-IN NEW CMU PATCHES. Q. WHERE PLASTER/STUD WALLS ARE INDICATED TO BE REMOVED, PREPARE ADJACENT WALLS TO RECEIVE NEW PATCH/FINISH BY SAWCUTTING ADJACENT PLASTER FINISH A MINIMUM OF 1'-0" BEYOND DEMOLITION. R. DEMOLISH ALL CARPET IN THE INNER LOBBY AND ON ALL LEVELS OF THE AUDITORIUM. p u o r G R L D © N - R CTIO OT FO U STR N - N O C e r t a e h T t n u o m a r a P e c n a i l l A e r t a e h T n i t s u A 1 0 7 8 7 s a x e T n i t s u A , e v A s s e r g n o C 3 1 7 , e r t a e h T t n u o m a r a P DESIGN DEVELOPMENT 1/30/2026 REVISIONS 39-25287-00 MEZZANINE LEVEL - FLOOR PLANS A1.2 1 2 3 4 t v r . 4 2 0 2 _ R A _ o n e R e r t a e h T e a S & t t t n u o m a r a P 0 0 - 7 8 1 5 2 - 9 3 e c n a / i l l A e r t a e h T n i t s u A - t n u o m a r a P 0 0 - 7 8 1 5 2 - 9 3 / / : s c o D k s e d o u A t 5 M P 7 4 : : 6 4 9 6 2 0 2 1 / / 2 A B C D E STAIR 304 DN 4 0 3 Y A W E G A S S A P 2 0 3 NOT IN CONTRACT 1 A5.1 1 A3.6 E301A E301B E301C E301D E301E E301F E301G E301H E301I 5 0 3 STAIR 305 LOUNGE 301 SEE SHEET A3.9/A3.10 FOR BALCONY WORK 3 0 3 S.O. RR 303 1 2 3 4 5 6 7 8 9 10 43 1 OVERALL FLOOR PLAN - LOUNGE LEVEL A1.3 SCALE: 1/8" = 1'-0" DN 2 A5.1 1 NOT IN CONTRACT SEE SHEET A3.4 FOR AUDITORIUM BALCONY DEMO WORK 1 2 3 4 5 6 7 8 9 10 2 OVERALL DEMOLITION PLAN - LOUNGE LEVEL A1.3 SCALE: 1/8" = 1'-0" # KEYNOTES # 1 DEMOLITION KEYNOTES DEMOLISH EXISTING FINISH FLOORING A B C D E F A B C D E F F GENERAL ARCHITECTURAL NOTES 1. PARTITION TYPES SHALL BE DESIGNATED ON FLOOR PLANS XX. X. XX PARTITIONS ARE TYPE XX.X.XX UNLESS NOTED OTHERWISE. THUS: SEE SHEET XX.X FOR TYPES. ALL INTERIOR 2. ALL MASONRY WALLS AND INTERIOR STUD WALLS SHALL EXTEND TO UNDERSIDE OF FLOOR OR ROOF DECK ABOVE UNLESS NOTED OTHERWISE, PER PARTITION TYPE. 3. PROVISIONS SHALL BE MADE AT ALL FULL HEIGHT NON- BEARING WALLS FOR 1-INCH VERTICAL MOVEMENT OF THE BUILDING STRUCTURE WITHOUT TRANSFER OF COMPRESSIVE LOADS TO WALL. FILL IRREGULARITIES BETWEEN TOP OF WALL AND DECK ABOVE WITH MINERAL WOOL INSULATION OR FIRE STOPPING MATERIALS AS REQUIRED TO MEET FIRE RATING OF RESPECTIVE WALLS. SEE DETAILS ON SHEET XX.X. 4. SEE STRUCTURAL DRAWINGS FOR BRACING OF NON-LOAD BEARING MASONRY WALLS. 5. FURNISH AND INSTALL FIRE-TREATED WOOD BLOCKING OR METAL BACKING PLATE IN METAL STUD PARTITIONS FOR THE PROPER ANCHORAGE OF ALL WALL ATTACHED ITEMS; I.E. TOILET ACCESSORIES, CASEWORK, MILLWORK, WALL- MOUNTED FIXTURES, DOOR STOPS, AUDIO VISUAL BRACKETS, AND OTHER WALL ATTACHED ITEMS. 6. GYPSUM BOARD SURFACES SHALL BE ISOLATED WITH CONTROL JOINTS WHERE SHOWN ON DRAWINGS AND AS DESCRIBED IN THE SPECIFICATIONS. 7. MASONRY CONTROL JOINTS (CJ) AND CONTROL JOINTS ABOVE (CJA) SHALL BE LOCATED AS SHOWN ON THE FLOOR PLAN AND BUILDING ELEVATIONS, AND WHERE LARGE PLUMBING VENTS OR RISERS OCCUR IN SINGLE WYTHE MASONRY WALLS, AND WHERE MASONRY WALLS BEARING ON THE CONCRETE FLOOR SLAB ABUT MASONRY WALLS BEARING ON CONCRETE FOOTINGS OR AS INDICATED ON DRAWINGS. 8. EXTEND FURRING CHANNELS AND GYPSUM BOARD UP 4 INCHES ABOVE FINISHED CEILING ON CMU WALLS. 9. SCRIBE GYPSUM WALL BOARD OF WALLS AND PARTITIONS TO IRREGULARITIES OF DECK ABOVE. SEAL TIGHTLY AROUND ALL PENETRATIONS. 10. PROVIDE SEISMIC BRACING FOR SUSPENDED CEILINGS OR AS SHOWN ON THE DRAWINGS. DEMOLITION GENERAL NOTES DEMOLITION NOTES APPLY TO ALL DEMOLITION SHEETS. THE CONTRACTOR SHALL: A. COORDINATE ALL DEMOLITION AND PHASING EFFORTS WITH THE ARCHITECT AND OWNER’S REPRESENTATIVE. EVERY EFFORT SHALL BE MADE TO MINIMIZE DISRUPTION OF OWNER’S OPERATIONS. EXCESSIVE NOISE OR VIBRATION SHALL BE PRE- APPROVED AND COORDINATED WITH THE OWNER’S REPRESENTATIVE. IN ALL CASES, PROVISIONS SHALL BE MADE FOR USER’S SAFETY. B. COORDINATE ANY DISRUPTION OF UTILITY SERVICES WITH THE OWNER AND AS SPECIFIED. C. CONSTRUCT TEMPORARY CONSTRUCTION PARTITIONS WITHIN THE EXISTING BUILDING WHICH OFFER A ONE-HOUR ENCLOSURE TO ISOLATE ANY DEMOLITION/CONSTRUCTION WORK FROM THE GENERAL PUBLIC AND AS DEEMED NECESSARY BY THE OWNER AND CODE OFFICIAL HAVING JURISDICTION. COORDINATE LOCATIONS WITH THE OWNER AND MAINTAIN MEANS OF EGRESS THROUGHOUT THE WORK. D. MAINTAIN A SECURE, WEATHER-TIGHT ENCLOSURE AT ALL TIMES. E. VERIFY ALL EXISTING CONDITIONS, DIMENSIONS AND ELEVATIONS AND NOTIFY THE ARCHITECT OF ANY DISCREPANCIES. F. REMOVE IN THEIR ENTIRETY ALL EXISTING WALLS, DOORS, MILLWORK, PLUMBING FIXTURES, CEILINGS, SOFFITS, MARKERBOARDS, AND OTHER ITEMS, AS REQUIRED TO EXECUTE THE DEMOLITION/CONSTRUCTION WORK DESCRIBED BY THE DRAWINGS. G. THE OWNER SHALL RESERVE THE RIGHT TO SALVAGE ANY MATERIALS. H. PROVIDE PROTECTION FOR ALL EXISTING BUILDING MATERIALS AND EQUIPMENT FROM DAMAGE DUE TO ANY DEMOLITION OR CONSTRUCTION-RELATED INCIDENT PERFORMED UNDER THIS CONTRACT. I. REPAIR OR REPLACE ITEMS THAT ARE DAMAGED AS A RESULT OF DEMOLITION OR CONSTRUCTION TO MATCH EXISTING FINISH AND/OR CONDITION. J. EXISTING MATERIALS SHALL NOT BE REUSED UNLESS NOTED OTHERWISE OR AS AUTHORIZED BY ARCHITECT. K. VERIFY AND MAINTAIN THE LOCATION OF EXISTING POWER, COMMUNICATION AND DATA CABLES TO PREVENT INTERRUPTION OF THEIR SERVICE. L. PATCH FLOOR, WALL AND CEILING PENETRATIONS RESULTING FROM REMOVAL OR RE-ROUTING OF NEW OR EXISTING PIPING, DUCTWORK, CONDUIT, AND OTHER ITEMS, AS REQUIRED TO MAINTAIN FIRE-RESISTANCE-RATED SEPARATIONS. FINISH AS REQUIRED FOR NEW OR EXISTING ADJACENT SURFACES. M. CAP ALL DISCONNECTED MECHANICAL PIPING LINES WITHIN THE WALL OR FLOOR. PATCH AND FINISH AS REQUIRED TO MATCH NEW OR EXISTING ADJACENT SURFACES. N. SEE MECHANICAL AND ELECTRICAL DRAWINGS AND NOTES FOR FURTHER SEQUENCING AND SCOPE OF WORK. O. AVOID ANY DISTURBANCE OF SOILS WITHIN THE ZONE OF INFLUENCE AROUND EXISTING FOOTINGS AND FLOOR SLABS AS DIRECTED BY GEOTECHNICAL ENGINEER. P. WHERE CMU WALLS ARE INDICATED TO BE REMOVED, PREPARE ADJACENT WALLS TO RECEIVE NEW PATCH/FINISH BY REMOVING CMU IN TOOTH-IN PATTERN BOTH SIDES OF DEMOLITION FOR CONTRACTOR TO TOOTH-IN NEW CMU PATCHES. Q. WHERE PLASTER/STUD WALLS ARE INDICATED TO BE REMOVED, PREPARE ADJACENT WALLS TO RECEIVE NEW PATCH/FINISH BY SAWCUTTING ADJACENT PLASTER FINISH A MINIMUM OF 1'-0" BEYOND DEMOLITION. R. DEMOLISH ALL CARPET IN THE INNER LOBBY AND ON ALL LEVELS OF THE AUDITORIUM. p u o r G R L D © N - R CTIO OT FO U STR N - N O C e r t a e h T t n u o m a r a P e c n a i l l A e r t a e h T n i t s u A 1 0 7 8 7 s a x e T n i t s u A , e v A s s e r g n o C 3 1 7 , e r t a e h T t n u o m a r a P DESIGN DEVELOPMENT 1/30/2026 REVISIONS 39-25287-00 LOUNGE LEVEL - FLOOR PLANS A1.3 1 2 3 4 t v r . 4 2 0 2 _ R A _ o n e R e r t a e h T e a S & t t t n u o m a r a P 0 0 - 7 8 1 5 2 - 9 3 e c n a / i l l A e r t a e h T n i t s u A - t n u o m a r a P 0 0 - 7 8 1 5 2 - 9 3 / / : s c o D k s e d o u A t 5 M P 9 0 : : 7 4 9 6 2 0 2 1 / / 2 A B C D E STAIR 401 NOT IN CONTRACT E214 BOX ENTRANCE 214A 1 A5.1 STORAGE 404 PROJECTION 403 UPPER BALCONY 406 TOILET 407 3 0 4 E 4 0 4 7 0 4 E STAIRS 402 5 0 4 BAR 405 E406A B 6 0 4 E OPERA BOX 214 OPERA BOX 215 DN E215 BOX ENTRANCE 215A 1 2 3 4 5 6 7 8 9 10 1 A3.10 1 A3.11 43 1 OVERALL FLOOR PLAN - UPPER BALCONY LEVEL A1.4 SCALE: 1/8" = 1'-0" 2 A5.1 4 NOT IN CONTRACT 14 14 DEMOLISH EXISTING STAIR AND PIPE RAILS UP 1 2 3 4 5 6 7 8 9 10 2 OVERALL DEMOLITION PLAN - UPPER BALCONY LEVEL A1.4 SCALE: 1/8" = 1'-0" # KEYNOTES # 4 14 DEMOLITION KEYNOTES REMOVE EXISTING CARPET AND SEATS. DEMO OPERA BOX SEATING PLATFORMS A B C D E F A B C D E F F GENERAL ARCHITECTURAL NOTES 1. PARTITION TYPES SHALL BE DESIGNATED ON FLOOR PLANS XX. X. XX PARTITIONS ARE TYPE XX.X.XX UNLESS NOTED OTHERWISE. THUS: SEE SHEET XX.X FOR TYPES. ALL INTERIOR 2. ALL MASONRY WALLS AND INTERIOR STUD WALLS SHALL EXTEND TO UNDERSIDE OF FLOOR OR ROOF DECK ABOVE UNLESS NOTED OTHERWISE, PER PARTITION TYPE. 3. PROVISIONS SHALL BE MADE AT ALL FULL HEIGHT NON- BEARING WALLS FOR 1-INCH VERTICAL MOVEMENT OF THE BUILDING STRUCTURE WITHOUT TRANSFER OF COMPRESSIVE LOADS TO WALL. FILL IRREGULARITIES BETWEEN TOP OF WALL AND DECK ABOVE WITH MINERAL WOOL INSULATION OR FIRE STOPPING MATERIALS AS REQUIRED TO MEET FIRE RATING OF RESPECTIVE WALLS. SEE DETAILS ON SHEET XX.X. 4. SEE STRUCTURAL DRAWINGS FOR BRACING OF NON-LOAD BEARING MASONRY WALLS. 5. FURNISH AND INSTALL FIRE-TREATED WOOD BLOCKING OR METAL BACKING PLATE IN METAL STUD PARTITIONS FOR THE PROPER ANCHORAGE OF ALL WALL ATTACHED ITEMS; I.E. TOILET ACCESSORIES, CASEWORK, MILLWORK, WALL- MOUNTED FIXTURES, DOOR STOPS, AUDIO VISUAL BRACKETS, AND OTHER WALL ATTACHED ITEMS. 6. GYPSUM BOARD SURFACES SHALL BE ISOLATED WITH CONTROL JOINTS WHERE SHOWN ON DRAWINGS AND AS DESCRIBED IN THE SPECIFICATIONS. 7. MASONRY CONTROL JOINTS (CJ) AND CONTROL JOINTS ABOVE (CJA) SHALL BE LOCATED AS SHOWN ON THE FLOOR PLAN AND BUILDING ELEVATIONS, AND WHERE LARGE PLUMBING VENTS OR RISERS OCCUR IN SINGLE WYTHE MASONRY WALLS, AND WHERE MASONRY WALLS BEARING ON THE CONCRETE FLOOR SLAB ABUT MASONRY WALLS BEARING ON CONCRETE FOOTINGS OR AS INDICATED ON DRAWINGS. 8. EXTEND FURRING CHANNELS AND GYPSUM BOARD UP 4 INCHES ABOVE FINISHED CEILING ON CMU WALLS. 9. SCRIBE GYPSUM WALL BOARD OF WALLS AND PARTITIONS TO IRREGULARITIES OF DECK ABOVE. SEAL TIGHTLY AROUND ALL PENETRATIONS. 10. PROVIDE SEISMIC BRACING FOR SUSPENDED CEILINGS OR AS SHOWN ON THE DRAWINGS. DEMOLITION GENERAL NOTES DEMOLITION NOTES APPLY TO ALL DEMOLITION SHEETS. THE CONTRACTOR SHALL: A. COORDINATE ALL DEMOLITION AND PHASING EFFORTS WITH THE ARCHITECT AND OWNER’S REPRESENTATIVE. EVERY EFFORT SHALL BE MADE TO MINIMIZE DISRUPTION OF OWNER’S OPERATIONS. EXCESSIVE NOISE OR VIBRATION SHALL BE PRE- APPROVED AND COORDINATED WITH THE OWNER’S REPRESENTATIVE. IN ALL CASES, PROVISIONS SHALL BE MADE FOR USER’S SAFETY. B. COORDINATE ANY DISRUPTION OF UTILITY SERVICES WITH THE OWNER AND AS SPECIFIED. C. CONSTRUCT TEMPORARY CONSTRUCTION PARTITIONS WITHIN THE EXISTING BUILDING WHICH OFFER A ONE-HOUR ENCLOSURE TO ISOLATE ANY DEMOLITION/CONSTRUCTION WORK FROM THE GENERAL PUBLIC AND AS DEEMED NECESSARY BY THE OWNER AND CODE OFFICIAL HAVING JURISDICTION. COORDINATE LOCATIONS WITH THE OWNER AND MAINTAIN MEANS OF EGRESS THROUGHOUT THE WORK. D. MAINTAIN A SECURE, WEATHER-TIGHT ENCLOSURE AT ALL TIMES. E. VERIFY ALL EXISTING CONDITIONS, DIMENSIONS AND ELEVATIONS AND NOTIFY THE ARCHITECT OF ANY DISCREPANCIES. F. REMOVE IN THEIR ENTIRETY ALL EXISTING WALLS, DOORS, MILLWORK, PLUMBING FIXTURES, CEILINGS, SOFFITS, MARKERBOARDS, AND OTHER ITEMS, AS REQUIRED TO EXECUTE THE DEMOLITION/CONSTRUCTION WORK DESCRIBED BY THE DRAWINGS. G. THE OWNER SHALL RESERVE THE RIGHT TO SALVAGE ANY MATERIALS. H. PROVIDE PROTECTION FOR ALL EXISTING BUILDING MATERIALS AND EQUIPMENT FROM DAMAGE DUE TO ANY DEMOLITION OR CONSTRUCTION-RELATED INCIDENT PERFORMED UNDER THIS CONTRACT. I. REPAIR OR REPLACE ITEMS THAT ARE DAMAGED AS A RESULT OF DEMOLITION OR CONSTRUCTION TO MATCH EXISTING FINISH AND/OR CONDITION. J. EXISTING MATERIALS SHALL NOT BE REUSED UNLESS NOTED OTHERWISE OR AS AUTHORIZED BY ARCHITECT. K. VERIFY AND MAINTAIN THE LOCATION OF EXISTING POWER, COMMUNICATION AND DATA CABLES TO PREVENT INTERRUPTION OF THEIR SERVICE. L. PATCH FLOOR, WALL AND CEILING PENETRATIONS RESULTING FROM REMOVAL OR RE-ROUTING OF NEW OR EXISTING PIPING, DUCTWORK, CONDUIT, AND OTHER ITEMS, AS REQUIRED TO MAINTAIN FIRE-RESISTANCE-RATED SEPARATIONS. FINISH AS REQUIRED FOR NEW OR EXISTING ADJACENT SURFACES. M. CAP ALL DISCONNECTED MECHANICAL PIPING LINES WITHIN THE WALL OR FLOOR. PATCH AND FINISH AS REQUIRED TO MATCH NEW OR EXISTING ADJACENT SURFACES. N. SEE MECHANICAL AND ELECTRICAL DRAWINGS AND NOTES FOR FURTHER SEQUENCING AND SCOPE OF WORK. O. AVOID ANY DISTURBANCE OF SOILS WITHIN THE ZONE OF INFLUENCE AROUND EXISTING FOOTINGS AND FLOOR SLABS AS DIRECTED BY GEOTECHNICAL ENGINEER. P. WHERE CMU WALLS ARE INDICATED TO BE REMOVED, PREPARE ADJACENT WALLS TO RECEIVE NEW PATCH/FINISH BY REMOVING CMU IN TOOTH-IN PATTERN BOTH SIDES OF DEMOLITION FOR CONTRACTOR TO TOOTH-IN NEW CMU PATCHES. Q. WHERE PLASTER/STUD WALLS ARE INDICATED TO BE REMOVED, PREPARE ADJACENT WALLS TO RECEIVE NEW PATCH/FINISH BY SAWCUTTING ADJACENT PLASTER FINISH A MINIMUM OF 1'-0" BEYOND DEMOLITION. R. DEMOLISH ALL CARPET IN THE INNER LOBBY AND ON ALL LEVELS OF THE AUDITORIUM. p u o r G R L D © N - R CTIO OT FO U STR N - N O C e r t a e h T t n u o m a r a P e c n a i l l A e r t a e h T n i t s u A 1 0 7 8 7 s a x e T n i t s u A , e v A s s e r g n o C 3 1 7 , e r t a e h T t n u o m a r a P DESIGN DEVELOPMENT 1/30/2026 REVISIONS 39-25287-00 UPPER BALCONY LEVEL - FLOOR PLANS A1.4 1 2 3 4 t v r . 4 2 0 2 _ R A _ o n e R e r t a e h T e a S & t t t n u o m a r a P 0 0 - 7 8 1 5 2 - 9 3 e c n a / i l l A e r t a e h T n i t s u A - t n u o m a r a P 0 0 - 7 8 1 5 2 - 9 3 / / : s c o D k s e d o u A t 5 M P 4 2 : : 7 4 9 6 2 0 2 1 / / 2 A B C D E 1 2 3 4 t v r . 1 A5.1 1 OVERALL FLOOR PLAN - ROOF LEVEL A1.5 SCALE: 1/8" = 1'-0" 1 A5.1 4 2 0 2 _ R A _ o n e R e r t a e h T e a S & t t t n u o m a r a P 0 0 - 7 8 1 5 2 - 9 3 e c n a / i l l A e r t a e h T n i t s u A - t n u o m a r a P 0 0 - 7 8 1 5 2 - 9 3 / / : s c o D k s e d o u A t 5 M P 9 3 : : 7 4 9 6 2 0 2 1 / / 2 1 2 3 4 5 6 7 8 9 10 2 OVERALL DEMOLITION FLOOR PLAN - ROOF LEVEL A1.5 SCALE: 1/8" = 1'-0" # KEYNOTES # DEMOLITION KEYNOTES A B C D E F F ROOF PLAN GENERAL NOTES A. ROOF PLAN GENERAL NOTES APPLY TO ALL ROOF PLAN SHEETS. B. ROOF SLOPES ARE CREATED BY SLOPING THE ROOF STRUCTURE UNLESS NOTED OTHERWISE. SEE STRUCTURAL DRAWINGS FOR ELEVATIONS OF THE HIGH AND LOW POINTS TO DETERMINE PROPER TAPER IN INSULATION. C. TAPERED INSULATION SHALL PROVIDE A MINIMUM OF 1/4-INCH PER FOOT OF SLOPE TO ROOF DRAINS, UNLESS NOTED OTHERWISE. AREAS MARKED WITH A HATCHED PATTERN INDICATE TAPERED INSULATION. D. E. ALL ROOF CURBS TO BE A MINIMUM OF 8 INCHES ABOVE ROOFING LEVELS. PROVIDE TAPERED INSULATION ROOF SADDLES AT ROOF CURBS TO PROVIDE DRAINAGE AROUND CURB. F. SEE STRUCTURAL DRAWINGS FOR FRAMING AROUND ROOF PENETRATIONS. G. COORDINATE THE SIZE AND LOCATION OF ROOF PENETRATIONS FOR MECHANICAL AND ELECTRICAL EQUIPMENT. REFER TO MECHANICAL AND ELECTRICAL DRAWINGS FOR PENETRATIONS NOT SHOWN ON THIS DRAWING. H. FLASH DRAINS, CURBS, VENTS AND STACKS PER MANUFACTURER'S RECOMMENDATIONS IF DETAIL NOT SHOWN ON DRAWINGS. I. NO ROOF PENETRATIONS ALLOWED WITHIN 4'-0" EACH SIDE OF FIREWALL. SEE CODE PLAN FOR FIRE WALL LOCATIONS. p u o r G R L D © N - R CTIO OT FO U STR N - N O C e r t a e h T t n u o m a r a P e c n a i l l A e r t a e h T n i t s u A 1 0 7 8 7 s a x e T n i t s u A , e v A s s e r g n o C 3 1 7 , e r t a e h T t n u o m a r a P DESIGN DEVELOPMENT 1/30/2026 REVISIONS 39-25287-00 ROOF LEVEL - FLOOR PLANS A1.5