Historic Landmark CommissionApril 1, 2026

05.0 - 1010 E Cesar Chavez St Briefing - presentation_Part2 — original pdf

Backup
Thumbnail of the first page of the PDF
Page 1 of 20 pages

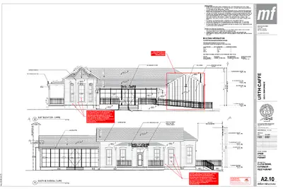
GENERAL NOTES: 1. DO NOT SCALE DRAWINGS. EXPLICIT DIMENSION SHALL HAVE PRECEDENCE OVER SCALE. THESE DOCUMENTS HAVE BEEN FORMATTED TO BE PRINTED ON 24” X 36” SHEET SIZES, DRAWINGS PRINTED AT OTHER SIZES ARE NOT NECESSARILY TO SCALE. 2. GENERAL CONTRACTOR SHALL FIELD VERIFY ALL DIMENSIONS AND ALL OTHER EXISTING CONDITIONS PRIOR TO THE COMMENCEMENT OF THE WORK AND NOTIFY THE ARCHITECT OF ANY DISCREPANCIES. 3. CONTRACTOR TO NOTIFY THE ARCHITECT IN WRITING IN THE EVENT OF A DISCREPANCY BETWEEN THE DRAWINGS AND THE FIELD CONDITIONS. IF IN THE COURSE OF CONSTRUCTION, A STRUCTURAL ISSUE EXISTS WHICH DISAGREES WITH THAT AS INDICATED ON THE DRAWINGS, THE CONTRACTOR SHALL STOP WORK AND NOTIFY THE ARCHITECT. SHOULD THE CONTRACTOR FAIL TO FOLLOW THIS PROCEDURE, THE CONTRACTOR SHALL ASSUME ALL RESPONSIBILITY AND LIABILITY ARISING THERE FROM. 4. ANY DAMAGE TO EXISTING AND OR NEW WORK IN PLACE BY THE CONTRACTOR’S OR SUBCONTRACTOR’S NEGLIGENCE SHALL BE REPAIRED AT NO ADDITIONAL COST TO THE OWNER. 5. ALL NOTES ARE APPLICABLE TO ALL TRADES AND RESPECTIVE CONTRACTORS. ALL NOTES TO BE REVIEWED AND APPLIED TO RELATED BUILDING COMPONENTS. ALL SHEETS ARE TO BE REVIEWED AND ALL APPLICABLE NOTES TO BE APPLIED. BUILDING ELEVATION AND SECTION NOTES: 1. HATCH PATTERNS ARE REPRESENTATIONAL ONLY LOCATING MATERIALS AND MATERIAL SYSTEMS. THEY DO NOT INDICATE EXACT PANEL SIZES OR CONFIGURATIONS. 2. COORDINATE LOCATION OF WINDOW ANCHORS, SEALANT POSITION AND CONTINUITY AND COMPATIBILITY OF SEALANTS WITH ADJACENT WORK INCLUDING MATERIALS AND OTHER CONTIGUOUS SEALANTS. C L L I , E R U T C E T H C R A S U K J A F T T A M mf 900 EAST 6TH STREET SUITE 100 AUSTIN, TX 78702 TEL: 512.432.5137 www.mfarchitecture.com BUILDING INFORMATION CHAPTER 7 FIRE AND SMOKE PROTECTION FEATURES FIRE RESISTANCE RATING REQ'S FOR EXTEROR WALLS BASED ON FIRE SEPARATION DISTANCE (TABLE 705.5) WALL LOCATION EAST SOUTH WEST NORTH DIST TO PROP LINE 5<X<10 10<X<30' X<5' X>30' OCCUPANCY GROUP A-2 1 0 1 0 FIRE WINDOW ASSEMBLY FIRE PROTECTION RATINGS REF TABLE 716.1(3) TYPE OF WALL ASSEMBLY EXTERIOR WALLS REQ'D WALL ASSEMBLY RATING (HRS) 1 MIN FIRE WINDOW ASSEMBLY RATING (HRS) 3/4 FIRE RATED GLAZING MARKING OH-45 OR W-60 WALL PROPOSED TO BE REBUILT TO MATCH ORIGINAL SIDING NEW SIGNAGE BY OTHER WALL SCONCE PROPOSED AREA FOR SIGNAGE CP-3 7" / 1'-0" 7" / 1'-0" CP-3 " 2 / 1 0 1 - ' 1 / " 2 1 5 - ' 8 1 " 7 - ' 6 1 2' - 10 1/2" CP-1 " 3 - ' 6 GL-1 M-2 J 1 T H G E H I I I G N D L U B T S X E I T.O. RESTUARANT PARAPET 116' - 7" T.O. RESTUARANT LOWER PARAPET 111' - 3" B.O STRUCTURE 109' - 6" T.O FOUNDATION MAIN BUILDING 100' - 0" E F F A C H T R U T S Z E V A H C R A S E C . E 0 1 0 1 E L T T I T C E J O R P 8 1/4" / 1'-0" 8 1/4" / 1'-0" 8 1/4" / 1'-0" 8 1/4" / 1'-0" AS-1 PT-1 " 0 - ' 1 / " 4 / 1 8 CP-1 PT-1 2 1/8" / 1'-0" 1 PT-1 101C 101B 101A COPPER DOWNSPOUT NEW SIGNAGE BY OTHER PT-2 " 0 1 - ' 2 " 0 - ' 1 / " 8 " 0 - ' 1 / " 8 / 7 4 EQ EQ " 3 - ' 6 AS-1 AS-1 100 _________________ 2 A5.25 M-2 HISTORIC FACADE TO BE RESTORED. EXISTING WD TEARDROP SIDING TO BE RESTORED. EXISTING HISTORIC GLASS WINDOWS TO BE RESTORED AND REFURBISHED. EXISTING WINDOW TRIM TO BE RESTORED & REPAINTED. GC TO MAINTAIN AS MUCH OF EXISTING MATERIALITY AS POSSIBLE AND REPLACE WITH IN-KIND MATERIALS IN AREAS OF DETERIORATION. EAST ELEVATION - CAFFE 1/4" = 1'-0" 1 2 2' - 9 1/2" FSD 2 TO LESS THAN 3 I E N L Y T R E P O R P T S E W 2 1' - 9" 24" PROJECTION PERMITTED COPPER GUTTER " 0 - ' 1 / " 7 AS-1 COPPER GUTTER NEW SIGNAGE BY OTHER PRESERVE ORIGINAL DOOR, TRIM AND TRANSOM WINDOW 11' - 11 1/2" FSD 5' OR GREATER 8 1 / 4 " / 1 ' - 0 " AS-1 CP-1 " 0 - ' 1 CP-1 RC-1 GL-1 103A 103B 103A 101G 101F 101E 101D 101C 101 STU-1 STU-1 STU-1 STU-1 M-2 M-2 SOUTH ELEVATION - CAFFE 1 1/4" = 1'-0" HISTORIC FACADE TO BE RESTORED. EXISTING WD TEARDROP SIDING TO BE RESTORED. EXISTING HISTORIC GLASS WINDOWS TO BE RESTORED AND REFURBISHED. EXISTING WINDOW TRIM TO BE RESTORED & REPAINTED. GC TO MAINTAIN AS MUCH OF EXISTING MATERIALITY AS POSSIBLE AND REPLACE WITH IN-KIND MATERIALS IN AREAS OF DETERIORATION. : : M P 1 4 3 2 4 5 2 0 2 1 2 0 1 / / : d e t n i r P 1 " 1 1 - ' 2 I E N L Y T R E P O R P T S A E T.O. RESTUARANT PARAPET 116' - 7" T.O. RESTUARANT LOWER PARAPET 111' - 3" B.O STRUCTURE 109' - 6" " 6 - ' 9 1 " 7 - ' 6 1 T.O FOUNDATION MAIN BUILDING 100' - 0" 10/21/2025 L A E S These plans, drawings and specifications are the property of Matt Fajkus Architecture and any use and/or reuse thereof in part or in whole without the written permission of the Architect is prohibited. Copyright © 2025 Matt Fajkus Architecture SHEET PRINT DATE: 10/21/2025 REVISIONS Date 10/21/2025 07/24/2025 Description REVISION 2 REVISION 1 PROJECT NUMBER: 24023 CURRENT PHASE: PERMIT DRAWING TITLE: ELEVATIONS, EXTERIOR - RESTAURANT I N O T A M R O F N I BUILDING APPROVAL 11/14/2025 This stamp serves as a means of building approval and does not include other disciplines. T E E H S A2.10 mfarchitecture START OF PATTERN 6" 6" 6" START OF PATTERN 6" BATTENS SPACED 6" O.C. BATTENS SPACED 6" O.C. BATTENS SPACED 6" O.C. BATTENS SPACED 6" O.C. BATTENS SPACED 1' - 4" O.C. 1' - 4" START OF PATTERN 11 EQ. SPACED BATTENS EQ EQ EQ EQ EQ EQ EQ EQ EQ EQ 1' - 4" . P Y T N G L A I OPEN TO BEYOND . P Y T N G L A I EQ EQ EQ EQ . P Y T N G L A I EQ EQ EQ EQ . P Y T N G L A I . P Y T N G L A I . P Y T N G L A I . P Y T N G L A I EQ TYP. EQ TYP. EQ EQ EQ BATTEN PLACEMENT DIAGRAM - CP-2 1/4" = 1'-0" 4 BATTEN PLACEMENT DIAGRAM - CP-3 1/4" = 1'-0" 3 GENERAL NOTES: 1. DO NOT SCALE DRAWINGS. EXPLICIT DIMENSION SHALL HAVE PRECEDENCE OVER SCALE. THESE DOCUMENTS HAVE BEEN FORMATTED TO BE PRINTED ON 24” X 36” SHEET SIZES, DRAWINGS PRINTED AT OTHER SIZES ARE NOT NECESSARILY TO SCALE. 2. GENERAL CONTRACTOR SHALL FIELD VERIFY ALL DIMENSIONS AND ALL OTHER EXISTING CONDITIONS PRIOR TO THE COMMENCEMENT OF THE WORK AND NOTIFY THE ARCHITECT OF ANY DISCREPANCIES. 3. CONTRACTOR TO NOTIFY THE ARCHITECT IN WRITING IN THE EVENT OF A DISCREPANCY BETWEEN THE DRAWINGS AND THE FIELD CONDITIONS. IF IN THE COURSE OF CONSTRUCTION, A STRUCTURAL ISSUE EXISTS WHICH DISAGREES WITH THAT AS INDICATED ON THE DRAWINGS, THE CONTRACTOR SHALL STOP WORK AND NOTIFY THE ARCHITECT. SHOULD THE CONTRACTOR FAIL TO FOLLOW THIS PROCEDURE, THE CONTRACTOR SHALL ASSUME ALL RESPONSIBILITY AND LIABILITY ARISING THERE FROM. 4. ANY DAMAGE TO EXISTING AND OR NEW WORK IN PLACE BY THE CONTRACTOR’S OR SUBCONTRACTOR’S NEGLIGENCE SHALL BE REPAIRED AT NO ADDITIONAL COST TO THE OWNER. 5. ALL NOTES ARE APPLICABLE TO ALL TRADES AND RESPECTIVE CONTRACTORS. ALL NOTES TO BE REVIEWED AND APPLIED TO RELATED BUILDING COMPONENTS. ALL SHEETS ARE TO BE REVIEWED AND ALL APPLICABLE NOTES TO BE APPLIED. BUILDING ELEVATION AND SECTION NOTES: 1. HATCH PATTERNS ARE REPRESENTATIONAL ONLY LOCATING MATERIALS AND MATERIAL SYSTEMS. THEY DO NOT INDICATE EXACT PANEL SIZES OR CONFIGURATIONS. 2. COORDINATE LOCATION OF WINDOW ANCHORS, SEALANT POSITION AND CONTINUITY AND COMPATIBILITY OF SEALANTS WITH ADJACENT WORK INCLUDING MATERIALS AND OTHER CONTIGUOUS SEALANTS. C L L I , E R U T C E T H C R A S U K J A F T T A M mf 900 EAST 6TH STREET SUITE 100 AUSTIN, TX 78702 TEL: 512.432.5137 www.mfarchitecture.com 1 2 PER IBC TABLE 705.8, FSD BETWEEN 3' TO LESS THAN 5', UNPROTECTED (UP), SPRINKLERED (S), ALLOWABLE AREA OF OPENING IS 15%. PROPOSED TOTAL WALL AREA = 258 SF PROPOSED OPENING AREA = 37 SF 37/258= 15% ALLOWABLE AREA GUARDRAIL AS-1 CL DOOR 1 8 1/4" / 1'-0" CP-1 7" / 1'-0" " 0 - ' 1 / " 8 8 1/4" / 1'-0" 4 1/2" / 1'-0" 1 CP-1 2 1/8" / 1'-0" AS-1 " 0 - ' 8 110B CP-3 CP-2 " 0 - ' 8 GL-1 103B RC-1 RL-1 STU-1 STU-1 HB 1 " 1 1 - ' 2 1 T.O. RESTUARANT PARAPET 116' - 7" T.O. GUARDRAIL 115' - 7 1/2" NEW SIGNAGE BY OTHER T.O. RESTUARANT LOWER PARAPET 111' - 3" B.O STRUCTURE 109' - 6" PT-2 / " 8 7 5 - ' 9 " 1 7 - ' 6 1 " 0 1 - ' 2 T.O FOUNDATION MAIN BUILDING 100' - 0" E F F A C H T R U T S Z E V A H C R A S E C . E 0 1 0 1 E L T T I T C E J O R P 1 2 2 I E N L Y T R E P O R P T S A E " 0 1 - ' 2 WEST ELEVATION - CAFFE 1/4" = 1'-0" 5' - 3 1/2" FSD >5' AS-1 AS-1 AS-1 7 1 / 4 " / 1 ' - 0 " AS-1 " 0 - ' 1 / " 7 AS-1 8 1 / 4 " / 1 ' - 0 " AS-1 " 0 - ' 1 / " 2 / 1 4 CP-3 112 CP-2 103C CP-2 STU-1 STU-1 2' - 9 1/2" FSD 2 TO LESS THAN 3 1 2 I E N L Y T R E P O R P T S A E " 1 1 - ' 2 T.O. RESTUARANT PARAPET 116' - 7" T.O. GUARDRAIL 115' - 7 1/2" 1' - 9 1/2" 24" PROJECTION PERMITTED COPPER GUTTER T.O. RESTUARANT LOWER PARAPET 111' - 3" B.O STRUCTURE 109' - 6" " 8 / 7 5 - ' 9 1 " 7 - ' 6 1 RC-1 T.O FOUNDATION MAIN BUILDING 100' - 0" THEW L. FA T A M J K U S 20652 10/21/2025 L A E S These plans, drawings and specifications are the property of Matt Fajkus Architecture and any use and/or reuse thereof in part or in whole without the written permission of the Architect is prohibited. Copyright © 2025 Matt Fajkus Architecture SHEET PRINT DATE: 10/21/2025 REVISIONS Date 10/21/2025 07/24/2025 Description REVISION 2 REVISION 1 PROJECT NUMBER: 24023 CURRENT PHASE: PERMIT DRAWING TITLE: ELEVATIONS, EXTERIOR - RESTAURANT I N O T A M R O F N I NORTH ELEVATION - CAFFE 1 1/4" = 1'-0" COPPER GUTTER AND DOWNSPOUT SYSTEM COPPER GUTTER AND DOWNSPOUT SYSTEM 1 1 1 WALL PROPOSED TO BE REBUILT TO MATCH ORIGINAL SIDING COPPER GUTTER AND DOWNSPOUT SYSTEM 1 COPPER GUTTER AND DOWNSPOUT SYSTEM 1 : : M A 4 4 8 0 9 5 2 0 2 1 2 0 1 / / : d e t n i r P BUILDING APPROVAL 11/14/2025 This stamp serves as a means of building approval and does not include other disciplines. T E E H S A2.11 mfarchitecture CESAR CHAvEz ELEvATIoN RENdER 23 URTH CAFFÈ HLC Review-April 8, 2026 MEdINA ST ELEvATIoN RENdER CESAR CHAVEZ STREET ELEVATION 24 URTH CAFFÈ HLC Review-April 8, 2026 CESAR CHAVEZ STREET ELEVATION 25 URTH CAFFÈ HLC Review-April 8, 2026 MEdINA ST ELEvATIoN RENdER MEDINA STREET ELEVATION 26 URTH CAFFÈ HLC Review-April 8, 2026 CORNER OF CESAR CHAVEZ & MEDINA STREET 27 URTH CAFFÈ HLC Review-April 8, 2026 BACK OF HOUSE PARKING VIEW 28 URTH CAFFÈ HLC Review-April 8, 2026 STRUCTURAL EvALUATIoN oF ExISTINg STRUCTURE- MAIN REST. February 16, 2026 Benjamin Tomlin A.R. Lucas Construction Re: Structural Evaluation of Existing Structure Urth Caffe - Restaurant 1010 E Cesar Chavez Street Austin, Texas 78702 Dear Benjamin, As per your request, a representative of Fort Structures has reviewed the conditions of the existing foundation and wall framing at 1010 E Cesar Chavez Street. The building is currently supported by a pier and beam wood foundation, which is insufficient to safely accommodate the increased loads required for commercial use. In addition, the foundation shows signs of movement that indicate that the footings are not properly designed to resist the loads of the structure and/or resist the expansion and contraction of the site soil. The following structural deficiencies were observed and need to be corrected: • Many of the existing studs, columns, and foundations show signs of water damage and deterioration • There is no structural sheathing or water proof barrier • Walls shows significant signs of distress and movement The existing wood-framed foundation was originally designed for residential occupancy and has a very low load carrying capability. Current residential occupancy requires 40 pounds per square foot (psf), while commercial occupancy classifications require significantly higher live load requirements such as 75 psf for Retail and 150 psf for Commercial Kitchen. The current pier and beam system lacks the necessary strength, stiffness, and load distribution capacity to support these increased demands. Additionally, the potential for differential settlement and deterioration in the existing wood components further compromises the structural reliability of the building for commercial use. To meet current code requirements and ensure structural integrity, it will be necessary to completely remove the existing foundation and wall framing and replace with a reinforced concrete slab-on-grade system and stud wall framing designed to accommodate the specific occupancy loads of the proposed use. This approach will provide enhanced load-bearing capacity, improved durability, and compliance with IBC standards. If you have any questions regarding the information in this report, please feel free to contact me. Sincerely, FORT Structures, Inc By: Samuel Covey, P.E. Its: Principal, TX Reg# 123,796 FORT Structures, Inc. TBPE Firm# 18034 February 16, 2026 PG 1 of 1 29 URTH CAFFÈ HLC Review-April 8, 2026 bakeRY cOmmissaRY bAkERy CoMMISSARy- AxoN Required modification to original roof form to provide a flat roof area with parapet for kitchen roof top equipment. Flat/parapet roof located towards back corner of lot to minimize from public view. Modification to door entry location for access into level 1 that accomadates new code compliant stair and access to kitchen use from either side. PROPOSED ADDITION PROPOSED MODIFICATION REPLACE TO MATCH EXISTING EXISTING STRUCTURE Back structure framing to remain with the foundation being rebuilt to suppport new equipment and use. Building requires fo foundation due to existing conditions that do not support the loads of new use such as: • Existing foundation poured over dirt floor • 2nd floor framing consists of 2x6 framing • level 1 ceiling heights do not meet min code heights 31 URTH CAFFÈ HLC Review-April 8, 2026 Rot/Water damage and wood pile foundations are insufficient for new structural loads Rot/Water damage and secondary framing retrofits insufficient for new structural loads Exterior building perimeter shows signs of rotten/deteriorating edges Existing corner condition Water damage and deterioration at existing floor framing Rot/Water damage and wood pile foundations are insufficient for new structural loads axonometric views AXONOMETRIC VIEWS ARE FOR REFERENCE ONLY AND ARE PROVIDED SOLELY AS A VISUAL AID. ALL STRUCTURAL INFORMATION SHALL ONLY BE OBTAINED FROM THE PLANS AND DETAILS. Water damaged floor joists. Existing floor framing insufficient for new structural loads Rot/Water damage and wood foundations are insufficient for new structural loads Firm Registration No. 18034 www.fortstructures.com PROJECT No: 24075 Seal MATT FAJKUS ARCHITECTURE, LLC www.mfarchitecture.com COLLABORATOR URTH CAFFE BAKERY 104 MEDINA STREET AUSTIN, TX 78702 project 100% CD 10.24.2025 submittal No ISSUE DATE sheet revision Existing wood pier foundation insufficient for proposed structural loads Damage to existing exterior finishes Overview of existing structure Wall siding and framing show signs of water damage/deterioration Copyright © 2025 FORT Structures EOR: S. Covey PM: J. Suaris ENG: J. Barela BIM PM: J. McIntosh BIM: H. Hargraves TEAM AXONOMETRIC VIEWS - BAKERY Sheet Title S1.01 Sheet Number STRUCTURAL EvALUATIoN oF ExISTINg STRUCTURE- bAkERy February 16, 2026 Benjamin Tomlin A.R. Lucas Construction Re: Structural Evaluation of Existing Structure Urth Caffe - Bakery 104 Medina Street Austin, Texas 78702 Dear Benjamin, As per your request, a representative of Fort Structures has reviewed the conditions of the existing foundation and wall framing at 104 Medina Street. The building is currently supported by a pier and beam wood foundation, which is insufficient to safely accommodate the increased loads required for commercial use. In addition, the foundation shows signs of movement that indicate that the footings are not properly designed to resist the loads of the structure and/or resist the expansion and contraction of the site soil. The following structural deficiencies were observed and need to be corrected: • Many of the existing studs, columns, and foundations show signs of water damage and deterioration • There is no structural sheathing or water proof barrier • Walls shows significant signs of distress and movement The existing wood-framed foundation was originally designed for residential occupancy and has a very low load carrying capability. Current residential occupancy requires 40 pounds per square foot (psf), while commercial occupancy classifications require significantly higher live load requirements such as 75 psf for Retail and 150 psf for Commercial Kitchen. The current pier and beam system lacks the necessary strength, stiffness, and load distribution capacity to support these increased demands. Additionally, the potential for differential settlement and deterioration in the existing wood components further compromises the structural reliability of the building for commercial use. To meet current code requirements and ensure structural integrity, it will be necessary to completely remove the existing foundation and wall framing and replace with a reinforced concrete slab-on-grade system and stud wall framing designed to accommodate the specific occupancy loads of the proposed use. This approach will provide enhanced load-bearing capacity, improved durability, and compliance with IBC standards. If you have any questions regarding the information in this report, please feel free to contact me. Sincerely, FORT Structures, Inc By: Samuel Covey, P.E. Its: Principal, TX Reg# 123,796 FORT Structures, Inc. TBPE Firm# 18034 February 16, 2026 PG 1 of 1 33 URTH CAFFÈ HLC Review-April 8, 2026 building hisTORY vISUAL HISToRy oF ExISTINg STRUCTURE Early photos taken of the home illustrating that current character defining elements still remain on the house to this day. Photo taken in 1970 Photo taken in 1971 by Carl A. Hornbeyer 35 URTH CAFFÈ HLC Review-April 8, 2026 TRACkINg bUILdINg FooTpRINT THRoUgH TIME 1894 NoTES: • Original footprint and existance of non function- ing well onsite • Back structure is along edge of property noted as a carriage house on the legend • Original porch outline can be seen along both Cesar Chavez (formerly 1st St.) and Medina St • Original footprint of main structure is intact SANBORN AUSTIN MAP CIRCA 1894 1010 E CESAR CHAVEZ SITE 36 URTH CAFFÈ HLC Review-April 8, 2026 TRACkINg bUILdINg FooTpRINT THRoUgH TIME 1900 SITE SANBORN AUSTIN MAP CIRCA 1900 1010 E CESAR CHAVEZ NoTES: • Original footprint remains intact from previous Sanborn map • Back structure is along edge of property noted as a carriage house on the legend • Original porch outline can be seen along both Cesar Chavez (formerly 1st St.) and Medina St 37 URTH CAFFÈ HLC Review-April 8, 2026 SANBORN AUSTIN MAP CIRCA 1900 TRACkINg bUILdINg FooTpRINT THRoUgH TIME 1921 SITE SANBORN AUSTIN MAP CIRCA 1921 1010 E CESAR CHAVEZ SITE NoTES: • Original footprint remains intact from previous Sanborn map • Back structure is along edge of property at Medina has changed and now houses a private garage • Original porch outline can be seen along both Cesar Chavez (formerly 1st St.) and Medina St SITE SANBORN AUSTIN MAP CIRCA 1921 38 URTH CAFFÈ HLC Review-April 8, 2026 CITy oF AUSTIN CIRCA EARLy 1900’S 1895 Austin Rapid Transit R’y Co. Inset: The city dam and Lake, Austin, TX REF: UT Briscoe Center 1010 E CESAR CHAvEz 1010 E CESAR CHAvEz 1010 E CESAR CHAvEz NoTES: • Aerial view indicates massing of 1010 E Cesar Chavez circa 1895 • Original building footprint is in alignment with Sanborn Maps 39 URTH CAFFÈ HLC Review-April 8, 2026 CoNTExT oF SURRoUNdINg SITE THRoUgH TIME Scanned images courtesy of the Austin History Center 404 E CESAR CHAVEZ 1010 E CESAR CHAVEZ 1804 E CESAR CHAVEZ 2418 E CESAR CHAVEZ CESAR CHAvEz 900 E CESAR CHAVEZ 1000 E CESAR CHAVEZ 1605 E CESAR CHAVEZ 1301 E CESAR CHAVEZ 40 URTH CAFFÈ HLC Review-April 8, 2026