Historic Landmark CommissionMarch 4, 2026

07.1 - 1508 Pease Rd - Drawings — original pdf

Backup
Thumbnail of the first page of the PDF
Page 1 of 16 pages

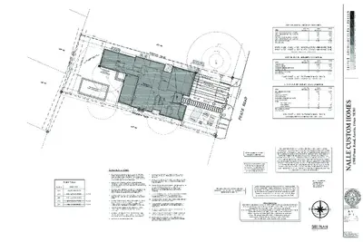
26'-2" " 2 / 1 1 7'- NEW BURIED ELEC. LINE POOL EQUIPMENT LOCATION " 1 4'- E D LIN UIL 0' B 1 1 2 CRZ 1/4 CRZ 5' BUILD LINE " 7 3'- PROVIDE 8" LAYER OF MULCH WITHIN ENTIRE AVAILABLE ROOT ZONE " 2 / 1 1 5'- 156 36'-4 1/2" 10'-0 1/2" 567.8' LOWEST ADJACENT NATURAL GRADE 260 PROPOSED POOL AUTO FILLED & HEATED 567 56'-11" 274 568 " 1 1 5'- RESIDENCE FIN. FLR. ELEV=571.5' 5 6 9 5 7 0 272 " 2 / 8 1 4'- 5' BUILD LINE E D LIN UIL 6' B 3 570.8' HIGHEST ADJACENT NATURAL GRADE " 0 3'- " 0 2'- " 0 3'- " 0 3'- " 0 3'- " 0 2'- " 0 3'- TREE PROTECTION CONC. STRIP DRIVE 24" SQ. x 5' H. BRICK COL. E T A RIC G T C E L E R 5 ' - 0 " E T U O S R S E C C A 5 7 2 " 0 9'- 1 R5'-0" 233 " 2 / 7 1 3'- DUMPSTER 5 7 1 PORT-A-POT " 2 / 2 1 5'- 36'-0" PAINTWASHOUT SPOILS CONCRETE WASHOUT WATER TRENCH WM SEWER TRENCH GAS TRENCH E C N E L F A T E 4' H. M CITY OF AUSTIN - GROSS FLOOR AREA AREA UNIT 1 - 1ST FLOOR AREA (INCL. MASONRY) UNIT 1 - 2ND FLOOR AREA (INCL. MASONRY) GARAGE UNIT 2 - 1ST FLOOR AREA (INCL. MASONRY) UNIT 2 - 2ND FLOOR AREA (INCL. MASONRY) TOTAL GROSS FLOOR AREA TOTAL LOT AREA EXISTING/ REMODELED NEW/ ADDITION 0` 0` 0` 0` 0` 0` 2,585` 1,053` 563` 0` 987` 5,188` TOTAL 2,585` 1,053` 563` 0` 987` 5,188` 9,437` UNIT 1 3,638` / 9,437` x 100 = 38.5% FLOOR-TO-AREA RATIO (FAR) UNIT 2 1,550` / 9,437` x 100 = 16.4% FLOOR-TO-AREA RATIO (FAR) ALLOWABLE FAR: 9,437` x 55% = 5,190` CITY OF AUSTIN - BUILDING COVERAGE AREA 1ST FLOOR AREA GARAGE/CARPORT ACCESSORY BUILDING (DETACHED) COVERED PORCHES TOTAL BUILDING COVERAGE TOTAL LOT AREA EXISTING/ REMODELED NEW/ ADDITION 0` 0` 0` 0` 0` 0` 2,585` 563` 0` 471` 3,619` 3,619`/ 9,437` x 100 = 38.3% PERCENTAGE OF LOT ALLOWABLE BUILDING COVERAGE: 9,437` x 40% = 3,774` CITY OF AUSTIN - IMPERVIOUS COVERAGE AREA TOTAL BUILDING COVERAGE DRIVEWAY SIDEWALKS/WALKWAYS UNCOVERED PATIOS UNCOVERED WOOD DECKS (0` @ 50%) AC/ POOL EQUIP PADS OTHER: EXIST. CONC. WALLS POOL COPING BRICK COLUMNS TOTAL IMPERVIOUS COVER TOTAL LOT AREA EXISTING/ REMODELED NEW/ ADDITION 0` 0` 0` 0` 0` 0` 0` 0` 0` 0` 3,619` 436` 0` 0` 0` 32` 0` 84` 20` 4,191` 4,191`/ 9,437` x 100 = 44.4% PERCENTAGE OF LOT ALLOWABLE IMPERVIOUS COVERAGE: 9,437` x 45% = 4,246` TOTAL 2,585` 563` 0` 471` 3,619` 9,437` TOTAL 3,619` 436` 0` 0` 0` 32` 0` 84` 20` 4,191` 9,437` Point Table Point # Description 156 233 260 272 274 TRE 29 OAK TT193 TRE 16.5 OAK TT189 REMOVE TRE 15.5 OAK TT192 TRE 7.5 OAK TT190 REMOVE TRE 15 OAK TT188 REMOVE GENERAL SITE NOTES: 1. ALL WORK TO CONFORM TO AND MEET LOCAL MINIMUM CODES, ORDINANCES, RULES, REGULATIONS AND LAWS OF BUILDING OFFICIALS OR AUTHORITIES HAVING JURISDICTION. ALL WORK NECESSARY TO COMPLY WITH SUCH REQUIREMENTS SHALL BE PROVIDED BY THE CONTRACTOR. 2. CONTRACTOR IS RESPONSIBLE FOR LAYOUT OF PROJECT. REPORT ANY VARIATIONS BETWEEN ACTUAL SITE CONDITIONS AND INFORMATION SHOWN ON DRAWINGS TO ARCHITECT IN A TIMELY MANNER. 3. STRUCTURAL ENGINEER FOR ALL PARTS OF THIS PROJECT TO BE DESIGNED BY OTHERS. CONTRACTOR IS RESPONSIBLE FOR COORDINATION OF ALL STRUCTURAL REQUIREMENTS. 4. GENERAL CONTRACTOR TO PROVIDE PERMITS AND FEES REQUIRED FOR HIS TRADE AND ALL INSPECTIONS REQUIRED BY CODE. 5. GENERAL CONTRACTOR TO KEEP CONSTRUCTION SITE CLEAN AND ORGANIZED. CONTRACTOR SHALL CLEAN UP AREAS AFFECTED BY DAILY WORK AND REMOVE DEBRIS AND MATERIALS FROM THE SITE UPON COMPLETION OF THE WORK. 6. RELOCATE EXISTING UTILITIES AS REQUIRED (GAS, ELECTRIC, SEWER, CABLE, TELEPHONE). SEE SITE PLAN FOR NEW LOCATIONS. 7. ALL TRENCHING REQUIRED FOR UTILITIES TO BE DONE WITH EXTREME CARE TO ENSURE PROTECTION OF TREE AND ROOTS. WORK TO BE DONE AROUND ROOTS, NOT THROUGH THEM. 8. SURVEYOR TO LOCATE HOUSE ON SITE. 9. DO NOT SCALE DRAWINGS, CONTACT ARCHITECT UPON DISCOVERY OF MISSING INFORMATION OR CONFLICTS IN DRAWINGS. 10. MECHANICAL, ELECTRICAL, PLUMBING AND FIRE ENGINEERING TO BE PROVIDED BY OTHERS. MAY REQUIRE COORDINATION WITH ARCHITECT. 11. CONTRACTOR TO PROVIDE PROPER SOIL GRADING TO ENSURE POSITIVE DRAINAGE AWAY FROM THE STRUCTURE. SOIL GRADING SHALL BE EXECUTED IN A MANNER SO THAT DRAINAGE SHALL NOT BE DIRECTED TO NEIGHBORING PROPERTIES. 12. EXPOSED FOUNDATION TO BE MINIMUM OF 8" AND A MAXIMUM OF 24" ABOVE FINISHED GRADE OR PER SUBDIVISION REQUIREMENTS. UNDERPIN ALL EXPOSED FOUNDATIONS. 13. PROVIDE CONTROL AND EXPANSION JOINTS AS REQUIRED ON CONCRETE DRIVES, WALKS AND PATIOS. 14. ALL EXTERIOR HVAC EQUIPMENT TO BE SCREENED PER CITY REQUIREMENTS, DEED RESTRICTIONS OR NEIGHBORHOOD ASSOCIATION. 15. LOCATION OF MAILBOX AND EXTERIOR DRIVEWAY LIGHT(S) TO BE VERIFIED PRIOR TO INSTALLATION. 16. LANDSCAPE PLANS TO BE PROVIDED BY OTHERS AND PERMIT FOR SAME TO BE OBTAINED SEPARATELY FROM THESE PLANS. 17. CONTRACTOR SHALL CLEAN UP AREAS AFFECTED BY DAILY WORK AND REMOVE DEBRIS AND MATERIALS FROM THE SITE UPON COMPLETION OF THE WORK. NOTE: OWNER TO PAY FEE IN LIEU OF SIDEWALK NOTE: CONSTRUCTION ACCESS PATH IS 3 4" PLYWOOD ON TOP OF 2x6 PLANKS ON TOP OF 8" LAYER OF HARDWOOD MULCH ON TOP OF EXIST. GRADE. PROVIDE TREE PROTECTION AS REQUIRED PER ENVIRONMENTAL CRITERIA MANUAL SECT. 3.5.2 IN ORDER TO ASSURE THAT THE REMAINING ROOT ZONES ARE ADEQUATELY PRESERVED, TREE PROTECTION FENCING IS REQUIRED FOR ALL TREES WITHIN THE LIMITS OF CONSTRUCTION. FENCING SHOULD BE INDICATED TO PROTECT THE ENTIRE CRZ AREA OR AS MUCH OF THE CRZ AS PRACTICAL. FENCING IS REQUIRED TO BE CHAIN LINK MESH AT A MINIMUM HEIGHT OF 5 FEET. WHEN THE TREE PROTECTION FENCING CANNOT INCORPORATE THE ENTIRE 1 2 CRZ, AN 8" LAYER OF MULCH WITHIN THE ENTIRE AVAILABLE ROOT ZONE AREA IS REQUIRED FOR ALL TREES WHICH HAVE ANY DISTURBANCE INDICATED WITHIN ANY PORTION IF THE CRZ. 2X4 OR GREATER SIZE PLANKS (6' TALL MIN.) TO BE STRAPPED SECURELY AROUND PROTECTED TREE TRUNKS AND ROOT FLARES WHEN PROTECTIVE FENCING DOES NOT INCORPORATE THE ENTIRE 1 2 CRZ FOR ANY REASON AT ANY TIME ON THE PROJECT. PROVIDE A PRIVATE CERTIFIED ARBORIST ASSESSMENT OF THE PRUNING REQUIREMENTS NEEDED FOR THE PROJECT Extend the tree protection fence to full CRZ where possible. Where construction is adjacent to protected root zone, move fence back 4' to allow work zone access. 10" layer of rough grind mulch to be applied in work zone to buffer foot traffic. Equipment may not access the work zone. Add decking/ plywood over the mulch if encroaching within the 1 2 CRZ. APPLICABLE CODES International Residential Code (IRC) 2024 - With City of Austin Local Amendments International Energy Conservation Code (IECC) 2024 - With Local Amendments International Fire Code (IFC) 2024 - With Local Amendments International Swimming Pool and Spa Code (ISPSC) 2018 - With Local Amendments National Electrical Code (NEC) 2023 - With Local Amendments Uniform Mechanical Code (UMC) 2024 - With Local Amendments Uniform Plumbing Code (UPC) 2024 - With Local Amendments International Wildland-Urban Interface Code (IWUIC) 2024 NFPA 13, 13R, and 13D for Sprinkler Systems 2025 W LEGAL DESCRIPTION: 1508 PEASE ROAD LOT 43 ENFIELD C AUSTIN, TEXAS 78703 TRAVIS COUNTY N S E SITE PLAN SCALE 1:10 N G I S E D + E R U T C E T I H C R A ] y e r g [ 7 9 2 2 . 4 8 4 . 2 1 5 1 3 7 8 7 S A X E T , N I T S U A E V O C D R A Y T R U O C 8 0 6 5 T C E T I H C R A - R E N I E T S J M A D A S E M O H M O T S U C E L L A N 3 0 7 8 7 s a x e T , n i t s u A , d a o R e s a e P 8 0 5 1 GISTERED ARCHIT AM J. STEIN E R D A E C T E R S T AT 23208 E FO SA XET 02.09.26 SHEET NO. A-1 1 OF 12 PROJECT NO. DRAWN BY: DATE: CHECKED BY: REVISION: 25020 AS 02.09.26 AS Copyright C 2022 All Rights Reserved. These designs/drawings are the sole property of Adam Steiner and may not be reproduced in any form, by any method, for any purpose without previous written permission. PRIMARY SUITE PRIMARY BATH PRIMARY W.I.C. POOL BATH GALLERY PANTRY/ PREP KITCHEN KITCHEN MUD 2-CAR GARAGE UTILITY 1 OUTDOOR DINING DINING OUTDOOR LIVING LIVING FOYER COVERED ENTRY VEST. BATH 2 FLEX/ STUDY POOL SPA BEACH GISTERED ARCHIT AM J. STEIN E R D A E C T E R S T AT 23208 E FO SA XET 02.09.26 N G I S E D + E R U T C E T I H C R A ] y e r g [ PRIMARY SUITE PRIMARY BATH PRIMARY W.I.C. POOL BATH GALLERY PANTRY/ PREP KITCHEN KITCHEN MUD 2-CAR GARAGE UTILITY 1 DINING OUTDOOR DINING OUTDOOR LIVING LIVING FOYER COVERED ENTRY VEST. BATH 2 FLEX/ STUDY POOL SPA BEACH GISTERED ARCHIT M J. STEIN E R A D A E C T E R S T AT 23208 E FO S A XET 02.09.26 N G I S E D + E R U T C E T I H C R A ] y e r g [ BATH 3 UTILITY 2 UNIT 2 BATH 1 W.I.C. BEDROOM 3 LOFT UNIT 2 OFFICE W.I.C. W.I.C. BEDROOM 4 BATH 4 UNIT 2 BEDROOM UNIT 2 BATH 2 GISTERED ARCHIT M J. STEIN E R A D A E C T E R S T AT 23208 E FO S A XET 02.09.26 N G I S E D + E R U T C E T I H C R A ] y e r g [ UNIT 2 BATH 1 W.I.C. LOFT UNIT 2 OFFICE BATH 3 UTILITY 2 BEDROOM 3 W.I.C. W.I.C. BEDROOM 4 BATH 4 UNIT 2 BATH 2 UNIT 2 BEDROOM GISTERED ARCHIT M J. STEIN E R A D A E C T E R S T AT 23208 E FO S A XET 02.09.26 N G I S E D + E R U T C E T I H C R A ] y e r g [ GISTERED ARCHIT M J. STEIN E R A D A E C T E R S T AT 23208 E FO S A XET 02.09.26 N G I S E D + E R U T C E T I H C R A ] y e r g [ GISTERED ARCHIT AM J. STEIN E R D A E C T E R S T AT 23208 E FO SA XET 02.09.26 N G I S E D + E R U T C E T I H C R A ] y e r g [ GISTERED ARCHIT M J. STEIN E R A D A E C T E R S T AT 23208 E FO SA XET 02.09.26 N G I S E D + E R U T C E T I H C R A ] y e r g [ By B. Crosby at 11:28 am, Feb 11, 2026 (cid:33)(cid:76)(cid:76)(cid:186)(cid:51)(cid:84)(cid:82)(cid:85)(cid:67)(cid:84)(cid:85)(cid:82)(cid:69)(cid:83)(cid:186)(cid:77)(cid:85)(cid:83)(cid:84)(cid:186)(cid:77)(cid:65)(cid:73)(cid:78)(cid:84)(cid:65)(cid:73)(cid:78)(cid:186)(cid:17)(cid:21)(cid:186)(cid:70)(cid:84)(cid:186)(cid:50)(cid:65)(cid:68)(cid:73)(cid:65)(cid:76)(cid:186)(cid:35)(cid:76)(cid:69)(cid:65)(cid:82)(cid:65)(cid:78)(cid:67)(cid:69)(cid:186)(cid:33)(cid:46)(cid:36)(cid:186)(cid:23)(cid:186)(cid:70)(cid:84)(cid:186) (cid:22)(cid:186)(cid:73)(cid:78)(cid:67)(cid:72)(cid:186)(cid:40)(cid:79)(cid:82)(cid:73)(cid:90)(cid:79)(cid:78)(cid:84)(cid:65)(cid:76)(cid:186)(cid:35)(cid:76)(cid:69)(cid:65)(cid:82)(cid:65)(cid:78)(cid:67)(cid:69)(cid:186)(cid:70)(cid:82)(cid:79)(cid:77)(cid:186)(cid:33)(cid:37)(cid:186)(cid:47)(cid:86)(cid:69)(cid:82)(cid:72)(cid:69)(cid:65)(cid:68)(cid:186)(cid:48)(cid:82)(cid:73)(cid:77)(cid:65)(cid:82)(cid:89)(cid:186)(cid:65)(cid:78)(cid:68)(cid:186) (cid:46)(cid:69)(cid:85)(cid:84)(cid:82)(cid:65)(cid:76)(cid:186) (cid:37)(cid:76)(cid:69)(cid:67)(cid:84)(cid:82)(cid:73)(cid:67)(cid:65)(cid:76)(cid:186) (cid:36)(cid:73)(cid:83)(cid:84)(cid:82)(cid:73)(cid:66)(cid:85)(cid:84)(cid:73)(cid:79)(cid:78)(cid:186) (cid:87)(cid:73)(cid:82)(cid:69)(cid:83)(cid:14)(cid:186) (cid:52)(cid:72)(cid:73)(cid:83)(cid:186) (cid:77)(cid:69)(cid:65)(cid:83)(cid:85)(cid:82)(cid:69)(cid:77)(cid:69)(cid:78)(cid:84)(cid:186) (cid:73)(cid:83)(cid:186) (cid:70)(cid:82)(cid:79)(cid:77)(cid:186)(cid:84)(cid:72)(cid:69)(cid:186)(cid:78)(cid:69)(cid:65)(cid:82)(cid:69)(cid:83)(cid:84)(cid:186)(cid:87)(cid:73)(cid:82)(cid:69)(cid:186)(cid:84)(cid:79)(cid:186)(cid:84)(cid:72)(cid:69)(cid:186)(cid:69)(cid:68)(cid:71)(cid:69)(cid:186)(cid:79)(cid:70)(cid:186)(cid:84)(cid:72)(cid:69)(cid:186)(cid:83)(cid:84)(cid:82)(cid:85)(cid:67)(cid:84)(cid:85)(cid:82)(cid:69)(cid:186)(cid:8)(cid:73)(cid:78)(cid:67)(cid:76)(cid:85)(cid:68)(cid:73)(cid:78)(cid:71)(cid:186) (cid:69)(cid:65)(cid:86)(cid:69)(cid:83)(cid:186)(cid:65)(cid:78)(cid:68)(cid:186)(cid:79)(cid:86)(cid:69)(cid:82)(cid:72)(cid:65)(cid:78)(cid:71)(cid:83)(cid:9)(cid:14)(cid:186)(cid:48)(cid:69)(cid:82)(cid:186)(cid:33)(cid:37)(cid:186)(cid:35)(cid:82)(cid:73)(cid:84)(cid:69)(cid:82)(cid:73)(cid:65)(cid:186)(cid:17)(cid:14)(cid:17)(cid:16)(cid:186)(cid:8)(cid:67)(cid:76)(cid:69)(cid:65)(cid:82)(cid:65)(cid:78)(cid:67)(cid:69)(cid:186)(cid:65)(cid:78)(cid:68)(cid:186) (cid:83)(cid:65)(cid:70)(cid:69)(cid:84)(cid:89)(cid:186)(cid:82)(cid:69)(cid:81)(cid:85)(cid:73)(cid:82)(cid:69)(cid:77)(cid:69)(cid:78)(cid:84)(cid:83)(cid:9) (cid:8)(cid:22)(cid:22)(cid:37)(cid:27)(cid:26)(cid:26)(cid:22)(cid:32)(cid:4)(cid:32)(cid:27)(cid:12)(cid:32)(cid:37)(cid:23)(cid:34)(cid:32)(cid:33)(cid:37)(cid:23)(cid:12)(cid:20)(cid:24)(cid:33)(cid:12)(cid:20)(cid:24)(cid:37)(cid:7)(cid:6)(cid:37)(cid:16)(cid:33)(cid:37)(cid:13)(cid:22)(cid:15)(cid:12)(cid:29)(cid:12)(cid:24)(cid:13)(cid:15)(cid:37) (cid:16)(cid:29)(cid:26)(cid:23)(cid:37)(cid:12)(cid:22)(cid:22)(cid:37)(cid:26)(cid:86)(cid:15)(cid:29)(cid:18)(cid:15)(cid:12)(cid:14)(cid:37)(cid:35)(cid:20)(cid:29)(cid:15)(cid:32)(cid:12)(cid:37)(cid:34)(cid:24)(cid:14)(cid:15)(cid:29)(cid:17)(cid:29)(cid:26)(cid:34)(cid:24)(cid:14)(cid:37)(cid:27)(cid:34)(cid:22)(cid:22)(cid:37) (cid:66)(cid:26)(cid:88)(cid:15)(cid:32)(cid:37)(cid:12)(cid:24)(cid:14)(cid:37)(cid:27)(cid:12)(cid:14)(cid:23)(cid:26)(cid:34)(cid:24)(cid:33)(cid:37)(cid:33)(cid:29)(cid:12)(cid:24)(cid:32)(cid:16)(cid:26)(cid:29)(cid:23)(cid:15)(cid:29)(cid:32)(cid:3)(cid:37)(cid:48)(cid:15)(cid:29)(cid:37)(cid:8)(cid:9)(cid:37) (cid:35)(cid:29)(cid:20)(cid:33)(cid:15)(cid:29)(cid:20)(cid:12)(cid:37)(cid:7)(cid:3)(cid:7)(cid:6)(cid:37)(cid:8)(cid:13)(cid:22)(cid:15)(cid:12)(cid:29)(cid:12)(cid:24)(cid:13)(cid:15)(cid:37)(cid:12)(cid:24)(cid:14)(cid:37)(cid:32)(cid:12)(cid:16)(cid:15)(cid:33)(cid:89) (cid:29)(cid:15)(cid:81)(cid:34)(cid:20)(cid:29)(cid:15)(cid:23)(cid:15)(cid:24)(cid:33)(cid:32)(cid:9) (cid:33)(cid:78)(cid:89)(cid:186)(cid:48)(cid:82)(cid:79)(cid:80)(cid:79)(cid:83)(cid:69)(cid:68)(cid:186)(cid:37)(cid:76)(cid:69)(cid:67)(cid:84)(cid:82)(cid:73)(cid:67)(cid:65)(cid:76)(cid:186)(cid:51)(cid:69)(cid:82)(cid:86)(cid:73)(cid:67)(cid:69)(cid:186) (cid:44)(cid:79)(cid:67)(cid:65)(cid:84)(cid:73)(cid:79)(cid:78)(cid:186)(cid:73)(cid:83)(cid:186)(cid:46)(cid:47)(cid:52)(cid:186)(cid:41)(cid:78)(cid:67)(cid:76)(cid:85)(cid:68)(cid:69)(cid:68)(cid:186)(cid:68)(cid:85)(cid:82)(cid:73)(cid:78)(cid:71)(cid:186) (cid:84)(cid:72)(cid:69)(cid:186)(cid:34)(cid:51)(cid:48)(cid:33)(cid:186)(cid:50)(cid:69)(cid:86)(cid:73)(cid:69)(cid:87)(cid:14) 26'-2" " 2 / 1 1 7'- 7'- NEW BURIED ELEC. LINE POO POOL EQUIPMENT CAOCOL LOCATIONNONTIO NN (cid:16)(cid:25)(cid:22)(cid:46)(cid:8)(cid:33)(cid:33)(cid:28)(cid:26)(cid:20)(cid:18)(cid:31)(cid:38)(cid:46)(cid:18)(cid:37)(cid:37)(cid:40)(cid:30)(cid:22)(cid:37)(cid:46)(cid:18)(cid:28)(cid:28)(cid:46)(cid:34)(cid:22)(cid:37)(cid:33)(cid:32)(cid:31)(cid:37)(cid:26)(cid:19)(cid:26)(cid:28)(cid:26)(cid:38)(cid:44)(cid:46)(cid:18)(cid:31)(cid:21)(cid:46)(cid:28)(cid:26)(cid:18)(cid:19)(cid:26)(cid:28)(cid:26)(cid:38)(cid:44)(cid:46)(cid:23)(cid:32)(cid:34)(cid:46)(cid:22)(cid:34)(cid:34)(cid:32)(cid:34)(cid:37)(cid:46) (cid:32)(cid:31)(cid:46)(cid:18)(cid:31)(cid:44)(cid:46)(cid:37)(cid:40)(cid:19)(cid:30)(cid:26)(cid:38)(cid:38)(cid:22)(cid:21)(cid:46)(cid:33)(cid:28)(cid:18)(cid:31)(cid:37)(cid:15)(cid:46)(cid:26)(cid:38)(cid:46)(cid:26)(cid:37)(cid:46)(cid:38)(cid:25)(cid:22)(cid:46)(cid:37)(cid:32)(cid:28)(cid:22)(cid:46)(cid:34)(cid:22)(cid:37)(cid:33)(cid:32)(cid:31)(cid:37)(cid:26)(cid:19)(cid:26)(cid:28)(cid:26)(cid:38)(cid:44)(cid:46)(cid:32)(cid:23)(cid:46)(cid:38)(cid:25)(cid:22)(cid:46) (cid:18)(cid:33)(cid:33)(cid:28)(cid:26)(cid:20)(cid:18)(cid:31)(cid:38)(cid:46)(cid:38)(cid:32)(cid:46)(cid:33)(cid:34)(cid:32)(cid:42)(cid:26)(cid:21)(cid:22)(cid:46)(cid:18)(cid:20)(cid:20)(cid:40)(cid:34)(cid:18)(cid:38)(cid:22)(cid:46)(cid:18)(cid:31)(cid:21)(cid:46)(cid:20)(cid:40)(cid:34)(cid:34)(cid:22)(cid:31)(cid:38)(cid:46)(cid:26)(cid:31)(cid:23)(cid:32)(cid:34)(cid:30)(cid:18)(cid:38)(cid:26)(cid:32)(cid:31)(cid:46)(cid:23)(cid:32)(cid:34)(cid:46) (cid:34)(cid:22)(cid:42)(cid:26)(cid:22)(cid:43)(cid:4)(cid:46)(cid:16)(cid:25)(cid:22)(cid:46)(cid:18)(cid:33)(cid:33)(cid:28)(cid:26)(cid:20)(cid:18)(cid:31)(cid:38)(cid:46)(cid:26)(cid:37)(cid:46)(cid:34)(cid:22)(cid:37)(cid:33)(cid:32)(cid:31)(cid:37)(cid:26)(cid:19)(cid:28)(cid:22)(cid:46)(cid:23)(cid:32)(cid:34)(cid:46)(cid:18)(cid:31)(cid:44)(cid:46)(cid:18)(cid:21)(cid:21)(cid:26)(cid:38)(cid:26)(cid:32)(cid:31)(cid:18)(cid:28)(cid:46)(cid:20)(cid:32)(cid:37)(cid:38)(cid:37)(cid:46) (cid:18)(cid:31)(cid:21)(cid:46)(cid:21)(cid:22)(cid:28)(cid:18)(cid:44)(cid:37)(cid:30)(cid:46)(cid:20)(cid:32)(cid:31)(cid:37)(cid:22)(cid:84)(cid:40)(cid:22)(cid:31)(cid:38)(cid:28)(cid:44)(cid:15)(cid:46)(cid:23)(cid:34)(cid:32)(cid:30)(cid:46)(cid:26)(cid:31)(cid:18)(cid:20)(cid:20)(cid:40)(cid:34)(cid:18)(cid:38)(cid:22)(cid:46)(cid:26)(cid:31)(cid:23)(cid:32)(cid:34)(cid:30)(cid:18)(cid:38)(cid:26)(cid:32)(cid:31)(cid:46)(cid:32)(cid:34)(cid:46) (cid:21)(cid:32)(cid:20)(cid:40)(cid:30)(cid:22)(cid:31)(cid:38)(cid:37)(cid:46)(cid:33)(cid:34)(cid:32)(cid:42)(cid:26)(cid:21)(cid:22)(cid:21)(cid:46)(cid:38)(cid:32)(cid:46)(cid:34)(cid:22)(cid:42)(cid:26)(cid:22)(cid:43)(cid:22)(cid:34)(cid:37)(cid:4) " 1 4'- 55 5' BUILD LINE " 7 3'- E D LIN UIL 0' B 1 10'-0 1/2" 0'- 567.8' LOWEST LADJACENT NATURAL GRADE AC G 260 PROPOSED POOLLO AUTO FILLED & HEATED EAH 567 56'-11" 6 274 274 FIN FL FIN FL FIN FL RESIDENCDENCDENCE DENC FIN. FLR. ELEV=571.5' '' 568 " 1 1 5'- 5 272 " 2 / 8 1 8 4'- 5 6 9 5' BUILD LINE 5 7 0 EE E E D LIN D LIN UIL UIL 6' B 6' B 3 1 2 CRZ 1/4 CRZ 156 36'-4 1/2" PROVIDE 8" LAYER OF MULCH WITHIN ENTIREN AVAILABLE ROOT ZONE ZOO YE " 2 2 2 2222 2 222 2 / / / // / / / / 1 11 1 1 1 1 11 11 1 '- 5'-''5 - 555'5'- 5'- '- ' 5 55 55555 8' A 570.8' HIGHEST ADJACENT NATURAL GRADE " 0 0 3'- 3' "" " 0 0 2'- 22222222222222222222222222222222222222222222 "" " " " 0 0 3'- 3' 3'33 3 " 0 3'- " 0 3'- "" " 0 0 2'- 2222222222222222222222222222222222222222 " 0 3'- T TREE PROTECTION CONC. STRIP DRIVE 24" SQ. x 5' H. 24" BRICK COL. E T A G G C RIC GG T T C C E L E PAINT PAAINNTWASHOUT WWW NNNT W W WASASHOHOUUT UTT SPOPOILLS SPOILS CONCRETE CO CONCRETE COONCCRRETE W WASHOUT WAASHHOOUT WASHOUT E C N E L F L A T E 4' H. M H. R RR 5 5 ' - 0 " E T U O S R S E C C A 5 5 5 55 5 5 5 7 7 7 7 7 7 7 2 " 0 9'- 1 R5'-0" WW WATER TRENCHHHHH WMW SEWER TRENCH GAS TRENCH 2233 233 " " 22 2 2 2 / 7 1 7 3'- 3 3 DUDUMMPSTSTERR DUMPSTER 5 7 1 PORT-A-POT PORT-A-POT POPORA RT-A-POOT P AAAPPOPO A T " 2 / 2 1 5'- 5' 36'-0" CITY OF AUSTIN - GROSS FLOOR AREA AREA UNIT 1 - 1ST FLOOR AREA (INCL. MASONRY) UNIT 1 - 2ND FLOOR AREA (INCL. MASONRY) GARAGE UNIT 2 - 1ST FLOOR AREA (INCL. MASONRY) UNIT 2 - 2ND FLOOR AREA (INCL. MASONRY) TOTAL GROSS FLOOR AREA TOTAL LOT AREA EXISTING/ REMODELED NEW/ ADDITION 0` 0` 0` 0` 0` 0` 2,585` 1,053` 563` 0` 987` 5,188` TOTAL 2,585` 1,053` 563` 0` 987` 5,188` 9,437` UNIT 1 3,638` / 9,437` x 100 = 38.5% FLOOR-TO-AREA RATIO (FAR) UNIT 2 1,550` / 9,437` x 100 = 16.4% FLOOR-TO-AREA RATIO (FAR) ALLOWABLE FAR: 9,437` x 55% = 5,190` CITY OF AUSTIN - BUILDING COVERAGE AREA 1ST FLOOR AREA GARAGE/CARPORT ACCESSORY BUILDING (DETACHED) COVERED PORCHES TOTAL BUILDING COVERAGE TOTAL LOT AREA EXISTING/ REMODELED NEW/ ADDITION 0` 0` 0` 0`0` 0` 2,585` 563` 0` 471` 3,619` 3,619`/ 9,437` x 100 = 38.3% PERCENTAGE OF LOT ALLOWABLE BUILDING COVERAGE: 9,437` x 40% = 3,774` CITY OF AUSTIN - IMPERVIOUS COVERAGE AREA TOTAL BUILDING COVERAGE DRIVEWAY SIDEWALKS/WALKWAYS UNCOVERED PATIOS UNCOVERED WOOD DECKS (0` @ 50%) AC/ POOL EQUIP PADS OTHER: EXIST. CONC. WALLS POOL COPING BRICK COLUMNS TOTAL IMPERVIOUS COVER TOTAL LOT AREA EXISTING/ REMODELED NEW/ ADDITION 0` 0` 0` 0` 0` 0` 0` 0` 0` 0` 3,619` 436` 0` 0` 0` 32` 0` 84` 20` 4,191` 4,191`/ 9,437` x 100 = 44.4% PERCENTAGE OF LOT ALLOWABLE IMPERVIOUS COVERAGE: 9,437` x 45% = 4,246` TOTAL 2,585` 563` 0` 471` 3,619` 9,437` TOTAL 3,619` 436` 0` 0` 0` 32` 0` 84` 20` 4,191` 9,437` Point Table Point # Description 156 233 260 272 274 TRE 29 OAK TT193 TRE 16 5 OAK TT189 TRE 16.5 OAK TT189 REMOVE TRE 15.5 OAK TT192 TRE 7 5 OAK TT190 TRE 7.5 OAK TT190 REMOVE TRE 15 OAK TT188 TRE 15 OAK TT188 REMOVE GENERAL SITE NOTES: 1. ALL WORK TO CONFORM TO AND MEET LOCAL MINIMUM CODES, ORDINANCES, RULES, REGULATIONS AND LAWS OF BUILDING OFFICIALS OR AUTHORITIES HAVING JURISDICTION. ALL WORK NECESSARY TO COMPLY WITH SUCH REQUIREMENTS SHALL BE PROVIDED BY THE CONTRACTOR. 2. CONTRACTOR IS RESPONSIBLE FOR LAYOUT OF PROJECT. REPORT ANY VARIATIONS BETWEEN ACTUAL SITE CONDITIONS AND INFORMATION SHOWN ON DRAWINGS TO ARCHITECT IN A TIMELY MANNER. 3. STRUCTURAL ENGINEER FOR ALL PARTS OF THIS PROJECT TO BE DESIGNED BY OTHERS. CONTRACTOR IS RESPONSIBLE FOR COORDINATION OF ALL STRUCTURAL REQUIREMENTS. 4. GENERAL CONTRACTOR TO PROVIDE PERMITS AND FEES REQUIRED FOR HIS TRADE AND ALL INSPECTIONS REQUIRED BY CODE. 5. GENERAL CONTRACTOR TO KEEP CONSTRUCTION SITE CLEAN AND ORGANIZED. CONTRACTOR SHALL CLEAN UP AREAS AFFECTED BY DAILY WORK AND REMOVE DEBRIS AND MATERIALS FROM THE SITE UPON COMPLETION OF THE WORK. 6. RELOCATE EXISTING UTILITIES AS REQUIRED (GAS, ELECTRIC, SEWER, CABLE, TELEPHONE). SEE SITE PLAN FOR NEW LOCATIONS. 7. ALL TRENCHING REQUIRED FOR UTILITIES TO BE DONE WITH EXTREME CARE TO ENSURE PROTECTION OF TREE AND ROOTS. WORK TO BE DONE AROUND ROOTS, NOT THROUGH THEM. 8. SURVEYOR TO LOCATE HOUSE ON SITE. 9. DO NOT SCALE DRAWINGS, CONTACT ARCHITECT UPON DISCOVERY OF MISSING INFORMATION OR CONFLICTS IN DRAWINGS. 10. MECHANICAL, ELECTRICAL, PLUMBING AND FIRE ENGINEERING TO BE PROVIDED BY OTHERS. MAY REQUIRE COORDINATION WITH ARCHITECT. 11. CONTRACTOR TO PROVIDE PROPER SOIL GRADING TO ENSURE POSITIVE DRAINAGE AWAY FROM THE STRUCTURE. SOIL GRADING SHALL BE EXECUTED IN A MANNER SO THAT DRAINAGE SHALL NOT BE DIRECTED TO NEIGHBORING PROPERTIES. 12. EXPOSED FOUNDATION TO BE MINIMUM OF 8" AND A MAXIMUM OF 24" ABOVE FINISHED GRADE OR PER SUBDIVISION REQUIREMENTS. UNDERPIN ALL EXPOSED FOUNDATIONS. 13. PROVIDE CONTROL AND EXPANSION JOINTS AS REQUIRED ON CONCRETE DRIVES, WALKS AND PATIOS. 14. ALL EXTERIOR HVAC EQUIPMENT TO BE SCREENED PER CITY REQUIREMENTS, DEED RESTRICTIONS OR NEIGHBORHOOD ASSOCIATION. 15. LOCATION OF MAILBOX AND EXTERIOR DRIVEWAY LIGHT(S) TO BE VERIFIED PRIOR TO INSTALLATION. 16. LANDSCAPE PLANS TO BE PROVIDED BY OTHERS AND PERMIT FOR SAME TO BE OBTAINED SEPARATELY FROM THESE PLANS. 17. CONTRACTOR SHALL CLEAN UP AREAS AFFECTED BY DAILY WORK AND REMOVE DEBRIS AND MATERIALS FROM THE SITE UPON COMPLETION OF THE WORK. NOTE: OWNER TO PAY FEE IN LIEU OF SIDEWALK NOTE: CONSTRUCTION ACCESS PATH IS 3 4" PLYWOOD ON TOP OF 2x6 PLANKS ON TOP OF 8" LAYER OF HARDWOOD MULCH ON TOP OF EXIST. GRADE. PROVIDE TREE PROTECTION AS REQUIRED PER ENVIRONMENTAL CRITERIA MANUAL SECT. 3.5.2 IN ORDER TO ASSURE THAT THE REMAINING ROOT ZONES ARE ADEQUATELY PRESERVED, TREE PROTECTION FENCING IS REQUIRED FOR ALL TREES WITHIN THE LIMITS OF CONSTRUCTION. FENCING SHOULD BE INDICATED TO PROTECT THE ENTIRE CRZ AREA OR AS MUCH OF THE CRZ AS PRACTICAL. FENCING IS REQUIRED TO BE CHAIN LINK MESH AT A MINIMUM HEIGHT OF 5 FEET. WHEN THE TREE PROTECTION FENCING CANNOT INCORPORATE THE ENTIRE 1 2 CRZ, AN 8" LAYER OF MULCH WITHIN THE ENTIRE AVAILABLE ROOT ZONE AREA IS REQUIRED FOR ALL TREES WHICH HAVE ANY DISTURBANCE INDICATED WITHIN ANY PORTION IF THE CRZ. 2X4 OR GREATER SIZE PLANKS (6' TALL MIN.) TO BE STRAPPED SECURELY AROUND PROTECTED TREE TRUNKS AND ROOT FLARES WHEN PROTECTIVE FENCING DOES NOT INCORPORATE THE ENTIRE 1 2 CRZ FOR ANY REASON AT ANY TIME ON THE PROJECT. PROVIDE A PRIVATE CERTIFIED ARBORIST ASSESSMENT OF THE PRUNING REQUIREMENTS NEEDED FOR THE PROJECT Extend the tree protection fence to full CRZ where possible. Where construction is adjacent to protected root zone, move fence back 4' to allow work zone access. 10" layer of rough grind mulch to be applied in work zone to buffer foot traffic. Equipment may not access the work zone. Add decking/ plywood over the mulch if encroaching within the 1 2 CRZ. APPLICABLE CODES International Residential Code (IRC) 2024 - With City of Austin Local Amendments International Energy Conservation Code (IECC) 2024 - With Local Amendments International Fire Code (IFC) 2024 - With Local Amendments International Swimming Pool and Spa Code (ISPSC) 2018 - With Local Amendments National Electrical Code (NEC) 2023 - With Local Amendments Uniform Mechanical Code (UMC) 2024 - With Local Amendments Uniform Plumbing Code (UPC) 2024 - With Local Amendments International Wildland-Urban Interface Code (IWUIC) 2024 NFPA 13, 13R, and 13D for Sprinkler Systems 2025 W LEGAL DESCRIPTION: 1508 PEASE ROAD LOT 43 ENFIELD C AUSTIN, TEXAS 78703 TRAVIS COUNTY N S E SITE PLAN SCALE 1:10 N G I S E D + E R U T C E T I H C R A ] y e r g [ 7 9 2 2 . 4 8 4 . 2 1 5 1 3 7 8 7 S A X E T , N I T S U A E V O C D R A Y T R U O C 8 0 6 5 T C E T I H C R A - R E N I E T S J M A D A S E M O H M O T S U C E L L A N 3 0 7 8 7 s a x e T , n i t s u A , d a o R e s a e P 8 0 5 1 GISTERED ARCHIT AMJ. STEIN EEE EEE EEEEE E E R RRRRRRRRR R R RRRRRRR D A E C T E R S T AT 23208 E FO 888888888888 SS SA XET 02.09.26 SHEET NO. A-1 1 OF 12 PROJECT NO. DRAWN BY: DATE: CHECKED BY: REVISION: 25020 AS 02.09.26 AS C Copyright C 2022 All Rights Reserved. These designs/drawings are the sole property of Adam Steiner and may not be reproduced in any form, by any method, for any purpose without previous written permission. STRUCTURAL NOTES FOUNDATION NOTES FOUNDATION CONSTRUCTION ROOF FRAMING NOTES WIND BRACING NOTES CODES AND SPECIFICATIONS 1. REMOVE ALL VEGETATION AND TOP 6 INCHES OF TOP SOIL PRIOR TO 1. ALL FRAMING MEMBERS AND CONSTRUCTION TO BE PER 2024 EDITION OF 1. WIND LOADS PER 2024 INTERNATIONAL RESIDENTIAL CODE: T E E R T S T S E R R O F 7 0 4 2 4 6 8 7 X T , L L I H Y T R E B I L 4 6 3 4 - 5 1 2 ) 2 1 5 ( 9 0 0 5 1 - F S N O I T U L O S 1. 2024 EDITION OF THE INTERNATIONAL RESIDENTIAL CODE. 2. ASCE 7-16, MINIMUM DESIGN LOADS FOR BUILDINGS AND OTHER STRUCTURES. 3. POST-TENSION INSTITUTE (PTI), 3RD. EDITION: DESIGN OF POST-TENSION SLABS-ON-GROUND, 2008. 4. BUILDING RESEARCH ADVISORY BOARD (BRAB) REPORT #33: CRITERIA FOR SELECTION AND DESIGN OF RESIDENTIAL SLAB ON GROUND. 5. ACI 301-05 SPECIFICATIONS FOR STRUCTURAL CONCRETE FOR BUILDINGS AND ACI-318-08 BUILDING CODE REQUIREMENTS FOR STRUCTURAL CONCRETE. MATERIALS CONSTRUCTING FOUNDATION (EXCEPT IN THE 1/2 CRZ OF PROTECTED INTERNATIONAL RESIDENTIAL CODE. TREES). 2. ROOF RAFTERS ATTACHMENT TO LOAD BEARING WALLS, CEILING JOISTS 2. DRAINAGE AROUND THE PERIMETER OF THE FOUNDATION SHALL BE DONE AND SUPPORTING BEAMS TO BE CONTROLLED BY IRC FASTENER PER IRC SUCH THAT NO WATER SHALL COLLECT UNDER OR ADJACENT TO SCHEDULES(S) IF NOT SPECIFICALLY SHOWN ON ENGINEERING PLANS OR THE SLAB. DETAILS. 3. HEAVY VEGETATION SUCH AS TREES WITHIN 20 FT OF FOUNDATION MAY 3. ROOF DEFLECTION CRITERIA: L/240 BASIC WIND SPEED: 115 MPH (3 SEC. GUST) EXPOSURE: B BUILDING CATEGORY II 1 = 1.0 2. SHEATHING TO BE 7 16" STRUCTURAL PLYWOOD OR OSB. ATTACH WITH/ FASTENERS 6" O.C. @ EDGES AND 12" O.C. INTERMEDIATE STUDS. PER 2024 1RC. TABLE R602.3 (1). 2x STUDS AT 16" O.C. FASTEN STUDS PER LATEST IRC. CAUSE EXCESSIVE WATER REMOVAL AND DAMAGE FOUNDATIONS. NO 4. FRAMING MEMBERS TO BE #2 SOUTHERN PINE. REFER TO NOTE 4 OF 3. FASTENERS BETWEEN PANEL ENDS SHALL BE PER LATEST IRC. TREES SHOULD BE PLANTED WITHIN 20 FT OR THE MATURE HEIGHT OF CEILING FRAMING NOTES. THE TREE PLANTED. 5. ROOF RAFTERS SHALL BE 2x6 @ 24" O.C. MIN., U.N.O. 4. USE DETAIL 1 & 2 (TYP. DETAIL SHEET) FOR 1x4 LET IN BRACED WALL. 4. BEAMS TO BE A MINIMUM OF 12 INCHES INTO UNDISTURBED SOIL OR 6. PURLIN SIZE SHALL MATCH RAFTER SIZE. MAXIMUM SUPPORT SPACING: 5. MAXIMUM BWL SPACING: 60 FT. COMPACTED SELECT FILL (EXCEPT IN THE 1/2 CRZ OF PROTECTED TREES). 4'-0" O.C., U.N.O. WHEN CONDITIONS PROHIBIT THIS DEPTH, CONTACT THE ENGINEER OF 7. INDICATES RIDGE, RAFTER OR PURLIN BRACING WITH BEARING CONCRETE 1. ALL CONCRETE SHALL HAVE A MINIMUM COMPRESSIVE STRENGTH AT 28 DAYS RECORD. POINT DIRECTLY BELOW. OF 3000 PSI (FOUNDATION) 1.1. MINIMUM CEMENT CONTENT: 4.5 SACKS / C.Y. 1.2. MAXIMUM WATER/CEMENT RATIO: 0.48 1.3. SLUMP RANGE: 5" MIN - 8" MAX. 1.4. MAX. COARSE AGGREGATE SIZE: 3 4" 2. ALL REINFORCING SHALL BE ASTM A-615, GRADE 60 3. STANDARD PROTECTIVE COVER OF REINFORCING BARS UNLESS OTHERWISE NOTED SHALL BE: 3.1. WHERE CAST AGAINST DIRT OR FILL .. . . . . . 3" 3.2. EXPOSED TO EARTH OR WATER . . . . .. . . . 2" 3.3. SLABS AND WALLS (EXTERIOR) . . . .. . . . . . 2" 4. FILL FOR PADS UNDER FOUNDATION TO BE A GRANULAR MATERIAL WITH A LIQUID LIMIT OF NOT MORE THAN 37 AND A PLASTICITY INDEX OF NOT MORE THAN 15. 5. VAPOR BARRIER TO BE MINIMUM OF 10 MIL. 6. WATERPROOFING FOR WALLS BELOW GRADE TO BE PER IRC 406.2. 5. PROVIDE A VAPOR BARRIER UNDER THE SLAB, DRAPE VAPOR BARRIER INDICATES RIDGE, RAFTER OR PURLIN BRACING WITH BEARING DOWN BEAM SIDES A MINIMUM OF 6 INCHES, ADJACENT SHEETS SHALL BE POINT LOCATION. OVERLAPPED 6 INCHES AND PINNED OR SEALED. 8. BRACES UP TO 6 FT LONG SHALL BE 2x4. LONGER BRACES / POSTS 6. FOR FIELD CONDITIONS NOT EXPLICITLY COVERED BY PLANS AND DETAILS, SHALL BE MADE OF 2- 2x6 FASTENED TOGETHER IN A "L" OR "T" PATTERN. CONTACT ENGINEER OF RECORD. 9. VERIFY ALL DIMENSIONS AGAINST ARCHITECTURAL DRAWINGS. 7. DO NOT SET FORMS BY THE FOUNDATION PLANS, USE ARCHITECTURAL 10. PLYWOOD ROOF SHEATHING OR OSB SHALL BE 1 2" THICK MIN. U.N.O. PLANS. 8. CONTRACTOR TO VERIFY ALL DROPS, DIMENSIONS, AND BRICK LEDGES. 9. EXTERIOR BEAM DEPTHS CHANGE WITH TOPOGRAPHY, REF. DETAILS. CEILING FRAMING NOTES 10. REPORT ALL CONFLICTS TO THE ENGINEER OF RECORD. 1. ALL FRAMING MEMBERS AND CONSTRUCTION TO BE PER 2024 11.FOR PI OF LESS THAN 15 OR SOLID ROCK, NOTIFY ENGINEER OF RECORD EDITION OF INTERNATIONAL RESIDENTIAL CODE. 12. PRE-POUR INSPECTIONS BY ENGINEER OF RECORD IS REQUIRED. 2. DESIGN LOADS: 2.1 LIVE LOADS: A. UNINHABITABLE ATTICS W/O STORAGE. . . . . . . . . . .10 PSF B. UNINHABITABLE ATTICS W/ LIMITED STORAGE. . . . . . 20 PSF C. HABITABLE ATTICS AND SLEEPING AREAS. . . . . . . . . .30 PSF D. ALL OTHER AREAS EXCEPT BALCONIES AND DECKS. . . . 40 PSF E. ROOF LIVE LOAD: 20 PSF, REDUCIBLE PER LATEST IBC 3. ALL CEILING JOISTS TO BE 2x6 @ 24" O.C., TYPICAL U.N.O. CEILING DEFLECTION CRITERIA: L/240 4. DESIGN VALUES FOR VISUALLY GRADED LUMBER: ALL FRAMING MEMBERS TO BE #2 SOUTHERN YELLOW PINE AND SHOULD COMPLY WITH THE DESIGN VALUES SET BY THE AMERICAN WOOD COUNCIL (AWC) EFFECTIVE ON JUNE, 2013. LUMBER FB (PSI) FV (PSI) E (KSI) 2x6 2x8 2x10 2x12 1,000 925 800 750 175 175 175 175 1,400 1,400 1,400 1,400 5. LAMINATED VENEER LUMBER (LVL): E=2,000,000 (2.0E); FB=2600 PSI; FV=285 PSI 6. CEILING JOISTS SPACED AT 24" O.C., U.N.O. 6. FLOOR DECK SHALL BE 3 4" (MIN.) PLYWOOD OR OSB FASTENED WITH 8D COMMON NAILS @ 6" O.C. (EDGES) AND 12" O.C. (INTERMEDIATE) 7. ROOF DECK SHALL BE 7 16" (MIN.) PLYWOOD OR OSB FASTENED WITH 8D COMMON NAILS @ 6" O.C. (EDGES) AND 12" O.C. (INTERMEDIATE) LEGEND SYMBOL DESCRIPTION BRACING METHOD 7 16" PLYWOOD / OSB SHEATHING 7 16" PORTAL FRAME (PLYWOOD/OSB) STRUCTURAL GRADE T- PLY (THERMO PLY) GYPSUM BOARD ONE FACE GYPSUM BOARD TWO FACES 1- 1x4 LET IN OR METAL X OR V BRACE (SIMPSON WB/WBC WALL BRACING) WSP: WOOD STRUCTURAL PANEL (2) PFH (3) / PFG (4), REFER PLAN CS-SFB: STRUCTURAL FIBER BOARD 1 2" GYPSUM BOARD REF. TABLE R602.10.2 NAILS/SCREWS @ 7" O.C. 1 2" GYPSUM BOARD REF. TABLE R602.10.2 NAILS/SCREWS @ 7" O.C. LIB: LET IN BRACING HOLD DOWN LOCATION PFH (3) / PFG (4), (REF. DETAIL 3 ON SHEET S6.2) BRACING METHOD THICKNESS (TABLE R602.10.4) FASTENERS (TABLE R602.10.4) CS-WSP CONT. SHEATHED WALL STRUCTURAL PANEL 7 16" 2" 4" LONG x 2" LONG x 0.12" DIA. (FOR 1 1 1 THICK SHEATHING) 1 3 0.12" DIA. (FOR 25 SHEATHING) GALVANIZED ROOFING NAILS OR 8d COMMON (2 1 2" LONG x 0.131" DIA.) NAILS. 32" THICK LET-IN BRACING 1x4 (45° - 60°) 2 - 8d COMMON NAILS LIB GB PF GYPSUM BOARD PORTAL FRAME 1 1 2" 2" (1) IRC 2024: R602.10.2 / R602.10.4.1 (2) EITHER SIDE OF WALL ON INTERIOR WALLS (3) PORTAL FRAME (INTERMITTENT) WITH HOLD DOWNS. (4) PORTAL FRAME AT GARAGE. D A O R E S A E P 8 0 5 1 S E M O H N O T S U C E L L A N 3 0 7 8 7 X T , I N T S U A TE A ST TFO EX AS MARCOS V. DEQUEIROGA PR 101049 D FO L I ES NEC OSSE NIG I LAN E R E EN 01/30/2026 E T A D 6 2 / 0 3 / 1 0 I N O S V E R I T E S W E V E R I [REF. TABLE R602.3(1)] [REF. TABLE R602.3(1)] . O N . 1 PROJECT: 25227 DATE: 01-30-26 DRAWN BY: TF SCALE: AS NOTED S0.0 COORDINATION DRAWINGS. NOT FOR CONSTRUCTION NOT FOR CITY REVIEW E T A D 4 2 / X X / X X 4 2 / X X / X X 4 2 / X X / X X 4 2 / X X / X X 4 2 / X X / X X 4 2 / X X / X X N O I S I V E R . O N T E S W E I V E R N O I S I V E R N O I S I V E R N O I S I V E R N O I S I V E R N O I S I V E R . 1 . 2 . 3 . 4 . 5 . 6 PROPERTY LINE EXTENT OF SOIL REPLACEMENT / CHEMICAL INJECTION (REF. SITE PREPARATION NOTES S0.0) " 6 - 2 ' " 6 - 2 ' 2'-6" EXTENT OF SOIL REPLACEMENT / CHEMICAL INJECTION (REF. SITE PREPARATION NOTES S0.0) PROPERTY LINE " 6 - 2 ' 2'-6" " 6 - 2 ' 2'-6" " 6 - 2 ' EXTENT OF SOIL REPLACEMENT / CHEMICAL INJECTION (REF. SITE PREPARATION NOTES S0.0) 2'-6" PROPERTY LINE " 6 - 2 ' 2'-6" 2'-6" " 6 - 2 ' " 6 - 2 ' EXTENT OF SOIL REPLACEMENT / CHEMICAL INJECTION (REF. SITE PREPARATION NOTES S0.0) PROPERTY LINE 2'-6" SITE PREPARATION NOTES 1. REMOVE EXISTING NATURAL CLAYS TO A DEPTH OF 2 FT (MIN.) BELOW GRADE. REMOVAL OF MATERIAL SHALL EXTEND 2.5 FT (MIN.) BEYOND BUILDING FOOTPRINT. 2. PROOF ROLL EXPOSED SURFACE TO ELIMINATE POTENTIAL SOFT SPOTS. REFER TO GEOTECHNICAL INVESTIGATION FOR ADDITIONAL REQUIREMENTS. 3. SELECT FILL MATERIAL (E.G., ROAD BASE, CRUSHED RECYCLED CONCRETE) TO BE PLACED IN 6 TO 8 INCHES LIFTS AND COMPACTED TO 95% OF THE STANDARD PROCTOR (ASTM D698). FINAL PAD THICKNESS SHALL BE A MINIMUM OF 2.5 FT. 4. CONTRACTOR TO RETAIN A 3RD PARTY COMPANY TO PERFORM QUALITY CONTROL OF THE PLACEMENT AND COMPACTION OF SELECT FILL. RECORDS FOR THE SAMPLING AND TEST RESULTS MUST BE SUBMITTED TO THE GEOTECHNICAL ENGINEERING COMPANY AND SEC SOLUTIONS FOR REVIEW AND APPROVAL. 5. MAXIMUM DROP NOT TO EXCEED 30" PER DESIGN ASSUMPTION. IF MORE THAN 30" DROP IS NEEDED, CONTACT THE ENGINEER OF RECORD. CHEMICAL INJECTION 1. 2. 3. 4. 5. 6. PRIOR TO THE START OF INJECTION OPERATIONS, THE BUILDING PAD SHOULD BE STAKED OUT TO ACCURATELY DELINEATE THE BUILDING FOOTPRINT. EXCAVATION SHALL BE PERFORMED PRIOR TO INJECTION. REFER TO SITE PREPARATION NOTES. INJECTION SHOULD BE MADE TO A DEPTH OF 9FT ON 3FT CENTERS EACH DIRECTION, COVERING AN AREA OF A MINIMUM OF 2.5 FT OUTSIDE THE BUILDING FOOTPRINT. CHEMICAL SOLUTION SHOULD BE ADDED IN ACCORDANCE WITH THE MANUFACTURER’S RECOMMENDATIONS. INJECTIONS SHOULD BE CONTINUED UNTIL A POCKET PENETROMETER READING OF 3.0 TSF OR LESS IS OBTAINED ON UNDISTURBED SOIL SAMPLES THROUGHOUT THE INJECTED DEPTH. COMPACTED SELECT FILL SHALL BE PLACED OVER THE INJECTED SUBGRADE AS SOON AS IS PRACTICAL AFTER COMPLETION OF INJECTION OPERATIONS. A MINIMUM THICKNESS OF 2.5 FT IS REQUIRED. REFER TO SITE PREPARATION NOTES FOR ADDITIONAL REQUIREMENTS FOR SELECT FILL. A TESTING LAB SHOULD BE RETAINED TO PROVIDE POST-INJECTION FIELD AND LABORATORY TESTING TO EVALUATE THE EFFECTIVENESS OF THE INJECTION PROCESS. 7. UPON COMPLETION OF INJECTION OPERATIONS, THE EXPOSED SURFACE SHOULD BE SCARIFIED AND RE-COMPACTED TO 95% OF THE MAXIMUM DRY UNIT WEIGHT OF THE SOIL PER ASTM D698. SELECT FILL SHOULD THEN BE PLACED IN MAXIMUM LOOSE LIFTS OF 6 INCHES TO ATTAIN SLAB FINAL ELEVATION. SELECT FILL SHALL BE COMPACTED TO 95 PERCENT OF MAXIMUM DENSITY PER ASTM D698 AT A MOISTURE CONTENT OF +/- 3% OF OPTIMUM. A MINIMUM OF 1.0 FT EMBEDMENT INTO COMPACTED SELECT FILL IS REQUIRED. WITH THE REDUCTION OF THE DESIGN PVR, THE FOLLOWING DESIGN PARAMETERS ARE RECOMMENDED FOR CONVENTIONAL (REBAR) AND POST-TENSION FOUNDATION: POTENTIAL VERTICAL RISE (PVR): 1” (TxDOT METHOD TEX-124-E). ALLOWABLE BEARING CAPACITY: 2,500PSF (1FT INTO COMPACTED FILL). 8. CHEMICAL INJECTION TO EXTEND A MINIMUM OF 5FT BEYOND FOOTPRINT OF ALL FOUNDATION COMPONENTS LEGEND SOIL REPLACEMENT / CHEMICAL INJECTION AREA BUILDINGS OUTLINE SUBGRADE PREPARATION CHEMICAL INJECTION IS REQUIRED TO REDUCE PVR TO 1" MAXIMUM. MIN. DEPTH OF TREATMENT: 9 FT. CONTRACTOR TO RETAIN A GEOTECHNICAL LAB TO VERIFY EFFECTIVE DESIGN PVR. REPORT TO BE SENT TO FOUNDATION ENGINEER FOR REVIEW. PRE-POUR AND STRESSING INSPECTION BY SEC REPRESENTATIVE IS REQUIRED.TO SCHEDULE CONTACT OFFICE@SECTEXAS.COM OR CALL 512-215-4364 SOIL REPLACEMENT / CHEMICAL INJECTION AREA PLAN SCALE: 1/4"=1'-0" CHEMICAL INJECTION AREA: 4,594 SF T E E R T S T S E R R O F 7 0 4 2 4 6 8 7 X T , L L I H Y T R E B I L 4 6 3 4 - 5 1 2 ) 2 1 5 ( 9 0 0 5 1 - F S N O I T U L O S D A O R E S A E P 8 0 5 1 S E M O H N O T S U C E L L A N 3 0 7 8 7 X T , I N T S U A TE A ST TFO EX AS MARCOS V. DEQUEIROGA PR 101049 D FO L I ES NEC OSSE NIG I LAN E R E EN 01/30/2026 E T A D 6 2 / 0 3 / 1 0 I N O S V E R I T E S W E V E R I . O N . 1 PROJECT: 25227 DATE: 01-30-26 DRAWN BY: TF SCALE: AS NOTED S0.1 COORDINATION DRAWINGS. NOT FOR CONSTRUCTION NOT FOR CITY REVIEW E T A D 4 2 / X X / X X 4 2 / X X / X X 4 2 / X X / X X 4 2 / X X / X X 4 2 / X X / X X 4 2 / X X / X X N O I S I V E R . O N T E S W E I V E R N O I S I V E R N O I S I V E R N O I S I V E R N O I S I V E R N O I S I V E R . 1 . 2 . 3 . 4 . 5 . 6 6" " 2 1 6 - 1 ' 32'-11 2" 18'-11 2" 6 @ 3'-0 1 4" 1 S2.0 93'-9" 30'-4" 9'-4" 3 @ 3'-1 5 16" 1 S2.0 4'-8" 2 @ 2'-4" 6" 8'-4" 3 @ 2'-9 5 16" 12 S2.0 21'-0" 6 @ 3'-6" (2) #5 T&B W/ #3 STIRRUPS @ 18" O.C. 2 S2.0 SHOWER DROP (REF. ARCH'L FOR LOCATION & SIZE) 9'-4" 4'-8" BEAM STRAND ONLY " 0 - 7 ' " 2 1 0 - 2 ' " 4 3 2 - 2 ' 7'-61 2" 6" 2'-91 2" 2'-0" 2'-9" 6" " 6 19 S2.1 16'-111 2" 6 @ 2'-10" 2" BRICK/VENEER 51 LEDGE (SHADED) " 6 - 6 ' 2 S2.0 2 S2.0 " 0 - 2 ' " 2 " 2 1 1 1 - 6 ' 1 0 1 - 2 ' 1 S2.0 23'-9" 2 S2.0 SLOPE " 1 1 - 7 1 ' 9'-63 4" 9'-03 4" 8'-4" 10'-6" " 2 10'-6" 8'-61 2" 8'-51 2" 8'-6" 6'-31 2" 5'-91 2" 2 @ 2'-10 3 4" 6" " 6 " 2 PLAN NOTES 1. CONCRETE CONTRACTOR MUST VERIFY ALL DIMENSIONS AND COORDINATE STRUCTURAL PLANS AND DETAILS WITH ARCHITECTURAL DRAWINGS BEFORE CONCRETE WORK. 2. THE ENGINEER OF RECORD SHALL BE NOTIFIED OF ANY DISCREPANCIES PRIOR TO CONSTRUCTION. 3. REFER TO ARCHITECTURAL DRAWINGS FOR SLAB DROPS & ACCESSIBILITY REQUIREMENTS 4. PERIMETER BEAM TO PENETRATE A MINIMUM OF 12" INTO COMPACTED SELECT FILL T E E R T S T S E R R O F 7 0 4 2 4 6 8 7 X T , L L I H Y T R E B I L 4 6 3 4 - 5 1 2 ) 2 1 5 ( 9 0 0 5 1 - F S N O I T U L O S " 4 3 ' 5 - 3 @ 2 1 1 1 - 6 ' 1 S2.0 51 2" BRICK/VENEER LEDGE (SHADED) 1'-0" 1'-0" 15 S2.1 17 S2.1 SLOPE 15 S2.1 DEAD END: BEAM AND SLAB TENDON, TYP. 4" SLAB W/ #3 @ 12" O.C.E.W. OR #4 @ 16" O.C.E.W. 7 S2.0 16 S2.1 " 0 - 1 ' " 0 - 1 ' 13 S2.0 3A S2.0 SIM. SLOPE 3A S2.0 3 S2.0 SLOPE SLOPE 3A S2.0 1 1 1 - 1 1 ' (2) #4 x 4'-0" (TYP.) " 6 - 4 ' " 8 - 0 1 ' " 2 1 ' 1 - 1 1 1 S2.0 " 2 1 4 - 8 ' " 2 - 1 5 ' " 2 1 0 1 - 8 2 ' " 6 - 0 2 ' " 8 " 2 - 2 ' " 0 1 - 2 ' 18'-11 2" 9'-4" 27'-51 2" 13'-0" " 9 - 3 ' 2 S2.0 8'-0" 93'-101 2" 18 S2.1 6'-0" 22'-0" 2 S2.0 8'-0" CONTRACTOR TO VERIFY FINAL DIMENSIONS WITH ARCHITECTURE. CONCRETE FORM CONSTRUCTION TO BE SET BY ARCHITECTURAL PLANS/DIMENSIONS ONLY PRE-POUR AND STRESSING INSPECTION BY SEC REPRESENTATIVE IS REQUIRED.TO SCHEDULE CONTACT OFFICE@SECTEXAS.COM OR CALL 512-215-4364 3A S2.0 3 S2.0 3 S2.0 SLOPE 3A S2.0 VISITABILITY ROUTE (REF. ARCH. FOR ALLOWABLE DROP REQUIREMENTS 3 S2.0 3 S2.0 4 S2.0 4 S2.0 " 8 " 7 2 1 1 1 - 1 1 ' ' 1 1 - 2 @ 4 " 6 - 4 ' ' " 3 - 2 @ 2 " 6 " 2 1 ' 7 - 1 5 " 5 - 4 2 ' " 8 - 9 ' " 2 1 ' 4 - 5 1 14 S2.1 SLOPE 3A S2.0 SIM. 5'-91 2" 13 S2.0 5'-11" 5'-11" 2 @ 2'-11 1 2" 6" " 6 " 8 - 0 1 ' " 2 1 ' 1 - 1 1 1 S2.0 " 6 1 ' 1 1 6 - 3 @ 3 " 2 ' 1 9 - 2 @ 3 DESIGN SUMMARY 1. CONCRETE COMPRESSIVE STRENGTH (28 DAYS): 3000 PSI 2. SLAB THICKNESS: 4 IN 3. INTERIOR BEAM DIMENSIONS: WIDTH:12" DEPTH: 24" 4. EXTERIOR BEAM DIMENSIONS: WIDTH: 12" DEPTH: 30" (MIN.)(PLAN NOTE 4) GEOTECHNICAL SUMMARY 1. GEOTECHNICAL REPORT BY: SEC SOLUTIONS LLC 2. PROJECT NUMBER: 25227 3. ALLOWABLE BEARING CAPACITY: 2,000 PSF (1.0 FT) SHOWER DROP (REF. ARCH'L FOR LOCATION & SIZE) " 6 " 3 - 3 ' " 3 - 3 ' 5 S2.0 51 2" BRICK/VENEER LEDGE (SHADED) 1 S2.0 " 3 - 3 ' " 6 " 2 - 2 ' 7'-61 2" 23'-101 2" PT STRESSING REQUIREMENTS 1. ALL PT TENDONS OVER 100FT IN LENGTH MUST BE STRESSED FROM BOTH ENDS. 2. PARTIAL STRESSING (50%): 3 DAYS 3. FINAL STRESSING: 7 DAYS 4. FINAL JACKING FORCE: 33,000LB D A O R E S A E P 8 0 5 1 S E M O H N O T S U C E L L A N 3 0 7 8 7 X T , I N T S U A TE A ST TFO EX AS MARCOS V. DEQUEIROGA PR 101049 D FO L I ES NEC OSSE NIG I LAN E R E EN 01/30/2026 E T A D 6 2 / 0 3 / 1 0 I N O S V E R I T E S W E V E R I HOLDOWN SCHEDULE SYMBOL TYPE SIMPSON STHD14 (WET SET) LEGEND LIVE END: SLAB TENDON LIVE END: DOUBLE BEAM TENDON W/ SLAB TENDON DEAD END FOUNDATION PLAN SCALE: 1/4"=1'-0" . O N . 1 PROJECT: 25227 DATE: 01-30-26 DRAWN BY: TF SCALE: AS NOTED S1.0 PLAN NOTES PLAN NOTES 1. CONCRETE CONTRACTOR MUST VERIFY ALL DIMENSIONS AND COORDINATE STRUCTURAL PLANS AND DETAILS WITH ARCHITECTURAL DRAWINGS BEFORE CONCRETE WORK. 2. THE ENGINEER OF RECORD SHALL BE NOTIFIED OF ANY DISCREPANCIES PRIOR TO CONSTRUCTION. 3. REFER TO ARCHITECTURAL DRAWINGS FOR SLAB DROPS & ACCESSIBILITY REQUIREMENTS MATERIAL NOTES 1. CONCRETE COMPRESSIVE STRENGTH (28 DAYS): 3000 PSI 2. ALL LUMBER TO BE #1 SYP OR SUPERIOR. 3. ALL NEW LUMBER IN CONTACT WITH CONCRETE MUST BE PRESSURE TREATED. 4. WOOD JOISTS CLOSER THAN 18 INCHES TO GRADE MUST BE PRESSURE TREATED. 5. WOOD GIRDERS CLOSER THAN 12 INCHES TO EXPOSED GROUND MUST BE PRESSURE TREATED. 1. CONCRETE CONTRACTOR MUST VERIFY ALL DIMENSIONS AND COORDINATE STRUCTURAL PLANS AND DETAILS WITH ARCHITECTURAL DRAWINGS BEFORE CONCRETE WORK. 2. THE ENGINEER OF RECORD SHALL BE NOTIFIED OF ANY DISCREPANCIES PRIOR TO CONSTRUCTION. 3. REFER TO ARCHITECTURAL DRAWINGS FOR SLAB DROPS & ACCESSIBILITY REQUIREMENTS. 4. PERIMETER BEAM TO PENETRATE A MINIMUM OF TBD" INTO NATURAL GRADE. REFER DETAIL X/S2 FOR DEEPENED PERIMETER BEAM DETAIL. NOTAS DEL PLANO 1. EL CONTRATISTA DE CONCRETO TIENE QUE VERIFICAR TODAS LAS DIMENSIONES Y COORDINAR LOS PLANOS ESTRUCTURALES Y DETALLES CON LOS PLANOS DE ARQUITECTURA ANTES DE TRABAJAR EL CONCRETO. 2. EL INGENIERO DEL PROYECTO "ENGINEER OF RECORD" TIENE QUE SER NOTIFICADO DE CUALQUIER DISCREPANCIA ANTES DE LA CONSTRUCCIÓN. 3. REFERIRSE A LOS PLANOS ARQUITECTÓNICOS PARA LOCALIZAR TODOS LOS DESNIVELES O ESCALONES DE CONCRETO Y LOS REQUERIMIENTOS DE ACCESSIBILIDAD. 4. LA VIGA DE CIMENTACIÓN PERIMETRAL "GRADE BEAM" TIENE QUE PENETRAR COMO MÍNIMO TBD" DENTRO DEL SUELO NATURAL. REF. DET. X/S2 PARA DETALLE DE VIGA PERIMETRAL PROFUNDA. CONTACT THE FOUNDATION ENGNEER IF ANY POINT LOAD FROM THE BUILDING SUPERSTRUCTURE EXCEEDS 5,000 LBS. AND IS NOT DIRECTLY ON A FOUNDATION BEAM. COORDINATION DRAWINGS. NOT FOR CONSTRUCTION NOT FOR CITY REVIEW E T A D 4 2 / X X / X X 4 2 / X X / X X 4 2 / X X / X X 4 2 / X X / X X 4 2 / X X / X X 4 2 / X X / X X N O I S I V E R . O N T E S W E I V E R N O I S I V E R N O I S I V E R N O I S I V E R N O I S I V E R N O I S I V E R . 1 . 2 . 3 . 4 . 5 . 6 HOLDOWN SCHEDULE SYMBOL TYPE HTT5 W/ 5 8" Ø ANCHORS, DRILL & EPOXY 8" INTO CONCRETE, TYP. (EPOXY: SIMPSON SET) SLAB REINFORCEMENT (REF. PLAN) ) Y R A M M U S N G I S E D . F E R ( H T P E D M A E B N A L P . F E R #3 STIRRUPS @ 18" O.C., TYP. (2) #5 TOP AND BOTTOM, TYP. (2) #5 TOP AND BOTTOM, #3 STIRRUPS @ 18" O.C., TYP. TYP. " 0 3 : H T P E D N G I S E D S M A E B E D A R G R O I R E T X E . N I M " D B T E D A R G L A R U T A N O T N I " D B T . N I M ) . M M O C E R H C E T O E G R E P ( 2X6 KEYWAY 2-POUR EXTERIOR BEAMS AS INDICATED SLAB REINFORCEMENT (REF. PLAN) 10 MIL POLY @ PERIMETER BEAM (SPLICE @ TOP W/ 10 MIL.) POUR 2 POUR 1 24" #3X @ 48"O.C. (DBL. POUR ONLY) 6" DOUBLE POUR IS OPTIONAL " 0 3 : H T P E D N G I S E D S M A E B E D A R G R O I R E T X E . N I M " D B T E D A R G O T N I " D B T . N I M ) . M M O C E R H C E T O E G R E P ( POST TENSION STRANDS WHERE INDICATED ON PLAN 2X6 KEYWAY 2-POUR EXTERIOR BEAMS AS INDICATED 10 MIL POLY @ PERIMETER BEAM (SPLICE @ TOP W/ 10 MIL.) POUR 2 POUR 1 #3X @ 48"O.C. (DBL. POUR ONLY) 24" 6" DOUBLE POUR IS OPTIONAL w (REF. PLAN) BEAM REINFORCEMENT A DEEP PERIMETER BEAM REINFORCEMENT A DEEP PERIMETER BEAM REINFORCEMENT A (H6) (H8) 2x8 @ 24" O.C. (LIMITED STORAGE)(12'-0" CEILING) 2x8 LEDGER (CONT.) 4'-21 CANTILEVER 2" 8 S3.2 SLOPE (H6) (H6) 2x6 @ 24" O.C. (12'-0" CLG.) GIRDER TRUSS * 4" x 18" LVL (2.0E) OR (3) 1 3 SHOWER DROP (REF. ARCH'L FOR LOCATION & SIZE) (H8) 0 1 x 2 - 2 RAFTERS MAKE CLG. 2x8 @ 24" O.C. (LIMITED STORAGE)(12'-0" CEILING) 4-2x6 STUD PACK ABOVE 4-2x6 STUD PACK (H10) ) 6 H ( 0 1 x 2 - 2 ) 8 H ( 8 x 2 - 2 2- 2x8 2- 2x8 8 x 2 - 2 (H10) ) 6 H ( (H8) (H6) 2x10 LEDGER (CONT.) 5 S3.2 GIRDER TRUSS * ) 8 H ( GIRDER TRUSS * 2x HORIZONTAL BLOCKING @ 12" O.C. ) 6 H ( ) 6 H ( SIMPSON MSTC28 PLAN NOTE 7 " 8 7 1 1 x " 4 3 1 ) 3 ( ) H ( ) E 0 . 2 ( L V L SIMPSON MSTC28 (H12) N O S P M I S 0 2 Q S T H RAFTERS MAKE CLG. 2 # F P S 2 1 x 2 ) 3 ( ) H S U L F ( (H8) 1 1 8" PLYWOOD ARCHED RIBS & PERIMETER ARCHES, TYP. ) 2 1 H ( ) 2 1 H ( . T . G GIRDER TRUSS GIRDER TRUSS 1 1 8" (MIN.) PLYWOOD SUBFLOOR WALLS ABOVE SHOWN DASHED (TYP.) (H8) INVERTED HANGER, TYP. GIRDER TRUSS * 4" x 18" LVL (2.0E) OR (3) 1 3 7 S3.2 (H6) 4-2x6 STUD PACK . C . O " 4 2 @ S R E H T O Y B S E S S U R T R O O L F " 8 1 R E E N G N E I S S U R T Y B D E I F I C E P S S A R O ) . X A M ( ) G N I L I E C " 0 - 2 1 ( ' ) S E T O N S S U R T . F E R ( ) P O R D ( ) E 0 . 2 ( L V L " 4 2 x " 4 3 1 ) 3 ( ) . G L C " 0 - 0 1 ( ' . C . O " 4 2 @ 6 x 2 SIMPSON MSTC28 EXTEND LVL HEADER TO ADJACENT WALL 6 S3.2 2x8 LEDGER (CONT.) SIMPSON MSTC28 L V L " 8 7 1 1 x " 4 3 1 ) 3 ( ) . T N O C ( ) H ( ) E 0 . 2 ( EXTEND LVL HEADER TO ADJACENT WALL SIMPSON MSTC28 (H8) SIMPSON MSTC28 10 S3.2 SIMPSON MSTC28 ) . T N O C ( ) P O R D ( ) E 0 . 2 ( L V L " 8 7 1 1 x " 4 3 1 ) 3 ( SIMPSON MSTC28 PLAN NOTE 7 PLAN NOTE 7 . C . O " 4 2 @ 6 x 2 ' ) G N I L I E C " 0 - 1 1 ( ) E G A R O T S O N ( ) H ( ) E 0 . 2 ( SIMPSON MSTC28 PLAN NOTE 7 L V L " 4 1 x " 4 3 1 ) 3 ( PLAN NOTE 7 SIMPSON MSTC28 SIMPSON MSTC28 PLAN NOTE 7 2x8 LEDGER (CONT.) L V L " 6 1 x " 4 3 1 ) 3 ( ) H ( ) E 0 . 2 ( PLAN NOTE 7 SIMPSON MSTC28 (3) 2x12 SPF#2 (FLUSH) . C . O " 4 2 @ S R E H T O Y B S E S S U R T R O O L F " 8 1 R E E N G N E I S S U R T Y B D E I F I C E P S S A R O ) . X A M ( ) G N I L I E C " 0 - 2 1 ( ' ) S E T O N S S U R T . F E R ( GIRDER TRUSS * GIRDER TRUSS * GIRDER TRUSS * 2x6 @ 24" BLOCKING FOR DECO. BEAMS,TYP. 1 1 8" (MIN.) PLYWOOD SUBFLOOR FURR-DOWN (REF. ARCH'L) L V L " 8 1 x " 4 3 1 ) 2 ( ) H S U L F ( ) E 0 . 2 ( 4 S3.2 (H8) L V L " 8 1 x " 4 3 1 ) 2 ( ) H S U L F ( ) E 0 . 2 ( (H6) L V L " 8 1 x " 4 3 1 ) 2 ( ) H S U L F ( ) E 0 . 2 ( STAIRS BY OTHERS * S S U R T R E D R G I 3 S3.2 * S S U R T R E D R G I ) 2 1 H ( 2 # F P S 2 1 x 2 ) 3 ( ) P O R D ( 4-2x6 STUD PACK 2x8 LEDGER 1 S3.2 ) 6 H ( (H8) 1 1 8" (MIN.) PLYWOOD SUBFLOOR ) 0 1 H ( 18" FLOOR TRUSSES BY OTHERS @ 24" O.C. (MAX.) OR AS SPECIFIED BY TRUSS ENGINEER (REF. TRUSS NOTES) (12'-0" CEILING) ) 0 1 H ( 2 S3.2 (H8) (H8) 2 S3.2 (H8) SHOWER DROP (REF. ARCH'L FOR LOCATION & SIZE) 2'-0" (H6) (H8) OUTLINE OF FLOOR ABOVE 1 S3.2 (H8) 2ND FLOOR (HATCHED) TRUSS NOTES NOTES: 1. ALL FRAMING MEMBERS AND CONSTRUCTION TO BE PER 2024 EDITION OF INTERNATIONAL RESIDENTIAL CODE 2. TRUSS SPACING SHOWN ON PLANS IS FOR REFERENCE ONLY. FINAL TRUSS LOCATIONS AND SPACING TO BE PROVIDED BY TRUSS SUPPLIER. 3. TRUSS ENGINEER TO PROVIDE ADEQUATE SUPPORT FOR LOADS FROM FLOORS / ROOF ABOVE. 4. POINT LOADS SHOWN WERE DERIVED FROM ROOF LOADING (LIVE AND DEAD LOADS) AND SHOULD BE SUPERIMPOSED TO FLOOR LOADS TO BE CALCULATED BY THE TRUSS ENGINEER, INCLUDING LOAD BEARING WALLS. TRUSS ENGINEER TO VERIFY ALL LOAD PERTINENT TO TRUSSES. 1. REFER TO WIND BRACING PLANS FOR ADDITIONAL REQUIREMENTS FOR LOAD BEARING WALL THAT ARE PART OF THE WIND LOAD RESISTING SYSTEM (SHEAR WALLS). 2. 2x4 @ 16" O.C. MAY BE USED TO A MAXIMUM PLATE HEIGHT OF 10 FT (SUPPORTING ONE FLOOR AND ROOF/CEILING ASSEMBLY). 3. CONTACT THE ENGINEER OF RECORD FOR CONDITIONS NOT COVERED IN THIS SCHEDULE. PLAN NOTES 1. ALL CONSTRUCTION PER CURRENT EDITION OF THE INTERNATIONAL RESIDENTIAL CODE (IRC). 2. VERIFY PLAN DIMENSIONS AND FLOOR/CEILING ELEVATIONS (T.O.P.) WITH ARCHITECTURAL PLANS. NOTIFY ENGINEER OF RECORD OF DISCREPANCIES. 3. REFER TO GENERAL NOTES (S0.0) FOR MATERIAL PROPERTIES AND CONSTRUCTION RECOMMENDATIONS. 4. AT A MINIMUM, DOUBLE JOISTS AT HVAC UNIT LOCATIONS. 5. NOTIFY THE ENGINEER OF RECORD IF FIELD CONDITIONS DON'T ALLOW FRAMING MEMBERS TO BE PLACED AS SHOWN ON PLANS. 6. REFER TO TYPICAL DETAIL SHEET FOR MULTIPLE MEMBER CONNECTION DETAIL(S). 7. EXTEND BEAM 16" (MIN) OVER END WALL TO ALLOW FOR PORTAL FRAMING (REF. DETAIL 3/S6.2), (TYP). MIN. 4-2x4 STUD PACK @ JACK STUDS WALL SCHEDULE DESIGNATION SYMBOL FRAMING LOAD-BEARING WALL NON-LOAD BEARING WALL 2x4 (MIN.) STUDS (DF #1 OR SYP #2) @ 16" O.C. (MAX.) 2x4 (MIN.) STUDS (DF #1 OR SYP #2) @ 24" O.C. (MAX.) LEGEND SYMBOL DESCRIPTION OUTLINE OF FLOOR AREA 2.0E MICROLAM LVL BEAM #2 SOUTHERN YELLOW PINE 2x HEADER CEILING JOISTS (REF. PLAN) FLOOR TRUSSES BY OTHERS ROOF TRUSSES BY OTHERS POINT LOAD FROM FLOOR ABOVE INVERTED HANGERS FACE HANGERS U.W.A: UNDER WALL ABOVE * LABEL (H4) (H6) (H8) (H10) (H12) FRAMING (2) 2x4 (H) (2) 2x6 (H) (2) 2x8 (H) (2) 2x10 (H) (2) 2x12 (H) HEADER LEGEND TRIMMERS/POST (1) 2x6 OR (1) 2x4 (1) 2x6 OR (1) 2x4 (1) 2x6 OR (1) 2x4 (2) 2x6 OR (2) 2x4 (2) 2x6 OR (2) 2x4 KING STUDS* (1) 2x6 OR (1) 2x4 (1) 2x6 OR (1) 2x4 (1) 2x6 OR (1) 2x4 (1) 2x6 OR (1) 2x4 (1) 2x6 OR (1) 2x4 *KINGS STUDS TO BE REPLACED BY COMPRESSION STUDS AS SHOWN IN THE TDS HOLDOWN DETAILS WHERE OCCURS METAL STRAP SCHEDULE SYMBOL TYPE SIMPSON MSTC28 SIMPSON HTSQ20 T E E R T S T S E R R O F 7 0 4 2 4 6 8 7 X T , L L I H Y T R E B I L 4 6 3 4 - 5 1 2 ) 2 1 5 ( 9 0 0 5 1 - F S N O I T U L O S D A O R E S A E P 8 0 5 1 S E M O H N O T S U C E L L A N 3 0 7 8 7 X T , I N T S U A AS EX TFO TE A ST COORDINATION DRAWINGS. NOT FOR CONSTRUCTION NOT FOR CITY REVIEW E T A D 4 2 / X X / X X 4 2 / X X / X X 4 2 / X X / X X 4 2 / X X / X X 4 2 / X X / X X 4 2 / X X / X X N O I S I V E R . O N T E S W E I V E R N O I S I V E R N O I S I V E R N O I S I V E R N O I S I V E R N O I S I V E R . 1 . 2 . 3 . 4 . 5 . 6 MARCOS V. DEQUEIROGA PR 101049 D FO L I ES NEC OSSE NIG I LAN E R E EN 01/30/2026 E T A D 6 2 / 0 3 / 1 0 I N O S V E R I T E S W E V E R I . O N . 1 PROJECT: 25227 DATE: 01-30-26 DRAWN BY: TF SCALE: AS NOTED S3.0 METAL STRAP SCHEDULE SYMBOL TYPE SIMPSON MSTC28 *REF. TO SIMPSON WOOD CONSTRUCTION CONNECTORS BOOK FOR COLUMN CAP. INSTALLATION ON STEEL COLUMN SHALL BE ORDERED FOR FIELD WELDING TO STEEL COL. WITH NO COLUMN STRAPS MANDATORY PRE-DRYWALL FRAME INSPECTION TO BE PERFORMED BY SEC PRIOR TO INSULATION 1ST FLOOR - CEILING FRAMING SCALE: 1/4"=1'-0" WALLS BELOW SHOWN DASHED (TYP.) WALLS BELOW SHOWN DASHED (TYP.) (3) 1 3 4" x 11 7 (2.0E)(FDROP) 8" LVL WALLS BELOW SHOWN DASHED (TYP.) (H6) (H6) WALLS BELOW SHOWN DASHED (TYP.) ) 6 H ( (H6) 2- 2x8 . C . O " 4 2 @ 6 x 2 ) E G A R O T S . D T L ( ) G N I L I E C " 0 - 9 ( ' " 8 7 1 1 x " 4 3 1 ) 3 ( ) H ( ) E 0 . 2 ( L V L 2- 2x8 (H6) 2x6 @ 24" O.C. (LIMITED STORAGE)(10'-0" CEILING) PLAN NOTE 7 9 S3.2 (3) 1 3 4" x 18" LVL (2.0E)(FLUSH) 4-2x6 STUD PACK ABOVE 4-2x6 STUD PACK ABOVE PLAN NOTE 7 SIMPSON MSTC28 ) H ( ) E 0 . 2 ( L V L " 8 7 1 1 x " 4 3 1 ) 3 ( 2x6 @ 24" O.C. (LIMITED STORAGE)(10'-0" CEILING) SIMPSON MSTC28 (2) 2x12 SPF#2 (DROP)(CONT.) 8 x 2 - 2 ) 6 H ( 2x6 @ 24" O.C. (LIMITED STORAGE) (9'-0" CEILING) (H6) 0 1 x 2 - 2 2x6 @ 24" O.C. (LTD. STORAGE) (10'-0" CEILING) (3) 2x12 SPF#2 (FLUSH) WALL ABOVE (H10) ) 8 H ( 2x6 @ 24" O.C. (LIMITED STORAGE) (10'-0" CEILING) (H6) 2x6 @ 24" O.C. (LIMITED STORAGE) (10'-0" CEILING) ) 6 H ( 4-2x6 STUD PACK ABOVE ) E 0 . 2 ( L V L " 8 7 1 1 x " 4 3 1 ) 2 ( 4-2x6 STUD PACK ABOVE I ) N O T I S N A R T F O O R @ E V O B A ( ) 6 H ( ) H S U L F ( ) E 0 . 2 ( L V L " 8 7 1 1 x " 4 3 1 ) 3 ( . C . O " 4 2 @ 6 x 2 ) E G A R O T S D E T M I L ( I ) G N I L I E C " 0 - 0 1 ( ' 9 S3.2 SIM. WALL ABOVE (2) 2x12 (DROP) . C . O " 4 2 @ 6 x 2 ) E G A R O T S D E T M I L ( I ) G N I L I E C " 0 - 9 ( ' ) 8 H ( OUTLINE OF FLOOR AREA 2.0E MICROLAM LVL BEAM #2 SOUTHERN YELLOW PINE 2x HEADER CEILING JOISTS (REF. PLAN) FLOOR TRUSSES BY OTHERS ROOF TRUSSES BY OTHERS POINT LOAD FROM FLOOR ABOVE INVERTED HANGERS FACE HANGERS U.W.A: UNDER WALL ABOVE ) 8 H ( 2x6 @ 24" O.C. (LIMITED STORAGE)(10'-0" CEILING) 2 1 x 2 - 2 0 1 x 2 - 2 0 1 x 2 - 2 WALLS BELOW SHOWN DASHED (TYP.) 8 x 2 - 2 ) 6 H ( 6 x 2 - 2 2-2x6 2-2x10 6 x 2 - 2 ) 2 1 H ( GABLE WALL ABOVE ) 0 1 H ( (3) 1 3 4" x 14" LVL (2.0E)(FLUSH) (H6) 4-2x6 STUD PACK ABOVE 2- 2x8 2x8 @ 24" O.C. (LIMITED STORAGE)(10'-0" CEILING) * 3- 2x10 . C . O " 4 2 @ 6 x 2 ) E G A R O T S D E T M I L ( I ) G N I L I E C " 0 - 9 ( ' (H6) 2- 2x8 (H6) (H6) (H6) ) 0 1 H ( ) 8 H ( 2 1 x 2 ) 3 ( 2 1 x 2 ) 2 ( LABEL (H4) (H6) (H8) (H10) (H12) FRAMING (2) 2x4 (H) (2) 2x6 (H) (2) 2x8 (H) (2) 2x10 (H) (2) 2x12 (H) HEADER LEGEND TRIMMERS/POST (1) 2x6 OR (1) 2x4 (1) 2x6 OR (1) 2x4 (1) 2x6 OR (1) 2x4 (2) 2x6 OR (2) 2x4 (2) 2x6 OR (2) 2x4 KING STUDS* (1) 2x6 OR (1) 2x4 (1) 2x6 OR (1) 2x4 (1) 2x6 OR (1) 2x4 (1) 2x6 OR (1) 2x4 (1) 2x6 OR (1) 2x4 *KINGS STUDS TO BE REPLACED BY COMPRESSION STUDS AS SHOWN IN THE TDS HOLDOWN DETAILS WHERE OCCURS METAL STRAP SCHEDULE SYMBOL TYPE SIMPSON MSTC28 MANDATORY PRE-DRYWALL FRAME INSPECTION TO BE PERFORMED BY SEC PRIOR TO INSULATION 2ND FLOOR - CEILING FRAMING SCALE: 1/4"=1'-0" NOTES: 1. REFER TO WIND BRACING PLANS FOR ADDITIONAL REQUIREMENTS FOR LOAD BEARING WALL THAT ARE PART OF THE WIND LOAD RESISTING SYSTEM (SHEAR WALLS). 2. 2x4 @ 16" O.C. MAY BE USED TO A MAXIMUM PLATE HEIGHT OF 10 FT (SUPPORTING ONE FLOOR AND ROOF/CEILING ASSEMBLY). 3. CONTACT THE ENGINEER OF RECORD FOR CONDITIONS NOT COVERED IN THIS SCHEDULE. PLAN NOTES 1. ALL CONSTRUCTION PER CURRENT EDITION OF THE INTERNATIONAL RESIDENTIAL CODE (IRC). 2. VERIFY PLAN DIMENSIONS AND FLOOR/CEILING ELEVATIONS (T.O.P.) WITH ARCHITECTURAL PLANS. NOTIFY ENGINEER OF RECORD OF DISCREPANCIES. 3. REFER TO GENERAL NOTES (S0.0) FOR MATERIAL PROPERTIES AND CONSTRUCTION RECOMMENDATIONS. 4. AT A MINIMUM, DOUBLE JOISTS AT HVAC UNIT LOCATIONS. 5. NOTIFY THE ENGINEER OF RECORD IF FIELD CONDITIONS DON'T ALLOW FRAMING MEMBERS TO BE PLACED AS SHOWN ON PLANS. 6. REFER TO TYPICAL DETAIL SHEET FOR MULTIPLE MEMBER CONNECTION DETAIL(S). 7. EXTEND BEAM 16" (MIN) OVER END WALL TO ALLOW FOR PORTAL FRAMING (REF. DETAIL 3/S6.2), (TYP). MIN. 4-2x4 STUD PACK @ JACK STUDS WALL SCHEDULE DESIGNATION SYMBOL FRAMING LOAD-BEARING WALL NON-LOAD BEARING WALL 2x4 (MIN.) STUDS (DF #1 OR SYP #2) @ 16" O.C. (MAX.) 2x4 (MIN.) STUDS (DF #1 OR SYP #2) @ 24" O.C. (MAX.) LEGEND SYMBOL DESCRIPTION T E E R T S T S E R R O F 7 0 4 2 4 6 8 7 X T , L L I H Y T R E B I L 4 6 3 4 - 5 1 2 ) 2 1 5 ( 9 0 0 5 1 - F S N O I T U L O S TRUSS NOTES 1. ALL FRAMING MEMBERS AND CONSTRUCTION TO BE PER 2024 EDITION OF INTERNATIONAL RESIDENTIAL CODE 2. TRUSS SPACING SHOWN ON PLANS IS FOR REFERENCE ONLY. FINAL TRUSS LOCATIONS AND SPACING TO BE PROVIDED BY TRUSS SUPPLIER. 3. TRUSS ENGINEER TO PROVIDE ADEQUATE SUPPORT FOR LOADS FROM FLOORS / ROOF ABOVE. 4. POINT LOADS SHOWN WERE DERIVED FROM ROOF LOADING (LIVE AND DEAD LOADS) AND SHOULD BE SUPERIMPOSED TO FLOOR LOADS TO BE CALCULATED BY THE TRUSS ENGINEER, INCLUDING LOAD BEARING WALLS. TRUSS ENGINEER TO VERIFY ALL LOAD PERTINENT TO TRUSSES. D A O R E S A E P 8 0 5 1 S E M O H N O T S U C E L L A N 3 0 7 8 7 X T , I N T S U A COORDINATION DRAWINGS. NOT FOR CONSTRUCTION NOT FOR CITY REVIEW E T A D 4 2 / X X / X X 4 2 / X X / X X 4 2 / X X / X X 4 2 / X X / X X 4 2 / X X / X X 4 2 / X X / X X N O I S I V E R . O N T E S W E I V E R N O I S I V E R N O I S I V E R N O I S I V E R N O I S I V E R N O I S I V E R . 1 . 2 . 3 . 4 . 5 . 6 TE A ST TFO EX AS MARCOS V. DEQUEIROGA PR 101049 D FO L I ES NEC OSSE NIG I LAN E R E EN 01/30/2026 E T A D 6 2 / 0 3 / 1 0 I N O S V E R I T E S W E V E R I . O N . 1 PROJECT: 25227 DATE: 01-30-26 DRAWN BY: TF SCALE: AS NOTED S3.1 METAL STRAP SCHEDULE SYMBOL TYPE SIMPSON MSTC28 METAL STRAP SCHEDULE SYMBOL TYPE SIMPSON MSTC28 SIMPSON HTSQ20 METAL STRAP SCHEDULE SYMBOL TYPE SIMPSON MSTC48B3 *REF. TO SIMPSON WOOD CONSTRUCTION CONNECTORS BOOK FOR COLUMN CAP. INSTALLATION ON STEEL COLUMN SHALL BE ORDERED FOR FIELD WELDING TO STEEL COL. WITH NO COLUMN STRAPS 2x WALL ABOVE (REF. PLAN) PLYWOOD SHEATHING PLYWOOD/OSB SUBFLOOR 2x WALL ABOVE (REF. PLAN) PLYWOOD/OSB SUBFLOOR INVERTED HANGER 2x WALL ABOVE (REF. PLAN) PLYWOOD/OSB SUBFLOOR PLYWOOD SHEATHING 2ND FLR EL = REF. ARCHT'L T.O. PLATE EL = REF. ARCHT'L PLYWOOD SHEATHING 2x RAFTER (REF. PLAN) 5 8" OSB DECKING 2x CEILING JOIST (REF. PLAN) PLYWOOD/OSB SUBFLOOR LVL BEAM (REF. PLAN) FLOOR TRUSS BY OTHERS 2x WALL BELOW (REF. PLAN) FLOOR TRUSS BY OTHERS 2x WALL BELOW (REF. PLAN) FLOOR TRUSS BY OTHERS FLOOR TRUSS BY OTHERS CANTILEVER (REF. PLAN) FLOOR TRUSS BY OTHERS SIMPSON TRUSS HANGER 2x8 LEDGER 2x WALL BELOW (REF. PLAN) 4 ROWS OF 1 4" Ø x 4" WOOD SCREWS @ 24" O.C. 2x10 LEDGER 2x WALL ABOVE (REF. PLAN) PLYWOOD/OSB SUBFLOOR 2ND FLR EL = REF. ARCHT'L T.O. PLATE EL = REF. ARCHT'L FLOOR TRUSS BY OTHERS 2x WALL BELOW (REF. PLAN) SECTION 1 SECTION 2 SECTION 3 SECTION 4 SECTION 5 PLYWOOD SHEATHING 2x10 LEDGER 2x RAFTER (REF. PLAN) 5 8" OSB DECKING TILE ROOF LINE PLATE SIMPSON H2.5A TIE EA. RAFTER 2x CRIPPLE WALL BELOW (REF. PLAN) 2x WALL ABOVE (REF. PLAN) PLYWOOD/OSB SUBFLOOR 4 ROWS OF 1 4" Ø x 4" WOOD SCREWS @ 24" O.C. FLOOR TRUSS BY OTHERS LVL BEAM (REF. PLAN) 2ND FLR EL = REF. ARCHT'L T.O. PLATE EL = REF. ARCHT'L DOUBLE TOP PLATE 2x CEILING JOIST (REF. PLAN) 2x8 LEDGER LVL HEADER (REF. PLAN) SECTION 6 2x STUD PACK (REF. PLAN) FRAMING @ BEAM ENDS LVL BEAM (REF. PLAN) SIMPSON HANGER (REF. SCHEDULE) T.O. PLATE EL = REF. ARCHT'L 2x JOIST (REF. PLAN) SECTION 9 PLYWOOD SHEATHING 2x10 LEDGER 2x RAFTER (REF. PLAN) 5 8" OSB DECKING SIMPSON H2.5A TIE EA. RAFTER LINE PLATE 2x WALL ABOVE (REF. PLAN) PLYWOOD/OSB SUBFLOOR 4 ROWS OF 1 4" Ø x 4" WOOD SCREWS @ 24" O.C. 2ND FLR EL = REF. ARCHT'L DECKING (1 1 8" MIN.) (DRAINAGE & WATERPROOFING BY OTHERS) T.O. BALCONY = REF. ARCH'L 2x WOOD BAND (CONT) T.O. PLATE EL = REF. ARCHT'L T.O. PLATE EL = REF. ARCHT'L PLYWOOD SHEATHING SLOPE (REF. ARCH'L) . F E R ' L H C R A 2X WALL ABOVE PLYWOOD/OSB SUBFLOOR 2ND FLR EL = REF. ARCHT'L T.O. PLATE EL = REF. ARCHT'L 2x CRIPPLE WALL BELOW (REF. PLAN) 2x8 LEDGER 2x CEILING JOIST (REF. PLAN) FLOOR TRUSS BY OTHERS FLOOR TRUSS BY OTHERS 2X WALL BELOW CANTILEVER (REF. PLAN) SIMPSON H2.5A TIE EA. CANTILEVERED TRUSS SECTION 8 SECTION 7 2x RAFTER (REF. PLAN) 5 8" OSB DECKING PLYWOOD SHEATHING 2x10 LEDGER TILE ROOF LINE PLATE SIMPSON H2.5A TIE EA. RAFTER LVL BEAM (REF. PLAN) 2x PURLIN (REF. PLAN) 2x CEILING JOIST (REF. PLAN) 2x8 LEDGER 2x WALL ABOVE (REF. PLAN) 4 ROWS OF 1 4" Ø x 4" WOOD SCREWS @ 24" O.C. PLYWOOD/OSB SUBFLOOR 2ND FLR EL = REF. ARCHT'L T.O. PLATE EL = REF. ARCHT'L FLOOR TRUSS BY OTHERS 2x CRIPPLE WALL BELOW (REF. PLAN) LVL HEADER (REF. PLAN) SECTION 10 FRAMING DETAILS SCALE: N.T.S. T E E R T S T S E R R O F 7 0 4 2 4 6 8 7 X T , L L I H Y T R E B I L 4 6 3 4 - 5 1 2 ) 2 1 5 ( 9 0 0 5 1 - F S N O I T U L O S D A O R E S A E P 8 0 5 1 S E M O H N O T S U C E L L A N 3 0 7 8 7 X T , I N T S U A TE A ST TFO EX AS MARCOS V. DEQUEIROGA PR 101049 D FO L I ES NEC OSSE NIG I LAN E R E EN 01/30/2026 E T A D 6 2 / 0 3 / 1 0 I N O S V E R I T E S W E V E R I . O N . 1 PROJECT: 25227 DATE: 01-30-26 DRAWN BY: TF SCALE: AS NOTED S3.2 COORDINATION DRAWINGS. NOT FOR CONSTRUCTION NOT FOR CITY REVIEW E T A D 4 2 / X X / X X 4 2 / X X / X X 4 2 / X X / X X 4 2 / X X / X X 4 2 / X X / X X 4 2 / X X / X X N O I S I V E R . O N T E S W E I V E R N O I S I V E R N O I S I V E R N O I S I V E R N O I S I V E R N O I S I V E R . 1 . 2 . 3 . 4 . 5 . 6 SIMPSON H2.5A EA. RAFTER TYP. (2) 1 3 4" x 16" LVL (2.0E) RIDGE 2x12 RIDGE 2x ROOF PURLIN TILE ROOF: 5 8" DECK ON 2- 2x8 RAFTERS @ 16" O.C., U.N.O., (TYP.) SIMPSON H2.5A EA. RAFTER TYP. 2x ROOF PURLIN OVERFRAME (TYP.) LAY-ON VALLEY 2x ROOF PURLIN 2x ROOF PURLIN SIMPSON H2.5A EA. RAFTER TYP. TILE ROOF: 5 8" DECK ON 2x8 RAFTERS @ 24 O.C., U.N.O., (TYP.) TILE ROOF: 5 8" DECK ON 2x8 RAFTERS @ 24" O.C., U.N.O., (TYP.) SIMPSON H2.5A EA. RAFTER TYP. SIMPSON H2.5A EA. RAFTER TYP. SIMPSON H2.5A EA. RAFTER TYP. ROOF RAFTER TOP PLATE T E E R T S T S E R R O F 7 0 4 2 4 6 8 7 X T , L L I H Y T R E B I L 4 6 3 4 - 5 1 2 ) 2 1 5 ( 9 0 0 5 1 - F S N O I T U L O S 2x10 HIP 2x ROOF PURLIN SIMPSON H2.5 OR APPROVED SIMILAR NAILED PER MFRG. RECOMMENDATIONS DETAIL 1 2x12 VALLEY 2x12 RIDGE LAY-ON VALLEY 2x ROOF PURLIN TILE ROOF: 5 8" DECK ON 2x8 RAFTERS @ 24" O.C., U.N.O., (TYP.) 2x10 HIP SIMPSON H2.5A EA. RAFTER TYP. SIMPSON H2.5A EA. RAFTER TYP. TILE ROOF: 5 8" DECK ON 2x8 RAFTERS @ 24" O.C., U.N.O., (TYP.) TE A ST TFO EX AS E G D R I 2 1 x 2 PITCH CHANGE 2x ROOF PURLIN OVERFRAME (TYP.) OVERFRAME (TYP.) OVERFRAME (TYP.) E G D R I 2 1 x 2 LAY-ON VALLEY 2x ROOF PURLIN 2x ROOF PURLIN LAY-ON VALLEY 2x ROOF PURLIN 2x12 RIDGE 2x ROOF PURLIN TILE ROOF: 5 8" DECK ON 2x8 RAFTERS @ 24" O.C., U.N.O., (TYP.) SIMPSON H2.5A EA. RAFTER TYP. TILE ROOF: 5 8" DECK ON 2x8 RAFTERS @ 24" O.C., U.N.O., (TYP.) SIMPSON H2.5A EA. RAFTER TYP. LEGEND SYMBOL DESCRIPTION ROOF BRACE ROOF BRACE DIRECTLY BELOW 2x ROOF PURLIN ROOF RAFTERS (REF. PLAN) ROOF FRAMING PLAN SCALE: 1/4"=1'-0" D A O R E S A E P 8 0 5 1 S E M O H N O T S U C E L L A N 3 0 7 8 7 X T , I N T S U A MARCOS V. DEQUEIROGA PR 101049 D FO L I ES NEC OSSE NIG I LAN E R E EN 01/30/2026 E T A D 6 2 / 0 3 / 1 0 I N O S V E R I T E S W E V E R I . O N . 1 PROJECT: 25227 DATE: 01-30-26 DRAWN BY: TF SCALE: AS NOTED S4.0 COORDINATION DRAWINGS. NOT FOR CONSTRUCTION NOT FOR CITY REVIEW E T A D 4 2 / X X / X X 4 2 / X X / X X 4 2 / X X / X X 4 2 / X X / X X 4 2 / X X / X X 4 2 / X X / X X N O I S I V E R . O N T E S W E I V E R N O I S I V E R N O I S I V E R N O I S I V E R N O I S I V E R N O I S I V E R . 1 . 2 . 3 . 4 . 5 . 6