Historic Landmark Commission - Oct. 1, 2025

Historic Landmark Commission Regular Meeting of the Historic Landmark Commission - Council Chambers

0.0 - HLC Preview List original pdf

Thumbnail of the first page of the PDF
Page 1 of 4 pages

Historic Landmark Commission Applications in Review for October 1, 2025 Regular Meeting This list does not constitute a formal agenda and is subject to change. A final agenda will be posted at least 72 hours prior to the meeting. The public may comment on formal agenda items in-person or remotely via telephone. Speakers may only register to comment once per item and are allowed three minutes to speak. To participate remotely by telephone, speakers must register by noon on the day before the hearing via the QR code and link at the end of this document. APPROVAL OF MINUTES Approve the minutes from the September 3, 2025, regular meeting of the Historic 1. Landmark Commission. BRIEFINGS 2. 3. Briefing on Rally Austin 2026 Bond Priorities Presenter: David Colligan, Chief Operating Officer, Rally Austin Briefing on the IH-35 Interpretative Plan Presenter: Rebekah Dobrasko, Cultural Resources Section Director, Texas Department of Transportation PUBLIC HEARINGS/DISCUSSION AND ACTION Historic Zoning Applications 4. C14H-2025-0095 – 2401 Givens Ave. Calhoun House Council District 1 Proposal: Commission-initiated historic zoning Applicant: Historic Landmark Commission City Staff: Austin Lukes, Historic Preservation Office, 512-978-0766 Historic Landmark and Local Historic District Permit Applications 5. SB-2025-114755 – 604 Brazos St. Driskill Hotel Council District 9 Proposal: Install a sign at the 7th Street elevation of the 1939 tower. Applicant: Marcos Crane City Staff: Kalan Contreras, Historic Preservation Office, 512-974-2727 6. HR-2025-099714 – 1504 E. 11th St. Ethel Pearl’s Beauty Salon Council District 1 Proposal: Rehabilitate and remodel a landmarked building. (Postponed by HLC on September 3, 2025) Applicant: Mike Hale City Staff: Austin Lukes, Historic Preservation Office, 512-978-0766 7. HR-2025-113074 – 1403 S. Congress Ave. Bergen-Todd House Council District 9 Proposal: Construct a solarium addition, covered and uncovered patios, and a new ADA restroom facility. Applicant: Victoria Haase City Staff: Kalan Contreras, Historic Preservation Office, 512-974-2727 8. HR-2025-112563, PR-2025-099859 – 706 Highland Ave. Smoot-Terrace Park Local Historic District Council District 9 Proposal: Construct a second-floor addition. Applicant: Clare Bradford City Staff: Austin Lukes, Historic Preservation Office, 512-978-0766 9. HR-2025-113541 – 4304 Avenue C. Hyde Park Local District Council District 9 Proposal: Construct a new building and accessory structure. Applicant: Becca Floyd City Staff: Austin Lukes, Historic Preservation Office, 512-978-0766 National Register Historic District Permit Applications 10. PR-2025-088150, HR-2025-113285 – 2514 Wooldridge Dr. Old West Austin National Register Historic District Council District 10 Proposal: Demolish a contributing building (postponed by HLC on September …

Scraped at: Sept. 18, 2025, 4:59 a.m.

0.0 - HLC Agenda_10_01_2025 original pdf

Thumbnail of the first page of the PDF
Page 1 of 7 pages

HISTORIC LANDMARK COMMISSION WEDNESDAY, October 1, 2025 – 6:00 PM City Hall – Council Chambers 301 W. 2nd Street Austin, TX 78701 Some Commission members may be participating by videoconference. View the meeting online at: http://www.austintexas.gov/page/watch-atxn-live. Public comment will be allowed in-person or remotely via telephone. Speakers may only register to speak on an item once either in-person or remotely and will be allocated three minutes to provide their comments. Registration no later than noon the day before the meeting is required for remote participation by telephone. To register to speak remotely, please use the QR code or link at the end of this document. For questions, please email preservation@austintexas.gov. COMMISSION MEMBERS: Ben Heimsath, (D-8) Chair Roxanne Evans (D-2), Vice Chair Jeffrey Acton (Mayor) VACANT (D-1) Kevin Koch (D-3) Judah Rice (D-4) Harmony Grogan (D-5) Carl Larosche (D-6) Jaime Alvarez (D-7) Bat Taniguchi (D-9) Trey McWhorter (D-10) AGENDA CALL TO ORDER PUBLIC COMMUNICATION: GENERAL The first (10) speakers who register to speak before the meeting will be allocated three minutes to speak about an item(s) that is not posted on the agenda. 1 APPROVAL OF MINUTES 1. Approve the minutes of the Historic Landmark Commission regular meeting on September 3, 2025. BRIEFINGS 2. 3. Briefing on Rally Austin 2026 Bond Priorities Presenter: David Colligan, Chief Operating Officer, Rally Austin Briefing on the IH-35 Interpretative Plan Presenter: Rebekah Dobrasko, Cultural Resources Section Director, Texas Department of Transportation PUBLIC HEARINGS/DISCUSSION AND ACTION Historic Zoning Applications 4. C14H-2025-0095 – 2401 Givens Ave. Calhoun House Council District 1 Proposal: Commission-initiated historic zoning. Applicant: Historic Landmark Commission City Staff: Austin Lukes, Historic Preservation Office, 512-978-0766 Staff Recommendation: Grant the proposed zoning change from family residence-historic district-neighborhood plan (SF-3-HD-NP) to family residence-historic landmark-historic district-neighborhood plan (SF-3-H-HD-NP) combining district zoning. Historic Landmark and Local Historic District Applications 5. 6. SB-2025-114755 – 604 Brazos St. Driskill Hotel Council District 9 Proposal: Install a sign at 7th Street elevation of the 1939 tower. Applicant: Marcos Crane City Staff: Kalan Contreras, Historic Preservation Office, 512-974-2727 Staff Recommendation: Concur with Architectural Review Committee, and approve the Certificate of Appropriateness for either neon or bulb lighting. HR-2025-099714 – 1504 E. 11th St. Ethel Pearl’s Beauty Salon Council District 1 Proposal: Rehabilitate and remodel a landmark building. (Postponed by HLC on September 3, 2025) Applicant: Mike Hale City Staff: Austin Lukes, Historic Preservation Office, 512-978-0766 Staff Recommendation: Approve the application. 2 7. 8. …

Scraped at: Sept. 23, 2025, 4:33 p.m.

0.0 - HLC Draft Minutes_09_03_2025 original pdf

Thumbnail of the first page of the PDF
Page 1 of 6 pages

HISTORIC LANDMARK COMMISSION Wednesday, September 3rd, 2025, 6:00 p.m. City Hall Council Chambers 301 W. 2nd St., Austin, TX 78701 COMMISSION MEMBERS: X Ben Heimsath, (D-8) Chair X Roxanne Evans (D-2), Vice Chair X VAC VACANT (D-1) X Kevin Koch (D-3) Judah Rice (D-4) X Jeffrey Acton (Mayor) X Harmony Grogan (D-5) AB Carl Larosche (D-6) Jaime Alvarez (D-7) X Bat Taniguchi (D-9) X Trey McWhorter (D-10) X MINUTES CALL TO ORDER: 6:00 p.m. PUBLIC COMMUNICATION: GENERAL The first (10) speakers who register to speak before the meeting will be allocated three minutes to speak about an item(s) that is not posted on the agenda. Meghan King spoke on Preservation Austin updates. APPROVAL OF MINUTES 1. Approve the minutes of the Historic Landmark Commission regular meeting on August 6, 2025. MOTION: Approve the minutes per passage of the consent agenda on a motion by Vice- Chair Evans. Commissioner McWhorter seconded the motion. Vote: 9-0. The motion passed. PUBLIC HEARINGS/DISCUSSION AND ACTION Historic Zoning Applications 2. PR-2025-041615 – 607 E. 38th St. Council District 9 Proposal: Commission-initiated historic zoning. (Postponed by applicant on August 6, 2025) Applicant: Historic Landmark Commission City Staff: Austin Lukes, Historic Preservation Office, 512-978-0766 Staff Recommendation: Do not grant historic zoning, as the property does not meet two criteria for designation. Strongly encourage rehabilitation and adaptive reuse or relocation, then material salvage and reuse, but release the demolition permit upon completion of a City of Austin Documentation Package. Charles d’Harcourt spoke in favor of historic zoning. Jorge Alzaga spoke in opposition to historic zoning. MOTION: Close the public hearing and release the demolition permit upon completion of a City of Austin Documentation Package on a motion by Commissioner Koch. Commissioner Acton seconded the motion. Vote: 9-0. The motion passed. 3. C14H-2025-0086 – 1712 Rio Grande St. Reed House Council District 9 Proposal: Applicant-initiated historic zoning Applicant: Dave Anderson City Staff: Kalan Contreras, Historic Preservation Office, 512-974-2727 Staff Recommendation: Grant the proposed zoning change to add historic landmark combining district zoning (H) to the base zoning. Tere O’Connell spoke in favor of historic zoning. Robin Shepherd spoke in favor of historic zoning. MOTION: Close the public hearing on a motion by Commissioner Koch. Commissioner Acton seconded the motion. Vote 9-0. The motion passed. MOTION: Approve the historic zoning application per staff recommendation on a motion by Commissioner Koch. Commissioner Acton seconded the motion. Vote: 9-0. The motion passed. …

Scraped at: Sept. 23, 2025, 4:33 p.m.

04.0 - C14H-2025-0095 - Calhoun House original pdf

Thumbnail of the first page of the PDF
Page 1 of 5 pages

ZONING CHANGE REVIEW SHEET CASE NUMBER: C14H-2025-0095 HLC DATE: October 1, 2025 PC DATE: CC Date: APPLICANT: Historic Landmark Commission (commission-initiated) HISTORIC NAME: Givens House WATERSHED: Boggy Creek ADDRESS OF PROPOSED ZONING CHANGE: 2401 Givens Ave. ZONING CHANGE: SF-3-HD-NP to SF-3-H-HD-NP COUNCIL DISTRICT: 1 STAFF RECOMMENDATION: Staff recommends the proposed zoning change from family residence- historic district-neighborhood plan (SF-3-HD-NP) to family residence-historic landmark-historic district- neighborhood plan (SF-3-H-HD-NP) combining district zoning. QUALIFICATIONS FOR LANDMARK DESIGNATION: architecture, community value, and historical associations. HISTORIC LANDMARK COMMISSION ACTION: PLANNING COMMISSION ACTION: CITY COUNCIL ACTION: CASE MANAGER: Austin Lukes, 512-978-0766 NEIGHBORHOOD ORGANIZATIONS: Austin Independent School District, Austin Neighborhoods Council, Del Valle Community Coalition, East Austin Conservancy, Friends of Austin Neighborhoods, Homeless Neighborhood Association, Overton Family Committee, Preservation Austin, Rogers Washington Holy Cross, Upper Boggy Creek Neighborhood Planning Team DEPARTMENT COMMENTS: The 2016 East Austin Historic Resource Survey recommended the property as contributing to a potential local historic district. The property was subsequently listed as a contributing resource in the 2020 ordinance designating the Rogers Washington Holy Cross local historic district. BASIS FOR RECOMMENDATION: § 25-2-352(3)(c)(i) Architecture. The property embodies the distinguishing characteristics of a recognized architectural style, type, or method of construction; exemplifies technological innovation in design or construction; displays high artistic value in representing ethnic or folk art, architecture, or construction; represents a rare example of an architectural style in the city; serves as an outstanding example of the work of an architect, builder, or artisan who significantly contributed to the development of the city, state, or nation; possesses cultural, historical, or architectural value as a particularly fine or unique example of a utilitarian or vernacular structure; or represents an architectural curiosity or one-of-a-kind building. Designed and constructed by local builder Hal Starkey, the Calhoun House exemplifies the California ranch style and is one of the few remaining examples left in East Austin. It features several of the architectural features associated with the Ranch form and style generally, such as a low, long street facing elevation and an attached garage at one side, facing the street. The California ranch elements are more evident at the rear and interior of the property, including vaulted ceilings in the main entry room and wood paneling. The layout of the house at the rear surrounds the yard on two sides, which were originally planned to face a backyard pool. The interior layout is laid out by public and …

Scraped at: Sept. 23, 2025, 4:33 p.m.

04.1 - C14H-2025-0095 - Calhoun House - Application original pdf

Thumbnail of the first page of the PDF
Page 1 of 65 pages

B. Tax Map C. Tax Certificate Historical Documentation - Deed Chronology F. 1 Deed research for 2401 Givens Avenue Date Transaction Vol./Page or Instrument 1959-12-23 1987-07-15 2003-06-13 2012-04-25 2015-01-25 2016-02-05 2017-12-15 2017-12-18 2018-04-12 WASHINGTON HAZEL EVAN to CALHOUN T C & THELMA D Vol. 2143, Page 100 CALHOUN T C & THELMA D to CALHOUN PATRICIA & THELMA D Vol. 10372, Page 709 CALHOUN PATRICIA & THELMA D to CALHOUN THELMA C & PATRICIA CALHOUN THELMA C & PATRICIA to CALHOUN THELMA C LIFE ESTATE 2003153655TR 2012072747TR CALHOUN THELMA C LIFE ESTATE to CALHOUN PATRICIA None CALHOUN PATRICIA to CALHOUN PATRICIA C TRUST CALHOUN PATRICIA C TRUST to EDWARDS KAREN CRAWFORD EDWARDS KAREN CRAWFORD to CALHOUN PATRICIA C CALHOUN PATRICIA C to CALHOUN PATRICIA C TRUST 2016024472 2017198036 2017199429 2018058878 F.2 Historical Documentation - Occupancy History Occupancy Research for 2401 Givens Avenue Year 1959 1990 2015 Occupant Name and Reference Theodore C. and Thelma Dotson Calhoun Thelma Dotson Calhoun Patricia Calhoun Source Patricia Calhoun Patricia Calhoun Patricia Calhoun Calhoun House Historic Landmark Application Biographical Data F.3 See Section F.2 for occupancy history and Section F.9 for data on owners and occupants. Historically Significant Events F4. See Section F.9 for history of the building and its occupants. Calhoun House Historic Landmark Application F.5 Color Digital Prints Image 1 North elevation, facing south Photo by Meghan King 2025 Calhoun House Historic Landmark Application Image 2 West elevation, facing east Photo by Meghan King 2025 Calhoun House Historic Landmark Application Image 3 West and south elevations, facing northeast Photo by Meghan King 2025 Calhoun House Historic Landmark Application Image 4 South elevation, facing north Photo by Meghan King 2025 Calhoun House Historic Landmark Application Image 5 East elevation, facing west Photo by Meghan King 2025 Calhoun House Historic Landmark Application Image 6 East and south elevations, facing northwest Photo by Meghan King 2025 Calhoun House Historic Landmark Application Image 7 Interior view, living room Photo by Lauren Kerr 2021 Calhoun House Historic Landmark Application Image 8 Interior view, kitchen/dining area Photo by Lauren Kerr 2021 Calhoun House Historic Landmark Application Image 9 Interior view, kitchen Photo by Lauren Kerr 2021 Calhoun House Historic Landmark Application Image 10 Interior view, bathroom Photo by Lauren Kerr 2021 Calhoun House Historic Landmark Application Image 11 Interior view, hallway Photo by Lauren Kerr 2021 Calhoun House Historic Landmark Application F. 6 Architect/Builder/Contractor/Craftsmen See F.9 for information on …

Scraped at: Sept. 23, 2025, 4:33 p.m.

04.b - C14H-2025-0095 - public comment original pdf

Thumbnail of the first page of the PDF
Page 1 of 1 page

From: To: Subject: Date: City of Austin Historic Preservation Office Case # -C14H-2025-0095 Monday, September 22, 2025 7:26:37 PM This message is from Ms. Ora Houston . I am in favor (for) this zoning request.

Scraped at: Sept. 23, 2025, 4:33 p.m.

05.0 - 604 Brazos St original pdf

Thumbnail of the first page of the PDF
Page 1 of 2 pages

HISTORIC LANDMARK COMMISSION SIGN INSTALLATION APPLICATION OCTOBER 1, 2025 2025-114755 SB DRISKILL HOTEL TOWER 604 BRAZOS STREET 5 – 1 PROPOSAL Install an illuminated blade sign at the 7th Street elevation. PROJECT SPECIFICATIONS The proposed sign is approximately 36 ft2 in area. It is lit by bulbs around the perimeter of the vertical blade, and anchored into the existing masonry wall. The sign’s design and placement approximate those of the ca. 1950s Driskill Hotel sign. DESIGN STANDARDS The City of Austin’s Guidelines for Signs in Historic Districts or City Historic Landmarks are used to evaluate projects at historic landmarks. The following standards apply to the proposed project: Number of Signs: The Commission allows one sign per building, unless the building has multiple tenants; in this case, the Commission may allow one sign per façade module, if the façade modules correspond to tenant spaces. The Commission may also allow one sign for each street frontage if the building is at an intersection. A single directory sign is appropriate for a large building with multiple tenants. The proposed sign appears next to an awning with signage. The existing awning signage should be removed prior to installation of the new sign. Sign Types: The Commission may allow window signs, awning signs, projecting signs, and flush mounted signs for most commercial buildings. The proposed sign is a compatible projecting sign. Sign Size: The maximum size for signs depends on the sign type. Projecting (blade) signs: 6 square feet. Large commercial buildings (over 3 stories): Cumulative signage may not exceed 40 square feet per façade and must comply with a signage plan for the building. While the proposed sign exceeds the maximum size for blade signs, it complies with the 40 ft2 area requirement if no other signage on the façade exceeds 4 ft2. Sign Design, Coloring and Materials: Use simple shapes, such as rectangular or oval signs. The Commission recommends painted wood or metal signs with matte finishes for all signs; plastic, reflective materials, and unfinished surfaces are not allowed. Limit the colors used in a sign to no more than three. For sites with multiple signs, all signs should have corresponding or matching designs, coloring, and materials. Signs should match or complement the existing color scheme of the building to the maximum extent feasible. The proposed sign complies with the standards and is compatible with signage proposed for other façades. Lettering: No more …

Scraped at: Sept. 23, 2025, 4:33 p.m.

05.2 - 604 Brazos St - Driskill Steakhouse - Sign Drawing original pdf

Thumbnail of the first page of the PDF
Page 1 of 7 pages

PROJEC T DRI SKI LL HOTEL EXTERIOR SIGNAGE - THE DRISKILL GRILL ARC & HLC REVIEW | SEPT EMBE R 202 5 MM L HOSPITALIT Y | 1711 SOUT H C ONG RE SS AVE, AUSTIN, T X 78704 | MMLHOSPITALIT Y. C OM 09 .19 .2 025 TH E DRISKILL GRILL EAST 7T H STRE ET BT WN BR A ZO S & C ONGR ES S DRISKILL HOTEL | RESTAURANT SIGNAGE | ARC & HLC REVIEW | SEPTEMBER 2025 THE DRISKIL L GRIL L - NEON BL ADE SIGN - INT ENT & MO C KUP DRISKILL HOTEL | RESTAURANT SIGNAGE | ARC & HLC REVIEW | SEPTEMBER 2025 THE DRISKILL GR ILL - NEON BL A DE SIG N - ART & SPE CS Type: Blade Sign - Neon Total Area: Dimensions: Can Colors: ~75 SF ~30’ x 2.5’ 2 Neon Colors: Gold Letters, Red Border Lettering: Distance from street: 1 typeface Min 9’ DRISKILL HOTEL | RESTAURANT SIGNAGE | ARC & HLC REVIEW | SEPTEMBER 2025 T H E D R I SK I L L G R I L L - N E O N B L A D E SIG N - P L AC E M E N T / I N STA L L DRISKILL HOTEL | RESTAURANT SIGNAGE | ARC & HLC REVIEW | SEPTEMBER 2025 THE DRISKIL L GRIL L - NEON BL ADE SIGN - HISTOR ICAL PRE CEDEN T S DRISKILL HOTEL | RESTAURANT SIGNAGE | ARC & HLC REVIEW | SEPTEMBER 2025 T HA NK YOU. DRISKILL HOTEL | RESTAURANT SIGNAGE | ARC & HLC REVIEW | SEPTEMBER 2025

Scraped at: Sept. 23, 2025, 4:33 p.m.

06.0 - 1504 E 11th St original pdf

Thumbnail of the first page of the PDF
Page 1 of 4 pages

HISTORIC LANDMARK COMMISSION APPLICATION FOR A CERTIFICATE OF APPROPRIATENESS OCTOBER 1, 2025 HR-2025-099714 ETHEL PEARL’S BEAUTY SALON 1504 EAST 11TH STREET 6.0 – 1 PROPOSAL Repair and rehabilitate a landmark for use as a residence. PROJECT SPECIFICATIONS 1) Remove vinyl siding and replace with wood lapped siding 2) Replace non-original front door and windows 3) Infill several windows for conversion of use to a residence ARCHITECTURE The building is a single-story, rectangular shaped structure with a moderately pitched hipped roof. There are numerous doors and hung windows present at the East 11th and Angelina Street facades. The structure sits on piers set slightly above grade, and one corner features a brick skirting that is showing signs of sagging. At the rear of the house is a ca. 1962 addition. The walls are clad in non-historic vinyl siding installed around 2007, and the property became a landmark in 2013. DESIGN STANDARDS The City of Austin’s Historic Design Standards (March 2021) are based on the Secretary of the Interior’s Standards for Rehabilitation and are used to evaluate projects at historic landmarks. The following standards apply to the proposed project: Repair and alterations 1. General standards Material that is proposed to be removed all appears to be non-original, mostly from the 2007 intervention. Generally, replacement materials differ from those that are present, but this is due to existing materials that would now be determined as inappropriate if proposed at a City of Austin landmark. 4. Exterior walls and trim Vinyl siding, which was installed around 2007, is proposed to be replaced with wood siding. This new material should be vetted for appropriate size and orientation but is generally appropriate as a material for building stock in this area of East Austin. Removal of the brick skirting at the southwest corner is not recommended. 5. Windows, doors, and screens Some existing windows are non-original and have been covered with solar screens in the 2007 intervention. Proposed windows are fixed in place. It is recommended that the installation of operable or fixtures that appear operable be explored as an alternative at primary facades. In areas that may still have their original windows, such as the east half of the south facade, retaining these fixtures will be required. 6. Porches A wider stairway with landing is proposed at the main entry. No addition to the front stoop is proposed, but a handrail is to be added …

Scraped at: Sept. 23, 2025, 4:34 p.m.

06.1 - 1504 E 11th St - Drawings & Photos original pdf

Thumbnail of the first page of the PDF
Page 1 of 10 pages

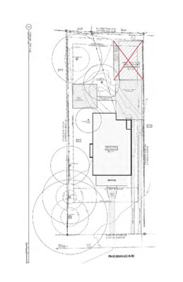
S 67D02'19" E 47.00' One Story Brick and Frame Residence (1,377 sf) PP ' 0 0 . 0 6 W ' " 0 0 7 3 D 3 2 S Existing Conc. Drive (92 sf) E Elec. Service Gas Conc. Porch (63 sf) Conc. Walk (26 sf) Site Plan 1/8"=1'-0" (1/16" = 1'-0" for 11"x17") E x i s t i n g W o o d F e n c e ' 0 0 . 0 6 E ' " 0 0 7 3 D 3 2 N AC d e m u s s A h t r o N Conc. Walk (65 sf) N 67D02'19" W 47.00' Existing 4' Sidewalk 11th STREET (60' R.O.W.) T E E R T S A N L E G N A I ) . . W O R . ' 0 5 ( SHEET INDEX A-1.0 SITE PLAN / FLOOR PLAN PROJECT INFORMATION LEGEND Address: 1504 E 11th Street Austin, Texas. 78702 Legal: Zoned- SF-3-H-NP Being a portion of lots 5 & 6. Rectors Subdivision Vol. 1; Page 45 of the Travis County Deed Records DESCRIPTION OF PROPOSED WORK Extensive interior remodel while maintaining the historic character of 11th street elevation. 2 bedroom and 2 bath proposed. EXISTING LOT SIZE Lot = 2,820 s.f. Property Line Fencing Setback Public Util. Easement Electrical Service New Addition Existing Structure PP FH Power Pole Fire Hydrant a. Smoke Alarms: Provide Smoke Alarms - hard wired, interconnected, battery backup, at each sleeping room and immediate common area outside of sleeping rooms. If applicable, on each additional story including basements and habitable attics. In accordance with 2021 IRC Sec R314. X E b. Carbon Monoxide Alarms: Provide Carbon Monoxide Alarm - hard wired with battery backup, installed outside of each separate sleeping area in the immediate vicinity of the bedrooms in dwelling units within which fuel-fired appliances are installed and/or have an attached garage. In accordance with 2021 IRC sec R315" l k a w e d S i i . t s x E -6" WH AC Existing Conc. Drive (92 sf) Elec. Service Gas Conc. Porch (63 sf) Conc. Walk (26 sf) N G I S E D / R E M M A H p i h s r e n t r a p n o i t c u r t s n o c & e r u t c …

Scraped at: Sept. 23, 2025, 4:34 p.m.

07.0 - 1403 S Congress Ave - Bergen-Todd original pdf

Thumbnail of the first page of the PDF
Page 1 of 3 pages

HISTORIC LANDMARK COMMISSION APPLICATION FOR A CERTIFICATE OF APPROPRIATENESS OCTOBER 1, 2025 HR-2025-113074 BERGEN-TODD HOUSE 1403 SOUTH CONGRESS AVENUE 7 – 1 PROPOSAL Construct stone patios, a rear-side addition, and a new restroom facility. PROJECT SPECIFICATIONS 1) Add a one-and-one-half-story solarium to the north elevation of the existing building. The proposed addition is comprised of steel and glass, with a curved roofline. 2) Add a painted steel awning, brick stairs, and landing to the north elevation of the building. 3) Construct three new stone patios with seating and trellis coverings on north, east and southern portions of the lot, not attached to the historic structure. Patios are enclosed by new fencing and include drink rails and bar appurtenances. 4) Construct a new accessible restroom building, shielded by a freestanding trellis, on the southern portion of the lot, not attached to the historic structure and set back from the front of the building. 5) Construct a new accessory building at the rear southern portion of the lot, behind the restroom building, sheltered by a wooden trellis. 6) Remove existing front door, then repair and replace it to swing outward. DESIGN STANDARDS The City of Austin’s Historic Design Standards (March 2021) are based on the Secretary of the Interior’s Standards for Rehabilitation and are used to evaluate projects at historic landmarks. The following standards apply to the proposed project: Repair and alterations 1. General standards Some historic fabric will be removed to connect the new addition to the north elevation of the house. Most historic fabric will be retained and repaired, and materials removed at the north elevation will be salvaged and installed inside the house. Residential additions 1. Location The proposed solarium is set back from the front of the house approximately 25’. The awning and drink rail at the new north-elevation covered porch, though not set back from the front wall of the house, are both visually low-impact and do not appear to obscure the historic building or draw attention away from its design. 2. Scale, massing, and height The proposed solarium and porch appear compatible in scale, massing, and height. 3. Design and style The proposed solarium is mostly transparent, with simple painted-steel structural elements. Its lower height and simple curved roof differentiate it from the historic building. 4. Roofs See 3. 5. Exterior walls See 3. 6. Windows, screens, and doors See 3. 7. Porches and decks The …

Scraped at: Sept. 23, 2025, 4:34 p.m.

07.1 - 1403 S Congress Ave - Drawings original pdf

Thumbnail of the first page of the PDF
Page 1 of 28 pages

1 HISTORIC PHOTOS BERGEN-TODD HOUSE 09.04.25 2 FEBRUARY 1971 1972 PHOTOS PROVIDED BY AUSTIN HISTORIC CENTER 1976 1976 DECEMBER 1985 ORIGINAL DRAFTING PLAN OF STAINED GLASS WINDOW DATED ON 790210 - (1979) - PROVIDED BY HOME OWNER CURRENT PHOTOS BERGEN-TODD HOUSE 09.04.25 7 WEST NORTH SOUTH EAST BERGEN-TODD HOUSE 09.04.25 8 GOOGLE STREET 2008 GOOGLE STREET 2009 NOTE: EVIDENCE OF CHANGES TO SIDEWALK STAIR IN 2009 BERGEN-TODD HOUSE 09.04.25 9 GOGOGOGOGOGOGOGOGOGOGOGOGOGOGOGOGOGOGOGOGOGOGOGOGOGOGOGOGOGOOGOGOGOGOGOGOGOGOGOGLELELELELELELELELELELELELELELELELELELELELELELE S S S STRTRTRTRTRTRTRTRTRTRTRTRTRTRTRTRTRTRTRTRTRTRTRTREEEEEEEEEEEEEEEEEEEEEEEEEEEEEEEEEEEEEEEEEEEEEEEEEEEEEEEEEEEEEEEEEEEEEEEEEEEEEEEEEEEEEEEEEET T T T T T T T T T T T T T T T T T T T T 202020202020202020202020202020202020202020202020202020202020202020080808080808080808080808080808080808080808080808080808080808080808 GOOGLE STREET 2008 CURRENT GOOGLE STREET VIEW - 2025 BERGEN-TODD HOUSE 09.04.25 10 SITE PLANS, PLANS AND ELEVATIONS BERGEN-TODD HOUSE 09.04.25 11 #(cid:28)(cid:22)(cid:21)(cid:19)(cid:17)(cid:19)(cid:1)$(cid:1)(cid:29)#(cid:30)(cid:30)#(cid:19)(cid:1)(cid:12) (cid:20)(cid:19)(cid:27)(cid:23)#(cid:30)(cid:1)(cid:24)(cid:27)(cid:22)(cid:20)(cid:19) (cid:29)(cid:22)(cid:22)(cid:18)(cid:1)(cid:24) (cid:19)(cid:18)(cid:1) (cid:3)((cid:13)(cid:1)(cid:14)(cid:19)(cid:26)(cid:23)(cid:17) (cid:1)(cid:2)(cid:3)(cid:4)(cid:1) (cid:1)(cid:2)(cid:3)(cid:5)(cid:1) (cid:1)(cid:2)(cid:3)(cid:5)(cid:1) (cid:19)&#(cid:24)(cid:27)#(cid:17)(cid:21)(cid:1)(cid:25)(cid:19)(cid:17)(cid:26)(cid:19) (cid:19)&#(cid:24)(cid:27)#(cid:17)(cid:21)(cid:1)(cid:25)(cid:19)(cid:17)(cid:26)(cid:19) (cid:26)(cid:22)(cid:17)(cid:26)(cid:20)(cid:19)(cid:27)(cid:19)(cid:1)(cid:29)(cid:23)(cid:30)(cid:30) (cid:1)(cid:2)(cid:3)(cid:5)(cid:1) (cid:19)&#(cid:24)(cid:27)#(cid:17)(cid:21)(cid:1)(cid:25)(cid:19)(cid:17)(cid:26)(cid:19) (cid:13) (cid:3) (cid:31) (cid:10) (cid:1) (cid:2) (cid:1) (cid:12) (cid:1) (cid:11) ( (cid:19)&#(cid:24)(cid:27)#(cid:17)(cid:21)(cid:1) (cid:29)(cid:22)(cid:22)(cid:18)(cid:1)(cid:24) (cid:19)(cid:18)(cid:1) (cid:22)(cid:17)(cid:1)(cid:18)#(cid:20)(cid:27) # (cid:19) (cid:17) (cid:30) (cid:1) " (cid:27) (cid:20) (cid:19) (cid:14) (cid:22) (cid:20) (cid:14) (cid:26)(cid:23)(cid:14)(cid:14)(cid:19)(cid:18)(cid:1)(cid:29)(cid:19)(cid:30)(cid:30) (cid:3)(cid:2)(cid:13)(cid:1)(cid:30)#!(cid:19)(cid:1)(cid:22)(cid:23)’ & # (cid:24) (cid:19) (cid:18) (cid:1) (cid:27) (cid:23) (cid:19) (cid:19) (cid:22) (cid:17) (cid:14) (cid:19) (cid:30) (cid:19) (cid:20) # (cid:26) (cid:27) (cid:26) (cid:19) (cid:30) (cid:18) (cid:1) (cid:19) (cid:23) (cid:19) (cid:20) (cid:19) (cid:27) # (cid:17) (cid:21) (cid:1) (cid:22) ! (cid:20) (cid:19) ! (cid:21) (cid:1) (cid:22) (cid:27) # (cid:17) & # (cid:24) (cid:19) (cid:13) (cid:3) (cid:31) (cid:10) (cid:1) (cid:9) (cid:10) (cid:19)&#(cid:24)(cid:27)#(cid:17)(cid:21)(cid:1)(cid:26)(cid:22)(cid:17)(cid:26)(cid:20)(cid:19)(cid:27)(cid:19)(cid:1)(cid:24)#(cid:18)(cid:19)(cid:29)(cid:23)(cid:30)’ (cid:19)&#(cid:24)(cid:27)#(cid:17)(cid:21)(cid:1)%(cid:20)#(cid:26)’(cid:1)(cid:14)(cid:23)!(cid:19)(cid:20)(cid:24) (cid:21)(cid:23)(cid:24) (cid:19)(cid:15)(cid:28)(cid:15) (cid:6) (cid:1) (cid:3) (cid:1)(cid:2) (cid:14)(cid:15)(cid:14)(cid:15) (cid:19)&#(cid:24)(cid:27)#(cid:17)(cid:21)(cid:1) (cid:29)(cid:22)(cid:22)(cid:18)(cid:1)(cid:24) (cid:19)(cid:18)(cid:1) (cid:22)(cid:17)(cid:1)(cid:18)#(cid:20)(cid:27) " (cid:19) (cid:30) (cid:30) (cid:23) (cid:1) (cid:11) (cid:4) (cid:10) (cid:1)(cid:2)(cid:3)(cid:7)(cid:1) (cid:14)(cid:20)(cid:22)(cid:14)(cid:19)(cid:20)(cid:27)"(cid:1)(cid:30)#(cid:17)(cid:19) (cid:9) (cid:1) (cid:8) (cid:1)(cid:2) (cid:14)(cid:20)(cid:22)(cid:14)(cid:19)(cid:20)(cid:27)"(cid:1)(cid:30)#(cid:17)(cid:19) (cid:19)&#(cid:24)(cid:27)#(cid:17)(cid:21)(cid:1) (cid:29)(cid:22)(cid:22)(cid:18)(cid:1)(cid:24) (cid:19)(cid:18)(cid:1) (cid:22)(cid:17)(cid:1)(cid:18)#(cid:20)(cid:27) (cid:19)&#(cid:24)(cid:27)#(cid:17)(cid:21)(cid:1)(cid:20)(cid:19)(cid:24)#(cid:18)(cid:19)(cid:17)(cid:26)(cid:19) (cid:19)&#(cid:24)(cid:27)#(cid:17)(cid:21)(cid:1)(cid:26)(cid:22)(cid:17)(cid:26)(cid:20)(cid:19)(cid:27)(cid:19)(cid:1)(cid:24)#(cid:18)(cid:19)(cid:29)(cid:23)(cid:30)’ (cid:19)&#(cid:24)(cid:27)#(cid:17)(cid:21)(cid:1)%(cid:20)#(cid:26)’(cid:1)(cid:14)(cid:23)!(cid:19)(cid:20)(cid:24) (cid:1)(cid:2)(cid:8)(cid:10)(cid:1) (cid:1)(cid:2)(cid:3)(cid:2)(cid:1) (cid:1)(cid:2)(cid:3)(cid:4)(cid:1) (cid:5) (cid:1) (cid:3) (cid:1)(cid:2) (cid:1) (cid:2) (cid:3) (cid:5) (cid:1) (cid:1)(cid:2)(cid:3)(cid:5)(cid:1) (cid:14)(cid:20)(cid:22)(cid:14)(cid:19)(cid:20)(cid:27)"(cid:1)(cid:30)#(cid:17)(cid:19) (cid:3)(cid:9)(cid:13)(cid:1)(cid:14)(cid:19)(cid:26)(cid:23)(cid:17) (cid:1)(cid:2)(cid:3)(cid:6)(cid:1) (cid:3)((cid:13)(cid:1)(cid:14)(cid:19)(cid:26)(cid:23)(cid:17) (cid:19) (cid:17) (cid:30) (cid:1) (cid:1) # # (cid:21) (cid:17) (cid:18) (cid:30) (cid:16) % # (cid:7) (cid:1) (cid:3) (cid:1) (cid:2) (cid:16) (cid:17) (cid:18) (cid:19) (cid:20) (cid:1) (cid:21) (cid:20) (cid:22) (cid:16) (cid:17) (cid:18) (cid:1) (cid:21) (cid:23) (cid:24) (cid:14)(cid:20)(cid:22)(cid:14)(cid:19)(cid:20)(cid:27)"(cid:1)(cid:30)#(cid:17)(cid:19) (cid:1)(cid:2) (cid:8) (cid:9)(cid:1) (cid:19)&#(cid:24)(cid:27)#(cid:17)(cid:21)(cid:1)(cid:26)(cid:22)(cid:17)(cid:26)(cid:20)(cid:19)(cid:27)(cid:19)(cid:1)(cid:24)#(cid:18)(cid:19)(cid:29)(cid:23)(cid:30)’ (cid:20) (cid:19) (cid:27) (cid:17) (cid:23) (cid:30) (cid:14) (cid:19) (cid:17) (cid:30) (cid:1) (cid:1) # (cid:1) (cid:2) (cid:8) (cid:10) (cid:1) # (cid:21) (cid:17) (cid:18) (cid:30) (cid:16) % # (cid:1)(cid:2) (cid:3) (cid:2)(cid:1) (cid:1)(cid:2) (cid:3) (cid:4)(cid:1) (cid:19)&#(cid:24)(cid:27)#(cid:17)(cid:21)(cid:1)(cid:24)(cid:27)(cid:22)(cid:17)(cid:19)(cid:1) (cid:20)(cid:19)(cid:27)(cid:23)#(cid:17)#(cid:17)(cid:21)(cid:1)(cid:29)(cid:23)(cid:30)(cid:30) (cid:29)(cid:23)(cid:27)(cid:19)(cid:20)(cid:1)(cid:28)(cid:19)(cid:27)(cid:19)(cid:20) (cid:29)(cid:23)(cid:27)(cid:19)(cid:20)(cid:1)(cid:28)(cid:15) (cid:15) (cid:1) (cid:19) (cid:16) (cid:17) (cid:19) ! (cid:23) (cid:24) (cid:24) (cid:19) (cid:20) (cid:21) (cid:17) (cid:22) (cid:26) (cid:1) (cid:27) (cid:16) (cid:22) (cid:24) (cid:19)&#(cid:24)(cid:27)#(cid:17)(cid:21)(cid:1)(cid:24)(cid:27)(cid:23)#(cid:20) (cid:1) (cid:2) (cid:3) (cid:5) (cid:1) (cid:19)(cid:30)(cid:19)(cid:26)(cid:27)(cid:20)#(cid:26)(cid:1)(cid:28)(cid:15) (cid:15) # (cid:1) ’ (cid:30) (cid:23) (cid:29) (cid:19) (cid:18) (cid:24) (cid:19) (cid:27) (cid:19) (cid:20) (cid:26) (cid:17) (cid:22) (cid:26) # (cid:1) ’ (cid:30) (cid:23) (cid:29) (cid:19) …

Scraped at: Sept. 23, 2025, 4:34 p.m.

08.0 - 706 Highland Ave original pdf

Thumbnail of the first page of the PDF
Page 1 of 4 pages

HISTORIC LANDMARK COMMISSION APPLICATION FOR A CERTIFICATE OF APPROPRIATENESS OCTOBER 1, 2025 HR-2025-112563; PR-2025-099859 SMOOT-TERRACE PARK HISTORIC DISTRICT 706 HIGHLAND AVENUE 8.0 – 1 PROPOSAL Construct a second-story addition and small side additions at first floor. PROJECT SPECIFICATIONS 1) Construct three minimal additions at side elevations at first floor. 2) Construct an addition in front of the existing second-floor addition, with newest construction facing the street. 3) Repair front porch and columns, restore windows and doors. ARCHITECTURE This two-story Craftsman-style bungalow features a wide front porch with ample gable roof above. The house is set several feet above the street and is elevated further by as enclosed crawlspace. The second floor, which is set back at least 40 feet from the front of the house, appears to be a later addition. Though several exterior materials, such as the metal roof and stuccoed crawlspace, appear to be recently replaced, the building as a whole has excellent integrity and is well maintained. DESIGN STANDARDS The Smoot-Terrace Park Design Standards are used to evaluate projects within the historic district. The following standards apply to the proposed project: Additions to Contributing Buildings 1. Front Exterior Walls Major alterations proposed at the street-facing façade of the second floor are well beyond the first 15 feet of the front of the house as recommended by the district design standards. Furthermore, the addition at this level will project forward from a non-historic addition, so no original materials will be demolished. The small additions at the first floor have been kept at lease 15 feet from the front wall of the house, located at the rear of the front porch. Materials proposed at all additions are compatible. 2. Doors and Door Openings Restoration of existing doors is proposed, with no replacement required at this time. 3. Windows and Window Openings Restoration of existing windows is proposed, with no replacement required at this time. 4. Porches No work is proposed at the front porch in this application. 5. Roofs and Roof Features Roofs at the new additions will match the slope and size of the existing. Metal roof material will match what is present. Summary The project meets the applicable standards. STAFF RECOMMENDATION Approve the application. LOCATION MAP 8.0 – 2 PROPERTY INFORMATION Photos 8.0 – 3 Front elevation, application, 2025 8.0 – 4 Front and side showing non-original second floor addition, application, 2025

Scraped at: Sept. 23, 2025, 4:35 p.m.

08.1 - 706 Highland Ave - Photos & Drawings original pdf

Thumbnail of the first page of the PDF
Page 1 of 22 pages

Front Elevation (East) 706 Highland Ave Smoot/Terrace Park Local Historic District Right Elevation (North) 706 Highland Ave Smoot/Terrace Park Local Historic District Right Elevation at Rear (North) Rear Elevation (West) 706 Highland Ave Smoot/Terrace Park Local Historic District Left Elevation (South) 706 Highland Ave Smoot/Terrace Park Local Historic District Left Elevation at Front (South) 706 Highland Ave Smoot/Terrace Park Local Historic District (cid:26)(cid:19)(cid:25)(cid:3)(cid:43)(cid:44)(cid:42)(cid:43)(cid:47)(cid:36)(cid:49)(cid:39)(cid:3)(cid:36)(cid:57)(cid:40) (cid:36)(cid:37)(cid:37)(cid:53)(cid:40)(cid:57)(cid:44)(cid:36)(cid:55)(cid:44)(cid:50)(cid:49)(cid:54) (cid:42)(cid:40)(cid:49)(cid:40)(cid:53)(cid:36)(cid:47)(cid:3)(cid:49)(cid:50)(cid:55)(cid:40)(cid:54) (cid:49)(cid:82)(cid:85)(cid:87)(cid:75) (cid:49)(cid:82)(cid:87)(cid:3)(cid:36)(cid:83)(cid:83)(cid:79)(cid:76)(cid:70)(cid:68)(cid:69)(cid:79)(cid:72) (cid:49)(cid:82)(cid:87)(cid:3)(cid:76)(cid:81)(cid:3)(cid:38)(cid:82)(cid:81)(cid:87)(cid:85)(cid:68)(cid:70)(cid:87) (cid:49)(cid:88)(cid:80)(cid:69)(cid:72)(cid:85) (cid:49)(cid:82)(cid:87)(cid:3)(cid:87)(cid:82)(cid:3)(cid:54)(cid:70)(cid:68)(cid:79)(cid:72) (cid:50)(cid:81)(cid:3)(cid:38)(cid:72)(cid:81)(cid:87)(cid:72)(cid:85) (cid:50)(cid:89)(cid:72)(cid:85)(cid:75)(cid:72)(cid:68)(cid:71) (cid:51)(cid:82)(cid:70)(cid:78)(cid:72)(cid:87) (cid:51)(cid:79)(cid:68)(cid:87)(cid:72)(cid:79)(cid:76)(cid:81)(cid:72) (cid:51)(cid:68)(cid:76)(cid:85) (cid:51)(cid:68)(cid:76)(cid:81)(cid:87)(cid:72)(cid:71) (cid:53)(cid:72)(cid:73)(cid:85)(cid:76)(cid:74)(cid:72)(cid:85)(cid:68)(cid:87)(cid:82)(cid:85) (cid:53)(cid:72)(cid:73)(cid:79)(cid:72)(cid:70)(cid:87)(cid:72)(cid:71)(cid:3)(cid:38)(cid:72)(cid:76)(cid:79)(cid:76)(cid:81)(cid:74)(cid:3)(cid:51)(cid:79)(cid:68)(cid:81) (cid:53)(cid:72)(cid:73)(cid:72)(cid:85)(cid:72)(cid:81)(cid:70)(cid:72) (cid:49) (cid:49)(cid:36) (cid:49)(cid:44)(cid:38) (cid:49)(cid:50) (cid:49)(cid:55)(cid:54) (cid:50)(cid:38) (cid:50)(cid:43) (cid:51)(cid:46)(cid:55) (cid:51)(cid:47) (cid:51)(cid:53) (cid:51)(cid:55)(cid:39) (cid:53) (cid:53)(cid:38)(cid:51) (cid:53)(cid:40)(cid:41) (cid:53)(cid:40)(cid:52)(cid:10)(cid:39) (cid:53)(cid:72)(cid:84)(cid:88)(cid:76)(cid:85)(cid:72)(cid:71) (cid:53)(cid:72)(cid:89)(cid:76)(cid:86)(cid:76)(cid:82)(cid:81) (cid:53)(cid:40)(cid:57) (cid:53)(cid:82)(cid:82)(cid:80) (cid:53)(cid:48) (cid:54)(cid:82)(cid:88)(cid:87)(cid:75) (cid:54) (cid:54)(cid:68)(cid:79)(cid:89)(cid:68)(cid:74)(cid:72) (cid:54)(cid:36)(cid:47)(cid:57) (cid:54)(cid:70)(cid:75)(cid:72)(cid:71)(cid:88)(cid:79)(cid:72)(cid:71) (cid:54)(cid:38)(cid:43)(cid:10)(cid:39) (cid:54)(cid:72)(cid:83)(cid:68)(cid:85)(cid:68)(cid:87)(cid:72) (cid:54)(cid:40)(cid:51) (cid:54)(cid:84)(cid:88)(cid:68)(cid:85)(cid:72)(cid:3)(cid:41)(cid:72)(cid:72)(cid:87) (cid:54)(cid:41) (cid:54)(cid:76)(cid:80)(cid:76)(cid:79)(cid:68)(cid:85) (cid:54)(cid:44)(cid:48) (cid:54)(cid:76)(cid:81)(cid:78) (cid:54)(cid:46) (cid:54)(cid:84)(cid:88)(cid:68)(cid:85)(cid:72) (cid:54)(cid:52) (cid:54)(cid:87)(cid:82)(cid:85)(cid:68)(cid:74)(cid:72) (cid:54)(cid:55)(cid:50)(cid:3) (cid:54)(cid:55)(cid:39) (cid:54)(cid:87)(cid:68)(cid:81)(cid:71)(cid:68)(cid:85)(cid:71) (cid:54)(cid:55)(cid:53)(cid:56)(cid:38)(cid:55) (cid:54)(cid:87)(cid:85)(cid:88)(cid:70)(cid:87)(cid:88)(cid:85)(cid:68)(cid:79) (cid:54)(cid:90)(cid:76)(cid:87)(cid:70)(cid:75) (cid:54)(cid:58) (cid:54)(cid:92)(cid:80)(cid:80)(cid:72)(cid:87)(cid:85)(cid:76)(cid:70)(cid:68)(cid:79) (cid:54)(cid:60)(cid:48) (cid:55)(cid:82)(cid:3)(cid:37)(cid:72)(cid:3)(cid:39)(cid:72)(cid:70)(cid:76)(cid:71)(cid:72)(cid:71) (cid:55)(cid:37)(cid:39) (cid:55)(cid:82)(cid:81)(cid:74)(cid:88)(cid:72)(cid:3)(cid:9)(cid:3)(cid:42)(cid:85)(cid:82)(cid:82)(cid:89)(cid:72) (cid:55)(cid:9)(cid:42) (cid:55)(cid:72)(cid:80)(cid:83)(cid:82)(cid:85)(cid:68)(cid:85)(cid:92) (cid:55)(cid:40)(cid:48)(cid:51) (cid:55)(cid:50)(cid:55) (cid:55)(cid:82)(cid:87)(cid:68)(cid:79) (cid:55)(cid:50)(cid:58) (cid:55)(cid:82)(cid:83)(cid:3)(cid:82)(cid:73)(cid:3)(cid:58)(cid:68)(cid:79)(cid:79) (cid:55)(cid:18)(cid:53) (cid:55)(cid:60)(cid:51) (cid:56)(cid:38) (cid:56)(cid:49)(cid:50) (cid:57)(cid:40)(cid:53)(cid:55) (cid:57)(cid:44)(cid:41) (cid:58) (cid:58)(cid:18) (cid:58)(cid:39) (cid:58)(cid:18)(cid:39) (cid:58)(cid:39)(cid:58) (cid:58)(cid:76)(cid:81)(cid:71)(cid:82)(cid:90) (cid:58)(cid:43) (cid:58)(cid:48) (cid:58)(cid:18)(cid:50) (cid:58)(cid:51) (cid:55)(cid:85)(cid:68)(cid:86)(cid:75)(cid:18)(cid:3)(cid:53)(cid:72)(cid:70)(cid:92)(cid:70)(cid:79)(cid:76)(cid:81)(cid:74) (cid:55)(cid:92)(cid:83)(cid:76)(cid:70)(cid:68)(cid:79) (cid:56)(cid:81)(cid:71)(cid:72)(cid:85)(cid:3)(cid:38)(cid:82)(cid:88)(cid:81)(cid:87)(cid:72)(cid:85) (cid:56)(cid:81)(cid:79)(cid:72)(cid:86)(cid:86)(cid:3)(cid:49)(cid:82)(cid:87)(cid:72)(cid:71)(cid:3)(cid:50)(cid:87)(cid:75)(cid:72)(cid:85)(cid:90)(cid:76)(cid:86)(cid:72) (cid:57)(cid:72)(cid:85)(cid:87)(cid:76)(cid:70)(cid:68)(cid:79) (cid:57)(cid:72)(cid:85)(cid:76)(cid:73)(cid:92)(cid:3)(cid:76)(cid:81)(cid:3)(cid:41)(cid:76)(cid:72)(cid:79)(cid:71) (cid:58)(cid:72)(cid:86)(cid:87) (cid:58)(cid:76)(cid:87)(cid:75) (cid:58)(cid:82)(cid:82)(cid:71) (cid:58)(cid:68)(cid:86)(cid:75)(cid:72)(cid:85)(cid:18)(cid:3)(cid:39)(cid:85)(cid:92)(cid:72)(cid:85) (cid:58)(cid:68)(cid:87)(cid:72)(cid:85)(cid:3)(cid:43)(cid:72)(cid:68)(cid:87)(cid:72)(cid:85) (cid:58)(cid:68)(cid:87)(cid:72)(cid:85)(cid:3)(cid:48)(cid:72)(cid:87)(cid:72)(cid:85) (cid:58)(cid:76)(cid:87)(cid:75)(cid:82)(cid:88)(cid:87) (cid:58)(cid:68)(cid:87)(cid:72)(cid:85)(cid:83)(cid:85)(cid:82)(cid:82)(cid:73)(cid:76)(cid:81)(cid:74) (cid:20)(cid:17) (cid:21)(cid:17) (cid:22)(cid:17) (cid:23)(cid:17) (cid:24)(cid:17) (cid:25)(cid:17) (cid:26)(cid:17) (cid:27)(cid:17) (cid:28)(cid:17) (cid:20)(cid:19)(cid:17) (cid:20)(cid:20)(cid:17) (cid:36)(cid:47)(cid:47)(cid:3)(cid:58)(cid:50)(cid:53)(cid:46)(cid:3)(cid:55)(cid:50)(cid:3)(cid:37)(cid:40)(cid:3)(cid:44)(cid:49)(cid:3)(cid:36)(cid:38)(cid:38)(cid:50)(cid:53)(cid:39)(cid:36)(cid:49)(cid:38)(cid:40)(cid:3)(cid:58)(cid:44)(cid:55)(cid:43)(cid:3)(cid:36)(cid:47)(cid:47)(cid:3)(cid:36)(cid:51)(cid:51)(cid:47)(cid:44)(cid:38)(cid:36)(cid:37)(cid:47)(cid:40)(cid:3) (cid:49)(cid:36)(cid:55)(cid:44)(cid:50)(cid:49)(cid:36)(cid:47)(cid:15)(cid:3)(cid:54)(cid:55)(cid:36)(cid:55)(cid:40)(cid:15)(cid:3)(cid:36)(cid:49)(cid:39)(cid:3)(cid:47)(cid:50)(cid:38)(cid:36)(cid:47)(cid:3)(cid:38)(cid:50)(cid:39)(cid:40)(cid:54)(cid:17) (cid:38)(cid:50)(cid:49)(cid:55)(cid:53)(cid:36)(cid:38)(cid:55)(cid:50)(cid:53)(cid:3)(cid:54)(cid:43)(cid:36)(cid:47)(cid:47)(cid:3)(cid:57)(cid:40)(cid:53)(cid:44)(cid:41)(cid:60)(cid:3)(cid:36)(cid:47)(cid:47)(cid:3)(cid:38)(cid:50)(cid:49)(cid:39)(cid:44)(cid:55)(cid:44)(cid:50)(cid:49)(cid:54)(cid:3)(cid:36)(cid:49)(cid:39)(cid:3) (cid:39)(cid:44)(cid:48)(cid:40)(cid:49)(cid:54)(cid:44)(cid:50)(cid:49)(cid:54)(cid:3)(cid:36)(cid:55)(cid:3)(cid:55)(cid:43)(cid:40)(cid:3)(cid:45)(cid:50)(cid:37)(cid:3)(cid:54)(cid:44)(cid:55)(cid:40)(cid:3)(cid:37)(cid:40)(cid:41)(cid:50)(cid:53)(cid:40)(cid:3)(cid:38)(cid:50)(cid:48)(cid:48)(cid:40)(cid:49)(cid:38)(cid:44)(cid:49)(cid:42)(cid:3)(cid:58)(cid:50)(cid:53)(cid:46)(cid:3) (cid:36)(cid:49)(cid:39)(cid:3)(cid:49)(cid:50)(cid:55)(cid:44)(cid:41)(cid:60)(cid:3)(cid:36)(cid:53)(cid:38)(cid:43)(cid:44)(cid:55)(cid:40)(cid:38)(cid:55)(cid:3)(cid:50)(cid:41)(cid:3)(cid:36)(cid:49)(cid:60)(cid:3)(cid:39)(cid:44)(cid:54)(cid:38)(cid:53)(cid:40)(cid:51)(cid:36)(cid:49)(cid:38)(cid:44)(cid:40)(cid:54)(cid:17) (cid:38)(cid:50)(cid:49)(cid:55)(cid:53)(cid:36)(cid:38)(cid:55)(cid:50)(cid:53)(cid:3)(cid:36)(cid:49)(cid:39)(cid:18)(cid:3)(cid:50)(cid:53)(cid:3)(cid:54)(cid:56)(cid:37)(cid:16)(cid:38)(cid:50)(cid:49)(cid:55)(cid:53)(cid:36)(cid:38)(cid:55)(cid:50)(cid:53)(cid:54)(cid:3)(cid:54)(cid:43)(cid:36)(cid:47)(cid:47)(cid:3)(cid:57)(cid:40)(cid:53)(cid:44)(cid:41)(cid:60)(cid:3) (cid:51)(cid:47)(cid:36)(cid:49)(cid:3)(cid:39)(cid:44)(cid:48)(cid:40)(cid:49)(cid:54)(cid:44)(cid:50)(cid:49)(cid:54)(cid:3)(cid:36)(cid:49)(cid:39)(cid:3)(cid:48)(cid:40)(cid:36)(cid:54)(cid:56)(cid:53)(cid:40)(cid:48)(cid:40)(cid:49)(cid:55)(cid:54)(cid:15)(cid:3)(cid:47)(cid:50)(cid:38)(cid:36)(cid:55)(cid:44)(cid:50)(cid:49)(cid:54)(cid:3)(cid:50)(cid:41)(cid:3)(cid:47)(cid:50)(cid:55)(cid:3) (cid:47)(cid:44)(cid:49)(cid:40)(cid:54)(cid:15)(cid:3)(cid:40)(cid:36)(cid:54)(cid:40)(cid:48)(cid:40)(cid:49)(cid:55)(cid:54)(cid:15)(cid:3)(cid:37)(cid:56)(cid:44)(cid:47)(cid:39)(cid:44)(cid:49)(cid:42)(cid:3)(cid:54)(cid:40)(cid:55)(cid:37)(cid:36)(cid:38)(cid:46)(cid:3)(cid:47)(cid:44)(cid:49)(cid:40)(cid:54)(cid:15)(cid:3)(cid:54)(cid:44)(cid:39)(cid:40)(cid:3)(cid:36)(cid:49)(cid:39)(cid:3)(cid:53)(cid:40)(cid:36)(cid:53)(cid:3) (cid:60)(cid:36)(cid:53)(cid:39)(cid:3)(cid:53)(cid:40)(cid:52)(cid:56)(cid:44)(cid:53)(cid:40)(cid:48)(cid:40)(cid:49)(cid:55)(cid:54)(cid:3)(cid:36)(cid:49)(cid:39)(cid:3)(cid:54)(cid:43)(cid:36)(cid:47)(cid:47)(cid:3)(cid:37)(cid:40)(cid:3)(cid:53)(cid:40)(cid:54)(cid:51)(cid:50)(cid:49)(cid:54)(cid:44)(cid:37)(cid:47)(cid:40)(cid:3)(cid:41)(cid:50)(cid:53)(cid:3)(cid:55)(cid:43)(cid:40)(cid:3) (cid:38)(cid:50)(cid:53)(cid:53)(cid:40)(cid:38)(cid:55)(cid:3)(cid:36)(cid:49)(cid:39)(cid:3)(cid:36)(cid:51)(cid:51)(cid:53)(cid:50)(cid:51)(cid:53)(cid:44)(cid:36)(cid:55)(cid:40)(cid:3)(cid:53)(cid:40)(cid:47)(cid:36)(cid:55)(cid:44)(cid:50)(cid:49)(cid:54)(cid:43)(cid:44)(cid:51)(cid:3)(cid:50)(cid:41)(cid:3)(cid:55)(cid:43)(cid:50)(cid:54)(cid:40)(cid:3)(cid:47)(cid:44)(cid:49)(cid:40)(cid:3) (cid:55)(cid:50)(cid:3)(cid:58)(cid:43)(cid:36)(cid:55)(cid:3)(cid:58)(cid:44)(cid:47)(cid:47)(cid:3)(cid:37)(cid:40)(cid:3)(cid:38)(cid:50)(cid:49)(cid:54)(cid:55)(cid:53)(cid:56)(cid:38)(cid:55)(cid:40)(cid:39)(cid:17)(cid:3) (cid:36)(cid:47)(cid:47)(cid:3)(cid:58)(cid:50)(cid:53)(cid:46)(cid:3)(cid:54)(cid:43)(cid:36)(cid:47)(cid:47)(cid:3)(cid:37)(cid:40)(cid:3)(cid:51)(cid:40)(cid:53)(cid:41)(cid:50)(cid:53)(cid:48)(cid:40)(cid:39)(cid:3)(cid:44)(cid:49)(cid:3)(cid:36)(cid:3)(cid:49)(cid:40)(cid:36)(cid:55)(cid:3)(cid:58)(cid:50)(cid:53)(cid:46)(cid:48)(cid:36)(cid:49)(cid:47)(cid:44)(cid:46)(cid:40)(cid:3) (cid:48)(cid:36)(cid:49)(cid:49)(cid:40)(cid:53)(cid:17)(cid:3)(cid:44)(cid:49)(cid:3)(cid:36)(cid:39)(cid:39)(cid:44)(cid:55)(cid:44)(cid:50)(cid:49)(cid:15)(cid:3)(cid:38)(cid:50)(cid:49)(cid:55)(cid:53)(cid:36)(cid:38)(cid:55)(cid:50)(cid:53)(cid:54)(cid:3)(cid:54)(cid:43)(cid:36)(cid:47)(cid:47)(cid:3)(cid:37)(cid:40)(cid:3)(cid:54)(cid:50)(cid:47)(cid:40)(cid:47)(cid:60)(cid:3) (cid:53)(cid:40)(cid:54)(cid:51)(cid:50)(cid:49)(cid:54)(cid:44)(cid:37)(cid:47)(cid:40)(cid:3)(cid:41)(cid:50)(cid:53)(cid:3)(cid:38)(cid:50)(cid:49)(cid:54)(cid:55)(cid:53)(cid:56)(cid:38)(cid:55)(cid:44)(cid:50)(cid:49)(cid:3)(cid:48)(cid:40)(cid:36)(cid:49)(cid:54)(cid:15)(cid:3)(cid:48)(cid:40)(cid:55)(cid:43)(cid:50)(cid:39)(cid:54)(cid:15)(cid:3) (cid:51)(cid:53)(cid:50)(cid:38)(cid:40)(cid:39)(cid:56)(cid:53)(cid:40)(cid:54)(cid:3)(cid:36)(cid:49)(cid:39)(cid:3)(cid:54)(cid:36)(cid:41)(cid:40)(cid:55)(cid:60)(cid:3)(cid:51)(cid:53)(cid:40)(cid:38)(cid:36)(cid:56)(cid:55)(cid:44)(cid:50)(cid:49)(cid:54)(cid:17) (cid:36)(cid:47)(cid:47)(cid:3)(cid:54)(cid:40)(cid:52)(cid:56)(cid:40)(cid:49)(cid:38)(cid:40)(cid:54)(cid:3)(cid:36)(cid:49)(cid:39)(cid:3)(cid:38)(cid:50)(cid:50)(cid:53)(cid:39)(cid:44)(cid:49)(cid:36)(cid:55)(cid:44)(cid:50)(cid:49)(cid:3)(cid:50)(cid:41)(cid:3)(cid:38)(cid:50)(cid:49)(cid:54)(cid:55)(cid:53)(cid:56)(cid:38)(cid:55)(cid:44)(cid:50)(cid:49)(cid:3) (cid:54)(cid:43)(cid:36)(cid:47)(cid:47)(cid:3)(cid:37)(cid:40)(cid:3)(cid:53)(cid:40)(cid:57)(cid:44)(cid:40)(cid:58)(cid:40)(cid:39)(cid:3)(cid:36)(cid:49)(cid:39)(cid:3)(cid:36)(cid:51)(cid:51)(cid:53)(cid:50)(cid:57)(cid:40)(cid:39)(cid:3)(cid:37)(cid:60)(cid:3)(cid:55)(cid:43)(cid:40)(cid:3)(cid:42)(cid:40)(cid:49)(cid:40)(cid:53)(cid:36)(cid:47)(cid:3) (cid:38)(cid:50)(cid:49)(cid:55)(cid:53)(cid:36)(cid:38)(cid:55)(cid:50)(cid:53)(cid:17) (cid:44)(cid:55)(cid:3)(cid:44)(cid:54)(cid:3)(cid:55)(cid:43)(cid:40)(cid:3)(cid:44)(cid:49)(cid:55)(cid:40)(cid:49)(cid:55)(cid:3)(cid:50)(cid:41)(cid:3)(cid:55)(cid:43)(cid:40)(cid:3)(cid:38)(cid:50)(cid:49)(cid:54)(cid:55)(cid:53)(cid:56)(cid:38)(cid:55)(cid:44)(cid:50)(cid:49)(cid:3)(cid:39)(cid:50)(cid:38)(cid:56)(cid:48)(cid:40)(cid:49)(cid:55)(cid:54)(cid:3)(cid:55)(cid:43)(cid:36)(cid:55)(cid:3) (cid:55)(cid:43)(cid:40)(cid:3)(cid:38)(cid:50)(cid:49)(cid:55)(cid:53)(cid:36)(cid:38)(cid:55)(cid:50)(cid:53)(cid:3)(cid:54)(cid:43)(cid:36)(cid:47)(cid:47)(cid:3)(cid:51)(cid:53)(cid:50)(cid:57)(cid:44)(cid:39)(cid:40)(cid:3)(cid:36)(cid:3)(cid:48)(cid:40)(cid:38)(cid:43)(cid:36)(cid:49)(cid:44)(cid:38)(cid:36)(cid:47)(cid:15)(cid:3)(cid:51)(cid:47)(cid:56)(cid:48)(cid:37)(cid:44)(cid:49)(cid:42)(cid:3) (cid:36)(cid:49)(cid:39)(cid:3)(cid:40)(cid:47)(cid:40)(cid:38)(cid:55)(cid:53)(cid:44)(cid:38)(cid:36)(cid:47)(cid:3)(cid:44)(cid:49)(cid:54)(cid:55)(cid:36)(cid:47)(cid:47)(cid:36)(cid:55)(cid:44)(cid:50)(cid:49)(cid:3)(cid:55)(cid:43)(cid:36)(cid:55)(cid:3)(cid:44)(cid:54)(cid:3)(cid:38)(cid:50)(cid:48)(cid:51)(cid:47)(cid:40)(cid:55)(cid:40)(cid:17)(cid:3)(cid:36)(cid:47)(cid:47)(cid:3) (cid:44)(cid:55)(cid:40)(cid:48)(cid:54)(cid:3)(cid:49)(cid:40)(cid:38)(cid:40)(cid:54)(cid:54)(cid:36)(cid:53)(cid:60)(cid:15)(cid:3)(cid:53)(cid:40)(cid:36)(cid:54)(cid:50)(cid:49)(cid:36)(cid:37)(cid:47)(cid:60)(cid:3)(cid:44)(cid:49)(cid:38)(cid:44)(cid:39)(cid:40)(cid:49)(cid:55)(cid:36)(cid:47)(cid:3)(cid:50)(cid:53)(cid:3) (cid:38)(cid:56)(cid:54)(cid:55)(cid:50)(cid:48)(cid:36)(cid:53)(cid:44)(cid:47)(cid:60)(cid:3)(cid:44)(cid:49)(cid:38)(cid:47)(cid:56)(cid:39)(cid:40)(cid:39)(cid:3)(cid:54)(cid:43)(cid:36)(cid:47)(cid:47)(cid:3)(cid:37)(cid:40)(cid:3)(cid:51)(cid:53)(cid:50)(cid:57)(cid:44)(cid:39)(cid:40)(cid:39)(cid:15)(cid:3)(cid:40)(cid:57)(cid:40)(cid:49)(cid:3)(cid:55)(cid:43)(cid:50)(cid:56)(cid:42)(cid:43)(cid:3) (cid:40)(cid:36)(cid:38)(cid:43)(cid:3)(cid:36)(cid:49)(cid:39)(cid:3)(cid:40)(cid:57)(cid:40)(cid:53)(cid:60)(cid:3)(cid:44)(cid:55)(cid:40)(cid:48)(cid:3)(cid:44)(cid:54)(cid:3)(cid:49)(cid:50)(cid:55)(cid:3)(cid:54)(cid:51)(cid:40)(cid:38)(cid:44)(cid:41)(cid:44)(cid:38)(cid:36)(cid:47)(cid:47)(cid:60)(cid:3)(cid:38)(cid:36)(cid:47)(cid:47)(cid:40)(cid:39)(cid:3)(cid:50)(cid:56)(cid:55)(cid:3)(cid:50)(cid:53)(cid:3) (cid:54)(cid:43)(cid:50)(cid:58)(cid:49)(cid:3)(cid:44)(cid:49)(cid:3)(cid:55)(cid:43)(cid:40)(cid:3)(cid:38)(cid:50)(cid:49)(cid:54)(cid:55)(cid:53)(cid:56)(cid:38)(cid:55)(cid:44)(cid:50)(cid:49)(cid:3)(cid:39)(cid:50)(cid:38)(cid:56)(cid:48)(cid:40)(cid:49)(cid:55)(cid:54)(cid:17) (cid:36)(cid:47)(cid:47)(cid:3)(cid:48)(cid:36)(cid:55)(cid:40)(cid:53)(cid:44)(cid:36)(cid:47)(cid:54)(cid:3)(cid:41)(cid:56)(cid:53)(cid:49)(cid:44)(cid:54)(cid:43)(cid:40)(cid:39)(cid:3)(cid:56)(cid:49)(cid:39)(cid:40)(cid:53)(cid:3)(cid:38)(cid:50)(cid:49)(cid:55)(cid:53)(cid:36)(cid:38)(cid:55)(cid:3)(cid:54)(cid:43)(cid:36)(cid:47)(cid:47)(cid:3)(cid:37)(cid:40)(cid:3)(cid:49)(cid:40)(cid:58)(cid:15)(cid:3) (cid:56)(cid:49)(cid:47)(cid:40)(cid:54)(cid:54)(cid:3)(cid:49)(cid:50)(cid:55)(cid:40)(cid:39)(cid:3)(cid:50)(cid:55)(cid:43)(cid:40)(cid:53)(cid:58)(cid:44)(cid:54)(cid:40)(cid:17) (cid:39)(cid:50)(cid:3)(cid:49)(cid:50)(cid:55)(cid:3)(cid:54)(cid:38)(cid:36)(cid:47)(cid:40)(cid:3)(cid:39)(cid:53)(cid:36)(cid:58)(cid:44)(cid:49)(cid:42)(cid:54)(cid:17) (cid:53)(cid:40)(cid:41)(cid:40)(cid:53)(cid:3)(cid:55)(cid:50)(cid:3)(cid:54)(cid:55)(cid:53)(cid:56)(cid:38)(cid:55)(cid:56)(cid:53)(cid:36)(cid:47)(cid:3)(cid:39)(cid:53)(cid:36)(cid:58)(cid:44)(cid:49)(cid:42)(cid:54)(cid:3)(cid:41)(cid:50)(cid:53)(cid:3)(cid:54)(cid:55)(cid:53)(cid:56)(cid:38)(cid:55)(cid:56)(cid:53)(cid:36)(cid:47)(cid:3)(cid:58)(cid:50)(cid:53)(cid:46)(cid:17) (cid:38)(cid:50)(cid:50)(cid:53)(cid:39)(cid:44)(cid:49)(cid:36)(cid:55)(cid:40)(cid:3)(cid:47)(cid:50)(cid:38)(cid:36)(cid:55)(cid:44)(cid:50)(cid:49)(cid:15)(cid:3)(cid:54)(cid:44)(cid:61)(cid:40)(cid:3)(cid:36)(cid:49)(cid:39)(cid:3)(cid:38)(cid:50)(cid:49)(cid:41)(cid:44)(cid:42)(cid:56)(cid:53)(cid:36)(cid:55)(cid:44)(cid:50)(cid:49)(cid:3)(cid:50)(cid:41)(cid:3) (cid:51)(cid:47)(cid:56)(cid:48)(cid:37)(cid:44)(cid:49)(cid:42)(cid:3)(cid:57)(cid:40)(cid:49)(cid:55)(cid:44)(cid:49)(cid:42)(cid:3)(cid:36)(cid:55)(cid:3)(cid:53)(cid:50)(cid:50)(cid:41)(cid:3)(cid:58)(cid:44)(cid:55)(cid:43)(cid:3)(cid:51)(cid:47)(cid:56)(cid:48)(cid:37)(cid:44)(cid:49)(cid:42)(cid:3)(cid:38)(cid:50)(cid:49)(cid:55)(cid:53)(cid:36)(cid:38)(cid:55)(cid:50)(cid:53)(cid:17) (cid:56)(cid:55)(cid:44)(cid:47)(cid:44)(cid:55)(cid:44)(cid:40)(cid:54)(cid:29)(cid:3)(cid:51)(cid:53)(cid:44)(cid:50)(cid:53)(cid:3)(cid:55)(cid:50)(cid:3)(cid:38)(cid:50)(cid:49)(cid:54)(cid:55)(cid:53)(cid:56)(cid:38)(cid:55)(cid:44)(cid:50)(cid:49)(cid:15)(cid:3)(cid:55)(cid:43)(cid:40)(cid:3)(cid:38)(cid:50)(cid:49)(cid:55)(cid:53)(cid:36)(cid:38)(cid:55)(cid:50)(cid:53)(cid:3) (cid:54)(cid:43)(cid:36)(cid:47)(cid:47)(cid:3)(cid:57)(cid:40)(cid:53)(cid:44)(cid:41)(cid:60)(cid:3)(cid:55)(cid:43)(cid:40)(cid:3)(cid:40)(cid:59)(cid:55)(cid:40)(cid:49)(cid:55)(cid:3)(cid:50)(cid:41)(cid:3)(cid:56)(cid:55)(cid:44)(cid:47)(cid:44)(cid:55)(cid:44)(cid:40)(cid:54)(cid:3)(cid:58)(cid:44)(cid:55)(cid:43)(cid:3)(cid:50)(cid:58)(cid:49)(cid:40)(cid:53)(cid:3)(cid:36)(cid:49)(cid:39)(cid:3) (cid:36)(cid:53)(cid:38)(cid:43)(cid:44)(cid:55)(cid:40)(cid:38)(cid:55)(cid:17)(cid:3)(cid:38)(cid:50)(cid:49)(cid:55)(cid:53)(cid:36)(cid:38)(cid:55)(cid:50)(cid:53)(cid:3)(cid:54)(cid:43)(cid:36)(cid:47)(cid:47)(cid:3)(cid:47)(cid:50)(cid:38)(cid:36)(cid:55)(cid:40)(cid:3)(cid:40)(cid:59)(cid:44)(cid:54)(cid:55)(cid:44)(cid:49)(cid:42)(cid:3)(cid:42)(cid:36)(cid:54)(cid:15)(cid:3) (cid:40)(cid:47)(cid:40)(cid:38)(cid:55)(cid:53)(cid:44)(cid:38)(cid:15)(cid:3)(cid:36)(cid:49)(cid:39)(cid:3)(cid:58)(cid:36)(cid:55)(cid:40)(cid:53)(cid:3)(cid:48)(cid:40)(cid:55)(cid:40)(cid:53)(cid:54)(cid:3)(cid:36)(cid:49)(cid:39)(cid:3)(cid:54)(cid:43)(cid:36)(cid:47)(cid:47)(cid:3)(cid:39)(cid:40)(cid:55)(cid:40)(cid:53)(cid:48)(cid:44)(cid:49)(cid:40)(cid:3) (cid:58)(cid:43)(cid:40)(cid:55)(cid:43)(cid:40)(cid:53)(cid:3)(cid:53)(cid:40)(cid:51)(cid:36)(cid:44)(cid:53)(cid:3)(cid:50)(cid:53)(cid:3)(cid:53)(cid:40)(cid:51)(cid:47)(cid:36)(cid:38)(cid:40)(cid:48)(cid:40)(cid:49)(cid:55)(cid:3)(cid:44)(cid:54)(cid:3)(cid:53)(cid:40)(cid:52)(cid:56)(cid:44)(cid:53)(cid:40)(cid:39)(cid:17)(cid:3) (cid:37)(cid:82)(cid:87)(cid:87)(cid:82)(cid:80) (cid:38)(cid:85)(cid:76)(cid:87)(cid:76)(cid:70)(cid:68)(cid:79)(cid:3)(cid:53)(cid:82)(cid:82)(cid:87)(cid:3)(cid:61)(cid:82)(cid:81)(cid:72) (cid:39)(cid:82)(cid:88)(cid:69)(cid:79)(cid:72) (cid:39)(cid:82)(cid:88)(cid:69)(cid:79)(cid:72)(cid:3)(cid:43)(cid:88)(cid:81)(cid:74) (cid:39)(cid:76)(cid:68)(cid:80)(cid:72)(cid:87)(cid:72)(cid:85) (cid:39)(cid:76)(cid:80)(cid:72)(cid:81)(cid:86)(cid:76)(cid:82)(cid:81) (cid:39)(cid:82)(cid:90)(cid:81) (cid:39)(cid:82)(cid:88)(cid:69)(cid:79)(cid:72)(cid:3)(cid:50)(cid:89)(cid:72)(cid:81) (cid:39)(cid:82)(cid:82)(cid:85) (cid:39)(cid:76)(cid:86)(cid:75)(cid:90)(cid:68)(cid:86)(cid:75)(cid:72)(cid:85) (cid:39)(cid:85)(cid:68)(cid:90)(cid:76)(cid:81)(cid:74) (cid:39)(cid:85)(cid:68)(cid:90)(cid:72)(cid:85) (cid:40)(cid:68)(cid:86)(cid:87) (cid:40)(cid:79)(cid:72)(cid:70)(cid:87)(cid:85)(cid:76)(cid:70) (cid:40)(cid:79)(cid:72)(cid:70)(cid:87)(cid:85)(cid:76)(cid:70)(cid:3)(cid:48)(cid:72)(cid:87)(cid:72)(cid:85) (cid:40)(cid:84)(cid:88)(cid:68)(cid:79) (cid:40)(cid:84)(cid:88)(cid:76)(cid:83)(cid:80)(cid:72)(cid:81)(cid:87) (cid:40)(cid:91)(cid:76)(cid:86)(cid:87)(cid:76)(cid:81)(cid:74) (cid:40)(cid:91)(cid:87)(cid:72)(cid:85)(cid:76)(cid:82)(cid:85) (cid:41)(cid:79)(cid:82)(cid:82)(cid:85)(cid:16)(cid:36)(cid:85)(cid:72)(cid:68)(cid:16)(cid:53)(cid:68)(cid:87)(cid:76)(cid:82) (cid:41)(cid:76)(cid:81)(cid:76)(cid:86)(cid:75)(cid:72)(cid:71)(cid:3)(cid:41)(cid:79)(cid:82)(cid:82)(cid:85)(cid:3)(cid:40)(cid:79)(cid:72)(cid:89)(cid:68)(cid:87)(cid:76)(cid:82)(cid:81) (cid:41)(cid:76)(cid:81)(cid:76)(cid:86)(cid:75) (cid:41)(cid:76)(cid:91)(cid:87)(cid:88)(cid:85)(cid:72) (cid:41)(cid:79)(cid:82)(cid:82)(cid:85) (cid:41)(cid:68)(cid:70)(cid:72)(cid:3)(cid:82)(cid:73) (cid:41)(cid:72)(cid:72)(cid:87) (cid:41)(cid:76)(cid:85)(cid:72)(cid:83)(cid:79)(cid:68)(cid:70)(cid:72) (cid:41)(cid:76)(cid:91)(cid:72)(cid:71) (cid:41)(cid:85)(cid:72)(cid:81)(cid:70)(cid:75)(cid:3)(cid:39)(cid:82)(cid:82)(cid:85) (cid:42)(cid:72)(cid:81)(cid:72)(cid:85)(cid:68)(cid:79)(cid:3)(cid:38)(cid:82)(cid:81)(cid:87)(cid:85)(cid:68)(cid:70)(cid:87)(cid:82)(cid:85) (cid:42)(cid:85)(cid:82)(cid:88)(cid:81)(cid:71)(cid:3)(cid:41)(cid:68)(cid:88)(cid:79)(cid:87)(cid:3)(cid:38)(cid:76)(cid:85)(cid:70)(cid:88)(cid:76)(cid:87)(cid:3)(cid:44)(cid:81)(cid:87)(cid:72)(cid:85)(cid:85)(cid:88)(cid:83)(cid:87) (cid:42)(cid:79)(cid:68)(cid:86)(cid:86) (cid:42)(cid:68)(cid:86)(cid:3)(cid:48)(cid:72)(cid:87)(cid:72)(cid:85) (cid:42)(cid:85)(cid:68)(cid:71)(cid:72) (cid:36)(cid:76)(cid:85)(cid:3)(cid:38)(cid:82)(cid:81)(cid:71)(cid:76)(cid:87)(cid:76)(cid:82)(cid:81)(cid:76)(cid:81)(cid:74) (cid:36)(cid:18)(cid:38) (cid:36)(cid:71)(cid:77)(cid:68)(cid:70)(cid:72)(cid:81)(cid:87) (cid:36)(cid:39)(cid:45) (cid:36)(cid:69)(cid:82)(cid:89)(cid:72)(cid:3)(cid:41)(cid:76)(cid:81)(cid:76)(cid:86)(cid:75)(cid:3)(cid:41)(cid:79)(cid:82)(cid:82)(cid:85) (cid:36)(cid:41)(cid:41) (cid:36)(cid:88)(cid:87)(cid:75)(cid:82)(cid:85)(cid:76)(cid:87)(cid:92)(cid:3)(cid:43)(cid:68)(cid:89)(cid:76)(cid:81)(cid:74)(cid:3)(cid:45)(cid:88)(cid:85)(cid:76)(cid:86)(cid:71)(cid:76)(cid:70)(cid:87)(cid:76)(cid:82)(cid:81) (cid:36)(cid:43)(cid:45) (cid:36)(cid:85)(cid:70)(cid:75)(cid:76)(cid:87)(cid:72)(cid:70)(cid:87) (cid:36)(cid:53)(cid:38)(cid:43) (cid:37)(cid:39)(cid:47)(cid:42) (cid:37)(cid:88)(cid:76)(cid:79)(cid:71)(cid:76)(cid:81)(cid:74) (cid:37)(cid:39)(cid:53)(cid:48) (cid:37)(cid:72)(cid:71)(cid:85)(cid:82)(cid:82)(cid:80) (cid:37)(cid:55)(cid:48)(cid:3) (cid:37)(cid:55)(cid:58)(cid:49) (cid:37)(cid:72)(cid:87)(cid:90)(cid:72)(cid:72)(cid:81) (cid:38)(cid:68)(cid:69)(cid:76)(cid:81)(cid:72)(cid:87) (cid:38)(cid:36)(cid:37) (cid:38)(cid:72)(cid:81)(cid:87)(cid:72)(cid:85)(cid:79)(cid:76)(cid:81)(cid:72) (cid:38)(cid:47) (cid:38)(cid:72)(cid:76)(cid:79)(cid:76)(cid:81)(cid:74) (cid:38)(cid:47)(cid:42) (cid:38)(cid:79)(cid:82)(cid:86)(cid:72)(cid:87) (cid:38)(cid:47)(cid:50) (cid:38)(cid:79)(cid:72)(cid:68)(cid:85) (cid:38)(cid:47)(cid:53) (cid:38)(cid:68)(cid:86)(cid:72)(cid:71)(cid:3)(cid:50)(cid:83)(cid:72)(cid:81)(cid:76)(cid:81)(cid:74) (cid:38)(cid:17)(cid:50)(cid:17) (cid:38)(cid:82)(cid:81)(cid:70)(cid:85)(cid:72)(cid:87)(cid:72) (cid:38)(cid:50)(cid:49)(cid:38) (cid:38)(cid:50)(cid:49)(cid:55) (cid:38)(cid:82)(cid:81)(cid:87)(cid:76)(cid:81)(cid:88)(cid:82)(cid:88)(cid:86) (cid:38)(cid:50)(cid:50)(cid:53)(cid:39) (cid:38)(cid:82)(cid:82)(cid:85)(cid:71)(cid:76)(cid:81)(cid:68)(cid:87)(cid:72) (cid:38)(cid:53)(cid:61) (cid:39)(cid:37)(cid:47) (cid:39)(cid:40)(cid:48)(cid:50) (cid:39)(cid:72)(cid:80)(cid:82)(cid:79)(cid:76)(cid:86)(cid:75) (cid:39)(cid:43) (cid:39)(cid:44)(cid:36) (cid:39)(cid:44)(cid:48) (cid:39)(cid:49) (cid:39)(cid:50) (cid:39)(cid:53) (cid:39)(cid:58) (cid:39)(cid:58)(cid:42) (cid:39)(cid:58)(cid:53) (cid:40) (cid:40)(cid:47)(cid:40)(cid:38) (cid:40)(cid:48) (cid:40)(cid:52) (cid:40)(cid:52)(cid:51)(cid:55) (cid:40)(cid:59)(cid:54)(cid:55) (cid:40)(cid:59)(cid:55) (cid:41)(cid:36)(cid:53) (cid:41)(cid:41)(cid:40) (cid:41)(cid:44)(cid:49) (cid:41)(cid:44)(cid:59)(cid:55) (cid:41)(cid:47)(cid:53) (cid:41)(cid:17)(cid:50)(cid:17)(cid:3) (cid:41)(cid:55) (cid:41)(cid:51) (cid:41)(cid:59) (cid:41)(cid:53)(cid:3)(cid:39)(cid:53) (cid:42)(cid:38) (cid:42)(cid:41)(cid:38)(cid:44)(cid:3) (cid:42)(cid:47) (cid:42)(cid:48) (cid:42)(cid:53) (cid:42)(cid:53)(cid:49)(cid:39) (cid:42)(cid:85)(cid:82)(cid:88)(cid:81)(cid:71) (cid:42)(cid:60)(cid:51)(cid:3)(cid:37)(cid:39) (cid:42)(cid:92)(cid:83)(cid:86)(cid:88)(cid:80)(cid:3)(cid:58)(cid:68)(cid:79)(cid:79)(cid:3)(cid:37)(cid:82)(cid:68)(cid:85)(cid:71) (cid:43)(cid:37) (cid:43)(cid:39)(cid:53) (cid:43)(cid:50)(cid:53)(cid:44)(cid:61) (cid:43)(cid:82)(cid:85)(cid:76)(cid:93)(cid:82)(cid:81)(cid:87)(cid:68)(cid:79) (cid:43)(cid:55) (cid:43)(cid:57)(cid:36)(cid:38) (cid:38)(cid:82)(cid:81)(cid:71)(cid:76)(cid:87)(cid:76)(cid:82)(cid:81) (cid:44)(cid:49) (cid:44)(cid:49)(cid:38)(cid:47) (cid:44)(cid:49)(cid:41)(cid:50) (cid:44)(cid:49)(cid:55) (cid:46)(cid:44)(cid:55) (cid:47) (cid:47)(cid:36)(cid:48) (cid:47)(cid:41) (cid:47)(cid:55) (cid:48)(cid:36)(cid:59) (cid:48)(cid:40)(cid:38)(cid:43) (cid:48)(cid:72)(cid:70)(cid:75)(cid:68)(cid:81)(cid:76)(cid:70)(cid:68)(cid:79) (cid:48)(cid:40)(cid:51) (cid:51)(cid:79)(cid:88)(cid:80)(cid:69)(cid:76)(cid:81)(cid:74) (cid:48)(cid:44)(cid:49) (cid:48)(cid:44)(cid:54)(cid:38) (cid:48)(cid:55)(cid:39) (cid:48)(cid:55)(cid:47) (cid:48)(cid:58) (cid:44)(cid:81)(cid:70)(cid:75)(cid:72)(cid:86) (cid:44)(cid:81)(cid:70)(cid:79)(cid:88)(cid:71)(cid:76)(cid:81)(cid:74) (cid:44)(cid:81)(cid:73)(cid:82)(cid:85)(cid:80)(cid:68)(cid:87)(cid:76)(cid:82)(cid:81) (cid:44)(cid:81)(cid:87)(cid:72)(cid:85)(cid:76)(cid:82)(cid:85) (cid:46)(cid:76)(cid:87)(cid:70)(cid:75)(cid:72)(cid:81) (cid:47)(cid:72)(cid:81)(cid:74)(cid:87)(cid:75) (cid:47)(cid:68)(cid:80)(cid:76)(cid:81)(cid:68)(cid:87)(cid:72)(cid:71) (cid:47)(cid:76)(cid:81)(cid:72)(cid:68)(cid:85)(cid:3)(cid:41)(cid:82)(cid:82)(cid:87) (cid:47)(cid:76)(cid:74)(cid:75)(cid:87) (cid:48)(cid:68)(cid:91)(cid:76)(cid:80)(cid:88)(cid:80) (cid:48)(cid:76)(cid:81)(cid:76)(cid:80)(cid:88)(cid:80) (cid:48)(cid:76)(cid:86)(cid:70)(cid:72)(cid:79)(cid:79)(cid:68)(cid:81)(cid:72)(cid:82)(cid:88)(cid:86) (cid:48)(cid:82)(cid:88)(cid:81)(cid:87)(cid:72)(cid:71) (cid:48)(cid:72)(cid:87)(cid:68)(cid:79) (cid:48)(cid:76)(cid:70)(cid:85)(cid:82)(cid:90)(cid:68)(cid:89)(cid:72) (cid:43)(cid:72)(cid:76)(cid:74)(cid:75)(cid:87) (cid:43)(cid:72)(cid:68)(cid:87)(cid:18)(cid:3)(cid:57)(cid:72)(cid:81)(cid:87)(cid:76)(cid:79)(cid:68)(cid:87)(cid:76)(cid:82)(cid:81)(cid:18)(cid:3)(cid:36)(cid:76)(cid:85)(cid:3) (cid:48)(cid:72)(cid:70)(cid:75)(cid:68)(cid:81)(cid:76)(cid:70)(cid:68)(cid:79)(cid:18)(cid:3)(cid:40)(cid:79)(cid:72)(cid:70)(cid:87)(cid:85)(cid:76)(cid:70)(cid:68)(cid:79)(cid:18)(cid:3) (cid:43)(cid:82)(cid:86)(cid:72)(cid:3)(cid:37)(cid:76)(cid:69) (cid:43)(cid:72)(cid:68)(cid:71)(cid:72)(cid:85) (cid:50)(cid:58)(cid:49)(cid:40)(cid:53)(cid:3)(cid:44)(cid:49)(cid:41)(cid:50)(cid:53)(cid:48)(cid:36)(cid:55)(cid:44)(cid:50)(cid:49) (cid:38)(cid:50)(cid:49)(cid:55)(cid:36)(cid:38)(cid:55)(cid:54) (cid:61)(cid:50)(cid:49)(cid:44)(cid:49)(cid:42)(cid:3)(cid:44)(cid:49)(cid:41)(cid:50)(cid:53)(cid:48)(cid:36)(cid:55)(cid:44)(cid:50)(cid:49) (cid:54)(cid:60)(cid:48)(cid:37)(cid:50)(cid:47)(cid:54) (cid:54)(cid:43)(cid:40)(cid:40)(cid:55)(cid:3)(cid:44)(cid:49)(cid:39)(cid:40)(cid:59) (cid:45)(cid:72)(cid:73)(cid:73)(cid:3)(cid:9)(cid:3)(cid:48)(cid:76)(cid:70)(cid:75)(cid:72)(cid:79)(cid:79)(cid:72)(cid:3)(cid:54)(cid:88)(cid:81)(cid:86)(cid:75)(cid:76)(cid:81)(cid:72) (cid:26)(cid:19)(cid:25)(cid:3)(cid:43)(cid:76)(cid:74)(cid:75)(cid:79)(cid:68)(cid:81)(cid:71)(cid:3)(cid:36)(cid:89)(cid:72)(cid:15)(cid:3)(cid:36)(cid:88)(cid:86)(cid:87)(cid:76)(cid:81)(cid:15)(cid:3)(cid:55)(cid:72)(cid:91)(cid:68)(cid:86)(cid:3)(cid:26)(cid:27)(cid:26)(cid:19)(cid:22) (cid:57)(cid:44)(cid:38)(cid:44)(cid:49)(cid:44)(cid:55)(cid:60)(cid:3)(cid:48)(cid:36)(cid:51) (cid:36)(cid:85)(cid:70)(cid:75)(cid:76)(cid:87)(cid:72)(cid:70)(cid:87) (cid:38)(cid:82)(cid:81)(cid:87)(cid:68)(cid:70)(cid:87) (cid:51)(cid:75)(cid:82)(cid:81)(cid:72) (cid:40)(cid:80)(cid:68)(cid:76)(cid:79) (cid:40)(cid:81)(cid:74)(cid:76)(cid:81)(cid:72)(cid:72)(cid:85) (cid:38)(cid:82)(cid:81)(cid:87)(cid:68)(cid:70)(cid:87) (cid:51)(cid:75)(cid:82)(cid:81)(cid:72) (cid:40)(cid:80)(cid:68)(cid:76)(cid:79) (cid:38)(cid:82)(cid:81)(cid:87)(cid:85)(cid:68)(cid:70)(cid:87)(cid:82)(cid:85) (cid:38)(cid:82)(cid:81)(cid:87)(cid:68)(cid:70)(cid:87) (cid:51)(cid:75)(cid:82)(cid:81)(cid:72) (cid:40)(cid:80)(cid:68)(cid:76)(cid:79) (cid:50)(cid:36)(cid:3)(cid:54)(cid:87)(cid:88)(cid:71)(cid:76)(cid:82)(cid:15)(cid:3)(cid:47)(cid:47)(cid:38) (cid:47)(cid:72)(cid:86)(cid:79)(cid:76)(cid:72)(cid:3)(cid:41)(cid:85)(cid:76)(cid:72)(cid:80)(cid:72)(cid:79)(cid:15)(cid:3)(cid:53)(cid:36) (cid:24)(cid:20)(cid:21)(cid:16)(cid:21)(cid:20)(cid:26)(cid:16)(cid:23)(cid:27)(cid:24)(cid:19) (cid:79)(cid:72)(cid:86)(cid:79)(cid:76)(cid:72)(cid:81)(cid:90)(cid:73)(cid:35)(cid:74)(cid:80)(cid:68)(cid:76)(cid:79)(cid:17)(cid:70)(cid:82)(cid:80) (cid:50)(cid:78)(cid:78)(cid:72)(cid:80)(cid:3)(cid:39)(cid:72)(cid:86)(cid:76)(cid:74)(cid:81) (cid:38)(cid:75)(cid:85)(cid:76)(cid:86)(cid:87)(cid:82)(cid:83)(cid:75)(cid:72)(cid:85)(cid:3)(cid:38)(cid:79)(cid:76)(cid:73)(cid:87)(cid:82)(cid:81)(cid:15)(cid:3)(cid:51)(cid:40) (cid:24)(cid:20)(cid:21)(cid:16)(cid:27)(cid:28)(cid:23)(cid:16)(cid:28)(cid:21)(cid:21)(cid:21) (cid:70)(cid:75)(cid:85)(cid:76)(cid:86)(cid:35)(cid:82)(cid:78)(cid:78)(cid:72)(cid:80)(cid:71)(cid:72)(cid:86)(cid:76)(cid:74)(cid:81)(cid:17)(cid:70)(cid:82)(cid:80) (cid:55)(cid:37)(cid:39) (cid:26)(cid:19)(cid:25)(cid:3)(cid:43)(cid:44)(cid:42)(cid:43)(cid:47)(cid:36)(cid:49)(cid:39)(cid:3)(cid:36)(cid:57)(cid:40)(cid:17) (cid:38)(cid:50)(cid:39)(cid:40)(cid:3)(cid:36)(cid:49)(cid:36)(cid:47)(cid:60)(cid:54)(cid:44)(cid:54) (cid:37)(cid:56)(cid:44)(cid:47)(cid:39)(cid:44)(cid:49)(cid:42)(cid:3)(cid:38)(cid:50)(cid:39)(cid:40)(cid:29) (cid:44)(cid:49)(cid:55)(cid:40)(cid:53)(cid:49)(cid:36)(cid:55)(cid:44)(cid:50)(cid:49)(cid:36)(cid:47)(cid:3)(cid:53)(cid:40)(cid:54)(cid:44)(cid:39)(cid:40)(cid:49)(cid:55)(cid:44)(cid:36)(cid:47)(cid:3)(cid:37)(cid:56)(cid:44)(cid:47)(cid:39)(cid:44)(cid:49)(cid:42)(cid:3)(cid:38)(cid:50)(cid:39)(cid:40)(cid:3)(cid:21)(cid:19)(cid:21)(cid:23)(cid:3) (cid:58)(cid:44)(cid:55)(cid:43)(cid:3)(cid:36)(cid:56)(cid:54)(cid:55)(cid:44)(cid:49)(cid:3)(cid:36)(cid:48)(cid:40)(cid:49)(cid:39)(cid:48)(cid:40)(cid:49)(cid:55)(cid:54) …

Scraped at: Sept. 23, 2025, 4:35 p.m.

09.0 - 4304 Avenue C original pdf

Thumbnail of the first page of the PDF
Page 1 of 4 pages

9.0 – 1 HISTORIC LANDMARK COMMISSION APPLICATION FOR A CERTIFICATE OF APPROPRIATENESS OCTOBER 1, 2025 HR-2025-113541 HYDE PARK HISTORIC DISTRICT 4304 AVENUE C PROPOSAL Construct a new two-story residence with rear accessory structure. PROJECT SPECIFICATIONS 1) Demolish portion of a surface parking lot. 2) Construct a new single-family residence, two stories in height, on the property. 3) Construct a rear accessory structure. DESIGN STANDARDS The Hyde Park Design Standards are used to evaluate projects within the historic district. The following standards apply to the proposed project: Residential Standards: New Construction of Single Family Structures 5.1: Massing, Scale, and Architectural Elements Most houses on the same block are one-story, though there are some examples in the immediate vicinity, and numerous in the district generally, that feature a second floor set back from the front of the property, very similar to the form presented here. Per recommendations in the Hyde Park Design Standards, photos and drawings of surrounding buildings are provided in the same scale for comparison. 5.3: Porches A front porch is proposed, and is over 7 feet deep, as required by the design standards. It extends the width of the front elevation and is appropriate in scale while being distinct as new construction. 5.4: Height The foundation of proposed new construction appears to be on slab, but the house is elevated to give the appearance of a pier-and-beam construction. This situation is specifically called out in Standard 5.4 as best practice in this situation. 5.5: Roofs Design standards call for the use of hipped or gable roof structures for new construction, or some combination of the two. This design features both, with a clipped gable at the front of second story. While not very common in the district, this form does look appropriate and reduces the overall verticality of the design when viewed from the street. 5.6: Entrances The primary entryway is at the front, street facing elevation, per the standards. 5.7: Exterior Wall Materials Cementitious siding oriented horizontally is proposed on all exterior walls, which is listed as a compatible material in the district design standards. 5.9: Garages A carport is proposed at the side of the building, behind the front façade. This reduces the street visibility and meets the spirit of the design standards. 5.10: Garage Apartments/Secondary Units A secondary unit is proposed at the rear of the property, which is a location often used for such structures …

Scraped at: Sept. 23, 2025, 4:36 p.m.

09.1 - 4304 Avenue C - Photos & Drawings original pdf

Thumbnail of the first page of the PDF
Page 1 of 17 pages

0101 SITE 1935 Sanborn Fire Insurance Map 4302 1 4302 AVENUE C | HLC REVIEW | NOT FOR CONSTRUCTION 0101 SITE 1977 Aerial Photo 2 CHURCH OF CHRIST 4302 AVE C PROPOSED SINGLE FAMILY CONSTRUCTION 4302 AVENUE C | HLC REVIEW | NOT FOR CONSTRUCTION 0101 SITE 4300 4302 AVENUE C Church of Christ 3 4302 AVENUE C | HLC REVIEW | NOT FOR CONSTRUCTION 0202 AVENUE C NEIGHBORS 4301 Avenue C 4303 Avenue C 2-story dwelling at rear (contributing) 4311 Avenue C 4315 Avenue C 2nd story at rear Flat entry porch roof 4305 Avenue C 4316 Avenue C 4313 Avenue C 4 4302 AVENUE C | HLC REVIEW | NOT FOR CONSTRUCTION 0202 AVENUE C NEIGHBORS 4300 Avenue C (next door) 4314 Avenue C (next house down the street) 5 4302 AVENUE C | HLC REVIEW | NOT FOR CONSTRUCTION FLAT ENTRY PORCH ROOFS THROUGHOUT HYDE PARK LOCAL HISTORIC DISTRICT (CONTRIBUTING STRUCTURES) 4308 Avenue F 4212 Avenue F 4004 Avenue B 4204 Avenue F 4305 Avenue C (across street from project site) 6 4302 AVENUE C | HLC REVIEW | NOT FOR CONSTRUCTION 0303 PROPOSED DESIGN Site Plan Diagram - NTS PORTE- COCHERE PARKING LOT ACCESSORY STRUCTURE CARPORT DRIVE Y E L L A SHED ONE-STORY HOUSE P O O T S TWO-STORY HOUSE SIDEWALK D E R E V O C H C R O P 4302 C E U N E V A ONE-STORY HOUSE 4300 N 7 CHURCH OF CHRIST 4302 AVENUE C | HLC REVIEW | NOT FOR CONSTRUCTION 0303 PROPOSED DESIGN Street Elevation - NTS 4300 4302 4300 4302 PARKING LOT PARKING LOT 4314 4314 PROPERTY LINE PROPERTY LINE PROPERTY LINE PROPERTY LINE 8 4302 AVENUE C | HLC REVIEW | NOT FOR CONSTRUCTIONCHURCH OF CHRISTBEYONDCHURCH OF CHRISTBEYOND 0303 PROPOSED DESIGN Street Section - NTS HIGHEST ROOF RIDGE 26’-9” 4303 AVENUE C 60’ R.O.W. 4302 ALLEY CHURCH OF CHRIST PROPERTY LINE PROPERTY LINE 25’ SETBACK PROPERTY LINE 7’-0” PORCH DEPTH 6’-0” ACCESSORY STRUCTURE 22’-0” 2ND FLOOR HEIGHT TRANSITION 9 4302 AVENUE C | HLC REVIEW | NOT FOR CONSTRUCTION 0303 PROPOSED DESIGN Exterior Rendering - NTS The tallest massing is setback, minimizing the appearance of the second floor from the street. Fenestration proportion is in keeping with windows throughout the block. Casement windows are proposed to achieve a more modern style and differentiate with historic homes. Large hip roof similar to adjacent homes’ …

Scraped at: Sept. 23, 2025, 4:36 p.m.

09.2 - 4304 Avenue C - Applicant presentation original pdf

Thumbnail of the first page of the PDF
Page 1 of 17 pages

0101 SITE 1935 Sanborn Fire Insurance Map 4304 1 4304 AVENUE C | HLC REVIEW | NOT FOR CONSTRUCTION 0101 SITE 1977 Aerial Photo 2 CHURCH OF CHRIST 4304 AVE C PROPOSED SINGLE FAMILY CONSTRUCTION 4304 AVENUE C | HLC REVIEW | NOT FOR CONSTRUCTION 0101 SITE 4300 4304 AVENUE C Church of Christ 3 4304 AVENUE C | HLC REVIEW | NOT FOR CONSTRUCTION 0202 AVENUE C NEIGHBORS 4301 Avenue C 4303 Avenue C 2-story dwelling at rear (contributing) 4311 Avenue C 4315 Avenue C 2nd story at rear Flat entry porch roof 4305 Avenue C 4316 Avenue C 4313 Avenue C 4 4304 AVENUE C | HLC REVIEW | NOT FOR CONSTRUCTION 0202 AVENUE C NEIGHBORS 4300 Avenue C (next door) 4314 Avenue C (next house down the street) 5 4304 AVENUE C | HLC REVIEW | NOT FOR CONSTRUCTION FLAT ENTRY PORCH ROOFS THROUGHOUT HYDE PARK LOCAL HISTORIC DISTRICT (CONTRIBUTING STRUCTURES) 4308 Avenue F 4212 Avenue F 4004 Avenue B 4204 Avenue F 4305 Avenue C (across street from project site) 6 4304 AVENUE C | HLC REVIEW | NOT FOR CONSTRUCTION 0303 PROPOSED DESIGN Site Plan Diagram - NTS PORTE- COCHERE PARKING LOT ACCESSORY STRUCTURE CARPORT DRIVE Y E L L A SHED ONE-STORY HOUSE P O O T S TWO-STORY HOUSE SIDEWALK D E R E V O C H C R O P 4304 C E U N E V A ONE-STORY HOUSE 4300 N 7 CHURCH OF CHRIST 4304 AVENUE C | HLC REVIEW | NOT FOR CONSTRUCTION 0303 PROPOSED DESIGN Street Elevation - NTS 4300 4302 4300 4304 PARKING LOT PARKING LOT 4314 4314 PROPERTY LINE PROPERTY LINE PROPERTY LINE PROPERTY LINE 8 4304 AVENUE C | HLC REVIEW | NOT FOR CONSTRUCTIONCHURCH OF CHRISTBEYONDCHURCH OF CHRISTBEYOND 0303 PROPOSED DESIGN Street Section - NTS HIGHEST ROOF RIDGE 26’-9” 4303 AVENUE C 60’ R.O.W. 4304 ALLEY CHURCH OF CHRIST PROPERTY LINE PROPERTY LINE 25’ SETBACK PROPERTY LINE 7’-0” PORCH DEPTH 6’-0” ACCESSORY STRUCTURE 22’-0” 2ND FLOOR HEIGHT TRANSITION 9 4304 AVENUE C | HLC REVIEW | NOT FOR CONSTRUCTION 0303 PROPOSED DESIGN Exterior Rendering - NTS The tallest massing is setback, minimizing the appearance of the second floor from the street. Fenestration proportion is in keeping with windows throughout the block. Casement windows are proposed to achieve a more modern style and differentiate with historic homes. Large hip roof similar to adjacent homes’ …

Scraped at: Sept. 23, 2025, 4:38 p.m.

10.0 - 2514 Wooldridge Dr original pdf

Thumbnail of the first page of the PDF
Page 1 of 12 pages

HISTORIC LANDMARK COMMISSION PERMITS IN NATIONAL REGISTER HISTORIC DISTRICTS OCTOBER 1, 2025 PR-2025-088150, HR-2025-113285 OLD WEST AUSTIN NATIONAL REGISTER HISTORIC DISTRICT 2514 WOOLDRIDGE DRIVE 10 – 1 PROPOSAL Demolish a ca. 1938 building and construct a new building. PROJECT SPECIFICATIONS Construct a two-story residence with covered patio and guest house. The proposed buildings are constructed across two lots. The main building has an irregular plan, irregular roofline and fenestration, and stone veneer cladding. Its side-gabled elevation with stone-clad loggia faces the main streetscape, with full-height glazed fenestration beyond. The guest house, attached with a covered breezeway, is set back at an angle and features similar materials, detailing, and height as the main structure. ARCHITECTURE Two-story Georgian Revival house with curved portico, symmetrical shuttered windows, brick veneer, and a side-gabled roof with added dormers. RESEARCH The house at 2514 Wooldridge Drive was constructed in 1938 for Clarence McCullough and his family. McCullough, who began his career as assistant cashier at the Security Trust company, slowly rose in prominence as a banker. Eventually, he partnered with rancher and fellow real estate broker Dr. Joseph Koenig to develop the Violet Crown Heights subdivisions between 1946 and 1948, lending Koenig’s name to one of its major thoroughfares. In 1950 and 1951, they built the adjacent Violet Crown Shopping Center. “On the northwest corner of North Lamar and Brentwood Street,” notes Violet Crown historian and resident Susan Burneson, “the center was in the heart of Violet Crown Heights, Section 1.”1 In spring 2025, KUT journalist Juan Garcia and Burneson discussed the development of Austin’s most well-known midcentury center: The violet crown nickname [was] used in real estate marketing throughout the early 20th century, but few had the impact Dr. Joe Koenig and Clarence McCullough had when they started selling land in what used to be north Austin in the ‘40s…Right along [Violet Crown Heights], the pair built a shopping center in 1951. They called it the Violet Crown Shopping Center, which had a handful of violet-crown-themed businesses…immortalized as “The Emporium” in Richard Linklater’s coming-of-age film Dazed and Confused. 2 McCullough and Koenig maintained offices at the Violet Crown Shopping Center. Clarence McCullough’s son, who lived at 2514 Wooldridge Drive throughout his time at the University of Texas, later became the center’s manager.3 McCullough and his wife, Ruth, lived at the house on Wooldridge Drive until at least the 1980s. DESIGN STANDARDS The City of Austin’s …

Scraped at: Sept. 23, 2025, 4:40 p.m.

10.1 - 2514 Wooldridge - Drawings original pdf

Thumbnail of the first page of the PDF
Page 1 of 18 pages

I S N O S V E R I 2512 & 2514 WOODLRIDGE DRIVE ISSUE DATE SHEET NUMBER ARCHITECTURAL SHEET INDEX SHEET NAME G1.00 G1.01 G1.02 A1.00 A1.01 A1.02 A1.03 A1.04 A1.05 A1.06 A1.07 A2.01 A2.02 A2.03 A2.04 A2.05 A2.06 A3.01 A3.02 A3.03 A3.04 A3.05 GENERAL NOTES & SHEET INDEX IMPERVIOUS COVERAGE FLOOR AREA RATIO SITE PLAN FIRST FLOOR FRAMING PLAN SECOND FLOOR FRAMING PLAN BASEMENT FRAMING PLAN FIRST FLOOR PLAN SECOND FLOOR PLAN BASEMENT PLAN ROOF PLAN EXTERIOR ELEVATIONS EXTERIOR ELEVATIONS EXTERIOR ELEVATIONS EXTERIOR ELEVATIONS EXTERIOR ELEVATIONS EXTERIOR ELEVATIONS BUILDING SECTIONS BUILDING SECTIONS BUILDING SECTIONS BUILDING SECTIONS BUILDING SECTIONS BUILDING DATA ZONING: SF-2-NP 2512 WOOLDRIDGE DRIVE - N. 20FT OF LOT 6 & S. 35FT OF LOT 7 AND 2514 WOODLRIDGE DRIVE - LOT 8 & N. 15FT OF LOT 7 BLOCK 12 PEMBERTON HEIGHTS, SECTION 1 CITY OF AUSTIN, TRAVIS COUNTY BUILDING CODE INFORMATION: APPLICABLE CODES: 2024 INTERNATIONAL BUILDING CODE 2024 UNIFORM MECHANICAL CODE 2023 NATIONAL ELECTRICAL CODE 2024 INTERNATIONAL ENERGY CONSERVATION CODE UNIFIED DEVELOPMENT CODE PAPER SIZE ANSI D (22X34) l . d v B n o s r e f f e J . W 9 2 8 8 0 2 5 7 X T , s a l l a D 4 8 6 2 . 2 0 6 . 7 1 8 I E C T C A R P schematic design PROJECT NO. ISSUE DATE DRAWN BY: PLOT DATE: a I E C T C A R P 6 1 0 2 . I N O T C A L A G E L O T T C E J B U S E B L L I W T N E M E G N R F N I I Y N A D N A D E T B H O R P S I I I I I E C T C A R P F O T N E S N O C N E T T R W E H T T U O H T W G N W A R D S H T F O E S U R O I I I , I G N Y P O C , I N O T C U D O R P E R E H T . I E C T C A R P F O Y T R E P O R …

Scraped at: Sept. 23, 2025, 4:40 p.m.

10.2 - 2514 Wooldridge Dr - Applicant Presentation_Part1 original pdf

Thumbnail of the first page of the PDF
Page 1 of 12 pages

I E C T C A R P 6 1 0 2 © . I N O T C A L A G E L O T T C E J B U S E B L L I W T N E M E G N R F N I I Y N A D N A D E T B H O R P S I I I I I E C T C A R P F O T N E S N O C N E T T R W E H T T U O H T W G N W A R D S H T F O E S U R O I I I , I G N Y P O C , I N O T C U D O R P E R E H T . I E C T C A R P F O Y T R E P O R P E H T S I I N W O H S N G S E D E H T D N A G N W A R D S H T I I PAPER SIZE ANSI D (22X34) l . d v B n o s r e f f e J . W 9 2 8 8 0 2 5 7 X T , s a l l a D 4 8 6 2 . 2 0 6 . 7 1 8 I E C T C A R P WOOLDRIDGE RESIDENCE Wooldridge Dr. Austin, TX 78703 permit set PROJECT NO. ISSUE DATE 04 sept 2025 C0118 REV. DESCRIPTION DATE DRAWN BY: PLOT DATE: kristin 9/4/2025 RENDER 02 a R1.02 I S N O S V E R I 2512 & 2514 WOODLRIDGE DRIVE SHEET NUMBER ARCHITECTURAL SHEET INDEX SHEET NAME GENERAL NOTES & SHEET INDEX G1.00 IMPERVIOUS COVERAGE G1.01 FLOOR AREA RATIO G1.02 SITE PLAN A1.00 FIRST FLOOR FRAMING PLAN A1.01 SECOND FLOOR FRAMING PLAN A1.02 BASEMENT FRAMING PLAN A1.03 A1.04 FIRST FLOOR PLAN SECOND FLOOR PLAN A1.05 BASEMENT PLAN A1.06 ROOF PLAN A1.07 A2.01 EXTERIOR ELEVATIONS A2.02 EXTERIOR ELEVATIONS A2.03 EXTERIOR ELEVATIONS EXTERIOR ELEVATIONS A2.04 EXTERIOR ELEVATIONS A2.05 A2.06 EXTERIOR ELEVATIONS A5.01 WINDOW & DOOR SCHEDULES ISSUE DATE 09/04/2025 09/04/2025 09/04/2025 09/04/2025 09/04/2025 09/04/2025 09/04/2025 09/04/2025 09/04/2025 09/04/2025 09/04/2025 09/04/2025 09/04/2025 09/04/2025 09/04/2025 09/04/2025 09/04/2025 09/04/2025 BUILDING DATA ZONING: SF-2-NP 2512 WOOLDRIDGE …

Scraped at: Sept. 23, 2025, 4:44 p.m.

10.2 - 2514 Wooldridge Dr - Applicant Presentation_Part2 original pdf

Thumbnail of the first page of the PDF
Page 1 of 11 pages

2 A3.02 1 A2.03 2 A3.03 j 1 A3.04 1 A3.05 4 A2.05 q 1 - 2 2 1 guest bath 121 1 - 3 2 1 sauna 124 1 - 4 2 1 1 - 3 2 1 2 A2.06 p p p guest bedroom 120 p 1 - 0 2 1 cs 1 - 1 2 1 2 - 0 2 1 2 - 5 2 1 4 - 2 cs 2 1 spa bath 1 125 2 5 - 1 2 - 5 2 1 3 - 2 2 1 treatment 123 r r r r r 1 A3.02 1 A2.06 o pool spa 122 2 - 2 2 1 3 A2.05 2 - 1 2 1 1 A3.05 outdoor kitchen 302 outdoor living 301 2 - 3 0 1 103-4 3 - 3 0 1 stair 02 102 master closet 118 1 - 8 1 1 master bath 117 2 A3.05 3 - 7 1 1 safe room 119 1 - 9 1 1 1 - 5 1 1 study 115 i 2 A2.04 2 A2.03 h 1 A3.03 1 A2.04 d e g f k j 2 - 6 1 1 l master 116 m n 114-2 breakfast 114 114-1 117-2 1 - 7 1 1 cs 1 - 6 1 1 cs 112-1 family 112 12'-0" ceiling ht. 2 - 2 1 1 105-2 stair 01 107 107-1 9'-6" ceiling ht. 108-1 cs bsmt entry 108 110-1 kitchen 113 1 - 3 1 1 9'-6" ceiling ht. living 103 11'-6" ceiling ht. dining 104 main hall 105 10'-6" ceiling ht. 1 - 4 0 1 1 - 9 0 1 lounge 106 9'-6" ceiling ht. laundry 01 109 9'-6" ceiling ht. pantry 110 9'-6" ceiling ht. 111-1 outdoor kitchen 303 1 - 6 0 1 106-2 1 - 3 0 1 a a loggia 300 3 - 6 0 1 powder 01 101 9'-6" ceiling ht. scullery 111 9'-6" ceiling ht. 105-1 a a 100-1 front entry 100 b b 1 A2.05 2 A2.05 2 A2.01 1 A3.02 2 A3.02 1 A3.03 2 A3.03 1 A3.04 1 A2.01 I E C T C A R P 6 1 0 2 © . I N O T C A L A G E L O T T C E J B U S E B L L I W T N E M E G …

Scraped at: Sept. 23, 2025, 4:50 p.m.

10.3 - 2514 Wooldridge Dr - Brief for HLC original pdf

Thumbnail of the first page of the PDF
Page 1 of 1 page

Practice an architectural office 829 WEST JEFFERSON BOULEVARD, DALLAS, TEXAS, 75224 office@practicearchitecturaloffice.com 22 September 2025 RE: HLC Brief for 2512 and 2514 Wooldridge The home that has been designed at 2512 and 2514 Wooldridge Drive is a structure that will use a unified development agreement to create a single family residence that is aligned in scale and lot size of many of its neighbors in the district. The home uses antique tile shingle for the roof and echoes both the scale and materials of many of the historic contributing homes in the neighborhood. An arcade porch structure serves as the entrance of the home and creates a buffer between the street and more public program of the residence. Careful attention to the scale of the façade and the placement of the volumes allows the structure to sit well with the properties to the left and right. We achieved this by having a pronounced entry volume that protrudes from the façade while the remaining volumes recede into the lot. Floor to floor heights and overall structure height and mass are in keeping with the adjacent houses as well. The home seeks to continue the estate architecture of the district with a clear reference to historic form and materials while acknowledging the scale and proportion of the immediate neighbors. The home has been designed to meet the historic design standards and the zoning requirements to which it is subject. Sincerely, Patrick Craine RE: Interior design contract for 1319 Cedar Hill 1

Scraped at: Sept. 23, 2025, 4:55 p.m.

10.a - 2514 Wooldridge Drive - Public Communication original pdf

Thumbnail of the first page of the PDF
Page 1 of 2 pages

From: To: Cc: Subject: Date: Morgan Burnham Historic Preservation Office; Contreras, Kalan; McKnight, Kim John Burnham Objection to the demolition of 2514 Wooldridge Drive Tuesday, September 16, 2025 11:49:21 AM You don't often get email from Learn why this is important External Email - Exercise Caution To Whom It May Concern, We, the owners of 2505 Wooldridge Drive, strongly object to the application to demolish 2514 Wooldridge Drive. Like many of the beautiful homes on Wooldridge drive, 2514 Wooldridge was built in the 1930s and represents an excellent example of early Pemberton Heights architecture, worthy of preservation. Demolition of this historic home would be devastating to the architectural continuity and historic fabric of Wooldridge Drive. These homes are not just structures, they are artifacts of Central Austin’s early development and embody the charm, scale, and character that make our neighborhood unique. Preserving these homes safeguards the identity of Pemberton Heights and ensures that future generations can experience this rare and irreplaceable piece of Austin’s history. As owners and stewards 2505 Wooldridge drive, we spent 3 years remodeling our home to preserve the integrity of its colonial architecture and historical significance. I would hope and expect the owners of 2514 Wooldridge to do the same. We respectfully urge you to deny the application for demolition of 2514 Wooldridge Drive. Sincerely, Morgan Burnham CAUTION: This is an EXTERNAL email. Please use caution when clicking links or opening attachments. If you believe this to be a malicious or phishing email, please report it using the "Report Message" button in Outlook. For any additional questions or concerns, contact CSIRT at "cybersecurity@austintexas.gov".

Scraped at: Sept. 23, 2025, 4:55 p.m.

10.b - 2514 Wooldrige Dr - Public Communication original pdf

Thumbnail of the first page of the PDF
Page 1 of 1 page

MONROE GARRISON September 8, 2025 City of Austin Historic Landmark Commission Dear Commissioners, This letter is to express our support of the approval for the request of building permits for both the demolition of the existing residence located at 2514 Wooldridge Dr and a new construction permit for a single-family residence to be constructed at 2514 Wooldridge Dr to be joined with 2512 via a Unified Development Agreement currently in review with City of Austin DSD. The proposed residence will be a welcome addition to the neighborhood. Sincerely, Monroe Garrison Monroe Garrison 2516 Wooldridge Dr. Austin, TX 78703

Scraped at: Sept. 23, 2025, 4:55 p.m.

11.0 - 1709 Drake Ave original pdf

Thumbnail of the first page of the PDF
Page 1 of 6 pages

HISTORIC LANDMARK COMMISSION PERMITS IN NATIONAL REGISTER HISTORIC DISTRICTS OCTOBER 1, 2025 PR-2025-095243; PR-2025-095042; GF-2025-095661 TRAVIS HEIGHTS- FAIRVIEW PARK HISTORIC DISTRICT 1709 DRAKE AVENUE 11.0 – 1 PROPOSAL Demolish a ca. 1925 residence and construct a house. PROJECT SPECIFICATIONS 1) Demolish a single-story detached house, which is a contributing resource to the National Register historic district. 2) Construct a two-story single-family house in generally the same location. ARCHITECTURE The Craftsman bungalow located at 1709 Drake Avenue is a single-story house with a corner inset porch and front gabled roof. The street facing façade features two pairs of hung windows which appear to be original. There is a small roof covering the front of the porch, inset among the larger gables. This roof is supported by decorative brackets and some rafter tails are visible from the street. The house’s foundation is pier and beam, and it is overall in good condition. RESEARCH Upon construction at the end of the 1920s, the property went through a series of owners until at least the 1950s. Many of these residents were local craftspeople and service industry workers, and for a time the owners and operators of a local café lived at the address. Despite many of the owners only living at the address for a short time, several later lived in other parts of Travis Heights or South Austin before and after their stay at 1709 Drake Avenue. DESIGN STANDARDS The City of Austin’s Historic Design Standards (March 2021) are based on the Secretary of the Interior’s Standards for Rehabilitation and are used to evaluate projects in National Register districts. The following standards apply to the proposed project: Residential new construction 1. Location New construction is proposed in generally the same location as the existing building. 2. Orientation The two-story residence faces the street, similar to the existing building. 3. Scale, massing, and height A two-story residence replaces a one-story building as proposed. Per Standard 3.1, the height of new construction should respond to nearby contributing structures. There are some contributing structures that have two stories, but these are often later additions or set back from the front. However, the side gable construction at the second floor proposed in this application does minimize its overall visual height. 4. Proportions The proposed new construction generally keeps with the proportions of contributing properties on the block and in the district. Mentioned above, the second story is …

Scraped at: Sept. 23, 2025, 4:55 p.m.

11.1 - 1709 Drake Ave - Drawings & Photos original pdf

Thumbnail of the first page of the PDF
Page 1 of 11 pages

GENERAL TREE NOTES IMPACTS NO IMPACTS TO 1/2 CRITICAL ROOT ZONES (CRZ) (>4 INCHES) OR CANOPIES (>25%) OF PROTECTED TREES ALLOWED. THIS INCLUDES NEW UTILITIES AND NEW FENCE POSTS. UTILITY TRENCHING MUST AVOID THE 1/2 CRZ. IF THIS IS NOT POSSIBLE, THESE UTILITIES MUST BE AIR-EXCAVATED FOR THE TOP 30 INCHES BY A CERTIFIED ARBORIST TO AVOID CUTTING ANY ROOTS 1.5INCH+ DIAMETER. CONTRACTOR REQUIRED TO PROVIDE RECEIPTS AND PHOTOS AT THE FINAL TREE INSPECTION. ALL DEMOLITION IN THE 1/4 & 1/2 CRITICAL ROOT ZONES OF PROTECTED TREES MUST BE DONE WITH HAND TOOLS. PRUNING ANY PRUNING MUST HAPPEN ONLY ONCE DURING PROJECT, SHOULD TAKE PLACE PRIOR TO POTENTIAL CONSTRUCTION DAMAGE AND MUST BE PERFORMED BY A CERTIFIED ARBORIST. SAVE RECEIPTS FOR THE FINAL TREE INSPECTOR. CRITICAL ROOT ZONE (CRZ) FENCING (5 FOOT + TALL CHAIN LINK) PER AUSTIN’S ENVIRONMENTAL CRITERIA MANUAL SECTION 3.5.2 IS REQUIRED FOR DURATION OF THE PROJECT FOR ALL PROTECTED TREES THAT HAVE CRZS WITHIN THE LIMITS OF CONSTRUCTION (LOC). THE LOC INCLUDES FOOT OR EQUIPMENT ACCESS PATHWAYS AS WELL AS MATERIAL OR SPOILS PLACEMENT AREAS. MULCHING WHEN TREE FENCING CANNOT INCORPORATE THE ENTIRE AVAILABLE FULL CRZ, AN 8 INCH LAYER OF SHREDDED HARDWOOD MULCH WITHIN THE ENTIRE AVAILABLE ROOT ZONE IS REQUIRED FOR ALL PROTECTED TREES WHICH HAVE ANY DISTURBANCE (INCLUDING ACCESS PATHWAYS) INDICATED WITHIN THEIR CRZ. IF HEAVY EQUIPMENT WILL BE ROLLING OVER THE MULCHED ROOT ZONE, FILTER FABRIC BETWEEN SOIL AND MULCH IS REQUIRED. ON TOP OF THE MULCH, JOB SITE CAN LAY BREATHABLE MATS OR PLYWOOD SHEETS TO CREATE A WORK SURFACE THAT CAN BE EASILY ROLLED OVER. WHEN NATURAL GROUND COVER IS NOT PRESENT TO MAINTAIN SOIL MOISTURE DURING CONSTRUCTION, A 3 INCH LAYER OF SHREDDED HARDWOOD MULCH INSIDE CRZ FENCINGIS REQUIRED. DO NOT PILE MULCH DIRECTLY AGAINST THE TREE TRUNKS. PLANKING WHEN TREE FENCING CANNOT INCORPORATE THE ENTIRE AVAILABLE ½ CRZ, STRAPPING 2X4 OR THICKER LUMBER (6 FOOT TALL MIN) SECURELY AROUND TREE TRUNK AND ROOT FLARE. ACCESS ALL ACCESS TO THE BUILD SHALL BE AREA SHOWN ON THE ATTACHED SITE PLAN. ALL MATERIAL STAGING, SPOILS, CONCRETE WASHOUT, DUMPSTER AND PORTABLE TOILET LOCATIONS SHALL BE LOCATED WITH THE "STAGING AREA" SHOWN THE PLOT PLAN. PROPERTY LINE BLDG SETBACK [COA] PROPERTY LINE BLDG SETBACK [COA] EXISTING SHED POOL (18X10) EXISTING SHED (N19°00'E 49') 5'-0" PERMIT SET 7-29-2025 STUART SAMPLEY A R C H I T E C T P 512-771-8856 STUARTSAMPLEYARCHITECT.COM MEMBER …

Scraped at: Sept. 23, 2025, 4:55 p.m.

12.0 - 1907 Kenwood Ave original pdf

Thumbnail of the first page of the PDF
Page 1 of 6 pages

HISTORIC LANDMARK COMMISSION PERMITS IN NATIONAL REGISTER HISTORIC DISTRICTS OCTOBER 1, 2025 HR-2025-097033 TRAVIS HEIGHTS-FAIRVIEW PARK HISTORIC DISTRICT 1907 KENWOOD AVENUE 12.0 – 1 PROPOSAL Rehabilitate and restore a contributing property. PROJECT SPECIFICATIONS 1) Address lapsed safety requirements and code compliance at exterior, including reinforcing handrails and possible slab repairs. 2) Repair or replace boarded over window openings and construct a glazed curtain wall assembly at front entry. 3) Reconstruct roof and replace flat roof assembly with low slope, metal finish assembly. 4) Excavate at side basement window to allow for egress. 5) Repair exterior masonry as needed. ARCHITECTURE The house is located on a sloped site and appears as a single-story building from the street. At the rear of the property, a second, lower floor comes into view. It is clad on all sides by a buff or tan stone, with several metal framed windows either present or previously installed facing the street. Due to neglect, it is uncertain how many remain, and in what condition. The house features a flat roof that is in deteriorated condition. Structurally, the building appears to be in repairable condition. RESEARCH Originally constructed at or around 1948, the property saw several owners over its first few years. The most notable of these was Archie Francis and his wife, the owners of a local flooring store. It is unknown whether a longer-term owner took over the property after this, and in recent years the property has been neglected, and significant rehabilitation is required. DESIGN STANDARDS The City of Austin’s Historic Design Standards (March 2021) are based on the Secretary of the Interior’s Standards for Rehabilitation and are used to evaluate projects in National Register districts. The following standards apply to the proposed project: Repair and alterations 1. General standards Most exterior materials, specifically the stone cladding, is to be restored and retained. Some windows have been significantly damaged and require replacement. The flat roof is no longer draining properly, and a new, slightly sloped system, is proposed. This is expected to be minimally visible from the street. 2. Foundations The foundation, which serves as a basement wall, is to be retained. One window opening is expected to be expanded in order to allow for emergency egress, but it will be minimally invasive and out of sight of the right of way. 3. Roofs The current flat roof system is not providing adequate water shedding …

Scraped at: Sept. 23, 2025, 4:56 p.m.

13.0 - 1513 Murray Ln original pdf

Thumbnail of the first page of the PDF
Page 1 of 8 pages

HISTORIC LANDMARK COMMISSION PERMITS IN NATIONAL REGISTER HISTORIC DISTRICTS OCTOBER 1, 2025 PR-2025-103903 OLD WEST AUSTIN NATIONAL REGISTER HISTORIC DISTRICT 1513 MURRAY LANE 13 – 1 PROPOSAL Demolish a ca. 1927 contributing building. ARCHITECTURE Two-story stucco building with irregular roofline and fenestration. Its covered porch still displays Craftsman detailing, though the building has been altered. RESEARCH The house at 1513 Murray Lane, originally addressed as 1313 Murray Lane, was constructed around 1927. Though it was home to several prominent Austin businesspeople, including Edgar Perry, Jr. and Marjorie Wendlandt, most of its owners resided in the home for only a short time. Its longest-term owner-occupant, Mrs. Emilie Ebeling, was the daughter of New Braunfels mayor Adolph Giesecke. She moved to Austin after the death of her husband, Marble Falls banker and farmer Otto Ebeling. PROPERTY EVALUATION The property contributes to the Old West Austin National Register Historic District. Designation Criteria—Historic Landmark 1) The building is more than 50 years old. 2) The building appears to retain moderate to low integrity. Significant alterations were constructed between 2008 and 2012. 3) Properties must meet two criteria for landmark designation (LDC §25-2-352). Staff has evaluated the property and determined that it does not meet two criteria for landmark designation: a. Architecture. The building is a Craftsman bungalow but has been too altered to convey significance. b. Historical association. The property does not appear to have significant historical associations. c. Archaeology. The property was not evaluated for its potential to yield significant data concerning the human history or prehistory of the region. d. Community value. The property does not possess a unique location, physical characteristic, or significant feature that contributes to the character, image, or cultural identity of the city, the neighborhood, or a particular demographic group. e. Landscape feature. The property is not a significant natural or designed landscape with artistic, aesthetic, cultural, or historical value to the city. STAFF RECOMMENDATION Encourage rehabilitation and adaptive reuse, then relocation over demolition, but approve the demolition permit application upon completion of a City of Austin Documentation Package. Demolition permits in National Register Historic Districts may not be pulled until the Historic Landmark Commission has reviewed plans for new construction. LOCATION MAP 13 – 2 PROPERTY INFORMATION Photos 13 – 3 13 – 4 13 – 5 13 – 6 Occupancy History City Directory Research, September 2025 Demolition permit application, 2025 1959 1952 1944 1941 1939 1935 …

Scraped at: Sept. 23, 2025, 4:56 p.m.

14.0 - 1508 Pease Rd Unit A original pdf

Thumbnail of the first page of the PDF
Page 1 of 5 pages

HISTORIC LANDMARK COMMISSION PERMITS IN NATIONAL REGISTER HISTORIC DISTRICTS OCTOBER 1, 2025 PR-2025-108326; GF-2025-110165 OLD WEST AUSTIN HISTORIC DISTRICT 1508 PEASE ROAD, UNIT A 14.0 – 1 PROPOSAL Relocate a ca. 1937 house. ARCHITECTURE The house at 1508 Pease Road is a simple rectangle in plan with the front half of the house covered by a side gable roof. There are some Colonial Revival influences on the house, including a broken pediment with decorative urn molding above the front door and symmetrical front façade. The original siding has been covered or replaced with a vinyl-type material, and the windows have been replaced with vinyl units. Despite these alterations, the form of the house is intact. A concrete front porch, painted blue, is present in front of the house, which is slightly elevated above grade. RESEARCH When first constructed in the 1930s, the house was owned by William & Kay Ransom. William Ransom worked in the family’s drug store business as a salesman. After they moved, the house was occupied for over three decades by Matthew and Ethel Balagia. During this time, Matthew Balagia worked several jobs, including as a butcher and a clerk. In their ownership of the property, there was also a garage apartment at the rear of the house that was constructed and often housed students and workers. After her husband’s passing sometime after 1977, Ethel Balagia lived at the house for several more years. PROPERTY EVALUATION The property contributes to the Old West Austin National Register district. Designation Criteria—Historic Landmark 1) The building is more than 50 years old. 2) The building appears to retain moderate integrity. 3) Properties must meet two criteria for landmark designation (LDC §25-2-352). Staff has evaluated the property and determined that it does not meet two criteria: a. Architecture. The building is a good example of Colonial Revival residential architecture. b. Historical association. The property does not appear to have significant historical associations. c. Archaeology. The property was not evaluated for its potential to yield significant data concerning the human history or prehistory of the region. d. Community value. The property does not possess a unique location, physical characteristic, or significant feature that contributes to the character, image, or cultural identity of the city, the neighborhood, or a particular demographic group. e. Landscape feature. The property is not a significant natural or designed landscape with artistic, aesthetic, cultural, or historical value to …

Scraped at: Sept. 23, 2025, 4:56 p.m.

14.1 - 1508 Pease Rd Unit A - Photos & Drawings original pdf

Thumbnail of the first page of the PDF
Page 1 of 11 pages

1508 PEASE ROAD NOTES: 1.) SUBJECT TO APPLICABLE RESTRICTIVE COVENANTS RECORDED IN VOL. 441, PG. 71 (LOT 43), DEED RECORDS, TRAVIS COUNTY, TEXAS. 2.) SUBJECT TO BUILDING SETBACK LINES AND EASEMENT RIGHTS RECORDED IN VOL. 441, PG. 71, DEED RECORDS, TRAVIS COUNTY, TEXAS. 3.)P.P.E. = PIPELINE AND POLE LINE EASEMENT 1/2" FIP ) M ( 8' 4 . 0 6 ) P ( W 0' " 9 6 5'5 5 ° 4 1 S F F O 1' . 0 FIR 3/8 " 0' R/W) D (6 A O SE R PEA 3' . 0 3 . C N O C 45.7' CONC. . ) L 2 . B E 6' T O 3 N ( ) P ( 0' W 6 " ) 1 M 1'0 ( 8' 4 8 ° 4 . 9 1 5 S WM F F O 4' . 0 1/2" FIP ) M ( 8' 0 . 0 6 ) P ( W 0' " 6 5 4'2 0 ° 5 1 S FND. 60D SCALE 1" = 30' C SIR 5.5' 0.5' OFF LOT 66 1 L 0.8' ON 1/2" FIR 2.0' ON A/C . F . W . 2) E . P E . T P O 5' (N 30.4' FRAME GAR. W/ APT. F.F.G.=569.00' CONC. WOODSTEPS 1.2' ON 1/2" FIR LOT 67 1 N O 5' . 0 N O 2' 7' . . 0 0 LOT 44 4' . 8 1 C.L.F. CONC. S 74°56'23" E 155.80' (M) 155.8' (P) CONC. CONC. 8' . 1 1 5.0' 6' . 8 1 43.4' LOT 43 1 STORY FRAME RES. ON PIER & BEAM F.F.=572.00' 23.7' 0' . 2 10.8' 0' . 2 13.9' CONC.DECK W.F. 7' . 7 1 N 75°00'00" W 158.77' (M) 159.2' (P) B.R. (ASSUMED) 0.5' CONC. WALL LOT 42 N O 2' . 1 Elevation Information Elevations shown hereon are based on the following Information: Benchmark Info.: City of Austin Benchmark H-22-2001 ; Elevation = 469.27' NAVD 88; 2001 Adjustment TBM Description & Elevation= Being a set mag nail on the back of curb located on the West R.O.W. line of Pease Road approximately 19' from the southeast corner of said tract. (SHOWN HEREON); Elevation=570.75' PROPERTY DESCRIPTION LOT 43, ENFIELD C, ACCORDING TO THE MAP OR PLAT THEREOF, RECORDED IN VOLUME 3, PAGE 106, PLAT RECORDS, TRAVIS COUNTY, TEXAS. Date : ASC No. Buyer: Client G.F. No. …

Scraped at: Sept. 23, 2025, 4:56 p.m.

15.0 - 514 E Monroe St original pdf

Thumbnail of the first page of the PDF
Page 1 of 6 pages

HISTORIC LANDMARK COMMISSION PERMITS IN NATIONAL REGISTER HISTORIC DISTRICTS OCTOBER 1, 2025 HR-2025-112176; PR-2025-112882; GF-2025-113890 TRAVIS HEIGHTS-FAIRVIEW PARK HISTORIC DISTRICT 514 EAST MONROE STREET 15.0 – 1 PROPOSAL Demolish a ca. 1925 contributing building. ARCHITECTURE The property is an intact single story Craftsman bungalow that has been well maintained. The front corner features an inset porch, which has two front doors leading inside. A large wood frame picture window faces the street, and, along with other windows on the front and sides of the house, appear to be original or of compatible material. Due to the slightly sloped terrain, the house is elevated on piers and a concrete stair leads from the front walk to the porch. The main roof is front gabled and features brackets and attic vents at its peak. RESEARCH Upon construction sometime between 1925 and 1930, the house was first owned by Patrick and Lottie Parker. Patrick worked at a projectionist in Austin, and they moved away shortly after 1930. The house was then bought and occupied for the next 20 years by Roy and Lula Short. Mr. Short worked in managerial roles and was involved with the American Legion at this time. Together, they raised their family at the address before moving out of town in the early 1950s. PROPERTY EVALUATION The property contributes to the Travis Heights-Fairview Park National Register district. Designation Criteria—Historic Landmark 1) The building is more than 50 years old. 2) The building appears to retain high integrity. 3) Properties must meet two criteria for landmark designation (LDC §25-2-352). Staff has evaluated the property and determined that it does not meet two criteria: a. Architecture. The building is a good example of an intact Craftsman bungalow in the district. b. Historical association. The property does not appear to have significant historical associations. c. Archaeology. The property was not evaluated for its potential to yield significant data concerning the human history or prehistory of the region. d. Community value. The property does not possess a unique location, physical characteristic, or significant feature that contributes to the character, image, or cultural identity of the city, the neighborhood, or a particular demographic group. e. Landscape feature. The property is not a significant natural or designed landscape with artistic, aesthetic, cultural, or historical value to the city. STAFF RECOMMENDATION Consider utilizing the preservation bonus of the HOME initiative. Strongly encourage rehabilitation and adaptive reuse, then …

Scraped at: Sept. 23, 2025, 4:57 p.m.

15.1 - 514 E Monroe St - Photos original pdf

Thumbnail of the first page of the PDF
Page 1 of 10 pages

514 E MONROE ST - SOUTH FACADE design LLCCHIOCOEXISTING HOUSE PHOTOS | 9 / 03 / 2025 514 E MONROE ST - EAST FACADE design LLCCHIOCOEXISTING HOUSE PHOTOS | 9 / 03 / 2025 514 E MONROE ST - EAST FACADE design LLCCHIOCOEXISTING HOUSE PHOTOS | 9 / 03 / 2025 514 E MONROE ST - NORTH FACADE design LLCCHIOCOEXISTING HOUSE PHOTOS | 9 / 03 / 2025 514 E MONROE ST - WEST FACADE design LLCCHIOCOEXISTING HOUSE PHOTOS | 9 / 03 / 2025 1506 EAST SIDE DR - EAST FACADE design LLCCHIOCOEXISTING HOUSE PHOTOS | 9 / 03 / 2025 1506 EAST SIDE DR - NORTH FACADE design LLCCHIOCOEXISTING HOUSE PHOTOS | 9 / 03 / 2025 1506 EAST SIDE DR - SOUTH FACADE design LLCCHIOCOEXISTING HOUSE PHOTOS | 9 / 03 / 2025 1506 EAST SIDE DR - WEST FACADE design LLCCHIOCOEXISTING HOUSE PHOTOS | 9 / 03 / 2025

Scraped at: Sept. 23, 2025, 4:57 p.m.

16.0 - 702 Winflo St original pdf

Thumbnail of the first page of the PDF
Page 1 of 5 pages

HISTORIC LANDMARK COMMISSION PERMITS IN NATIONAL REGISTER HISTORIC DISTRICTS OCTOBER 1, 2025 PR-2025-105857; GF-2025-112839 WEST LINE HISTORIC DISTRICT 702 WINFLO DRIVE 16.0 – 1 PROPOSAL Demolish a ca. 1955 house. ARCHITECTURE This single-story house is a 1950s ranch house with a front facing gable at one side covering the front entry. An attached garage at the other end of the house leads to the front porch by a walkway and crosses in front of a large picture window. The house is clad in wide horizontal wood siding, with some decorative wood boards at the gable end. The form is low and horizontal, common for ranch houses of the era, and is a good example of the style. RESEARCH The house was owned and occupied by members of the Hamby family, who were related to the owners of the Hoffbrau, and worked as managers and bartenders in the 1950s. The first of this family to occupy the property were Robert & Mary Hamby, with Tom Hamby listed as owner by the 1960s. By the 1970s, Robert and Tom were listed as owners of the Hoffbrau in local papers. PROPERTY EVALUATION The property contributes to the West Line National Register district. Designation Criteria—Historic Landmark 1) The building is more than 50 years old. 2) The building appears to retain moderate-to-high integrity. 3) Properties must meet two criteria for landmark designation (LDC §25-2-352). Staff has evaluated the property and determined that it does not meet two criteria: a. Architecture. The building is a good and intact example of a mid-century ranch-style house. b. Historical association. The property does not appear to have significant historical associations. c. Archaeology. The property was not evaluated for its potential to yield significant data concerning the human history or prehistory of the region. d. Community value. The property does not possess a unique location, physical characteristic, or significant feature that contributes to the character, image, or cultural identity of the city, the neighborhood, or a particular demographic group. e. Landscape feature. The property is not a significant natural or designed landscape with artistic, aesthetic, cultural, or historical value to the city. STAFF RECOMMENDATION Strongly encourage rehabilitation and adaptive reuse, then relocation over demolition, but release the permit upon completion of a City of Austin Documentation Package. Demolition permits in National Register Historic Districts may not be pulled until the Historic Landmark Commission has reviewed plans for new construction …

Scraped at: Sept. 23, 2025, 4:57 p.m.

16.a - 702 Winflo - public comments original pdf

Thumbnail of the first page of the PDF
Page 1 of 5 pages

From: To: Cc: Subject: Date: Wagner, Sofia Lukes, Austin; Re: 702 Winflo Drive - 2025 - 105857 PR Friday, September 19, 2025 1:34:56 PM External Email - Exercise Caution Thank you for the information. However, neighbors are feeling the sign being down is improper notification in addition to the fact they have not yet received notification by mail leaving very little time to understand and respond to the need for demolition of a contributing structure. The OWANA Zoning Committee also has concerns that questions regarding the case will not be answered until one week before the scheduled hearing. On Sep 19, 2025, at 10:55(cid:3031)AM, Wagner, Sofia <Sofia.Wagner@austintexas.gov> wrote: Hi Thank you for reaching out and for letting us know about the sign. As long as we have a photo showing that it was initially posted, the notification requirement is met. We unfortunately don’t have a way to require the property owner to maintain the sign after it’s placed, as the Code only specifies that it be posted. Below is the applicant’s contact information: <image003.png> Best regards, <image001.png> Sofia Wagner (she/her) Planner III Planning Department 512-974-7769 sofia.wagner@austintexas.gov From: Sent: Thursday, September 18, 2025 12:24 AM To: Wagner, Sofia <Sofia.Wagner@austintexas.gov>; Lukes, Austin <Austin.Lukes@austintexas.gov> Cc: ' Subject: RE: 702 Winflo Drive - 2025 - 105857 PR External Email - Exercise Caution Hi Sofia, Thank you for the update. I wanted to let you know that the sign in the front yard of 702 Winflo has been down since Saturday. Is maintaining the sign on the property a required part of the notification process? Also, do you have contact information for the applicant? The OWANA Zoning Committee would like to invite them to next week’s meeting in advance of the HLC hearing on October 1, particularly given that the property is a contributing structure within the West Line National Historic District. Several nearby neighbors have expressed concern about the proposed demolition, as the house appears to be in good condition, with updates made in the past 10 years, and is consistent in scale and massing with other homes on the street. I’m also looking forward to hearing from Austin when he returns next week to learn what additional context he may have about the case. Best regards, From: Wagner, Sofia [mailto:Sofia.Wagner@austintexas.gov] Sent: Wednesday, September 17, 2025 8:14 AM To: Cc: Subject: RE: 702 Winflo Drive - 2025 - 105857 PR ; Lukes, Austin Good …

Scraped at: Sept. 23, 2025, 4:57 p.m.

17.0 - 2300 E 2nd St - Santa Rita Courts original pdf

Thumbnail of the first page of the PDF
Page 1 of 6 pages

HISTORIC LANDMARK COMMISSION PERMITS IN NATIONAL REGISTER HISTORIC DISTRICTS OCTOBER 1, 2025 SP-2025-082872; HR-2025-115686 SANTA RITA COURTS NATIONAL REGISTER HISTORIC DISTRICT 2300 EAST 2ND STREET 17 – 1 PROPOSAL Restore original buildings and demolish non-original buildings. PROJECT SPECIFICATIONS 1) Demolish 16 non-original buildings at the center and west of the site during Phases One and Two (see backup). Construct three new multifamily apartment buildings in their place (Buildings 1-3). 2) Restore 11 original buildings in Phase Three area (see backup). a. Refinish existing pipe columns on all buildings. Refinish pipe patio rails on Buildings 1, 2, 3, 4, 6, 7, 9, 10, and 11. Refinish metal foundation vents. b. Deconstruct and remove water heater closets on all buildings. Deconstruct and remove all existing exterior doors and hardware, then restore and reuse door frames. Deconstruct and remove all existing windows and trim. Remove all exterior lighting and electrical fixtures. Deconstruct and remove all existing shingle roofs, substrate, insulation, gabled roof framing, and all roof elements, retaining and protecting existing concrete roof slabs. Deconstruct and remove all existing fascia, then prep for scupper attachment. Remove all existing paint on the exterior walls. Remove existing front ramp on Buildings 1. Remove existing front railings on Buildings 1, 2, 4, 7, and 11. Remove exterior stairs on Buildings 3 and 9. c. Replacement elements: install new metal box gutters with scuppers. Install new flat TPO roof on all buildings, to match historic rooflines. Install new doors and screens to match historic entries on all buildings, including non- operable doors and screens where needed to fill existing historic doorways. Install new operable windows in existing openings to match historic windows. Install non-operable multilight spandrels in existing openings where needed to match historic photos. ARCHITECTURE Existing buildings are one story, with painted brick veneer cladding and side-gabled shingle roofs with hipped front entry porches supported by pipe columns. All buildings have replacement windows and doors and added exterior water heater closets. In addition to the buildings’ forms, their arrangement around a central courtyard is an essential site feature, as noted in the National Register district nomination: Eight buildings extend in four parallel rows aligned north-south to allow all units to receive morning or afternoon light. Three structures stand perpendicular to the other eight, with two residential structures located along Pedemales Street, and one building along Corta Street. Courtyards, approximately seventy-five feet wide, separate the buildings, and …

Scraped at: Sept. 23, 2025, 4:57 p.m.

17.1 - 2300 E 2nd-2341 Corta St - elevations original pdf

Thumbnail of the first page of the PDF
Page 1 of 20 pages

PATHWAYS AT SANTA RITA COURTS ISSUED FOR: SCHEMATIC DESIGN PROJECT DIRECTORY LANDSCAPE: DWG 912B Congress Avenue Austin, Texas 78701 512.320.0668 CONTACT: Ethan Primm OWNER: Carleton Company 1700 E 3rd Street Austin, Texas 78702 972.980.9810 CONTACT: Will Henderson ARCHITECT: Nelsen Partners, Inc. 905 Congress Ave. Austin, Texas 78701 512.531.7350 CONTACT: Matt Beaton @ . Urban Foundry Architecture 1306 Rio Grande Street Austin, Texas 78701 512.294.2555 CONTACT: Jeff Needles @ . CIVIL: Dunaway 5707 Southwest Parkway Building 2, Suite 250 Austin, Texas 78735 512.306.8252 CONTACT: J Segura STRUCTURAL ENGINEER: Connect Structural 9330 LBJ Freeway #1000 Dallas, Texas 75234 214.221.2220 CONTACT: Nathan Cole MEP ENGINEER: PHA Consulting Engineers 1130 E. Arapaho Rd. Suite 300 Richardson, Texas 75081 972.235.2192 CONTACT: Randy Visser PRELIMINARY: NOT FOR REGULATORY APPROVAL, PERMITTING, OR CONSTRUCTION Urban Foundry Architecture 1306 Rio Grande Street Austin, Texas 78701 p: 512 . 294 . 2555 www.urbanfoundryarchitecture.com 2 0 7 8 7 X T , I N T S U A i s e n a p m o C n o e l r a C t . T S D N 2 E 0 0 3 2 I S T R U O C A T R A T N A S T A S Y A W H T A P Date 8/1/2025 Revisions Drawings and written material appearing herein constitute original and unpublished work of the architect and may not be duplicated, used, or disclosed without written consent of the architect. © 2023 NELSEN PARTNERS, INC. UFA Commission No.: 100995 G001 COVER SANTA RITA ST UNIT 1A UNIT 1A UNIT 1A UNIT 2B UNIT 2A-A UNIT 2B DN 2 T T 1 T S D S D T 4 5 UNIT 2D UNIT 2D UNIT 1B UNIT 1B UNIT 1C-A 6 UNIT 1D-A UNIT 1E UNIT 2D UNIT 2D UNIT 1B UNIT 1B 7 T 8 T T 11 UNIT 1A UNIT 1A UNIT 1A UNIT 1E T 10 UNIT 1D UNIT 1C S D T E T E E R E T R S T S S S E E L L A A N N R R E D E E D P E P UNIT 2C 3 UNIT 2C UNIT 2A T 9 UNIT 2A CONCRETE CURB & 1 SITE PLAN OVERALL E 2ND STREET S D SITE BUILDING PLAN LEGEND 1 BEDROOM UNIT 2 BEDROOM UNIT 16 ONE-BEDROOM UNITS 11 TWO-BEDROOM UNITS. 11 EXISTING HISTORIC BUILDINGS …

Scraped at: Sept. 23, 2025, 4:57 p.m.

17.2 - 2300 E 2nd-2341 Corta St - site plan original pdf

Thumbnail of the first page of the PDF
Page 1 of 25 pages

I N O I T P R C S E S D N O I S I V E R E T A D . O N S T A L P D R O C E R 5 3 7 8 7 s a x e T , n i t s u A 0 5 2 e t i u S 2 . g d B l y w k P t s e w h t u o S 7 0 7 5 2 5 2 8 . 6 0 3 . 2 1 5 : l e T ) 4 1 1 1 - F . G E R X T ( S T R U O C A T I R A T N A S T A S Y A W H T A P T S D N 2 E 0 0 3 2 2 0 7 8 7 X T , N I T S U A JOB NO. DESIGNED BY: DRAWN BY: CHECKED BY: DATE: SHEET: B008826.003 GM, JT, BN JT, BN GM 8142025 2 OF 79 SP-2025-0224C.SH l l T T A A L L P P L L A A N N I I F F \ \ s s t t e e e e h h S S t t o o P P \ \ D D A A C C \ \ l l i i v v i i C C \ \ 3 3 0 0 0 0 \ \ 6 6 2 2 8 8 8 8 \ \ 0 0 0 0 8 8 8 8 0 0 0 0 \ \ : : P P : : H H T T A A P P L L L L U U F F 5 5 2 2 0 0 2 2 , , 4 4 1 1 t t s s u u g g u u A A , , y y a a d d s s r r u u h h T T o o n n i i v v e e r r T T b b o o c c a a J J : : : : Y Y B B D D E E T T T T O O L L P P N N O O D D E …

Scraped at: Sept. 23, 2025, 5:01 p.m.

18.0 - 902 W Johanna St original pdf

Thumbnail of the first page of the PDF
Page 1 of 5 pages

HISTORIC LANDMARK COMMISSION DEMOLITION AND RELOCATION PERMITS OCTOBER 1, 2025 PR-2025-086196; GF-2025-094899 902 WEST JOHANNA STREET 18.0 – 1 PROPOSAL Demolish a ca. 1935 house. ARCHITECTURE The Craftsman-inspired bungalow located at 902 West Johanna Street is currently a side-by-side duplex with a shared front porch. This porch stretches across the middle half of the front elevation and is covered by a front-facing gable roof, which is inset within a gable covering the main house. Decorative brackets are present at both gables, along with latticework attic vents. The walls are clad in narrow teardrop siding, and the house is elevated on piers. A 1948 addition is present at the rear of the property. RESEARCH It isn’t known whether the house was originally constructed as a duplex, or if it was converted to such an orientation shortly after being built. From its construction around 1935 until the mid-1950s, the house was owned by Cecil & Daisy Naven, who had moved to Austin from Wichita Falls around the start of the Great Depression. Cecil Naven worked for several years at Southwestern Bell before being listed in city directories as a mechanic and repairman. During this time, they periodically had renters living at the address, presumably in the other half of the house. A work permit for a rear addition was filed with the city in 1948. PROPERTY EVALUATION The 2015 Bouldin Creek historic resource survey lists the property as a medium priority. Designation Criteria—Historic Landmark 1) The building is more than 50 years old. 2) The building appears to retain high integrity. 3) Properties must meet two criteria for landmark designation (LDC §25-2-352). Staff has evaluated the property and determined that it does not meet two criteria: a. Architecture. The building is a good example of Craftsman bungalow architecture. b. Historical association. The property does not appear to have significant historical associations. c. Archaeology. The property was not evaluated for its potential to yield significant data concerning the human history or prehistory of the region. d. Community value. The property does not possess a unique location, physical characteristic, or significant feature that contributes to the character, image, or cultural identity of the city, the neighborhood, or a particular demographic group. e. Landscape feature. The property is not a significant natural or designed landscape with artistic, aesthetic, cultural, or historical value to the city. COMMITTEE FEEDBACK Consider alternatives to demolition that may keep the …

Scraped at: Sept. 23, 2025, 5:04 p.m.

18.2 - 902 W Johanna St - Applicant Letter original pdf

Thumbnail of the first page of the PDF
Page 1 of 1 page

City of Austin Historic Landmark Commission Wednesday, October 1, 2025 - 6:00 P.M. City Hall – Council Chambers 301 W. 2nd Street Austin, TX 78701 RE: Review Case No. GF 2025-094899 902 W Johanna St, Austin, TX 78704 To whom it may concern, Our client, Frances Nahas (FEN Holdings LLC), has reviewed the options of rehabilitation, adaptive reuse, material deconstruction, relocation and maintaining the front façade as encouraged by the Architectural Review Committee and, due to the existing structural state of the house and the surgical nature of these approaches, determined them to be cost prohibitive and in the case of relocation, infeasible. We, therefore, on behalf of our client, and after careful review, thought, and with respect for the encouragement of the ARC, we propose to move forward with demolition of the existing home at 902 W Johanna St, Austin, TX 78704 in preparation for a future new construction home. Regards, Point B Design Group Bob Allsop, Senior Associate Rachel Smith, Associate Principal CC: Bob Allsop, bob@pbdesigngroup.com Rachel Smith, rachel@pbdesigngroup.com Frances Nahas frances_nahas@uncbusiness.net Point B Design Group | 1009 W 6th St Austin TX 78703 | 512-568-9803

Scraped at: Sept. 23, 2025, 5:04 p.m.

19.0 - 2026 Historic Landmark Commission Meeting Schedule original pdf

Thumbnail of the first page of the PDF
Page 1 of 1 page

Historic Landmark Commission 2026 Meeting Schedule The current schedule for HLC meetings is to be held on the first Wednesday of every month, at 6:00 PM. Location of meetings to be scheduled by the City Clerk’s Office after HLC approval of proposed meeting schedule. The proposed 2026 HLC meeting schedule is as follows: Wednesday, January 7th, 2025, at 6:00PM Wednesday, February 4th, 2025, at 6:00PM Wednesday, March 4th, 2025, at 6:00PM Wednesday, April 1st, 2025, at 6:00PM Wednesday, May 6th, 2025, at 6:00PM Wednesday, June 3rd, 2025, at 6:00PM Wednesday, July 1st, 2025, at 6:00PM Wednesday, August 5th, 2025, at 6:00PM Wednesday, September 2nd, 2025, at 6:00PM Wednesday, October 7th, 2025, at 6:00PM Wednesday, November 4th, 2025, at 6:00PM Wednesday, December 2nd, 2025, at 6:00PM

Scraped at: Sept. 23, 2025, 5:04 p.m.

02.0 - Rally Austin Presentation original pdf

Thumbnail of the first page of the PDF
Page 1 of 20 pages

Austin City Council Members and City Manager Broadnax, February 14, 2025 On behalf of Rally Austin, I am proud to present the Fiscal Year 2024 Annual Report, a testament to our shared vision for an inclusive, culturally vibrant, and economically resilient Austin. This report highlights our collective accomplishments and demonstrates the positive momentum we’ve achieved together to advance equitable development while preserving the unique cultural identity of our city. This year, Rally Austin made significant strides, including:  Surpassing fundraising goals by 22% and securing $428,000 in investments and philanthropic contributions, empowering us to expand our impact across the community.  Cultivating a $152.2 million real estate portfolio, projecting 277,500 square feet of future affordable housing, cultural spaces, and shared-use areas designed to uplift local communities.  Supporting five creative and iconic venues, including the Museum of Human Achievement with $2.5 million in investments, reinforcing Austin's reputation as a hub for creative expression and innovation.  Advancing transformative development projects in the African American Cultural Heritage District, including Blocks 16 and 18, which will provide affordable housing, cultural hubs, and economic opportunities for the community. Looking ahead, Rally recognizes that the journey to create an equitable and thriving Austin is far from over. The demand for affordable creative and cultural spaces continues to grow, as does the need to address disparities across historically underserved neighborhoods. Rally Austin is committed to partnering with City staff to identify and prioritize new opportunities that will bring meaningful and measurable benefits to all communities. Additionally, our team is eager to collaborate with the City to:  Support the evaluation and implementation of large-scale catalytic projects that align with Austin’s growth priorities and deliver sustainable economic benefits.  Expand our efforts to preserve and develop affordable cultural spaces, ensuring that Austin’s creative identity remains accessible and inclusive.  Extend equitable development initiatives to other underserved areas, using the success of Blocks 16 and 18 as a model for future projects.  Explore innovative funding strategies and partnerships that diversify resources and reduce reliance on City funding, ensuring a regional approach and the long-term sustainability of our mission. Rally Austin remains steadfast in its mission to unite diverse voices, foster collaboration, and create a culturally resilient Austin. Together, we can preserve what makes Austin unique while shaping a future where all communities have the opportunity to thrive. Thank you for your continued support and partnership. We …

Scraped at: Sept. 26, 2025, 10:46 a.m.

03.0 - Briefing on the I-35 Interpretative Plan Presentation original pdf

Thumbnail of the first page of the PDF
Page 1 of 10 pages

I-35 Capital Express Central Project Interpretive Plan Framework Rebekah Dobrasko Cultural Resources Section Director October 1, 2025 1 Project History & Context Location: 8-mile stretch of I-35 through central Austin (US 290 East to SH 71/Ben White Blvd) Purpose: Improve safety, reduce congestion, and enhance mobility for all users Improvements: Reconstructed cross-street bridges, new pedestrian/bicycle paths, and operational upgrades Historical Context: • I-35 built along East Avenue, a historic dividing line in Austin • Construction began in 1946; opened in 1962 • Shaped land use and reinforced social divides Current Phase: • Environmental clearance received (August 2023) • Final design and early construction underway Cultural Resource Mitigation: • Section 106 of the National Historic Preservation Act triggered • Interpretive Framework under development to acknowledge and share corridor history Connecting you with Texas. 2 Connecting you with Texas. What is an Interpretive Framework? • A planning tool that guides how stories about a place, project, or corridor are told • Supports inclusive, community-informed storytelling rooted in historical and cultural context • Provides a shared foundation for partner organizations to develop interpretive efforts 3 Connecting you with Texas. Purpose of the Interpretive Framework Mitigation Commitment: Developed as a cultural resource mitigation measure per the FEIS and Programmatic Agreement with the State Historic Preservation Office Geographic Focus: Covers I-35 corridor from Lady Bird Lake to Airport Boulevard Primary Goals: • Document and share the corridor’s historical and cultural narratives • Acknowledge impacts of past infrastructure decisions, especially on East Austin communities • Support community-informed storytelling Framework Components: • Unifying vision for interpretation • Summary of existing studies and efforts • Defined audiences for future content • Key themes shaped by community and agency input Intended Use: Serves as a guide for partner organizations to develop their own interpretive projects reflecting Austin’s cultural and natural history. 4 Connecting you with Texas. Working Group Development Purpose of the Working Group: • The Interpretive Framework is a mitigation-driven process that requires targeted, informed input—not general public feedback • The Working Group brings together key voices to ensure the Framework is accurate, meaningful, and historically grounded How Participants Were Identified: • Based on stakeholder relationships built during the Section 106 Review Process and • environmental compliance Includes representatives from consulting parties, community organizations, historical and cultural groups, and subject-matter experts in natural, social, and cultural topics 5 Connecting you with Texas. Importance of Stakeholder Involvement • Core …

Scraped at: Sept. 26, 2025, 10:46 a.m.

12.1 - 1907 Kenwood Ave - Photos & Drawings original pdf

Thumbnail of the first page of the PDF
Page 1 of 22 pages

i m o c . n g s e d m e k k o . w w w X T , n i t s u A | 2 2 2 9 . 4 9 8 . 2 1 5 4 0 7 8 7 X T , I N T S U A E V A D O O W N E K 7 0 9 1 I I N O T D D A & L E D O M E R L A T N E D S E R I I 1 FRONT VIEW 1" = 1'-0" 2 REAR VIEW 1" = 1'-0" NO. REVISION DATE Building Designer CLC ISSUE DATE 6/25/25 3 LEFT VIEW 1" = 1'-0" G:\Shared drives\Okkem Team Drive\_PROJECTS\2___ACTIVE PROJECTS\Marcus Flores__1907 Kenwood Ave - Renovation\BIM\1907 Kenwood Ave - Renovation - Design Set.rvt 4 RIGHT VIEW 1" = 1'-0" 1 0 9 A 7/7/2025 9:14:21 AM I I G N T S X E F O S O T O H P i m o c . n g s e d m e k k o . w w w X T , n i t s u A | 2 2 2 9 . 4 9 8 . 2 1 5 4 0 7 8 7 X T , I N T S U A E V A D O O W N E K 7 0 9 1 I I N O T D D A & L E D O M E R L A T N E D S E R I I 1 REAR LEFT VIEW 1" = 1'-0" 2 REAR RIGHT VIEW 1" = 1'-0" NO. REVISION DATE Building Designer CLC ISSUE DATE 6/25/25 G:\Shared drives\Okkem Team Drive\_PROJECTS\2___ACTIVE PROJECTS\Marcus Flores__1907 Kenwood Ave - Renovation\BIM\1907 Kenwood Ave - Renovation - Design Set.rvt 2 0 9 A 7/7/2025 9:14:22 AM I I G N T S X E F O S O T O H P RESIDENTIAL REMODEL & ADDITION G:\Shared drives\Okkem Team Drive\_PROJECTS\2___ACTIVE PROJECTS\Marcus Flores__1907 Kenwood Ave - Renovation\BIM\1907 Kenwood Ave - Renovation - Design Set.rvt LOCATION MAP APPLICABLE CODES & REGULATIONS SHEET LIST GENERAL NOTES CONSTRUCTION NOTES 1. ALL WORK SHALL BE DONE IN ACCORDANCE WITH ALL APPLICABLE CODES AND REGULATIONS. 1. REFER TO STRUCTURAL DRAWINGS FOR GENERAL NOTES REGARDING FRAMING REQUIREMENTS. 2. THESE GENERAL NOTES SHALL APPLY TO ALL WORK AND ALL DRAWINGS IN THIS …

Scraped at: Sept. 26, 2025, 10:46 a.m.

12.2 -1907 Kenwood Ave - Updated Permit Set - Compressed original pdf

Thumbnail of the first page of the PDF
Page 1 of 17 pages

RESIDENTIAL REMODEL & ADDITION G:\Shared drives\Okkem Team Drive\_PROJECTS\2___ACTIVE PROJECTS\Marcus Flores__1907 Kenwood Ave - Renovation\BIM\1907 Kenwood Ave - Renovation - Design Set.rvt LOCATION MAP APPLICABLE CODES & REGULATIONS SHEET LIST GENERAL NOTES CONSTRUCTION NOTES 1. ALL WORK SHALL BE DONE IN ACCORDANCE WITH ALL APPLICABLE CODES AND REGULATIONS. 1. REFER TO STRUCTURAL DRAWINGS FOR GENERAL NOTES REGARDING FRAMING REQUIREMENTS. 2. THESE GENERAL NOTES SHALL APPLY TO ALL WORK AND ALL DRAWINGS IN THIS SET AND SHALL EXTEND TO ANY CHANGES, EXTRAS, OR ADDITIONS AGREED TO DURING THE COURSE OF THE WORK. 3. ALL CONSTRUCTION SHALL CONFORM TO CONSTRUCTION AS REQUIRED BY APPLICABLE CODES. 4. ALL FEES, TAXES, PERMITS, APPLICATIONS AND CERTIFICATIONS OF INSPECTION AND OCCUPANCY, AND THE FILING OF ALL WORK WITH GOVERNMENT AGENCIES SHALL BE THE RESPONSIBILITY OF THE GENERAL CONTRACTOR UNLESS NOTED OTHERWISE. 5. THE CONTRACTOR SHALL VISIT AND INSPECT THE PREMISES TO VERIFY ALL DIMENSIONS AND CONDITIONS PRIOR TO THE PROPOSAL SUBMISSION. ANY AND ALL DISCREPANCIES SHALL BE REPORTED TO THE DESIGNER PRIOR TO THE PROPOSAL SUBMISSION, OTHERWISE, THE CONTRACTOR SHALL BEAR ALL COSTS TO COMPLETE THE WORK AS INTENDED ON THE DRAWINGS. 6. IF ANY CONDITION ARISES THAT WOULD IMPEDE THE PROGRESS OR THE INTENT OF THE WORK, THE G.C. IS TO NOTIFY THE DESIGNER IMMEDIATELY. THE G.C. WILL FULLY EXPLAIN THE PROBLEM AND ALL RELEVANT TIME CONSTRAINTS. 7. CONTRACTOR SHALL CLARIFY WITH DESIGNER ANY CONFLICTS BETWEEN THE CONSTRUCTION DOCUMENTS AND EXISTING CONDITIONS OR BETWEEN THE CONSTRUCTION DOCUMENTS THEMSELVES, PRIOR TO PROPOSAL SUBMISSION. 8. DO NOT SCALE DRAWINGS. DIMENSIONS SHALL GOVERN, DETAILS SHALL GOVERN OVER PLANS AND ELEVATIONS. LARGE SCALE DETAILS SHALL GOVERN OVER SMALL SCALE DETAILS. PLEASE NOTIFY DESIGNER IMMEDIATELY FOR A RESOLUTION OF ANY DISCREPANCY THAT MAY EXIST IN THE DRAWINGS BEFORE PROCEEDING WITH THE WORK. 9. SUBSTITUTIONS, REVISIONS, OR CHANGES MUST HAVE PRIOR APPROVAL OF THE DESIGNER. 2. ALL PANEL WOOD USED FOR STRUCTURAL ELEMENTS SHALL BE IDENTIFIED AS TO GRADE MARK AND SHALL BE OF AN IDENTIFYING MARK OF AN APPROVED GRADING BUREAU OR AGENCY, AFFIXED PRIOR TO DELIVERY. 3. ADJUST ALL FRAMING CONNECTORS AND THE MEMBERS THEY CONNECT, TO PROVIDE LEVEL, TRUE, PLUMB, ALIGNED, SMOOTH AND OTHERWISE UNIFORM SUBSTRATE SURFACES TO WHICH TO APPLY TO ALL FINISHES 4. ALL VENT PIPES SHALL BE CONSOLIDATED BELOW THE ROOF. PROTRUSIONS IN ROOF AREAS ARE TO BE PROPERLY FLASHED WITH BASE AND CAP FLASHING OR EQUAL. 5. INSTALL ALL FLASHING REQUIRED TO MAKE BUILDING WATERTIGHT. …

Scraped at: Sept. 26, 2025, 10:48 a.m.

15.a - 514 E Monroe St - public comment original pdf

Thumbnail of the first page of the PDF
Page 1 of 1 page

From: To: Cc: Subject: Date: Historic Preservation Office Wagner, Sofia 514 E Monroe St Sunday, September 28, 2025 9:14:54 PM You don't often get email from . Learn why this is important External Email - Exercise Caution Historic Preservation Staff and Historic Landmark Commissioners, As a resident of a 1915 bungalow within 500' of the proposed demolition, please register my objection to the demolition of the house and duplex at 514 E Monroe St which are contributing structures to the Travis Heights-Fairview Park National Register Historic District. The case is up for your action on 10/1/2025, Agenda Item 15 and can be referenced as HR- 2025-112176; PR-2025-112882; GF-2025-113890. Thank you for your consideration, Wendy Todd CAUTION: This is an EXTERNAL email. Please use caution when clicking links or opening attachments. If you believe this to be a malicious or phishing email, please report it using the "Report Message" button in Outlook. For any additional questions or concerns, contact CSIRT at "cybersecurity@austintexas.gov".

Scraped at: Sept. 30, 2025, 1:58 a.m.

20.0 - Outreach projects slide original pdf

Thumbnail of the first page of the PDF
Page 1 of 1 page

Community Outreach YOUR AUSTIN LANDMARKS Short videos highlighting significant places • Holiday Inn at Town Lake • Oakwood Cemetery WE SAVED YOU A PLACE Quarterly half-hour show on ATXN • Episode 1 will be released in October MATERIALS + PROGRAMMING SURVEY • What do you want to know about historic preservation? Survey closes Sunday, Oct. 12 Tell your friends! • • Hear about events and opportunities as they happen! Sign up for the Historic Preservation Office newsletter

Scraped at: Sept. 30, 2025, 1:58 a.m.

04.c - C14H-2025-0095 - public comment original pdf

Thumbnail of the first page of the PDF
Page 1 of 1 page

September 30, 2025 RE: Calhoun House Historic Landmark Designation Dear Chair Heimsath, Vice Chair Evans, and members of the Austin Historic Landmark Commission, Preservation Austin exists to empower Austinites to shape a more inclusive, resilient, and meaningful community culture through preservation. We write today in support of historic designation for 2401 Givens Avenue, also known as the Calhoun House, for its historic associations and community value. This home and the people who lived there embody the invaluable contributions Black Austinites made to our city during the 20th and 21st centuries. We are proud to partner with the home’s owner, our friend Ms. Patricia Calhoun, in preparing this much-deserved nomination. The Calhoun House was built in 1959 by Theodore “T.C.” Calhoun and Thelma Dotson Calhoun in the Rogers-Washington-Holy Cross neighborhood, one of Austin’s first suburban developments built by and for Black Austinites during segregation. The Calhouns were educators and civic leaders in Austin’s Black community during the mid-twentieth century, when “separate but equal” policies hindered Black prosperity. Mr. Calhoun was the longtime principal of Kealing Middle School, Austin’s only middle school for Black students. Mrs. Calhoun was a Jeanes supervisor for segregated rural schools and later a reading specialist. Both were active leaders of Ebenezer Third Baptist Church and held significant civic roles, including with the Austin Negro Chamber of Commerce and the Teacher’s State Association of Texas. T.C. and Thelma Calhoun created an enduring legacy and helped build community for Black Austinites, establishing a tradition of excellence in education and service that marks an inspiring chapter in Austin’s history. Their leadership lives on in their daughter Pat, who sees the Calhoun House as her personal legacy. Among her many accomplishments, Pat was a leader in the grassroots effort to designate Rogers-Washington-Holy Cross as a historic district and preserve this remarkable community’s story. Preservation Austin is honored to call Pat our partner and friend of nearly a decade. From early support for the historic district effort, to our documentary that tells the story of this incredible neighborhood, Pat’s partnership and generosity have made an indelible impact on our organization. We are thrilled and proud to support the designation of the Calhoun House as a City of Austin Landmark. Thank you for your consideration and your service to the City of Austin. Sincerely, Miriam Conner, President

Scraped at: Sept. 30, 2025, 11:46 p.m.

07.2 - 1403 S Congress Ave - Presentation original pdf

Thumbnail of the first page of the PDF
Page 1 of 29 pages

BERGEN-TODD HOUSE HISTORIC PHOTOS 2 BERGEN-TODD HOUSE09.26.25 FEBRUARY 1971 1972 PHOTOS PROVIDED BY AUSTIN HISTORIC CENTER 1976 1976 DECEMBER 1985 ORIGINAL DRAFTING PLAN OF STAINED GLASS WINDOW DATED ON 790210 - (1979) - PROVIDED BY HOME OWNER CURRENT PHOTOS 7 BERGEN-TODD HOUSE09.26.25 WEST NORTH SOUTH EAST 8 BERGEN-TODD HOUSE09.26.25 GOOGLE STREET 2008 GOOGLE STREET 2009 NOTE: EVIDENCE OF CHANGES TO SIDEWALK STAIR IN 2009 9 BERGEN-TODD HOUSE09.26.25 GOOGLE STREET 2008 CURRENT GOOGLE STREET VIEW - 2025 10 BERGEN-TODD HOUSE09.26.25 SITE PLANS, PLANS AND ELEVATIONS 11 BERGEN-TODD HOUSE09.26.25 LAND SURVEY DRAWN BY BGE, INC. ON 01/15/2025 MATERIALS AND STAGING WW ASSUMED EXISTING UNDERGROUND WASTEWATER LINES IMOGENE + WILLIE - RETAIL STORE WOOD SHED 5. 6. 7. 8. 526 527 527 WRAP CONNECTIONS OF CONCRETE LINE PUMP WITH PLASTIC TO PREVENT CONCRETE SLURRY FROM LEACHING INTO GROUND AND NEAR ROOTS OF TREES. IF HEAVY EQUIPMENT WILL BE ROLLING OVER ANY AREA OF THE FULL CRZ OF PROTECTED TREES, PROVIDE 3/4" PLYWOOD OVER 2X4 LUMBER OVER 12 ″ AND PREVENT SOIL/ROOT COMPACTION. AFTER CONSTRUCTION IS COMPLETED, SPREAD MULCH AROUND SITE TO LEAVE A MAX LAYER OF 3 ″ AIR-SPADING FOR THE TOP 30” OF SOIL WILL HAVE TO OCCUR TO BURY THE NEW ELECTRIC LINE INTO THE GROUND WITHIN THE ½ CRZ AN 8 INCH LAYER OF MULCH SHALL BE INSTALLED OVER ANY UNFENCED AREAS OF ROOT ZONE TO HELP LIMIT SOIL/ROOT COMPACTION. LAYER OF MULCH TO BRIDGE OVER THE ROOTS WITHIN ROOT ZONES. EXISTING FENCE EXISTING FENCE CONCRETE WALL 527 EXISTING FENCE 24" PECAN " 2 / 1 5 - ' 4 EXISTING WOOD SHED ON DIRT 25" LIVE OAK E H O N R I C T C E P L E L E D T D E A E H A R E H R E E V G O T I N G O V X I S E T I N X I S E U N D E R G R O U N D G A S I E N L Y T R E P O R P CAPPED WELL " 2 / 1 0 1 EXISTING CONCRETE SIDEWALK EXISTING BRICK PAVERS GAS E.M. 8 2 5 P.P. EXISTING WOOD SHED ON DIRT YY EE LL LL AA '' 66 11 529 PROPERTY LINE 0 3 5 PROPERTY LINE EXISTING WOOD SHED ON DIRT EXISTING RESIDENCE EXISTING CONCRETE SIDEWALK EXISTING BRICK PAVERS 531 D N …

Scraped at: Sept. 30, 2025, 11:46 p.m.

15.b - 514 E Monroe Street - public comment original pdf

Thumbnail of the first page of the PDF
Page 1 of 1 page

From: To: Subject: Date: Historic Preservation Office Case HR 2025-112176 - 514 East Monroe Street Sunday, September 28, 2025 9:11:44 PM External Email - Exercise Caution Ms. Wagner, As an officer and co-chair of the Parks and Environment Committee of the South River City Citizens Neighborhood Association, and a resident at 709 East Monroe, within 500 feet of the subject property, I wish to register my opposition to the proposed demolition of three contributing residences (a duplex and single-family dwelling) at 514 East Monroe Street. My opposition is based both on the buildings' historical value, and also my concern for damage to a number of protected heritage live oaks on the parcel. I would appreciate it if you circulated my views with the Commission members and entered my position in the record. Please advise me as this case evolves. Thank you. David Todd CAUTION: This is an EXTERNAL email. Please use caution when clicking links or opening attachments. If you believe this to be a malicious or phishing email, please report it using the "Report Message" button in Outlook. For any additional questions or concerns, contact CSIRT at "cybersecurity@austintexas.gov".

Scraped at: Sept. 30, 2025, 11:47 p.m.

15.c - 514 E Monroe St - public comment original pdf

Thumbnail of the first page of the PDF
Page 1 of 2 pages

From: To: Subject: Date: Historic Preservation Office Case Number HR-2025-112176; PR-2025-112882 (514 E Monroe Street) Monday, September 29, 2025 3:19:20 PM External Email - Exercise Caution Good afternoon, I am unsure if I am beyond the date to provide feedback, but I wanted to send an email to express my disapproval related to the planned demolition of the home(s)/structures related to the case numbers referenced in my email subject line. My disapproval stems from the following items: The single family home is generally in a good state of repair and represents the style of home original to this neighborhood. I don’t understand the purpose of having a historic preservation area if we aren’t going to preserve history We live in a similar bungalow-style home on the same block which has been restored/renovated/added on to. No reason the same work can’t be done before demolition There are numerous BEAUTIFUL LARGE live oak and other native trees on this property that I would be very concerned about damage to. Especially given the location just across the street from the park, these trees are very prominent in the neighborhood The home directly next to this one (512 E Monroe) also had an application to be demolished. The commission heard similar arguments and the home was restored and is now occupied. That home was in significantly worse condition (i.e. hypothetically would’ve been a more reasonable demolition candidate) so I wouldn’t understand why this home would be treated differently There is limited affordable housing in this neighborhood, and this property has multiple units which I fear would be replaced. We should not be removing supply from the area Let me know if you need any other information from me. But I oppose this demolition. Thank you William Lehner William Lehner Chief Financial Officer Email Disclaimer for Evergreen Residential Holdings, LLC and all affiliates and subsidiaries, including without limitation Evergreen Residential Employee Services Corp: The information contained in this e-mail, and any attachment, is confidential and is intended solely for the use of the intended recipient. Access, copying or re-use of the e-mail or any attachment, or any information contained therein, by any other person is not authorized. If you are not the intended recipient, please immediately return the e-mail to the sender and delete it and any attachment from your computer. Although we attempt to sweep e-mail and attachments for viruses, we do not guarantee …

Scraped at: Sept. 30, 2025, 11:47 p.m.

15.d - 514 E Monroe St - public comment original pdf

Thumbnail of the first page of the PDF
Page 1 of 1 page

From: To: Cc: Subject: Date: Historic Preservation Office Wagner, Sofia 514 E Monroe St - HR 2025-112176 Monday, September 29, 2025 11:49:13 PM You don't often get email from . Learn why this is important External Email - Exercise Caution Historic Preservation Staff and Historic Landmark Commissioners, As owner & resident for the past 47 years of a property within 500 feet of the proposed demolition, I OBJECT to the demolition of the Craftsman bungalow at 514 E Monroe St, a contributing structure to the Travis Heights-Fairview Park National Register Historic District. At this time, original Bungalow style structures occupy four of the 8 lots on the north side of Monroe Street's 500 block. Three of the four have been modernized yet retain their original character. One of those three has Historic Landmark designation with a 5-Star Energy Rating. 514 E Monroe Street has structural integrity, wonderful character and great potential to live on as another fine example of Craftsman bungalow architecture. The case is up for your action on Oct 01, 2025. Agenda Item 15 and can be referenced as HR2025-112176; PR-20T25-112882; GF-2025-113890. Thank you for your consideration, John L Trowbridge CAUTION: This is an EXTERNAL email. Please use caution when clicking links or opening attachments. If you believe this to be a malicious or phishing email, please report it using the "Report Message" button in Outlook. For any additional questions or concerns, contact CSIRT at "cybersecurity@austintexas.gov".

Scraped at: Sept. 30, 2025, 11:47 p.m.

16.b - 702 Winflo Dr - public comment original pdf

Thumbnail of the first page of the PDF
Page 1 of 1 page

From: To: Subject: Date: Historic Preservation Office 702 Winflo Dr; HLC Agenda October 1 Monday, September 29, 2025 4:38:42 PM [You don't often get email from https://aka.ms/LearnAboutSenderIdentification ] Learn why this is important at External Email - Exercise Caution CAUTION: This is an EXTERNAL email. Please use caution when clicking links or opening attachments. If you believe this to be a malicious or phishing email, please report it using the "Report Message" button in Outlook. For any additional questions or concerns, contact CSIRT at "cybersecurity@austintexas.gov". Sent from my iPhone

Scraped at: Sept. 30, 2025, 11:47 p.m.

10.d - 2514 Wooldridge - public comment original pdf

Thumbnail of the first page of the PDF
Page 1 of 1 page

From: To: Subject: Date: Historic Preservation Office; Contreras, Kalan; McKnight, Kim Demolition of 2514 Wooldridge Tuesday, September 30, 2025 1:28:15 PM You don't often get email from . Learn why this is important External Email - Exercise Caution To Whom It May Concern, We, the owners of 2510 Wooldridge Drive, object to the application to demolish 2514 Wooldridge Drive. Like many of the beautiful homes on Wooldridge drive, 2514 Wooldridge was built in the 1930s and represents an excellent example of early Pemberton Heights architecture, worthy of preservation. Demolition of this historic home would be devastating to the architectural continuity and historic fabric of Wooldridge Drive. These homes are not just structures, they are artifacts of Central Austin’s early development and embody the charm, scale, and character that make our neighborhood unique. Preserving these homes safeguards the identity of Pemberton Heights and ensures that future generations can experience this rare and irreplaceable piece of Austin’s history. Additionally, the “streetscape” - the symmetry of the lots and homes on our block - is another example of what makes our neighborhood special and beautiful. Wooldridge is an old and historic street. The style and scale of the proposed new home does not fit with our block. If a new home is to be built in this location, we would hope it would fit more closely with the integrity of our streetscape. Sincerely, Bill and Taylor Bowles CAUTION: This is an EXTERNAL email. Please use caution when clicking links or opening attachments. If you believe this to be a malicious or phishing email, please report it using the "Report Message" button in Outlook. For any additional questions or concerns, contact CSIRT at "cybersecurity@austintexas.gov".

Scraped at: Oct. 1, 2025, 9:39 p.m.

10.e - 2514 Wooldridge Drive - public comment original pdf

Thumbnail of the first page of the PDF
Page 1 of 2 pages

From: To: Subject: Date: Historic Preservation Office Fwd: 2514 Wooldridge Drive Tuesday, September 30, 2025 2:28:06 PM External Email - Exercise Caution Please read my letter below as I mistyped your email address. Thank you, jan jenkins Jan Jenkins mosspierattfoundation.org brothersbike.org Begin forwarded message: From: Janice Jenkins <j Subject: 2514 Wooldridge Drive Date: September 30, 2025 at 2:01:54 PM CDT To: preservation@austinteas.gov, kalan.contreras@austintexas.gov, kim.mcknight@austintexas.gov > To whom all it may concern: As a resident of Pemberton Heights on Ethridge Ave, I object to the demolition of 2514 Wooldrige Drive. Pemberton Heights is a part of the history of architectural design of Austin’s history and must be preserved. Public likes to drive through not because of the sizes but the beauty of the old design of the early 1900’s and later. This house is not demo worthy and destroys the fabric of the architectural heritage of one of Austin’s jewels in time. There are so many other options for home builders to purchase land sized to their desired larger home without destroying the beauty, warmth and history of our heritage homes in old Austin. These can not be brought back once demolished and history will be wiped away. I do not care how they redo the inside and addition to a home to suit their needs but should be required to leave the existing front of the home to be left as it was built and intended for Pemberton Heights history. Respectfully, Jan Jenkins Jan Jenkins mosspierattfoundation.org brothersbike.org CAUTION: This is an EXTERNAL email. Please use caution when clicking links or opening attachments. If you believe this to be a malicious or phishing email, please report it using the "Report Message" button in Outlook. For any additional questions or concerns, contact CSIRT at "cybersecurity@austintexas.gov".

Scraped at: Oct. 1, 2025, 9:40 p.m.

10.f - 2514 Wooldridge Drive - public comment original pdf

Thumbnail of the first page of the PDF
Page 1 of 1 page

From: To: Subject: Date: Historic Preservation Office; Contreras, Kalan; McKnight, Kim 2514 Wooldridge Drive- request to deny application Tuesday, September 30, 2025 2:29:51 PM You don't often get email from . Learn why this is important External Email - Exercise Caution To Whom It May Concern, I am reaching out as I object to the application to demolish 2514 Wooldridge Drive. As a designer, I believe something that is so beautiful and special about the neighborhood is that it’s kept the integrity of its original homes and storied past. I believe this house is worthy of preservation being built in the 30’s on one of the most prestigious streets in Austin. The scale of this home does not feel appropriate for the location. Please decline this application and keep this beautiful historic home. Sincerely, Kristen and Lee Nix 2409 Pemberton Place CAUTION: This is an EXTERNAL email. Please use caution when clicking links or opening attachments. If you believe this to be a malicious or phishing email, please report it using the "Report Message" button in Outlook. For any additional questions or concerns, contact CSIRT at "cybersecurity@austintexas.gov".

Scraped at: Oct. 1, 2025, 9:40 p.m.

10.g - 2514 Wooldridge Dr - public comment original pdf

Thumbnail of the first page of the PDF
Page 1 of 3 pages

Wagner, Sofia From: Sent: To: Subject: Morgan Burnham < Tuesday, September 30, 2025 6:10 PM Historic Preservation Office; Contreras, Kalan; McKnight, Kim 2514 Wooldridge Dive Historical Facade Information for Commission Meeting External Email - Exercise Caution Hi, I want to share some historical information regarding 2514 Wooldridge Drive. The case study questions the dormers of the house and suggests that they were added in the 1990s. Please see photos below. As you can see, the dormers and exterior facade of 2514 is exactly the same as in the photo below. The exact date of this photo is unknown to me, but it was taker BEFORE the documented remodel of 2512 Wooldridge drive in 1976. Thus, the dormers were not added in the 1990s and may be original to the house. All photos are from the book “Austin’s Pemberton Heights” by Elisabeth A Cash and Suzanne B Deaderick. All photos are from the Austin Public Library Austin Historic Center. 1 for the until 1940, at 2512 Drive, this ORIGINAL VERNON McGEE HousE, Located Wooldridge house was built for Vernon McGee. McGee and Janice was assistant of director the Texas Employment Commission when he became the principal analyst US Bureau of the Budget. He worked in public administration Office of War Information during published for the American Society of Public McGee was in the 1940s. the first director of the Texas State Budget Board in 1950. (Courtesy World War II and several Administration of Sherry Smith.) Legislative studies and the house in it into a Tudor the ge TUDOR REoux. Sherry and Tommy Jacks purchased house at 2512 Wooldrid Drive in 1976 and remodeled Revival-style 1983, as shown here. They imported the remodeled family room from a Scottish manor house and planted country� (Co\lneay Smith,) of Sherry an En,liah,atyle

Scraped at: Oct. 1, 2025, 9:40 p.m.

10.h - 2514 Wooldridge Dr - public comment original pdf

Thumbnail of the first page of the PDF
Page 1 of 1 page

From: To: Subject: Date: Sadowsky Steve; Historic Preservation Office 2514 Wooldridge Drive Tuesday, September 30, 2025 7:22:18 PM You don't often get email from . Learn why this is important External Email - Exercise Caution To the Historic Preservation Office: We, the owners of 1502 Hardouin Drive, a designated historic property, respectfully submit this letter in opposition to the pending application for demolition of 2514 Wooldridge Drive. Constructed in the 1930s, 2514 Wooldridge Drive is a significant and well-preserved example of early Pemberton Heights architecture. Its scale, character, and craftsmanship embody the qualities that define the historic identity of the neighborhood and contribute to the integrity of Wooldridge Drive as a whole. Approval of this demolition would not only result in the irreversible loss of a historically and architecturally important structure, but would also compromise the continuity and historic fabric of the district. These homes are integral to understanding Central Austin’s early development, and their preservation is essential to maintaining the neighborhood’s unique character for future generations. For these reasons, we respectfully urge the Commission to deny the application for demolition of 2514 Wooldridge Drive. Sincerely, Laura and Richard Key CAUTION: This is an EXTERNAL email. Please use caution when clicking links or opening attachments. If you believe this to be a malicious or phishing email, please report it using the "Report Message" button in Outlook. For any additional questions or concerns, contact CSIRT at "cybersecurity@austintexas.gov".

Scraped at: Oct. 1, 2025, 9:40 p.m.

10.i - 2514 Wooldridge - public comment original pdf

Thumbnail of the first page of the PDF
Page 1 of 1 page

From: To: Subject: Date: Historic Preservation Office Demolition 2514 Wooldridge Tuesday, September 30, 2025 7:36:30 PM You don't often get email from Learn why this is important External Email - Exercise Caution To Whom It May Concern, We, have been living in the Pemberton neighborhood since 1992. We personally took an old 1940’s home and restored it. Like many of the beautiful homes in Pemberton, 2514 Wooldridge was built in the 1930s and represents an excellent example of early Pemberton Heights architecture, worthy of preservation. Demolition of this historic home would be devastating to the architectural continuity and historic fabric of Wooldridge Drive. These homes are not just structures, they are artifacts of Central Austin’s early development and embody the charm, scale, and character that make our neighborhood unique. Preserving these homes safeguards the identity of Pemberton Heights and ensures that future generations can experience this rare and irreplaceable piece of Austin’s history. As owners and stewards we spent 2 years remodeling our home to preserve the integrity of its colonial architecture and historical significance. I would hope and expect the owners of 2514 Wooldridge to do the same. We respectfully urge you to deny the application for demolition of 2514 Wooldridge. Kindly, Beth Cunningham 512-663-0507 CAUTION: This is an EXTERNAL email. Please use caution when clicking links or opening attachments. If you believe this to be a malicious or phishing email, please report it using the "Report Message" button in Outlook. For any additional questions or concerns, contact CSIRT at "cybersecurity@austintexas.gov".

Scraped at: Oct. 1, 2025, 9:40 p.m.

10.j - 2514 Wooldridge Drive - public comment original pdf

Thumbnail of the first page of the PDF
Page 1 of 1 page

From: To: Subject: Date: preservation@austinteas.gov; Contreras, Kalan; McKnight, Kim 2514 Wooldridge Drive Tuesday, September 30, 2025 2:02:02 PM [You don't often get email from j https://aka.ms/LearnAboutSenderIdentification ] . Learn why this is important at External Email - Exercise Caution To whom all it may concern: As a resident of Pemberton Heights on Ethridge Ave, I object to the demolition of 2514 Wooldrige Drive. Pemberton Heights is a part of the history of architectural design of Austin’s history and must be preserved. Public likes to drive through not because of the sizes but the beauty of the old design of the early 1900’s and later. This house is not demo worthy and destroys the fabric of the architectural heritage of one of Austin’s jewels in time. There are so many other options for home builders to purchase land sized to their desired larger home without destroying the beauty, warmth and history of our heritage homes in old Austin. These can not be brought back once demolished and history will be wiped away. I do not care how they redo the inside and addition to a home to suit their needs but should be required to leave the existing front of the home to be left as it was built and intended for Pemberton Heights history. Respectfully, Jan Jenkins Jan Jenkins mosspierattfoundation.org brothersbike.org CAUTION: This is an EXTERNAL email. Please use caution when clicking links or opening attachments. If you believe this to be a malicious or phishing email, please report it using the "Report Message" button in Outlook. For any additional questions or concerns, contact CSIRT at "cybersecurity@austintexas.gov".

Scraped at: Oct. 1, 2025, 9:40 p.m.

10.k - 2514 Wooldridge Dr - public comment original pdf

Thumbnail of the first page of the PDF
Page 1 of 2 pages

From: To: Cc: Subject: Date: McKnight, Kim; preservation@austintexas.org; Contreras, Kalan 2514 Wooldridge concerns Tuesday, September 30, 2025 2:29:31 PM You don't often get email from . Learn why this is important External Email - Exercise Caution Hello - We are the owners of 1107 Gaston Ave and strongly object to the application to demolish 2514 Wooldridge Dr. The proposed plan flies in the face of the neighborhood’s more traditional architecture and character. Pemberton Heights is in the Old West Austin National Register Historic District. The 613 property owners value the heritage of their properties. When homes get remodeled, it is more often than not to bring the inside of the home up to date, while not touching the outside, because we want to preserve the historic nature of the neighborhood. People pay to be in this neighborhood because they value the character of older homes. The proposed plan defies description of an architectural style. There is not one. According to the package provided, they are pulling inspiration from a mish mash of traditional AND modern facades, an Italian church and a wide variety of materials. On the Pemberton Heights Neighborhood Association’s page, it says we are comprised of: Tudor Revival Colonial Revival Classical Revival Spanish Colonial Revival Italian Renaissance Revival Craftsman Prairie School This proposed house fits none of those styles. In addition, the package provides comps that are not apples to apples comparisons. For example, 2402 Windsor has arched windows, not an arched facade. 3200 Pease has a small, incorporated facade that is fitting to the Spanish Colonial style of the house. It is not stuck onto the front in another material as this plan proposes. The proposed house does not fit within Wooldridge’s streetscape at all. The style and scale is grossly wrong for the street. Demolition of 2514 Wooldridge is unnecessary and completely disregards the historic nature of the neighborhood. Our homes are some of the oldest in Austin and should be taken care of, not torn down. Preserving the homes is vital to the identity of Pemberton Heights and to the history of Austin itself. Again we strongly object to the proposed plan and ask the city to do the right thing for the neighborhood. Thank you. Laurel and Dudley Simmons CAUTION: This is an EXTERNAL email. Please use caution when clicking links or opening attachments. If you believe this to be a malicious or phishing …

Scraped at: Oct. 1, 2025, 9:40 p.m.

10.l - 2514 Wooldridge Dr - public comment original pdf

Thumbnail of the first page of the PDF
Page 1 of 1 page

From: To: Subject: Date: Contreras, Kalan Demolition 2514 Wooldridge Tuesday, September 30, 2025 7:39:05 PM You don't often get email from . Learn why this is important External Email - Exercise Caution To Whom It May Concern, We, have been living in the Pemberton neighborhood since 1992. We personally took an old 1940’s home and restored it. Like many of the beautiful homes in Pemberton, 2514 Wooldridge was built in the 1930s and represents an excellent example of early Pemberton Heights architecture, worthy of preservation. Demolition of this historic home would be devastating to the architectural continuity and historic fabric of Wooldridge Drive. These homes are not just structures, they are artifacts of Central Austin’s early development and embody the charm, scale, and character that make our neighborhood unique. Preserving these homes safeguards the identity of Pemberton Heights and ensures that future generations can experience this rare and irreplaceable piece of Austin’s history. As owners and stewards we spent 2 years remodeling our home to preserve the integrity of its colonial architecture and historical significance. I would hope and expect the owners of 2514 Wooldridge to do the same. We respectfully urge you to deny the application for demolition of 2514 Wooldridge. Beth Cunningham 512-663-0507 CAUTION: This is an EXTERNAL email. Please use caution when clicking links or opening attachments. If you believe this to be a malicious or phishing email, please report it using the "Report Message" button in Outlook. For any additional questions or concerns, contact CSIRT at "cybersecurity@austintexas.gov".

Scraped at: Oct. 1, 2025, 9:40 p.m.

10.m - 2514 Wooldridge Drive - public comment original pdf

Thumbnail of the first page of the PDF
Page 1 of 2 pages

From: To: Subject: Date: Historic Preservation Office; Contreras, Kalan; McKnight, Kim 2514 Wooldridge Drive Wednesday, October 1, 2025 10:25:44 AM You don't often get email from Learn why this is important External Email - Exercise Caution To Whom It May Concern, We, the owners of 1510 Wooldridge Drive, strongly object to the application to demolish 2514 Wooldridge Drive. Like many of the beautiful homes on Wooldridge drive, 2514 Wooldridge was built in the 1930s and represents an excellent example of early Pemberton Heights architecture, worthy of preservation. Demolition of this historic home would be devastating to the architectural continuity and historic fabric of Wooldridge Drive. These homes are not just structures, they are artifacts of Central Austin’s early development and embody the charm, scale, and character that make our neighborhood unique. Preserving these homes safeguards the identity of Pemberton Heights and ensures that future generations can experience this rare and irreplaceable piece of Austin’s history. As owners and stewards of 1510 Wooldridge Drive, we spent 5 years designing and planning our renovation with the main intention of keeping the original facade and keeping the integrity of the home. We are currently in the middle of our 18 month renovation and are working to put original touches back to the home that were once removed such as the balustrade and additional interior details that bring the home back to its original design. Our home, 1510 Wooldridge Drive, was built in the early 1930's and we own the autobiography of the original owner which highlights the historical significance of Pemberton Heights at that time. We moved to Austin and looked at other neighborhoods where we could have purchased a larger home but ultimately chose Pemberton for his history, character and charm. We the residents of Pemberton feel that demolishing 2514 would be losing not one but two contributing homes which would impact the character of this historic neighborhood and street. Once these gems are torn down they can never be rebuilt. We have put immense time and expenses into preserving our home at 1510 Wooldridge and we hope our neighbors at 2514 Wooldridge Drive will do the same. We respectfully urge you to deny the application for demolition of 2514 Wooldridge Drive. Sincerely, Kerry Keller 1510 Wooldridge Drive Austin, TX 78703 CAUTION: This is an EXTERNAL email. Please use caution when clicking links or opening attachments. If you believe this to be …

Scraped at: Oct. 1, 2025, 9:40 p.m.

10.n - 2514 Wooldridge Drive - public comment original pdf

Thumbnail of the first page of the PDF
Page 1 of 2 pages

From: To: Subject: Date: Historic Preservation Office; Contreras, Kalan; McKnight, Kim 2514 Wooldridge Drive - public comment Wednesday, October 1, 2025 11:08:28 AM You don't often get email from Learn why this is important External Email - Exercise Caution To Whom It May Concern, We, the owners of 2805 Wooldridge Drive in Pemberton Heights, strongly object to the application to demolish 2514 Wooldridge Drive. Like many of the historically significant homes on Wooldridge drive, 2514 Wooldridge was built in the 1930s and represents an important example of early Pemberton Heights architecture and it is worthy of preservation. Specifically, the house under consideration for demolition is a historic Georgian bridal house that has been deemed a contributing structure to our neighborhood. Demolition of this historic home would be devastating to the architectural continuity and historic fabric of Wooldridge Drive. As owners and caretakers of 2805 Wooldridge Drive, we worked for over 3 years to restore our architecturally significant home. Our house is one of very few remaining structures in Austin designed by Arthur Fehr and Charles Granger. Designed and built for Dr. Charles Milton and Gertrude “Queenie” Darnall in 1941, our two-story stone-veneered house may be the first example of an International Style house built in Austin. With origins in Europe in the 1920s and 1930s, American architects of the style included Henry-Russell Hitchcock, Frank Lloyd Wright, and Philip Johnson. Our work and attention to the significance of this property earned historic landmark designation by the City of Austin and the State of Texas and a preservation Austin award in 2017. The original homes in Pemberton Heights are highly unique and are artifacts of the City of Austin’s early development. Many of the homes were designed and built before World War II. Simply put, they are irreplaceable. Preserving these houses makes it possible for future generations to experience this irreplaceable piece of Austin’s history. For the reasons described in this letter, we respectfully ask you to deny the application for demolition of 2514 Wooldridge Drive. Respectfully, Holly Lanham CAUTION: This is an EXTERNAL email. Please use caution when clicking links or opening attachments. If you believe this to be a malicious or phishing email, please report it using the "Report Message" button in Outlook. For any additional questions or concerns, contact CSIRT at "cybersecurity@austintexas.gov".

Scraped at: Oct. 1, 2025, 9:40 p.m.

10.o - 2514 Wooldridge Dr - public comment original pdf

Thumbnail of the first page of the PDF
Page 1 of 1 page

To the City Preservation Office and Landmark Commission: October 1, 2025 I am a long-time resident of Pemberton Heights and also the co-creator of the Old West Austin National Register Historic District. I am strongly opposed to the demolition of 2512 and 2514 Wooldridge. The reason is that 2514 is a contributing house in our National Register Historic District. It’s especially concerning that both houses are to be torn down so that a new, very large (10,000 sq. ft.!) house can be built, covering both lots- a house that looks nothing like our historic neighborhood. And all by a real estate investment/ property management company that will scrape, build and sell- they’ve got their money and are GONE. In addition to the loss of two contributing houses, and the historic streetscape of which these two houses are important parts, these demolitions will DE-densify our neighborhood, not densify it, as the City of Austin’s current planning focus specifies. We’ll go from two single family homes to one huge “house” for two people? Four people? 2,500 sq. ft. per person?? Here are some of the City’s goals with this focus on density: - Reforms include reducing lot-size requirements citywide to lower housing costs and help reverse historical patterns of segregation and restricted housing access - Higher population density can contribute to reduced carbon footprints through increased public transit use and potentially lower individual energy consumption - The primary goal is to create more diverse and affordable housing options to meet the needs of Austin's growing population It’s safe to say that this double demolition and construction of a mega-house will not increase population density in Pemberton or produce more affordable housing. This 10,000 sq. ft. house is likely to be flipped for much more than both 2412 and 2414 Wooldridge would sell for, together. Both the City Preservation Office and the Historic Landmark Commission are City entities. It is your responsibility to uphold the City’s stated planning focus. Please do the right thing and do not allow a demolition permit for 2514 Wooldridge. Candace Volz

Scraped at: Oct. 1, 2025, 9:40 p.m.

15.e - 514 E. Monroe St - public comment original pdf

Thumbnail of the first page of the PDF
Page 1 of 2 pages

From: To: Cc: Subject: Date: Historic Preservation Office 514 E. Monroe St, Case Number HR-2025-112176 Wednesday, October 1, 2025 8:05:08 AM [You don't often get email from https://aka.ms/LearnAboutSenderIdentification ] . Learn why this is important at External Email - Exercise Caution Good morning, Sofia, My name is Ashley Salie, and I live at 1500 East Side Dr. in Austin. My property is directly adjacent to the property at 514 E. Monroe, which is up for demolition. I am unable to comment on support or objection of the demolition, but I wanted to make a few comments and requests about demolition activities and potential new construction as a property owner and neighbor who will be affected by these activities. Others may have noted that there is a significant tree at the corner of Monroe and East Side Dr., and I request that it is not touched during the demolition/new construction activities at this site. I also request that new construction respect the scale and setbacks of the other homes on the street, including the scale of the condo complex at 1500 East Side Drive, directly behind this property. The intersection at East Side Dr. and E Monroe is heavily trafficked, and is often a pinch point when cars are parked on East Side Dr. It’s critical that demolition/construction vehicles and personnel minimize space on the street so that residents and visitors to the adjacent parks can travel easily and safely. To this end, I also request that plans for new construction provide adequate off-street parking for the residents vehicles. The current residents have a large van that is often parked at the corner of East Side Dr and E Monroe that creates an inconvenient pinch point and visual obstruction for pedestrians, bicyclists, and drivers. I request that all demolition activities take extreme care to not cross into East Side Dr. or the driveway behind the lot at 514 E Monroe, which directly services several residents at 1500 East Side Dr. For some, this is the only way out of the property, so a clear path of travel is essential. I appreciate that someone has purchased the property and seeks to demolish/rebuild, as the current structures have not seen proper TLC over the years. Because these are structures that contribute to the Travis Heights-Fairview Park NR Historic District, I respectfully request that the new property owners take care to construct a new …

Scraped at: Oct. 1, 2025, 9:40 p.m.

16.c - 702 Winflo Dr - OWANA Letter original pdf

Thumbnail of the first page of the PDF
Page 1 of 1 page

Steering Committee Members: Stephen L. Amos, Chair Renae Alsobrook, Mark Ashby, Evelyn Fujimoto, Adrienne Goldsberry, Paula Hern, Nick Mehl, William Osborn, Charlie Rice, Paul Shattuck, Shawn Shillington, Erika Tatum, Meghan Yancy September 25, 2025 RE: PR-2025-105857 – 702 Winflo Drive – West Line National Register Historic District – Council District 9 Dear Chair Heimsath and Commissioners, The structure at 702 Winflo Drive is a contributing property within the West Line National Historic District. Renovations including an interior bathroom remodel, new hall closet, and updated plumbing and electrical were completed in recent years, reflecting continued investment in its preservation. Given the short notification period, the absence of clear documentation on the current condition of the home, and the lack of a proposed replacement or concept design, the OWANA Zoning Committee respectfully requests postponement of this hearing to allow time for the owner to meet with the OWANA and the Architectural Review Committee. The owner has agreed to meet with OWANA on October 30th to further discuss the property. This home, like several others in our small mid-century enclave, tells a quiet but meaningful story about the evolution of Old West Austin. These structures may not be grand, but together they form a cohesive thread in the architectural and cultural fabric of the district. 702 Winflo was built by Tommie Hamby, part owner of the Hoffbrau Restaurant a beloved Austin institution that has operated on West 6th Street for over 80 years. He built this home to live near his family business, a powerful reflection of the values of the time: local ownership, walkable communities, and the blending of work and home life. Structures like this one are not just examples of mid-century architecture they are tangible representations of Austin’s lived history. Their preservation helps tell a fuller, more inclusive story of our city, spanning generations and grounded in the people who helped shape it. We ask for your guidance and support in helping preserve this unique and increasingly rare part of the neighborhood. Could this property potentially meet the criteria for landmark designation? We believe the collective significance of these homes is worth careful evaluation and protection. Thank you for your thoughtful stewardship of Austin’s irreplaceable heritage. Sincerely, Stephen L. Amos Steering Committee Chair Old West Austin Neighborhood Association

Scraped at: Oct. 1, 2025, 9:40 p.m.

16.d - 702 Winflo Dr - public comment original pdf

Thumbnail of the first page of the PDF
Page 1 of 1 page

In re: 702 Winflo - PR-2025-105857 Attn: Austin Lukes 29 September 2025 Dear Chair Heimsath and Commissioners, As a long time (since 1992) property tax payer in the West Line National Historical District I was shocked to learn this past weekend that the mid-fifties Hoffbrau house at 702 Winflo may be bought by someone who plans to demolish it and build yet another oversized and inappropriate McMansion of the sort that have been allowed to spring up on Oakland Avenue though not, significantly, on our western neighbor Harthan. I support OWANA’s desire to advocate for the preservation of this house coeval with mine and all too few others on the hill which once housed a 19th c Victorian house built for the Nalle family, as documented in the AAS. Thank you for your consideration, Mary Blockley 702 Brownlee Circle 512 469-9699

Scraped at: Oct. 1, 2025, 9:40 p.m.

16.e - 702 Winflo Dr - public comment original pdf

Thumbnail of the first page of the PDF
Page 1 of 2 pages

From: To: Cc: Subject: Date: Attachments: Lukes, Austin Historic Preservation Office Re: PR-2025-105857; GF-2025-112839 Tuesday, September 30, 2025 3:23:08 PM Outlook-Logo__Desc.png Mr. Bunda, Thank you for your response comments, and we will add them to the record for this case's file. If you have any other questions or concerns prior to tomorrow's meeting, do not hesitate to reach out. Thanks, Austin Austin Lukes Planner Senior Planning Department, Historic Preservation Office 512-978-0766 austin.lukes@austintexas.gov From: Jay Bunda Sent: Tuesday, September 30, 2025 2:11 PM To: Lukes, Austin <Austin.Lukes@austintexas.gov> Subject: PR-2025-105857; GF-2025-112839 > You don't often get email from . Learn why this is important External Email - Exercise Caution I am responding to the application for a demolition at 702 Winflo Drive. I don't have enough information on the replacement structure to oppose or not the permit request for demolition. I would like a delay to give the prospective buyer time to present a plan that can be reviewed for approval, fitting in with the neighborhood. Jay Bunda 706 Winflo Drive -- Jay Bunda Intergalactic Productions Galaxy Cafe - Zocalo Cafe Top Notch Hamburgers CAUTION: This is an EXTERNAL email. Please use caution when clicking links or opening attachments. If you believe this to be a malicious or phishing email, please report it using the "Report Message" button in Outlook. For any additional questions or concerns, contact CSIRT at "cybersecurity@austintexas.gov".

Scraped at: Oct. 1, 2025, 9:40 p.m.

10.p - 2514 Wooldridge Drive -public comment original pdf

Thumbnail of the first page of the PDF
Page 1 of 2 pages

From: To: Subject: Date: Historic Preservation Office 2514 Wooldridge Drive -pending demolition Wednesday, October 1, 2025 2:01:44 PM You don't often get email from Learn why this is important External Email - Exercise Caution To Whom It May Concern, We, the owners of 2805 Wooldridge Drive in Pemberton Heights, strongly object to the application to demolish 2514 Wooldridge Drive. Like many of the historically significant homes on Wooldridge drive, 2514 Wooldridge was built in the 1930s and represents an important example of early Pemberton Heights architecture and it is worthy of preservation. Specifically, the house under consideration for demolition is a historic Georgian Revival house that has been deemed a contributing structure to our neighborhood. Demolition of this historic home would be devastating to the architectural continuity and historic fabric of Wooldridge Drive. As owners and caretakers of 2805 Wooldridge Drive, we worked for over 3 years to restore our architecturally significant home. Our house is one of very few remaining structures in Austin designed by Arthur Fehr and Charles Granger. Designed and built for Dr. Charles Milton and Gertrude “Queenie” Darnall in 1941, our two-story stone-veneered house may be the first example of an International Style house built in Austin. With origins in Europe in the 1920s and 1930s, American architects of the style included Henry-Russell Hitchcock, Frank Lloyd Wright, and Philip Johnson. Our work and attention to the significance of this property earned historic landmark designation by the City of Austin and the State of Texas and a preservation Austin award in 2017. The original homes in Pemberton Heights are highly unique and are artifacts of the City of Austin’s early development. Many of the homes were designed and built before World War II. Simply put, they are irreplaceable. Preserving these houses makes it possible for future generations to experience this irreplaceable piece of Austin’s history. For the reasons described in this letter, we respectfully ask you to deny the application for demolition of 2514 Wooldridge Drive. Respectfully, Holly Lanham CAUTION: This is an EXTERNAL email. Please use caution when clicking links or opening attachments. If you believe this to be a malicious or phishing email, please report it using the "Report Message" button in Outlook. For any additional questions or concerns, contact CSIRT at "cybersecurity@austintexas.gov".

Scraped at: Oct. 2, 2025, 7:29 p.m.

10.q - 2514 Wooldridge Drive -public comment original pdf

Thumbnail of the first page of the PDF
Page 1 of 2 pages

From: Subject: Date: Attachments: Kalan Letter to the Commissioners 2514 Wooldridge Drive HR 2025 113285 Re: Historic Landmark Commission case information Wednesday, October 1, 2025 3:32:11 PM image001.png External Email - Exercise Caution I have been a Pemberton resident for many decades and was shocked and heartsick to see a demolition notice on 2514 Wooldridge Drive, one of the top most beautiful houses in historic Pemberton. And then to learn that the fabulous Tudor Revival house next door would be next on the demolition chopping block was just too sickening. These two houses are iconic Colonial Revival expressions and the best of Pemberton beauties. To demolish either one of these houses to build a house with a style that should instead be in a modern suburban subdivision is unthinkable. The proposed new house design is completely out of step with the neighborhood. If a smaller house were built in a true, accurate Colonial Revival style that would look as if it had been built in the pre-war 1930's "House Beautiful" era, that would ameliorate the losses of the original houses. Demolition would be a death blow to the preservation of this historically designated neighborhood. Far too many historically compliant houses have been demolished or remuddled and there are fewer and fewer historically intact houses left every year. This must stop. Please, please do not allow these to be demolished. At the least, require the facades and brick or masonry sides to be kept intact and tear down and rebuild behind them. A house does not need to have a City Historic Landmark designation on it to be preserved from demolition. Dale Van Sickle On Wednesday, October 1, 2025 at 09:53:26 AM CDT, Contreras, Kalan <kalan.contreras@austintexas.gov> wrote: Good morning, Ms. Van Sickle, As requested, the Historic Landmark Commission’s agenda, recommendations, and supporting material may be found at https://www.austintexas.gov/cityclerk/boards_commissions/meetings/31_1.htm. The agenda and supplementary items are posted at least 72 hours prior to each public hearing. The public hearing schedule may be found at http://www.austintexas.gov/hlc, which also contains a link to the Commission materials under “View Meeting Documents” on the left side of the page. The Wooldridge case is Item 10 on the agenda: https://services.austintexas.gov/edims/document.cfm?id=459376 The staff report is located here: https://services.austintexas.gov/edims/document.cfm?id=459389 New construction drawings are located here: https://services.austintexas.gov/edims/document.cfm?id=459391 Additionally, there are numerous supporting letters, as well as applicant materials, linked on the main page at https://www.austintexas.gov/cityclerk/boards_commissions/meetings/31_1.htm. Thank you for your interest in …

Scraped at: Oct. 2, 2025, 7:29 p.m.

02.1 - Briefing - Rally Austin 2026 Keep Austin Ours Bond Proposal Presentation HLCommission 20251001 original pdf

Thumbnail of the first page of the PDF
Page 1 of 31 pages

R66j  z qwGZ ‘ z mq - ÞéÿÏ ¹ èâéÞÉ , Ï Éˇ j ÝÏ ÛÏ â„ Â wE GZ R , GA i  , - ‘ TT ‘ m wGƒ 6 Rally Austin is the first multi-purpose local government corporation, requested by the community and created by the Austin City Council in October 2020  Community driven, Equity focused  Designed to be agile, mission-driven, collaborative and flexible  Bring new financial tools and resources to the table and generate consistent revenues  Professional approach to community investment and project delivery  Y GqqG‘ Z Facilitating equitable development for economic growth while preserving Austin's unique culture. ƒ GqG‘ Z A culturally resilient and economically integrated Austin where diverse communities thrive without risk of displacement. TŁ„ ˇ ÞɬÞÉõŁâéÇ ŁÉéâÞÉÏ èÝ ¨ Ï Ç Ç èÉÞéÿ„ â„ ¨ Ï Ç Ç èÉÞéÿ Rally will focus its efforts to unite and drive progress across three critical areas of development in Central Texas: mwqY z qG- i - z Twz m6 - ‘ Y j T6w6- ‘ Y Y z Z GwG6q - w T› wG- 2 6ƒ 6T‘ j Y 6Z w  ‘ z m- ‘ Y Y z Z Gw›  w§ ‘ mR Board of Directors Collaboration of community leaders and nominating bodies who represent local organizations and asset holders. § E ‘ § 6 m6  - wGƒ 6- ‘ Y Y z Z Gw›  GZ ƒ 6qwY 6Z wq Real estate projects valued at approximately $160M, securing an estimated 293,000 square feet of affordable space:  180,000 SF Affordable housing  86,000 SF Cultural spaces  14,000 SF Commercial spaces  13,000 SF Outdoor and shared spaces Collective economic impact projected between $320 to $400M, also providing community benefits:  Job creation and tax revenues  Property value increases  Tourism and cultural preservation  Soul and vitality ‘ z mm TT› @‘ m - ‘ Y j T6w6 - ‘ Y Y z Z GwG6q ‘ z mm TT› @‘ m mwqY z qG- i  - z Twz m6 ‘ z mm TT› @‘ m - w T› wG-  2 6ƒ 6T‘ j Y 6Z w Mixed-use development Seven real estate Rally moves large-scale, for Blocks 16 & 18 on development projects multi-million-dollar East 11th Street in the valued at $37.5M with an development and African American estimated $75M-$94M infrastructure projects …

Scraped at: Oct. 8, 2025, 6:19 a.m.

04.d - C14H-2025-0095 - public comment original pdf

Thumbnail of the first page of the PDF
Page 1 of 3 pages

From: To: Cc: Subject: Date: Historic Preservation Office Attn: Austin Lukes, case C14H-2025-0095 today 6pm Wednesday, October 1, 2025 3:39:53 PM You don't often get email from . Learn why this is important External Email - Exercise Caution Hello! I’d like to submit my letter of support for case C14H-2025-0095 for the public hearing today October 1, 2025 at 6pm. Thank you!!!! Emily M Donohoo 512-751-1384 The information in this email may be confidential and/or privileged. This email may be reviewed only by the intended recipient named above. Any review, use, or disclosure of the information contained in this email, or any attachments by anyone other than the intended recipient, is prohibited. CAUTION: This is an EXTERNAL email. Please use caution when clicking links or opening attachments. If you believe this to be a malicious or phishing email, please report it using the "Report Message" button in Outlook. For any additional questions or concerns, contact CSIRT at "cybersecurity@austintexas.gov".

Scraped at: Oct. 8, 2025, 6:19 a.m.

04.e - C14H-2025-0095 - public comment original pdf

Thumbnail of the first page of the PDF
Page 1 of 1 page

From: To: Subject: Date: Historic Preservation Office Support for Case C14H-2025-0095 Wednesday, October 1, 2025 3:51:56 PM You don't often get email from . Learn why this is important External Email - Exercise Caution C14H-2025-0095 Attn: Austin Luke’s To whom it may concern: As a neighbor of Pat Calhoun's in the Rogers Washington Holy Cross District, I wanted to submit a letter of support for her application for Landmark status. I can attest to the care and dedication she has for the legacy her home represents in our community. Honoring her preservation efforts with this status will ensure her home remains a cultural touchstone in East Austin for neighbors and generations to come. All the best, Kaitlin Maud 2105 Maple Ave Austin TX 78722 CAUTION: This is an EXTERNAL email. Please use caution when clicking links or opening attachments. If you believe this to be a malicious or phishing email, please report it using the "Report Message" button in Outlook. For any additional questions or concerns, contact CSIRT at "cybersecurity@austintexas.gov".

Scraped at: Oct. 8, 2025, 6:20 a.m.

10.r - 2514 Wooldridge - public comment original pdf

Thumbnail of the first page of the PDF
Page 1 of 2 pages

From: To: Cc: Subject: Date: Historic Preservation Office Contreras, Kalan; McKnight, Kim 2514 Wooldridge Wednesday, October 1, 2025 3:44:42 PM You don't often get email from . Learn why this is important External Email - Exercise Caution To Whom It May Concern, We, the owners of 2407 Pemberton Pl, object to the application to demolish 2514 Wooldridge Drive. Like many of the beautiful homes on Wooldridge drive, 2514 Wooldridge was built in the 1930s and represents an excellent example of early Pemberton Heights architecture, worthy of preservation. Demolition of this historic home would be devastating to the architectural continuity and historic fabric of Wooldridge Drive. These homes are not just structures, they are artifacts of Central Austin’s early development and embody the charm, scale, and character that make our neighborhood unique. Preserving these homes safeguards the identity of Pemberton Heights and ensures that future generations can experience this rare and irreplaceable piece of Austin’s history. Additionally, the “streetscape” - the symmetry of the lots and homes on our block - is another example of what makes our neighborhood special and beautiful. Wooldridge is an old and historic street. The style and scale of the proposed new home does not fit with the block. If a new home is to be built in this location, we would hope it would fit more closely with the integrity of the streetscape. Sincerely, Jennifer and Jimmy Murchison Jennifer Murchison 713.705.9183 CAUTION: This is an EXTERNAL email. Please use caution when clicking links or opening attachments. If you believe this to be a malicious or phishing email, please report it using the "Report Message" button in Outlook. For any additional questions or concerns, contact CSIRT at "cybersecurity@austintexas.gov".

Scraped at: Oct. 8, 2025, 6:20 a.m.

10.s - 2514 Wooldridge Drive - public comment original pdf

Thumbnail of the first page of the PDF
Page 1 of 2 pages

From: To: Subject: Date: Historic Preservation Office 2514 Wooldridge Drive Wednesday, October 1, 2025 3:57:34 PM You don't often get email from . Learn why this is important External Email - Exercise Caution To Whom it May Concern, We, the owners of 2411 Pemberton Place, strongly object to the application to demolish 2514 Wooldridge Drive. 2514 Wooldridge is historic in its provenance, as already identified by this commission in its own review, and significantly contributes to the beauty and appeal of our city and our neighborhood. Further, it is a contributing structure that enables the Old West Austin historic district to maintain its status on the National Register. As you are aware, many homeowners in the district have undertaken lengthy and painstaking renovations to preserve the integrity of existing historical structures like that on 2514 Woodridge. This not only preserves the district’s status on the National Register but also helps maintain the beauty and appeal of the neighborhood, and the overall value of the tax base to the city. These vintage homes are valuable because they are rare, unique and historic. These thoughts are not just lip service: as owners of 2411 Pemberton Place, a ~75 year old structure located 3 blocks from the subject property, we worked collaboratively with the city over 5 years to plan, remodel and add to a contributing structure in a way that maintained the architectural integrity of the site. This was done at an expense that was potentially double that of simply tearing down the site and building anew. We did this not because it was easy or cheap, but because it was the right thing to do for the neighborhood and city. Dozens of others in the neighborhood have done the same before us, and that should be the standard that is upheld for structures like these. In addition to the inappropriateness of permitting the demolition of a contributing structure with historic provenance, the proposed replacement home does not even remotely match the size and scale of the existing homes on the 2500 block of Wooldridge, or Pemberton Heights more broadly. For perspective, the median HVAC square footage of the existing homes on this block is ~4,000 square feet, with the largest being 5,100 square feet. The proposed replacement structure for 2514 Wooldridge would span two lots and comprise almost 14,000 HVAC square feet! At almost 3x the size of the largest home …

Scraped at: Oct. 8, 2025, 6:20 a.m.

10.t - 2514 Wooldridge Dr - public comment original pdf

Thumbnail of the first page of the PDF
Page 1 of 1 page

From: To: Subject: Date: Historic Preservation Office; Contreras, Kalan; McKnight, Kim Demolition of 2514 Wooldridge Drive Wednesday, October 1, 2025 4:00:46 PM You don't often get email from . Learn why this is important External Email - Exercise Caution To Whom it May Concern: I am writing to respectfully oppose the proposed demolition and new construction at 2514 Wooldridge Drive. The size and scale of the proposed home are not in keeping with the character of our block or the broader Pemberton Heights neighborhood. Sincerely, Katherine Goehring 2518 Wooldridge Drive CAUTION: This is an EXTERNAL email. Please use caution when clicking links or opening attachments. If you believe this to be a malicious or phishing email, please report it using the "Report Message" button in Outlook. For any additional questions or concerns, contact CSIRT at "cybersecurity@austintexas.gov".

Scraped at: Oct. 8, 2025, 6:20 a.m.

15.f - 514 E Monroe St - public comment original pdf

Thumbnail of the first page of the PDF
Page 1 of 1 page

From: To: Cc: Subject: Date: Attachments: Historic Preservation Office Urgent: Re PUBLIC HEARING today: HR 2025–1121176–514 East Monroe St. Wednesday, October 1, 2025 3:50:34 PM PUBLIC HEARING INFORMATION.pdf [You don't often get email from https://aka.ms/LearnAboutSenderIdentification ] . Learn why this is important at External Email - Exercise Caution We object to the demolition of this property as homeowners within close proximity. This is one of the three bungalows of the same design in era. The other two that are in sequence with this bungalow have been restored. The history of the bungalow is rich, as is its live oaks. Well, we cannot attend the live hearing, please look at our attached objection. Thank you. Kim and Dermot O’Driscoll. CAUTION: This is an EXTERNAL email. Please use caution when clicking links or opening attachments. If you believe this to be a malicious or phishing email, please report it using the "Report Message" button in Outlook. For any additional questions or concerns, contact CSIRT at "cybersecurity@austintexas.gov". Sent from my iPhone

Scraped at: Oct. 8, 2025, 6:20 a.m.

19.1 - Historic Landmark Commission Meeting Schedule original pdf

Thumbnail of the first page of the PDF
Page 1 of 1 page

Historic Landmark Commission 2026 Meeting Schedule The current schedule for HLC meetings is to be held on the first Wednesday of every month, at 6:00 PM. Location of meetings to be scheduled by the City Clerk’s Office after HLC approval of proposed meeting schedule. The proposed 2026 HLC meeting schedule is as follows: Wednesday, January 7th, 2026, at 6:00PM Wednesday, February 4th, 2026, at 6:00PM Wednesday, March 4th, 2026, at 6:00PM Wednesday, April 1st, 2026, at 6:00PM Wednesday, May 6th, 2026, at 6:00PM Wednesday, June 3rd, 2026, at 6:00PM Wednesday, July 1st, 2026, at 6:00PM Wednesday, August 5th, 2026, at 6:00PM Wednesday, September 2nd, 2026, at 6:00PM Wednesday, October 7th, 2026, at 6:00PM Wednesday, November 4th, 2026, at 6:00PM Wednesday, December 2nd, 2026, at 6:00PM

Scraped at: Oct. 8, 2025, 6:20 a.m.