ITEM06 C15-2025-0027 ADV PACKET PART2_OCT13 — original pdf
Backup

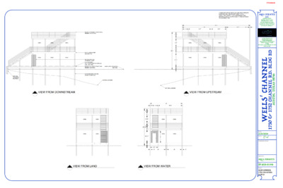
From: To: Subject: Date: Ramirez, Diana FW: Strong Objection to Variance Request; Case No. C15-2025-0026; 1750 Channel Road Monday, August 11, 2025 12:34:59 PM External Email - Exercise Caution Strong Objection to Variance Request; Case No. C15-2025-0026; 1750 Channel Road Please add these pictures to my email ITEM06/34 ITEM06/35ITEM06/36ITEM06/37Re: Strong Objection to Variance Request; Case No. C15-2025-0026; 1750 Channel Road Dear Members of the Board of Adjustments, We, Bruce and Niloofar Slayden, representing the SLAYDEN BRUCE & NELLIE REVOCABLE TRUST at 1744 Channel Road, respectfully submit this letter to express our strong and unequivocal opposition to the variance request submitted by Red Bud Partners LP for the property located at 1750 Channel Road. The request seeks approval to construct a new dock extending 37 feet and 3 inches from the shoreline—substantially exceeding the 30-foot maximum length permitted under the Land Development Code (LDC 25-2-1176). We urge the Board to deny this request. This request is not only excessive and unjustified, but also poses a threat to navigation safety, neighborhood consistency, and surrounding property values. Critically, this variance request is inconsistent with both the letter and the intent of the applicable regulations. 1. Undermining Code’s Intent The variance request proposes a dock length that is 124% of the maximum allowable by code—exceeding the 30-foot limit by a more than 7 feet. The applicant has not provided evidence demonstrating that this increased length is necessary for navigation safety, as required under LDC 25-2-1176. In the absence of such justification, approval would set a troubling precedent and undermine the intent and the integrity of the Code. 2. Navigation Hazard and Community Consistency The proposed 37+ feet, multi-level dock would constitute a significant navigational hazard. It would be the only residential multi-level dock in the area extending nearly 125% of the standard shoreline distance. This outlier configuration deviates dramatically from the existing character of surrounding docks along Lake Austin, which are predominantly conform to code. A new multi-level dock of up to a 30’ height and 37+’ length would obstruct sight lines around the shoreline curve, increasing the risk of boating accidents. The Board must not approve any new structure that compromises boater safety on Lake Austin. ITEM06/38 3. Adverse Impact on Neighboring Properties and the Lake Community Approval of this variance would result in immediate and measurable harm to neighboring properties, including ours. A multi-level dock of this size (extending 25% further from the shoreline and potentially rising up to 30 feet in height) would obstruct previously unobstructed lake views and irreparably damage the character and value of surrounding homes. We recently invested in a dock that complies fully with code requirements, and we did so with the reasonable expectation that nearby developments would be held to the same standard. Granting this variance would violate that the reasonable expectation and set a highly concerning precedent. 4. Lack of Justification The applicant has not provided adequate justification for a variance of this magnitude. This is not a request for repair or modest modification of the existing dock—it is an attempt to construct an oversized, new multi-level dock with an excessive footprint that blatantly exceeds code limitations by nearly 25%. The applicant has failed to demonstrate any legitimate or compelling need for such an expansion. The Board has no reasonable basis to approve a variance of this magnitude. Approval of such a variance would not only contradict the purpose of the code, but create a potential navigation hazard that also diminishes the value and enjoyment of neighboring properties and the entire lake community. For the reasons outlined above, we respectfully request that the Board deny this varianceapplication in its entirety. Thank you for your attention to this matter. Sincerely, Bruce and Niloofar Slayden SLAYDEN BRUCE & NELLIE REVOCABLE TRUST 1744 Channel Road, Austin, TX 78746 CAUTION: This is an EXTERNAL email. Please use caution when clicking links or opening attachments. If you believe this to be a malicious or phishing email, please report it using the "Report Message" button in Outlook. For any additional questions or concerns, contact CSIRT at "cybersecurity@austintexas.gov". ITEM06/39 ITEM06/40ITEM06/41ITEM06/42ITEM06/43ITEM06/44demand, “we want a bigger boat” should override the Public’s interest as protected and codified by the Code. 2. Dangerous Precedent and Navigation Hazard This proposal represents the only new residential multi-level dock in the area that would extend more than 1.5 times farther from the shoreline than Code limits and thus, allowing the continued limit on the Public’s navigation safety and freedom. Notably, the subject dock is one of the first docks encountered by a new user of this Public waterway after launching from the 360 Bridge Public Launch. The Code limit was set as a compromise between the interests of Lake Austin residents and the Public’s interest in a Public waterway. Those interests include enjoyment (navigation/use freedom) and safety. The Board should not approve any new structure that compromises the Public’s safety on Lake Austin or unjustifiably limits the Public’s navigation freedom and enjoyment. Extending 1.5 times farther into a Public waterway than allowable by Code, the oversized dock requested necessarily decreases the Public’s Navigation Safety by limiting the amount of navigable water and therefore, further narrowing the usable lake. Consequently, maintaining congestion in an area already highly congested area of this Public lake. Thus, granting the request would decrease the Public’s navigational freedom, enjoyment and more importantly safety. Simply put, we need less 46 ft long docks on Lake Austin – not more and certainly not a new one.. 3. Lack of Justification This is not a request for repair or modest modification of an existing permitted Code- compliant dock—it is an attempt to construct an oversized, new three-story multi-level dock with an excessive and egregious footprint that blatantly exceeds code limitations by over fifty percent (50%). The applicant has failed to demonstrate any legitimate or compelling need for such an expansion that overrides the Public’s interest. The Board has no reasonable basis to approve a variance of this magnitude. If the owner desires a new dock for a new big boat that he/she dreams of purchasing, the Board should require the new dock to be Code-compliant extending only 30 ft from the shoreline thus, respecting the Public’s interest in navigation safety, freedom and enjoyment in this highly congested Public use area of the Lake. If the owner demands a 47ft dock, they should have to live with their existing structure and repair it. 4. No Posted Notice for September 8th Meeting Unlike the last meeting, there has been no public posting giving notice of a September 8th meeting. Multiple neighbors may or may not know of the meeting. In fact, we were confused by the lack of posting and are submitting new objections to the request assuming a September 8th meeting is set. We do note that the September 8th Meeting, if held, will not be Code compliant and we thus, object to the non-noticed meeting in its entirety. For these reasons, we object and urge the Board in the strongest possible terms to reject this variance application. Approving it would not only violate City Code, but would also jeopardize public and boaters safety, degrade the integrity of the lakefront community, and erode trust in the variance process. We expect and trust that the Board will uphold its duty to enforce the Code fairly and consistently. Thank you for your attention to this matter. ITEM06/45 ITEM06/46ITEM06/47