ITEM05 C15-2025-0026 ADV PACKET PART2_OCT13 — original pdf
Backup

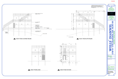
From: To: Subject: Date: Ramirez, Diana FW: Strong Objection to Variance Request; Case No. C15-2025-0026; 1750 Channel Road Monday, August 11, 2025 12:34:59 PM External Email - Exercise Caution Strong Objection to Variance Request; Case No. C15-2025-0026; 1750 Channel Road Please add these pictures to my email ITEM05/34 ITEM05/35ITEM05/36ITEM05/37Re: Strong Objection to Variance Request; Case No. C15-2025-0026; 1750 Channel Road Dear Members of the Board of Adjustments, We, Bruce and Niloofar Slayden, representing the SLAYDEN BRUCE & NELLIE REVOCABLE TRUST at 1744 Channel Road, respectfully submit this letter to express our strong and unequivocal opposition to the variance request submitted by Red Bud Partners LP for the property located at 1750 Channel Road. The request seeks approval to construct a new dock extending 37 feet and 3 inches from the shoreline—substantially exceeding the 30-foot maximum length permitted under the Land Development Code (LDC 25-2-1176). We urge the Board to deny this request. This request is not only excessive and unjustified, but also poses a threat to navigation safety, neighborhood consistency, and surrounding property values. Critically, this variance request is inconsistent with both the letter and the intent of the applicable regulations. 1. Undermining Code’s Intent The variance request proposes a dock length that is 124% of the maximum allowable by code—exceeding the 30-foot limit by a more than 7 feet. The applicant has not provided evidence demonstrating that this increased length is necessary for navigation safety, as required under LDC 25-2-1176. In the absence of such justification, approval would set a troubling precedent and undermine the intent and the integrity of the Code. 2. Navigation Hazard and Community Consistency The proposed 37+ feet, multi-level dock would constitute a significant navigational hazard. It would be the only residential multi-level dock in the area extending nearly 125% of the standard shoreline distance. This outlier configuration deviates dramatically from the existing character of surrounding docks along Lake Austin, which are predominantly conform to code. A new multi-level dock of up to a 30’ height and 37+’ length would obstruct sight lines around the shoreline curve, increasing the risk of boating accidents. The Board must not approve any new structure that compromises boater safety on Lake Austin. ITEM05/383. Adverse Impact on Neighboring Properties and the Lake Community Approval of this variance would result in immediate and measurable harm to neighboring properties, including ours. A multi-level dock of this size (extending 25% further from the shoreline and potentially rising up to 30 feet in height) would obstruct previously unobstructed lake views and irreparably damage the character and value of surrounding homes. We recently invested in a dock that complies fully with code requirements, and we did so with the reasonable expectation that nearby developments would be held to the same standard. Granting this variance would violate that the reasonable expectation and set a highly concerning precedent. 4. Lack of Justification The applicant has not provided adequate justification for a variance of this magnitude. This is not a request for repair or modest modification of the existing dock—it is an attempt to construct an oversized, new multi-level dock with an excessive footprint that blatantly exceeds code limitations by nearly 25%. The applicant has failed to demonstrate any legitimate or compelling need for such an expansion. The Board has no reasonable basis to approve a variance of this magnitude. Approval of such a variance would not only contradict the purpose of the code, but create a potential navigation hazard that also diminishes the value and enjoyment of neighboring properties and the entire lake community. For the reasons outlined above, we respectfully request that the Board deny this varianceapplication in its entirety. Thank you for your attention to this matter. Sincerely, Bruce and Niloofar Slayden SLAYDEN BRUCE & NELLIE REVOCABLE TRUST 1744 Channel Road, Austin, TX 78746 CAUTION: This is an EXTERNAL email. Please use caution when clicking links or opening attachments. If you believe this to be a malicious or phishing email, please report it using the "Report Message" button in Outlook. For any additional questions or concerns, contact CSIRT at "cybersecurity@austintexas.gov". ITEM05/39ITEM05/40ITEM05/41ITEM05/42ITEM05/43ITEM05/44ITEM05/45ITEM05/46ITEM05/47